автордың кітабын онлайн тегін оқу Зимний дворец. Люди и стены. История императорской резиденции. 1762–1917
Игорь Викторович Зимин
Зимний дворец. Люди и стены. История императорской резиденции. 1762-1917
Введение
Дома, как и люди, в них живущие, имеют свою судьбу и биографию. Эти судьбы и биографии могут быть, как и у людей, различной степени яркости. Однако императорские резиденции по определению «обречены» на всеобщую известность. «Каменный Зимний дворец», построенный после череды деревянных Зимних дворцов, 155 лет «проживший» в качестве главной императорской резиденции, является примером такой яркой судьбы.
Сегодня, говоря о Государственном Эрмитаже, мы воспринимаем его как единое целое, не задумываясь над тем, что это понятие включает архитектурный комплекс, складывавшийся на протяжении почти ста лет и состоящий из нескольких зданий: Зимнего дворца (1754–1762 гг.), Малого Эрмитажа (1764–1775 гг.), Старого Эрмитажа (1771–1787 гг.), Эрмитажного театра (1783–1787 гг.) и Нового Эрмитажа (1839–1851 гг.). У каждого из этих зданий была своя «судьба», достойная отдельных исследований. Однако автор сосредоточился на истории «каменного Зимнего дворца», по сей день являющемся сердцем всего архитектурного комплекса.
Еще до 1917 г. Зимний дворец приобрел двоякую известность. Он воспринимался и как главная парадная резиденция российских монархов, и как хранилище бесценных национальных сокровищ. Общеизвестно, что начало «жизни» и парадной резиденции, и Эрмитажу положила его первая хозяйка – Екатерина II, начавшая собирать коллекцию художественных ценностей. Эта коллекция поначалу хранилась на антресолях императорской половины юго-восточного ризалита Зимнего дворца, а потом, разрастаясь, стала поводом для строительства новых зданий. Залы Зимнего дворца по праву можно назвать первой в России выставочной площадкой художественных ценностей.
Функции Зимнего дворца были чрезвычайно многообразны. Резиденция обеспечивала не только представительскую, жилую и культурную функции, но и административно-хозяйственную, чему в книге будет уделено значительное внимание.
Люди, жившие в Зимнем дворце, в силу своего положения и личностных особенностей оставили след в судьбе императорской резиденции. По сей день незримые тени российских императоров и императриц, работавших, любивших, растивших детей, смеявшихся и плакавших, бросают отсвет своих судеб на стены Зимнего дворца. Хозяева дворца, для которых он был домом, переделывали его под собственные нужды, отпуская колоссальные средства на ремонты и бесконечные перестройки. Они, безусловно, любили свой дом, и отблеск этой любви дошел до нас некоей зыбкой аурой. И поэтому, проходя по обезличенным сегодня залам жилых половин, так хочется если не увидеть, то хотя бы представить, как протекала жизнь владельцев дворца не только в парадных залах, «под прицелом» сотен глаз, но и в жилых комнатах, в которых они подчас оказывались наедине с очень непростыми жизненными ситуациями.
Зимний дворец за полтора века до 1917 г. «видел» всякое – и искреннее человеческое счастье, и глубокое горе. В Зимнем дворце умирали монархи, строились и рушились карьеры многих государственных деятелей. В октябре 1917 г. его штурмовали колонны красногвардейцев, матросов и солдат. Дворец «видел», как менялись его интерьеры в угоду новым властям, пережил блокаду Ленинграда. С ним связан целый сонм городских легенд. И в конечном итоге Зимний дворец стал не только неким парадным символом имперского Санкт-Петербурга, который «знают все», но и частью эфемерной, но от этого не менее реальной души города. И поэтому-то нас тянет сюда снова и снова.
Рассказывая о стенах Зимнего дворца, автор старался группировать имеющийся материал «по ризалитам» и «по фасадам» резиденции, охватывая все три этажа. Это не всегда получалось, поскольку многочисленные ремонты и переезды из «квартиры в квартиру» накладывались друг на друга и по времени, и в пространстве. Но по возможности в изложении материала автор придерживался «географического» принципа изложения собранного материала.
Зимний дворец – это настоящая планета, ее изучением можно заниматься бесконечно. И несмотря на то что о Зимнем дворце написаны сотни книг, в истории этого здания остаются страницы, которые будут интересны новым поколениям читателей, хорошо представляющих, что Зимний дворец – это тоже «наше всё».
Стены Зимнего дворца
Архитектор Ф.Б. Растрелли
Начало…
Любой дом, будь то хижина или императорская резиденция, начинается со стен. Потом судьбы стен и людей переплетаются в причудливую вязь, из которой в результате сплетается то, что принято называть ДОМОМ. Поэтому мы и начнем со стен…
Зимний дворец, возведенный Ф.Б. Растрелли по воле императрицы Елизаветы Петровны, представляет собой огромный прямоугольник с причудливыми линиями фасадов длиной – 152 м, шириной – 117 м. Высота Зимнего дворца в 28 м на долгие годы стала некой константой, определяя высоту архитектурного ландшафта столицы.
Традиция разделять резиденции на «зимние» и «летние» восходит к временам Московского царства, когда из стен Теремного дворца Московского Кремля московские цари по весне переезжали в привольное Измайловское или Коломенское. Это деление на зимний и летний дома сохраняется на подсознательном уровне и поныне, когда после долгой зимы мы с радостью перебираемся на свои скромные сотки под громким названием «дача».
Когда Петр I обжился на берегах Невы, то у него, как и в Москве, наряду с летним дворцом появился и свой зимний дворец. В последующие четверть века Зимние дворцы меняли свою «географию», но неизменным оставалось их расположение на Адмиралтейской стороне. Из окон меняющихся зимних дворцов всегда можно было увидеть стальную гладь Невы и строгие очертания Петропавловки. Все оставалось, как при Петре Великом…
Дочь Петра I императрица Елизавета Петровна задумала строительство большого каменного Зимнего дворца в начале 1750-х гг. В январе 1752 г. Ф.Б. Растрелли представил ей первые наметки будущей резиденции. После ряда уточнений 16 июня 1754 г. «дщерь Петрова» утвердила план будущего дворца, на котором архитектор обозначил основную планировочную схему. У Растрелли к этому времени уже имелся внушительный опыт работы над парадными императорскими резиденциями, это были Большой Петергофский дворец и Большой дворец в Царском Селе.
Резиденция планировалась как огромный и роскошный дворец с обширным внутренним двором. Императрица Елизавета Петровна всегда тяготела к роскоши, и ее главная резиденция должна была стать зримым символом могущества и богатства молодой империи.
Работы велись бешеными темпами, поскольку стареющая императрица страстно желала вселиться в свою будущую главную парадную резиденцию – каменный Зимний дворец. О темпах строительства свидетельствуют следующие цифры. В 1754 г. на нулевом цикле трудилась тысяча каменщиков. Летом 1755 и 1756 гг. над возведением стен работали 1900 каменщиков. В сезон 1757 г. – 2323 чел., в 1758 г. – 2250 чел. Это были преимущественно каменщики-профессионалы, собранные из Ярославской и Костромской губерний.
Л. Токе. Портрет императрицы Елизаветы Петровны. 1758 г.
Вместе с тем из указа 2 апреля 1758 г. от Правительствующего Сената видно, что при строении «каменного Зимнего дома» находились на работах и арестанты[1]. Арестантов для строительства Зимнего дворца привлекали не случайно. Темп работ был так высок, а условия жизни и работы так тяжелы, что только за 1762 г. со стройки «самовольно бежало» более 100 человек «вольных» рабочих. При этом многие из них оставили казне даже заработанные деньги[2]. К 1759 г. этап возведения каменной кладки стен в целом завершили, дворец подвели под крышу, и начались фасадные отделочные работы[3].
Естественно, при столь масштабном строительстве бывали и упущения, и злоупотребления. Поэтому в мае 1759 г. генерал В.В. Фермор приказал Конторе строения «наикрепчайше и неусыпно смотреть над офицерами, мастерами, подмастерьями и путиловскими каменщиками»[4].
Императрица торопила Растрелли. Она страстно хотела пожить в своем «новом Каменном доме». Конечно, никто не знает, сколько ему отпущено прожить на свете, но императрица Елизавета Петровна все чаще прихварывала и, видимо, чувствовала, что «блестящий век» «дщери Петровой» подходит к концу. В 1760 г. она категорически потребовала от Растрелли завершить все отделочные работы в течение 1761 г. Для того чтобы ускорить завершение отделочных работ, рабочих поощряли к работе даже в «шабашные дни» (т. е. выходные. – И. З.), за что им давали двойную плату[5]. Но объем работ в огромном дворце был таков, что поставленные императрицей сроки были совершенно нереальными. Наверное, это понимала и Елизавета Петровна.
Портрет В.В. Фермора
Тем не менее Растрелли «бросил» все имеющиеся ресурсы на отделку личных покоев Елизаветы Петровны (две опочивальни и кабинет), покоев цесаревича Павла Петровича, а также некоторых примыкавших к ее покоям помещений: Церкви, Оперного дома и Светлой галереи. Однако Елизавета Петровна так и не пожила в своем новом дворце. Она скончалась в декабре 1761 г.
Первым, но очень недолгим хозяином Зимнего дворца стал племянник Елизаветы Петровны – император Петр III Федорович. Он не менее категорично приказал Растрелли завершить отделочные работы в Зимнем дворце к Пасхе 1762 г. Распоряжение, как водится, выполнили, и хотя дворец стоял сырой, а многие из его помещений не имели отделки, строительство резиденции официально сочли завершенным. В Пасху 1762 г. Зимний дворец торжественно освятили и сдали в эксплуатацию.
Перед переездом в Зимний дворец произошла история, часто упоминаемая всеми бытописателями императорской резиденции. Дело в том, что Петр III категорически распорядился убрать все хозяйственные постройки и строительный мусор со стороны «луга», т. е. будущей Дворцовой площади. А когда императору тактично дали понять, что столь значительный объем работ в столь сжатые сроки выполнить невозможно, то император в отве т предложил весьма нестандартный ход. Он велел хозяйственникам объявить петербуржцам, что все находящееся на «лугу» можно забирать совершенно бесплатно. Народ буквально бросился «на луг», расчистив его от мусора в рекордные сроки. Надо отдать должное Петру III, не только тонко почувствовавшему «потаенные струны народной души», но и грамотно их использовавшего».
Неизвестный художник. Портрет императора Петра III. 1762 год
Петр III, проживавший в елизаветинском деревянном «Зимнем доме» с ноября 1755 г., переехал в Зимний дворец в апреле 1762 г. Он занял помещения на втором этаже юго-восточного ризалита дворца, где «для скорости» вместо паркета положили простые сосновые полы. Его «ординарная опочивальня» располагалась на углу дворца и выходила окнами второго этажа на Миллионную улицу. Для того чтобы императору было легче ориентироваться в громаде Зимнего дворца, архитектор Ф.Б. Растрелли поднес ему большой план резиденции.
Бытописателю старого Петербурга П.Н. Столпянскому приезд Петра III в Зимний дворец виделся следующим образом: «Тихо, медленно, длинным цугом запряженные, подъезжают одна за другой золоченые кареты… Соскакивают с запяток гайдуки, откидывают ступеньки, открывают дверцы, и из высоких, с зеркальными стеклами, с картинами Ватто кузовов карет, покоящихся вместо рессор на широких ремнях, выходили в париках, в раззолоченных кафтанах, башмаках с пряжками кавалеры, с легкой грацией выскакивали дамы, девицы, в широких юбках, в фижмах, в робронах, с кокетливо помещенной на розовой щеке мушкой и с громадною a la кораблик причёской…»[6].
Беспокойный император немедленно затеял переделки. В парадной опочивальне поменяли альков – почему-то Петра III очень волновал этот альков. В череду покоев Петра III наряду с обязательным Кабинетом вошла не менее обязательная Библиотека. Планировалось создание Янтарного зала по образцу и подобию Царскосельского. Все это время неустанно топились на первом этаже огромные печи, просушивая сырые стены дворца.
Г.Х. Гроот. Портрет великого князя Петра Федоровича и великой княгини Екатерины Алексеевны
Петр III прожил во дворце всего несколько месяцев, с апреля по июнь 1762 г., после чего 12 июня 1762 г. навсегда покинул его, переехав в любимый Ораниенбаум. Во время его короткого пребывания в Зимнем дворце произошел многократно описанный биографами Екатерины II эпизод. За три дня до отъезда, на парадной трапезе в честь окончания войны со столь почитаемым Петром III Фридрихом II, недальновидный император публично назвал свою жену дурой, тем самым фактически форсировав подготовку переворота, предрешившего его судьбу. В августе 1762 г. Екатерина II упомянула об этом случае в письме к Станиславу Понятовскому: «В день празднования мира, нанеся мне публично оскорбления за столом, он приказал вечером арестовать меня. Мой дядя, принц Георг, заставил отменить этот приказ».
В Ораниенбауме в конце июня 1762 г. Петр III подписал отречение. А через несколько дней императора убили в Ропшинском дворце. Так смертью Петра III начался «блестящий век» Екатерины II, которая и стала первой настоящей хозяйкой Зимнего дворца.
РГИА. Ф. 475. Оп. 2. Д. 187. Л. 54. Выписки из дел разных фондов о Зимнем дворце и Эрмитаже, сделанные по распоряжению начальника Петроградского Дворцового управления для издания «Истории Зимнего дворца». 1903. Ч. 2.
Глинка В.М., Денисов Ю.М., Иогансен М.В. и др. Эрмитаж. История строительства и архитектура зданий / Под ред. Б.Б. Пиотровского. Л., 1989. С. 72.
ОР РНБ. Ф. 741. Оп. 2. Л. 41. Столпянский П.Н. Старый Петербург. Зимний дворец. б/д.
РГИА. Ф. 475. Оп. 2. Д. 186. Л. 24. Выписки из дел разных фондов о Зимнем дворце и Эрмитаже, сделанные по распоряжению начальника Петроградского Дворцового управления для издания «Истории Зимнего дворца». 1903. Ч. 1.
РГИА. Ф. 475. Оп. 2. Д. 187. Л. 80 об. Выписки из дел разных фондов о Зимнем дворце и Эрмитаже, сделанные по распоряжению начальника Петроградского Дворцового управления для издания «Истории Зимнего дворца». 1903. Ч. 2.
РГИА. Ф. 475. Оп. 2. Д. 187. Л. 48. Выписки из дел разных фондов о Зимнем дворце и Эрмитаже, сделанные по распоряжению начальника Петроградского Дворцового управления для издания «Истории Зимнего дворца». 1903. Ч. 2.
Юго-восточный ризалит Зимнего дворца
Исторически сложилось так, что жилые покои российских императоров и императриц локализовались по углам Зимнего дворца. Эти выступающие за линию главного фасада выступы принято называть ризалитами (итал. Risalita – «выступ»). Юго-восточный ризалит Зимнего дворца, выходивший на Миллионную улицу и Дворцовую площадь, стал первой из «зон проживания» хозяев Зимнего дворца.
Формирование половины Екатерины II
Еще во второй половине 1750-х гг. Ф.Б. Растрелли заложил в схему Зимнего дворца стандартный планировочный вариант, использованный им во дворцах Царского Села и Петергофа. Подвал дворца использовался как жилье для слуг или складские помещения. На первом этаже дворца размещались служебные и хозяйственные помещения. Второй этаж (бельэтаж) дворца предназначался для размещения торжественных, парадных залов и личных апартаментов первых лиц. На третьем этаже дворца селили фрейлин, врачей и ближних слуг. Эта планировочная схема предполагала преимущественно горизонтальные связи между различными зонами обитания дворца. Материальным воплощением этих горизонтальных связей стали бесконечные коридоры Зимнего дворца.
Сердцем дворца становились покои первого лица. Сначала эти покои Растрелли планировал под Елизавету Петровну. Комнаты стареющей императрицы архитектор расположил в солнечной юговосточной части дворца. Окна личных покоев императрицы выходили на Миллионную улицу. Неспесивая дщерь Петрова любила посидеть у окна, глядя на уличную суету. Видимо, с учетом именно такой формы женского досуга и солнечного света, столь редкого в наших широтах, Растрелли и планировал расположение личных комнат императрицы.
Петр III, а за ним и Екатерина II оставили в силе планировочную схему Растрелли, сохранив за юго-восточным ризалитом Зимнего дворца роль его жилого центра. При этом Петр III сохранил за собой комнаты, в которых планировала жить Елизавета Петровна. Для своей постылой жены взбалмошный император определил покои на западной стороне Зимнего дворца, окна которых выходили на промышленную зону Адмиралтейства, которая со времен Петра I функционировала как корабельная верфь.
Э. Вигилиус. Портрет Екатерины II в мундире л. – гв. Преображенского полка. После 1762 г.
Екатерина II после переворота 28 июня 1762 г. прожила в Зимнем дворце буквально несколько дней. Остальное время она продолжала жить в деревянном Елизаветинском дворце на Мойке.
Поскольку Екатерине II срочно требовалось укрепить свое шаткое положение легитимной коронацией, то она выехала в Москву в августе 1762 г. для того, чтобы короноваться в Успенском соборе Московского Кремля. Коронация состоялась 22 сентября 1762 г.
Нельзя не отметить высокий темп жизни этой женщины, столь нетипичный для того неторопливого времени. Тогда, в первой половине 1762 г., она не только организовала заговор против мужа, но и сумела втайне от него в апреле 1762 г. родить ребенка, отцом которого был ее любовник Г.Г. Орлов. В конце июня 1762 г. последовал переворот, в начале июля – «загадочная» смерть Петра III и коронация в сентябре 1762 г. И на все это у нее хватило ума, сил, нервов и энергии.
После того как Екатерина II уехала в Москву, строительные работы в Зимнем дворце не прекратились, но вели их уже другие люди. Эти перемены связаны с рядом обстоятельств. Во-первых, новое царствование – это всегда новые люди. Екатерина II удалила многих сановников елизаветинского времени, в том числе и архитектора Ф.Б. Растрелли. 20 августа 1762 г. Растрелли отправили в отпуск как человека Елизаветы Петровны. Во-вторых, Екатерина II считала причудливое барокко отжившим стилем. На уровне подсознания она желала, чтобы ее царствование ознаменовалось зримыми стилевыми изменениями, получившими название классицизма. Поэтому отпуск Растрелли плавно перетек в его отставку.
Неизвестный художник. Присяга лейб-гвардии Измайловского полка 28 июня 1762 г. Первая четверть XIX в.
На смену Растрелли пришли архитекторы, до этого игравшие вторые роли. Это были те, кто работал в угодной Екатерине II новой манере – Ж.-Б. Валлен-Деламот[7], А. Ринальди[8] и Ю. Фельтен[9]. То есть те архитекторы, которых принято относить к периоду так называемого раннего классицизма. Отметим, что все они весьма бережно отнеслись к завершенным участкам работы своего предшественника в Зимнем дворце. Они совершенно не затронули уже законченный барочный фасад Зимнего дворца. Впрочем, возможно, тут сыграли свою роль и сугубо меркантильные соображения. На глобальные изменения только что отстроенного Зимнего дворца просто не было денег.
И. Майер. Зимний дворец со стороны Васильевского острова. 1796 г.
М. Михаев. Вид Зимнего дворца с востока. 1750-е гг.
Тем не менее эта традиция сохранилась и позже. Поэтому Зимний дворец по сей день является причудливым смешением стилей: фасад, Большая церковь, Парадная лестница до сих пор сохраняют барочный декор Растрелли, все же остальные помещения неоднократно подвергались переделкам. Во второй половине XVIII в. эти коррекции и переделки были выдержаны в духе классицизма. После пожара 1837 г. многие внутренние помещения отделывались в стиле историзма.
Зимний дворец. Павильон Фонарик. Литография Байо по рисунку О. Монферрана. 1834 г.
К работе в Зимнем дворце новая творческая группа приступила уже осенью 1762 г. Так, Ю. Фельтен, выполняя личное поручение императрицы, отделывал ее покои в классицистическом стиле. Больше всего известна по описаниям его Бриллиантовая комната, или Алмазный покой. Подчеркнем, что каких бы то ни было изображений личных покоев Екатерины II до нас не дошло. Совсем. Но сохранились многочисленные их описания.
Как упоминалось, еще в конце 1761 г. Петр III распорядился «для государыни… отделать помещения с Адмиралтейской стороны и через все три этажа сделать лестницу»[10]. Поэтому на втором этаже западного корпуса Зимнего дворца еще при Петре III Ж.-Б. Валлен-Деламот начал отделывать личные покои Екатерины II. В их числе были Спальня, Уборная, Будуар, Кабинет. Там же работал и Ю. Фельтен, трудами которого появилась Портретная и «Светлый кабинетец» в деревянном эркере, устроенном над подъездом, который позже назовут Салтыковским.
Видимо, идея выносного трехсветного эркера пришлась по вкусу императрице. Она сумела даже в суете подготовки переворота отметить и оценить этот «архитектурный элемент». Поэтому после прекращения работ в западной части дворца идея «кабинетца» материализовалась в юго-западном ризалите, где над подъездом, позже названным Комендантским, появился знаменитый Фонарик – небольшая дворцовая зала, расположенная над подъездом.
Сохранилась акварель неизвестного художника «Екатерина II на балконе Зимнего дворца в день переворота», датированная концом XVIII в. На этой акварели просматриваются строительные леса у юго-западного ризалита дворца. Фонарика еще нет, но есть балкон, закрытый сверху четырехскатным навесом. Место было уютным, и Фонарик, учитывая петербургский климат, закрыли капитальными стенами. Этот уютный Фонарик сохранялся над Комендантским подъездом вплоть до 1920-х гг.
К началу 1763 г. Екатерина II, вернувшись в Петербург, наконец окончательно определилась со своим местом жительства в огромном Зимнем дворце. В марте 1763 г. она приказала перенести свои покои в юго-западный ризалит, туда, где раньше были покои императрицы Елизаветы Петровны и Петра III.
Вне всякого сомнения, в этом решении имелся отчетливый политический контекст. Екатерина II, как прагматичный и умный политик, встраивала себя не только в систему власти, но и в сложившуюся схему дворцовых покоев. Тогда в 1863 г. она учитывала любую мелочь, которая могла укрепить ее положение, в том числе и такую, как преемственность императорских покоев: от Елизаветы Петровны к Петру III и к ней – императрице Екатерине II. Ее решение перенести свои покои в статусный юго-восточный угол Зимнего дворца, вероятно, диктовалось стремлением укрепить свое зыбкое положение, в том числе и таким «географическим методом». Покои, в которых предполагали жить Елизавета Петровна и Петр III, могли стать только ее покоями. Соответственно, все работы, которые с осени 1762 г. вели Ж.-Б. Валлен-Деламот и Ю. Фельтен в западном крыле дворца, немедленно свернули. Так что в комнатах, расположенных вдоль западного фасада Зимнего дворца, Екатерина II не прожила ни одного дня.
Новые работы велись с размахом. Это был уже не мелкий косметический ремонт, затеянный Петром III. В юго-восточном ризалите началась масштабная перепланировка внутренних помещений, когда разбирались только что возведенные стены. При проведении работ архитекторы учли и нюансы личной жизни 33-летней императрицы. Прямо под личными покоями Екатерины II, на антресолях первого этажа, разместили комнаты ее гражданского мужа на тот момент – Григория Орлова. Там же на антресолях, прямо под церковным алтарем, устроили баню (мыльню, или мыленку) с обширными и роскошными помещениями.
Г.Г. Орлов
Г.А. Потемкин
Об этой мыленке императрица неоднократно упоминала в своей интимной переписке со своими меняющимися фаворитами. Фавориты менялись, а мыленка, как уединенное место для встреч, оставалась. Например, в феврале 1774 г. Екатерина II писала Г.А. Потемкину: «Голубчик, буде мясо кушать изволишь, то знай, что теперь все готово в бане. А к себе кушанье оттудова отнюдь не таскай, а то весь свет сведает, что в бане кушанье готовят». В марте 1774 г. императрица сообщает Потемкину о своем разговоре с Алексеем Орловым, хорошо знавшим, для чего предназначена мыленка: «… Мой ответ был: „Я солгать не умею“. Он паки вопрошал: „Да или нет?“ Я сказала: „Да“. Чего выслушав, расхохотался и молвил: „А видитеся в мыленке?“ Я спросила: „Почему он сие думает?“ „Потому, дескать, что дни с четыре в окошке огонь виден был попозже обыкновенного“. Потом прибавил: „Видно было и вчерась, что условленность отнюдь не казать в людях согласия меж вами, и сие весьма хорошо“».
Строительные и отделочные работы шли в лихорадочном темпе с января по сентябрь 1763 г. В результате на месте покоев Петра III усилиями архитекторов и при безусловном личном участии императрицы сформировался комплекс личных покоев Екатерины II, куда вошли следующие помещения: Аудиенц-камера площадью в 227 м2, которая заменяла Тронную залу; Столовая с двумя окнами; Светлый кабинетец; Уборная; две Повседневные спальни; Будуар; Кабинет и Библиотека[11].
И.О. Миодушевский. Вручение письма Екатерине II
Все указанные помещения были выдержаны в стилистике раннего классицизма, но при этом соединяли в себе трудно сопоставимые для этого стиля компоненты – торжественную парадность и несомненный уют. Парадность обеспечили архитекторы раннего классицизма, а уют, вне всяких сомнений, привнесла сама императрица. Впрочем, обо всем этом мы знаем только из описаний покоев, оставленных современниками.
Онепосредственном вмешательстве Екатерины II в принятие архитектурных решений известно достоверно. Самый известный факт – это приказание императрицы о переделке одной из своих повседневных спален под Бриллиантовую комнату, или Алмазный покой, о которой будет рассказано далее.
Современники, бывавшие в Зимнем дворце, оставили многочисленные описания личных комнат императрицы. Один из таких путешественников-французов писал: «…апартаменты государыни весьма простые: перед залой для аудиенций маленький застекленный кабинет, где хранятся под печатями корона и бриллианты ее; зал для аудиенций очень прост: подле двери – трон красного бархата; затем идет гостиная, отделанная деревом и позолотой с двумя каминами, до смешного маленькими. Эта комната, служащая для приемов, сообщается с апартаментами великого князя, где нет ничего примечательного, так же как и в комнатах его детей»[12].
Отметим, что для отделки помещений Зимнего дворца с Урала в Петербург тогда начал поступать мрамор различных сортов. Из этого мрамора вытесывали колоны, камины, доски для столов и проч. Готовые изделия и полуфабрикаты доставлялись в Петербург водою на баржах. Первый такой транспорт отправили в столицу весной 1766 г.[13]
Императрица Екатерина II переселилась в Зимний дворец осенью 1763 г. Если обратиться к Камер-фурьерским журналам за 1763 г., то хронология событий выстраивается следующая:
13 августа 1763 г. «Ея Императорское Величество изволила иметь выход для прогулки по улицам и быть соизволила в каменном Зимнем Дворце…».
12 октября 1763 г. императрица распорядилась «куртагу не быть, а быть оному в будущую среду, т. е. сего октября 15 числа в Зимнем каменном Ея Императорского Величества дворце».
15 октября 1763 г. Екатерина II переехала в Зимний дворец, где и устроила новоселье, «представляя» окружению свой новый дом.
19 октября 1763 г. императрица устроила первый «публичный маскарад в Зимнем Дворце для всего дворянства», представляя дворец всему столичному дворянству[14].
При этом строительные работы не останавливались в других частях дворца, где продолжали отделывать парадные залы. Только в 1764 г. крупные отделочные работы в Зимнем дворце были завершены.
Естественно, с завершением работ 1762–1764 гг. Зимний дворец не застыл в неизменной форме и планировке. Строительные работы продолжались практически непрерывно в большем или меньшем масштабе. Об этом свидетельствует собственноручная записка Екатерины II, относящаяся к 1766 г., в которой она суммирует «расходы на строения»[15]. (См. таблицу 1.)
Таблица 1
Глобальные перепланировки в Зимнем дворце начались в конце 1770-х гг. и были связаны с ростом императорской семьи. Все это время строительными работами во дворце руководил президент Императорской Академии искусств и секретарь императрицы И.И. Бецкой. По его инициативе Екатерина II подписала указ от 9 октября 1769 г., по которому «Канцелярия о строении Ея Императорского Величества домов и садов» упразднялась и на ее основе создавалась «Контора о строении Ея Императорского Величества домов и садов» под дирекцией того же И.И. Бецкого. Тогда же, в 1769 г., императрица определила квоту на содержание и строительство по Зимнему дворцу в 60 000 руб. в год.
А. Рослин. Портрет И.И. Бецкого. 1777 г.
Цит. по: Суслов А. Зимний дворец (1754–1927). Исторический очерк. Л., 1927. С. 24.
РГИА. Ф. 475. Оп. 2. Д. 187. Л. 172. Выписки из дел разных фондов о Зимнем дворце и Эрмитаже, сделанные по распоряжению начальника Петроградского Дворцового управления для издания «Истории Зимнего дворца». 1903. Ч. 2.
РГИА. Ф. 475. Оп. 2. Д. 186. Л. 58 // Выписки из дел разных фондов о Зимнем дворце и Эрмитаже, сделанные по распоряжению начальника Петроградского Дворцового управления для издания «Истории Зимнего дворца». 1903. Ч. 1.
Императрица Екатерина II // Русская старина. 1878. № 12.
РГИА. Ф. 475. Оп. 2. Д. 186. Л. 29. Выписки из дел разных фондов о Зимнем дворце и Эрмитаже, сделанные по распоряжению начальника Петроградского Дворцового управления для издания «Истории Зимнего дворца». 1903. Ч. 1.
Глинка В.М., Денисов Ю.М., Иогансен М.В. и др. Эрмитаж. История строительства и архитектура зданий / Под ред. Б.Б. Пиотровского Л., 1989. С. 101.
Антонио Ринальди (итал. Antonio Rinaldi, 1709–1794) – итальянский архитектор, работавший в России. В Петербурге с 1751 г. В 1756–1790 гг. – придворный архитектор.
Жан-Батист-Мишель Валлен-Деламот (Jean-Baptiste Vallin de la Mothe, 1729–1800) – французский архитектор. В 1759–1775 гг. работал в России, в основном в Санкт-Петербурге. С 1766 г. – придворный архитектор. В 1775 г. уехал во Францию.
Фельтен Юрий Матвеевич (1730–1801) – архитектор, получил образование в Италии и Париже. Служил в Конторе строения дворцов и садов Ее Величества, состоял при архитекторе Растрелли помощником по сооружению Зимнего дворца.
Бриллиантовая комната Екатерины II
Хранение «главных сокровищ» в личных покоях или поблизости от них являлось устойчивой европейской традицией. Следуя этой традиции, бедная немецкая принцесса, а потом российская императрица Екатерина II распорядилась устроить «главное хранилище» для коронных бриллиантов на своей половине.
Реализация проекта началась осенью 1762 г., когда по указу императрицы в Зимний дворец из пригородных и городских резиденций начали свозить драгоценное имущество, преимущественно серебро. Все эти серебряные изделия, находившиеся в Петербурге со времен Петра I и принадлежавшие короне, апробировали, маркировали (на них выбили соответствующие номера), взвешивали и вносили в реестры[16].
Ювелирная инвентаризация завершилась к 1764 г., когда в парадной опочивальне императрицы Ю.М. Фельтен оформил парадное хранилище императорских регалий. Комната получила название Бриллиантовой, или Алмазной. Еще раз отметим, что эта комната входила в комплекс парадных покоев императрицы, находившихся на втором этаже юго-восточного ризалита Зимнего дворца, окна которого выходили на Дворцовую площадь и Миллионную улицу.
После завершения отделочных работ в этой комнате хранились императорские регалии: корона, скипетр, держава и множество других драгоценностей. Регалии находились в центре комнаты на столе под хрустальным колпаком. По мере того как ювелирная коллекция императрицы разрасталась, понадобились новые застекленные витрины. Их изготовил известный мебельщик Д. Рентген.
Эти витрины обновили в конце 1784 – начале 1785 гг. 2 октября 1784 г. Ю.М. Фельтен доложил «Конторе строения», что императрица приказала «сделать новые бриллиантовые ящики с резным пристойным украшением и вызолочением». Под ящиками имелись в виду, конечно, пристенные витрины, которые следовало поставить в Бриллиантовую комнату вместо старых. Работу выполняли разные мастера: некий Шульц делал столярную работу, Дункер – резную, Вейбер – слесарную, Смирнов – золотарную. В июле 1785 г. ящики были готовы и прикреплены к стене в Бриллиантовой комнате. Судя по затраченным на ящики материалам, они были достаточно большие. Так, стекла в крышках имели в длину 1 аршин 6 вершков, а в ширину – около аршина (аршин – 71,12 см; вершок – 4,44 см)[17].
Формирование комплекса коронационных императорских регалий завершилось именно при Екатерине II. Так, Большая императорская корона, изготовленная ювелирами Иеремией Позье (Jeremie Pauzier) и Георгом Фридрихом Экартом, прослужила с 1762 по 1896 г. Ей короновались все российские монархи, правившие после Екатерины II. Большая императорская корона по сей день является главным экспонатом Алмазного фонда Московского Кремля.
Императорские регалии
Самоцветы, которыми украшена Большая императорская корона, поражают своим великолепием и роскошью[18]. В общей сложности на короне укреплены 75 жемчужин и 4936 бриллиантов. Вершину короны украшает великолепная тёмно-красная шпинель в 398,72 карата. Громадная шпинель и 75 жемчужин весили около 800 г, а вместе с металлом корона весила 2 кг[19]. При этом изначально на корону отпустили 1 фунт золота и 20 фунтов серебра. Длина нижней окружности короны ныне составляет 64 см, высота с крестом – 27,5 см. Попутно отметим, что нижний ободок короны подгонялся по голове каждого монарха накануне его коронации. Поэтому эти 64 см сделаны под Николая II (корона ему оказалась великовата).
Видимо, Екатерина II, давая ювелирам карт-бланш на использование любых камней и материалов при изготовлении короны, высказала и некоторые прагматические пожелания. Об этом свидетельствует фраза в записках И. Позье о том, что он старался сделать корону как можно легче: «Несмотря на все предосторожности, принятые мною, чтобы сделать корону легкою и употребить только самые необходимые материалы, чтобы удержать камни, в ней оказалось пять фунтов весу»[20].
Тем не менее мастеру удалось угодить заказчице, которая получила великолепную вещь и в очень сжатые сроки. Придворный ювелир И. Позье лично «примерил корону Ее Величеству», и Екатерина II была «очень ею довольна», сказав, что в «течение четырех или пяти часов во время церемонии как-нибудь продержит эту тяжесть»[21]. Екатерину II в это «горячее» время интересовали только прагматические соображения.
Кроме Большой императорской короны ювелир Георг Фридрих Экарт к коронации 1762 г. сделал и Императорскую державу. На изготовление державы ювелир потратил много сил и нервов. Первоначально предполагалось использовать державу, в которой венчалась на царство Екатерина I в 1724 г. Эта держава была из древнего «большого наряда» московских царей. Но к ужасу организаторов коронации выяснилось, что вскоре после коронации Елизаветы Петровны в 1742 г. из державы по повелению императрицы выломали драгоценные камни, а затем «в дело» употребили и золото[22]. В результате древнюю коронационную державу уничтожили. Это обнаружилось только 7 сентября 1762 г., а коронация была намечена на 22 сентября. На изготовление новой державы у ювелира оставалось только две недели. И тем не менее Экарт не только уложился в срок, но и изготовил безупречную по композиционному воплощению вещь, которая прослужила на восьми коронациях (1762, 1797, 1801, 1826, 1829 – коронация Николая I в Варшаве, 1856, 1883, 1896 гг.).
Следует добавить, что в облик державы образца 1762 г. при последующих коронациях внесли изменения. Самые принципиальные – при коронации Павла I в 1797 г. Тогда появился громадный сапфир под крестом и треугольный алмаз на пояске, приобретенный у Ивана Амбеликова и долгое время бывший в России вторым по величине после знаменитого бриллианта «Орлов».
Кроме Большой императорской короны и державы на коронации 1762 г. использовали «Большой букет», изготовленный для Елизаветы Петровны в 1757–1760 гг. Он служил украшением корсажа парадного коронационного платья Екатерины II. Впервые этот «букет» украсил парадный туалет императрицы Елизаветы Петровны. Букет был составлен из бриллиантов и изумрудов. Подложенная под бриллианты разноцветная фольга (распространенный в прошлые времена приём ювелиров) создавала эффект многокрасочного «живого» букета. Только сиренево-розовый 15-каратный алмаз имел природную окраску.
Несколько позже для Екатерины II изготовили новый Императорский скипетр, украшенный алмазом «Орлов» весом в 189,62 карата. Этот алмаз императрице поднес Г.Г. Орлов 24 ноября 1773 г. Через некоторое время этот драгоценный камень вставили в уже готовый «под алмаз» новый скипетр. С этого времени (1773 г.) три основные коронационные регалии (корона, скипетр и держава с 1797 г.) более уже не менялись[23]. При Павле I новый скипетр впервые использовали во время коронации и тем самым официально включили его в число императорских регалий.
А.П. Антропов. Портрет Екатерины II
Хотя «Бриллиантовая комната» Екатерины II являлась, безусловно, режимным помещением с соответствующей охраной и штатом служителей, но ее никак нельзя назвать неким закрытым сейфом для хранения драгоценностей колоссальной стоимости. «Бриллиантовая комната» представляла собой вполне утилитарное жилое помещение с богатым и уютным интерьером. Она активно использовалась императрицей для досуга в узком кругу приближенных для приятного вечернего времяпровождения. Иногда в холодные дни в «Бриллиантовой комнате» Зимнего дворца совершалась и церковная служба.
В книге И.Г. Георги «Описание императорского столичного города Санкт-Петербурга» Бриллиантовая комната описывается следующим образом: «Государственные регалии стоят. под большим хрустальным колпаком, через который все ясно разсмотреть можно. По стенам сея комнаты разставлено несколько шкапов со стеклами, где лежит множество украшений алмазных и иных драгоценных каменьев, в других же великое множество орденских знаков, портретов Ея Императорского Величества, табакерок, часов и цепочек, готовален, перстней, бантов, золотых шпажных эфесов и других драгоценных вещей, из сего выбирает Монархиня что Ей угодно на раздариваемые Ею подарки».
Действительно, драгоценности хранились в стеклянных шкафах, ключи от которых находились у камер-юнгферы императрицы Анны Константиновны Скороходовой[24]. Эти драгоценности изготавливали не только в придворной «Алмазной мастерской», но и покупали у ювелиров, оплачивая их из комнатной суммы императрицы[25]. Поэтому если в документах указывалось, что какой-либо предмет был приобретен для «Комнаты» или «взят в Комнату», то это означало его присутствие на одной из полок в стеклянных шкафах Бриллиантовой комнаты императрицы.
Драгоценностей в Бриллиантовой комнате было так много, что при всем тщательном их учете вещи подчас исчезали. Исчезали не в смысле их воровства, а в самом обычном и часто встречающемся варианте, когда привычная вещь вдруг просто выпадала из жизненного пространства, чтобы также неожиданно найтись. Такая история произошла с уникальной панагией работы Луи-Давида Дюваля, который украсил эту наградную вещь «казенным изумрудом». О том, что панагия мистическим образом «выпала» из собрания вещей Бриллиантовой комнаты, свидетельствует записка Екатерины II, адресованная Г.А. Потемкину: «Два года искала я панагию, а она лежала в ящике таком, в который два года никто не заглянул. При сем ее посылаю для вручения Преосвященному Платону»[26].
Примечательно, что именно Бриллиантовая (Алмазная) комната в личных покоях императрицы играла роль некоего выставочного зала, в котором ювелиры выставляли свои изделия. К вещам прикреплялись ярлычки с именем поставщика и ценой. Императрица и приближенные приходили и отбирали то, что им нравилось.
Надо сказать, что к этому времени уже существовала прочная традиция задерживать оплату ювелирам за взятые вещи. В архивных документах в XVIII в. нередко встречаются прошения ювелиров, а порой уже и их вдов, о выплате денег за вещи, давно взятые ко Двору.
Ювелирные ресурсы Бриллиантовой комнаты не раз использовались Екатериной II для комплектации наградных наборов для своих сановников и полководцев. Екатерина II была не только умной женщиной, но и творческой натурой, поэтому, лично подбирая наградной комплект, она привязывала его к месту и событию. Например, таким комплектом она удостоила героя Первой русско-турецкой войны графа Петра Александровича Румянцева после подписания Кучук-Кайнарджийского мира. В письме к барону М. Гримму Екатерина II перечислила составляющие набора: «…я должна рассказать вам, как я устроила фельдмаршала Румянцева в день мира: 1. Он получил диплом, в котором все его победы, завоевания и заключение мира изложены во всей подробности; потом 2. Маршальский жезл, осыпанный бриллиантами; 3. Великолепную шпагу; 4. Шляпу с лавровым венком в виде султана на ней; 5. Оливковую ветвь из бриллиантов и эмали; 6. Алмазные знаки и звезду Св. Андрея Первозванного; 7. Пять тысяч душ; 8. Сто тысяч рублей; 9. Серебряный сервиз на сорок человек; 10. Коллекцию картин»[27]. Как мы видим, императрица предусмотрела для своего полководца все – и для души, и для тела.
Так случилось, что самой значимой исторической реликвией из этого перечня стал «маршальский жезл, осыпанный бриллиантами». До 1917 г. он хранился в Успенском соборе Киево-Печерской лавры, где был похоронен Румянцев. После революции в ходе конфискаций жезл переправили в Российский исторический музей в Москве. В 1922 г. жезл из музея изъяли и передали в Гохран. Как это ни странно, но в ходе распродаж царского золота этот «маршальский жезл, осыпанный бриллиантами» уцелел, и сейчас он находится в одной из витрин исторического зала Алмазного фонда Московского Кремля. Остальные предметы из этого наградного набора в результате большевистских распродаж осели преимущественно в США, в частности, «серебряный сервиз на сорок человек» хранится в Нью-Йоркском Метрополитен-музее[28].
Известно, что императрица любила использовать Бриллиантовую комнату для игры в карты. Екатерина II была знатоком человеческих душ и понимала, как может «бодрить» во время азартной карточной игры на «большой интерес» (а иначе у императрицы и не играли, азартна была матушка.) завораживающий блеск бесчисленных бриллиантов, рубинов, изумрудов и сапфиров. А игра в окружении императрицы шла по-крупному и была одной из деликатных форм награды приближенных со стороны императрицы. Те, кто был допущен за карточный стол Екатерины II, постоянно имели в виду, что могут «внезапно» выиграть очень крупную сумму, сорвав банк за карточным столом.
Ф.Н. Головина, будучи 18-летней фрейлиной императрицы, вспоминала: «По вторникам я дежурила вместе с другой фрейлиной; мы почти весь вечер проводили в так называемой Бриллиантовой комнате, именовавшейся так по множеству находившихся в ней драгоценных вещей. Здесь, между прочим, хранились и корона, скипетр и держава. Императрица играла здесь в карты со своими старыми придворными, а две дежурные фрейлины сидели у стола и дежурные кавалеры занимали их разговорами».
Однако при всем этом в Бриллиантовую комнату имел доступ очень ограниченный круг людей, который по мере старения императрицы все сокращался. Поэтому Екатерина II с легкой иронией писала барону М. Гримму о сокровищах Бриллиантовой комнаты: «…всем этим любуются мыши и я»[29].
В самом конце царствования Екатерины II в корпусе «Лоджий Рафаэля», возведенных к 1792 г. вдоль Зимней канавки, устроили вторую Бриллиантовую комнату. Вероятно, новая и старая Бриллиантовые комнаты некоторое время существовали параллельно, так как основной набор царских регалий оставался рядом с Тронным залом Екатерины II. Таким образом, Бриллиантовая, или Алмазная, комната, служила главным хранилищем драгоценностей несколько десятилетий[30].
Следует подчеркнуть, что 34-летнее царствование Екатерины II окончательно превратило бриллиант в главный официальный символ богатства Императорского двора. Это действительно было время бриллиантов. Даже жеребец императрицы, на котором она в июне 1762 г. в преображенском офицерском мундире возглавила «поход» трех гвардейских полков на Ораниенбаум, где укрывался потерявший власть Петр III, звался Бриллиант.
Что касается изменений местонахождения Бриллиантовой комнаты в Зимнем дворце, то следует иметь в виду, что каждый из новых хозяев Зимнего дворца буквально перекраивал его помещения под себя, поэтому на месте спален возникали новые гостиные, а на месте гостиных – танцевальные залы. Поэтому Бриллиантовая комната периодически меняла свой адрес в стенах Зимнего дворца. При Екатерине II комната-хранилище находилась в юго-восточном ризалите дворца, и ее окна выходили на Дворцовую площадь и Миллионную улицу на месте зала № 279 Государственного Эрмитажа.
Отметим и то, что о Бриллиантовой комнате упоминалось и в путеводителях по Зимнему дворцу, изданных до 1917 г. Например, когда в 1903 г. начали собирать материал для юбилейной монографии, посвященной Зимнему дворцу, то о Бриллиантовой писали следующим образом: «…самое замечательное в Зимнем Дворце – Бриллиантовая комната, находящаяся в залах верхнего этажа. Для осмотра требуется особое разрешение министра Императорского двора. В средней витрине представлены царские регалии. Самая ценная – скипетр, стоимостью в 2 400 000 руб., увенчанный знаменитым алмазом Орлов в 185 кар. весом»[31]. В этом фрагменте обращает на себя внимание то, что место хранения регалий обозначено приблизительно – «в залах верхнего этажа». При этом с лета 1894 г. императорские регалии хранились на первом этаже Зимнего дворца.
Лопато М.Н. Ювелиры старого Петербурга. СПб., 2006. С. 66.
РГИА. Ф. 475. Оп. 2. Д. 187. Л. 252. Выписки из дел разных фондов о Зимнем дворце и Эрмитаже, сделанные по распоряжению начальника Петроградского Дворцового управления для издания «Истории Зимнего дворца». 1903. Ч. 2.
На официальном сайте Алмазного фонда можно посмотреть видеоролик в режиме 3D. Он дает максимально полное представление о коронационных регалиях российских императоров.
Кузнецова Л.К. Петербургские ювелиры. Век восемнадцатый, бриллиантовый… М., 2009. С. 142.
Как мы уже упоминали, держава была подкорректирована в 1797 г. к коронации Павла I.
Известна ее родственница, также служившая при Дворе. Скороходова (урожд. Шаргородская) Матрена Константиновна (1709–1772), камер-юнгфера императриц Елизаветы Петровны и Екатерины II, няня Павла I.
Кузнецова Л.К. Иван Никитич Бартенев // Хранители. Материалы XI Царскосельской научной конференции. СПб., 2005. С. 11.
Кузнецова Л.К. Петербургские ювелиры. Век восемнадцатый, бриллиантовый… М., 2009. С. 400.
Записки придворного брильянтщика Позье о пребывании его в России // Русская старина. 1870. Т. 1. С. 112.
Там же.
Кузнецова Л.К. Петербургские ювелиры. Век восемнадцатый, бриллиантовый… М., 2009. С. 143.
Грот Я.Н. Екатерина II в переписке с Гриммом. СПб., 1879. С. 33.
Кузнецова Л.К. Петербургские ювелиры. Век восемнадцатый, бриллиантовый… М., 2009. С. 406.
Грот Я.К. Екатерина II в переписке с Гриммом. СПб., 1879. С. 54.
Галерея драгоценностей Эрмитажа. М., 2006. С. 15.
РГИА. Ф. 475. Оп. 2. Д. 186. Л. 16 об. Выписки из дел разных фондов о Зимнем дворце и Эрмитаже, сделанные по распоряжению начальника Петроградского Дворцового управления для издания «Истории Зимнего дворца». 1903. Ч. 1.
Покои Екатерины II в последние годы жизни
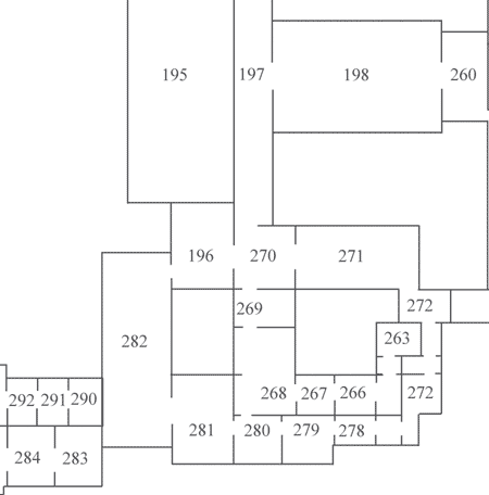
В 1790-х гг. апартаменты Екатерины II продолжали занимать восточную часть Зимнего дворца от Иорданской лестницы и до половины наследника Павла Петровича (№№ 283 и 290). Парадную половину императрицы Екатерины II открывали «два проходных покоя» (№ 193), за ними следовала Арабесская перед галереей, к которой с востока примыкала Столовая камер-пажей и официантов (№ 194). За Белой галереей (№ 195) располагались: Штатс-дамская (№ 195 – юго-восточная часть), Перед Штатс-дамской (№ 197 – восточная часть), Буфет маскерадной (№ 196 – северная часть), Большая лестница, называвшаяся Красной (№ 196 – часть), Предцерковный зал (№ 270) и Церковь во имя Спаса Нерукотворного образа (№ 271). Из Предцерковного зала можно было пройти в Столовую (№ 269) и Буфетную, где стоит пост лейб-гвардии Конного полка Рейтары (№ 196 – южная часть)[32]. Во всех комнатах еще во второй половине 1760-х гг. положили штучные, т. е. паркетные полы, по чертежам Фельтена и Валлен-Деламота.
План залов юго-восточного ризалита
Если в начале царствования Екатерины II в ее половину входило только девять «покоев» как представительского, так и сугубо личного характера, то к концу ее правления их число, безусловно, изменилось. Это вполне естественно, поскольку императрица прожила в Зимнем дворце 34 года – все годы своего правления. В архивных документах имеется еще один перечень помещений на половине императрицы Екатерины II: 1. Главный приход и большая вхожая лестница; 2. Парадные три антикамеры; 3. Аудиенция (Тронная зала); 4. Столовая; 5. Мундшенкская; 6. Лестница на все этажи; 7 и 8. Две проходные комнаты; 9. Парадная опочивальня; 10. Уборная; 11. Комната для камердинеров; 12. Опочивальня; 13. Будуар; 14. Кабинет; 15. Библиотека; 16. Лестница для хода Ея Величества; 17. Комната с антресолью, а в ней – печь-лежанка; 18. Спальня; 19 и 20. Две комнаты[33].
Сегодня только малая часть из покоев Екатерины II сохранила очертания 1790-х гг. Многочисленные перепланировки в последующие годы исказили облик и «географию» покоев императрицы. Например, нынешний Александровский зал занимали парадные комнаты: Совет, Сержантская, «где Гвардии Ундер афицеров», и Кавалергардская (б. Кавалерская), обращенная окнами на Дворцовую площадь. За ней шла Тронная Екатерины II с залом для аудиенций, Кавалерская с эркером-фонариком, выходящая на площадь (№ 280) и подробно описанная нами Бриллиантовая комната (№ 279).
В личные покои Екатерины II можно было попасть с Дворцовой площади, поднявшись по Малой лестница. Эта лестница выходила к Столовой (№ 269). Сегодня на ее месте находится Комендантская лестница[34].
Известный историк М.И. Пыляев описывал эту часть Зимнего дворца следующим образом: «…взойдя на Малую лестницу, входили в комнату, где на случай скорейшего исполнения приказаний государыни стоял за ширмами для статс-секретарей письменный стол с чернильницей. Комната эта была окнами к Малому дворику[35]; из нея вход был в уборную[36]; окна последней комнаты были на Дворцовую площадь. Здесь стоял уборный стол, отсюда были две двери: одна направо, в бриллиантовую комнату, а другая налево, в спальню[37], где государыня обыкновенно в последние годы слушала дела. Из спальни прямо выходили во внутреннюю уборную[38], а налево – в кабинет[39] и зеркальную комнату[40], из которой один ход в нижние покои, а другой прямо через галерею в так называемый „Ближний дом“[41]; здесь государыня жила иногда весною…»[42].
За упомянутым Пыляевым Зеркальным кабинетом окнами на Малый дворик помещались две комнаты камер-юнгферы Екатерины II Марии Саввишны Перекусихиной (№ 263–264).
На антресолях первого этажа с 1763 г. находилась уже упоминавшаяся мыльня, построенная под руководством архитектора Ж.-Б. Валлен-Деламота и включавшая три помещения. По описаниям 1790-х гг., в банный комплекс входили: Купальня (№ 272); под ризницей Большой церкви (№ 701) находилась Уборная и непосредственно под алтарем – обширная Баня с бассейном. Баня, или мыльня, была обита «столярством» (липовыми деревянными панелями) от пола до потолка. В обитую сукном палевого цвета Купальню можно было спуститься по небольшой деревянной лесенке из личных покоев императрицы. Эти помещения тоже выходили окнами на Дворцовую площадь и Миллионную улицу[43]. Отдельно были расположены «вмазанные котлы для нагревания воды» и резервуар для холодной воды[44]. Там же, на антресолях, находился кабинет со спальней для графа Орлова, а позже жили и последующие фавориты.
Личные покои Екатерины II были буквально пронизаны небольшими лесенками. В том числе и потайными. Такой потайной деревянной лесенкой антресоли сообщались с Библиотекой (с 1764 по 1776 г.)[45]. Потайную лесенку оформили под библиотечный шкаф красного дерева так, что одна из створок шкафа служила дверью, через которую можно было пройти на лесенку и подняться на антресоли. Заметим, что в начале правления Екатерины II это не было игрой. Потайная лесенка, и, вероятнее всего, не единственная, могла очень пригодиться в эпоху дворцовых переворотов.
С антресолями Екатерины II связана очень важная страница жизни Зимнего дворца. Сегодня общепризнанным считается, что современный Государственный Эрмитаж, буквально «набитый» сокровищами всех времен и народов, «вырос» из скромных антресолей Екатерины II. Это были четыре небольшие, выходящие окнами на восток комнаты, тогда они назывались Зелеными антресолями. Именно в эти комнаты поступали различные предметы, собирательством которых императрица увлекалась в те или иные времена своей жизни. Сначала эта коллекция редкостей не носила систематизированного характера. Однако по мере разрастания коллекций императрицы на антресолях остались только вещи восточного происхождения, и антресоли стали называть Китайскими. Часто императрица использовала антресоли для обедов в кругу близких людей. В этих помещениях изысканно сочетались уют, экзотика и роскошь. Императрице нравился такой антураж.
Эти исторические антресоли просуществовали вплоть до пожара Зимнего дворца в декабре 1837 г. Признавая их историческое значение, антресоли тогда не только не трогали, но и периодически ремонтировали. Причем ремонтировали с сохранением исторических интерьеров. Об этом свидетельствует записка вице-президента Гоф-интендантской конторы графа П.И. Кутайсова, датированная началом 1833 г. Тогда Кутайсов писал Николаю I: «Все прочее подверглось влияниям моды, кроме Китайских антресолей времен новейших, но напоминающих эпоху царствования Екатерины II, столь славную для России. Совершенно будучи уверен, что сохранение сих памятников полезно как для истории, так и для археологии, я имею честь представить о возобновлении нынешним временем сих комнат. Сие тем более кажется мне удобным, что Камерцал-мейстерская весьма богата отличными Китайскими произведениями, лежащими там без всякого употребления несколько десятков лет и бесполезно подвергающихся порче…»
Николай I одобрил предложение П.И. Кутайсова. Реставрация Китайских антресолей Екатерины II продолжалась с 1833 по 1835 г. под руководством архитектора Л.И. Шарлеманя 2-го. Однако после пожара 1837 г., в котором антресоли погибли, эти помещения восстанавливать не стали[46].
Глинка В.М., Денисов Ю.М., Иогансен М.В. и др. Эрмитаж. История строительства и архитектура зданий / Под ред. Б.Б. Пиотровского. Л., 1989. С. 142.
Зал № 266.
Зал № 278.
Зал № 277.
Глинка В.М., Денисов Ю.М., Иогансен М.В. и др. Эрмитаж. История строительства и архитектура зданий / Под ред. Б.Б Пиотровского. Л., 1989. С. 141.
РГИА. Ф. 475. Оп. 2. Д. 186. Л. 49–50. Выписки из дел разных фондов о Зимнем дворце и Эрмитаже, сделанные по распоряжению начальника Петроградского Дворцового управления для издания «Истории Зимнего дворца». 1903. Ч. 1.
Будуар. Зал № 276.
Зал № 275.
Залы № 273–274.
Позже на месте Библиотеки устроили Зеркальный кабинет.
Глинка В.М., Денисов Ю.М., Иогансен М.В. и др. Эрмитаж. История строительства и архитектура зданий / Под ред. Б.Б. Пиотровского. Л., 1989. С. 144.
Южный павильон Малого Эрмитажа.
Пыляев М.И. Старый Петербург. СПб., 1889. С. 192–194.
Глинка В.М., Денисов Ю.М., Иогансен М.В. и др. Эрмитаж. История строительства и архитектура зданий / Под ред. Б.Б. Пиотровского. Л., 1989. С. 142.
Комелова Г.Н. Апартаменты Екатерины II в Зимнем дворце // Зимний дворец. Очерки жизни императорской резиденции. Т. 1. XVIII – первая треть XIX в. СПб., 2000. С. 52.
Покои императора Павла I
Павел I прожил в Зимнем дворце все свое детство и юность. Став императором, он вернулся в Зимний дворец в ноябре 1796 г., тотчас после удара, постигшего императрицу Екатерину II. Во дворце Павел I, уже как император, прожил четыре года – с конца 1796 по начало 1801 г. Вместе с ним в Зимний дворец переехала и его большая семья, поселившаяся в «своих» комнатах в западной части дворца.
Как известно, Павел I не терпел все то, что любила его мать. Это в полной мере распространялось и на Зимний дворец. Тем не менее, переселившись, император сразу же стал обустраивать Зимний дворец под себя. По словам Гавриила Державина, Зимний дворец моментально преобразился: «От появления гатчинских любимцев в Зимнем дворце тотчас все приняло другой вид, загремели шпоры, ботфорты, тесаки, и, будто по завоевании города, ворвались в покои везде военные люди с великим шумом»[47].
Торелли Стефано. Портрет великого князя Павла Петровича
Еще раз подчеркнем, что внешний облик дворца начал меняться буквально в самый момент восхождения Павла I на трон. Будущий министр Императорского двора князь П.М. Волконский, бывший в Зимнем дворце в ночь присяги новому императору, упоминает, что, «увидев ходящих близ средних ворот Зимнего дворца нескольких офицеров в мундирах нового покроя, пошел к ним из любопытства; каково же было мое удивление, видев самого наследника, в 2 часа ночи, в мундире л. – гв. Семеновского полка нового покроя, в Андреевской ленте и шарфе по кафтану, и с ним вновь назначенного С.-Петербургским комендантом генерал-майора Аракчеева, плац-майора Капцевича и плац-адъютанта Апрелева, расставлявших новые пестрые будки и часовых (курсив мой. – И. З.). Наследник, увидев меня, подошел тотчас ко мне, спросил мое имя и которого я полка; на мой ответ сказал, оборотясь к Аракчееву: „Это нашего полка“».[48] Очень характерен уровень персон, лично принимавших участие в столь ответственном расставлении «прусских» полосатых будок вокруг Зимнего дворца.
Павел I немедленно придал Зимнему дворцу столь привычные ему по Гатчине и Павловску внешние формы. Фасады дворца немедленно окружили полосатыми сторожевыми будками для часовых, изготовленными по присланному из Павловска образцу, сам же дворец было велено именовать Зимним замком. Император тяготел к рыцарской символике даже там, где ее изначально не было.
Через несколько дней в Петербург из Гатчины прибыли и сами «гатчинцы» – две-три тысячи выпестованных Павлом I офицеров и солдат: «По прибытии на площадь Зимнего дворца все сии войска прошли церемониальным маршем, тихим шагом, мимо императора, потом зашли во фронт в одну линию, где император Павел I сам изволил объявить им изустно, что они поступают в гвардию, назначив каждый батальон в который полк. Обер-офицеры поступали теми же чинами, а штаб-офицеры – полковниками в гвардию»[49].
Заняв трон, с февраля 1797 г. Павел I начал строительство своей новой резиденции – Михайловского замка. Слишком много тяжелого для Павла I было связано с Зимним дворцом. И хотя строительство Михайловского замка велось «стахановскими методами», но выехал из Зимнего дворца Павел I только 1 февраля 1801 г. В день святого архангела Михаила Павел I вместе с членами своей семьи и свитой начал церемониальное шествие от Зимнего дворца по направлению к замку.
Поскольку все финансовые ресурсы были направлены на строительство и отделку новой императорской резиденции, то крупных строительных работ в период с 1796 по 1800 г. в Зимнем дворце не велось. Затраты, конечно, имели место, но они представляли сущую мелочь по сравнению с теми деньгами, которые шли на строительство Михайловского замка.
При этом Павел I не скрывал своих планов буквально «ободрать» интерьеры Зимнего дворца, переместив его ценности на украшение столь желанного для него Михайловского замка. Сам же Зимний дворец Павел I хотел превратить в казарму. В этих намерениях можно не сомневаться, поскольку Павел I успел превратить в казарму Таврический дворец.
А. Бенуа. Парад при Павле I. 1907 г.
Строительные работы в Зимнем дворце параллельно с работами по строительству Михайловского замка возглавлял столь почитаемый Павлом I архитектор В.Ф. Бренна. Работы велись преимущественно в юго-восточной части дворца, т. е. там, где с 1762 г. находились личные покои Екатерины II. Эти покои Павел I по уже сложившейся традиции приказал переделать «под себя». Если считать Елизавету Петровну, планировавшую жить в этом углу дворца, то Павел I стал четвертым «первым лицом», поселившимся в юго-восточном ризалите.
Трепетно относившийся к памяти отца, а, скорее всего, в пику матери, Павел I приказал сохранить в неприкосновенности кабинет Петра III (№ 279), мемориальный характер которого подчеркивал парадный портрет императора Петра III в дорогой золоченой раме. От этого Кабинета начинались личные покои Павла I: Уборная (№ 278), Опочивальня (№ 277), Угловой кабинет (№ 276), Большой кабинет (№ 275), Библиотека (№ 273–274). Все эти покои выходили окнами на Миллионную улицу и Дворцовую площадь[50].
Наряду с личными покоями В.Ф. Бренна заново отделал парадную анфиладу, выходившую окнами на Большой двор Зимнего дворца. Парадная анфилада покоев Павла I включала: Тронный зал Павла I (№ 290–292), Овальный зал (№ 293–295), Тронный зал Марии Федоровны (№ 296) и Аванзал (№ 297, № 298 – южная часть, № 288 – северная часть).
В октябре 1798 г. в этих покоях Павел I принял титул великого магистра Мальтийского ордена. В результате Зимний дворец украсился соответствующей символикой – над большими воротами дворца укрепили герб св. Иоанна Иерусалимского.
План 2-го этажа Зимнего дворца с указанием залов, в которых находились покои Павла
Изменились и привычные названия некоторых помещений на императорской половине. Так, Генерал-адъютантская с эркером-фонариком (№ 280) стала называться Кавалерской, поскольку при Павле I предназначалась для официальных приемов кавалеров рыцарского Мальтийского ордена, а соседнюю с ней Столовую (№ 281) преобразовали в Тронную, стены которой обтянули желтым бархатом. Тогда же Бренна построил лестницу, соединившую все три этажа юговосточной части Зимнего дворца[51].
Павел I, получив в подарок от матери Гатчину в 1783 г., выехал из Зимнего дворца в середине 1780-х гг. По воцарении в 1796 г. он начал строительство Михайловского замка, внутренне давно «списав» для себя Зимний дворец. Многие вещи из личных покоев императорской четы в Зимнем дворце переехали в Михайловский замок, и целостность образа, созданного Бренной, была безвозвратно утрачена. В Зимний дворец Павел I больше не вернулся.
Николай I, вспоминая свое раннее детство, писал, что в Михайловском замке «всем было очень скверно, и каждый сожалел о своем прежнем помещении, всюду слышались сожаления о старом Зимнем дворце. Само собою разумеется, что все это говорилось шепотом и между собою, но детские уши часто умеют слышать то, чего им знать не следует, и слышат лучше, чем это предполагают. Я помню, что тогда говорили об отводе Зимнего дворца под казарму; это возмущало нас, детей, более всего на свете».
Цит. по: Глинка В.М., Денисов Ю.М., Иогансен М.В. и др. Эрмитаж. История строительства и архитектура зданий / Под ред. Б.Б. Пиотровского. Л., 1989. С. 145.
Рассказы князя П.М. Волконского, записанные с его слов А.В. Висковатовым в январе 1845 г. // Русская старина. 1876. Т. 16. № 5. С. 177.
Рассказы князя П.М. Волконского, записанные с его слов А.В. Висковатовым в январе 1845 г. // Русская старина. 1876. Т. 16. № 5. С. 178.
Глинка В.М., Денисов Ю.М., Иогансен М.В. и др. Эрмитаж. История строительства и архитектура зданий / Под ред. Б.Б. Пиотровского. Л., 1989. С. 147.
Глинка В.М., Денисов Ю.М., Иогансен М.В. и др. Эрмитаж. История строительства и архитектура зданий / Под ред. Б.Б. Пиотровского. Л., 1989. С. 148.
Юго-восточный ризалит при императоре Александре I
После гибели императора Павла I в Михайловском замке от рук заговорщиков в марте 1801 г. молодой император Александр I немедленно вернулся в Зимний дворец. При нем все должно было стать, «как при бабушке». В том числе Зимнему дворцу возвращался статус главной императорской резиденции. Особо отметим, что молодой император сломал уже устоявшуюся традицию, отказавшись поселиться в покоях юго-восточного ризалита. Он вновь вернулся в свои комнаты, расположенные вдоль западного фасада Зимнего дворца, окнами на Адмиралтейство. Для Александра I первый год правления не был простым, и селиться в покоях отца, на убийство которого он дал карт-бланш заговорщикам, император, видимо, просто не мог. Психологический фактор возобладал над традицией и политической целесообразностью.
В результате помещения второго этажа юго-восточного ризалита, изначально предназначенные для царствующих лиц, с 1801 г. навсегда утратили значение внутренних покоев главной половины.
Довольно долго комнаты Павла I стояли пустыми. Их время от времени занимали гости, останавливавшиеся в Зимнем дворце. За эти годы покои убитого императора обветшали, что было несовместимо с их статусом покоев «первых лиц».
Ремонтировать покои Павла I в юго-восточной части Зимнего дворца начали в 1818 г., накануне приезда в Россию короля Пруссии Фридриха-Вильгельма III. Тогда предполагалось «возобновить без потери времени» комнаты, «начиная с половины Государыни Императрицы Марии Федоровны и до самого Эрмитажа по фасаду на плац». Курировал строительные работы министр финансов А. Гурьин, а ответственным за их выполнение назначили «коллежского советника Росси». Именно его «рисунки и назначения» определили все дизайнерские решения, реализованные в ходе ремонта[52].
К.И. Росси провел капитальный ремонт в Шпалерной, Большой столовой, Фонарной, Кавалерской, Большой гостиной, Туалетной, Опочивальне, Угольном кабинете, Большом кабинете и Библиотеке. Например, в Шпалерной комнате предполагалось: «Плафон расписать вновь; Печи, лепную работу исправить починкою; Двери в резной золоченой раме починить; Паркет дубовый тож; Занавеси, шторы вновь; Шпалеры, обои вычистить, а ежели оные не будут чисты, то поставить новые; Около оных обоев обнести вокруг малиновым бархатом; Между окон три новые зеркала; Мебель и трюмо исправить починкою; Люстр бронзовых новых две».
М.-Г. Лори. Вид на Зимний дворец со стороны Невского проспекта. 1804 г.
В уютном Фонарике над Комендантским подъездом (в документах – «Фонарная») предполагалось: «Штукатурную лепную работу сделать вновь; Плафон и стены расписать вновь; Рамы зимние и летние сделать вновь с прибором и цветными стеклами; Печи и камины переделать вновь; В четырех углах подобрать новые зеркала с рамами; Сделать новый паркет; Серебряную люстру вычистить»[53].
Э.П. Гау. Фонарик в Зимнем дворце. 1870 г.
В.Л. Боровиковский. Портрет императора Александра I
После ремонта Кавалерскую и Эркер-Фонарик, наполненный светом и воздухом, соединили, сделав едиными. Два венецианских окна и такую же дверь на балкон прикрывали прозрачные шторы. Угловые простенки декорировали составными зеркалами от пола до потолка, расписанного «под лепную работу с фигурами». Общий колорит Фонарика решили в небесно-голубых тонах. Именно в Фонарике прусский король устраивал небольшие семейные ужины, на которых «одне только дамы сидели, а мужчины ужинали стоя». Из переделок этого времени упомянем и то, что мемориальный кабинет Петра III превратился в Гостиную (№ 279). С этого времени комнаты в этой части Зимнего дворца стали официально называть «прусско-королевскими комнатами» и на их отделку в 1818 г. потратили порядка 500 тыс. руб. Одновременно с этим ремонтом перестроили Мыльню Екатерины II и «поправили» ее Китайские антресоли[54].
Вторая запасная половина Зимнего дворца
К 1870-м гг. «прусско-королевские комнаты» стали официально именоваться Второй запасной половиной Зимнего дворца. Эта половина находилась на втором этаже Зимнего дворца, начинаясь от Александровского зала и продолжаясь до перехода в Малый Эрмитаж.
Помещения Второй запасной половины сформировались на месте бывших покоев императрицы Екатерины II в юго-восточном ризалите, отделяясь от Первой запасной половины Александровским залом (остальную часть ризалита занимала Большая церковь). В плане эта половина состояла из двух перпендикулярных анфилад, выходящих окнами на Дворцовую площадь и на Миллионную улицу, помещения которых по-разному соединялись с комнатами, выходящими во двор.
Э.П. Гау. Вторая запасная половина. Первый зал. 1869 г.
Вторая Запасная половина включала в себя следующие помещения: Зал, или Приемную (Зала перед Фонариком – № 280); Гостиную, Малый кабинет, Спальню, Будуар, Большой кабинет и Камердинерскую (7 помещений). Надворную часть половины занимали служебные помещения: коридоры, камердинерские, буфет и ванная[55].
В разные годы состав помещений, входивших во Вторую запасную половину, незначительно менялся. Так, в середине 1870-х гг. Вторая запасная половина включала: Столовую, Гостиную, Кабинет, Опочивальню, Приемную комнату и Угловой кабинет (6 помещений).
Впрочем, был период, когда в этих комнатах некоторое время жили сыновья Александра II. В начале 1850-х гг., когда подросли дети цесаревича Александра Николаевича, их разместили в комнатах Второй запасной половины Зимнего дворца. От комнат родителей их отделяли комнаты всего южного фасада Зимнего дворца. Такое впечатление, что детей, вступавших в переходный возраст, буквально «отселили» на противоположную сторону Зимнего дворца, как можно дальше от родителей.
Э.П. Гау. Вторая запасная половина. Второй зал. 1870 г.
Эти помещения тогда предназначались, прежде всего, для старшего сына цесаревича – великого князя Николая Александровича, который должен был стать Николаем II, а пока родители звали его просто Никсой. Тогда никто и не предполагал, что подросший мальчик умрет от тяжелой болезни в апреле 1865 г.
С 1853 г. в комнаты Второй запасной половины перевели и младших братьев Никсы – Александра (будущего Александра III) и Владимира. По этому случаю в комнатах провели ремонт, реализуя новые интерьерные решения. В эту работу по переделке интерьеров активно вмешивалась цесаревна Мария Александровна.
Во второй половине 1860-х гг., когда старшие мальчики Александра II подросли, они съехали из этих комнат, начав свою жизнь. Так, цесаревич Александр Александрович, женившись, с 1866 г. поселился в Аничковом дворце.
В период Первой русской революции (1905–1907 гг.) в комнатах Второй запасной половины прятали сановников «первого уровня», спасая их от бомб эсеровских террористов.
Э.П. Гау. Вторая запасная половина. Гостиная. 1869 г.
Сначала весной 1905 г. в комнатах Второй запасной половины некоторое время жил генерал-губернатор Санкт-Петербурга Д.Ф. Трепов. Это решение принял лично Николай II, рассчитывая, что хорошо охранявшийся Зимний дворец убережет генерал-губернатора от возможного террористического акта. Однако вскоре Николай II выразил желание, «чтобы ныне занятое <…> Треповым помещение в Зимнем дворце было очищено»[56]. Для Д.Ф. Трепова и его канцелярии сняли особняк, и он съехал из комнат Второй запасной половины.
Затем осенью 1905 г. в комнатах Второй запасной половины поселили премьер-министра П.А. Столыпина с семьей. Это произошло после того, как террористы взорвали его дачу на Аптекарском острове.
Дочь П.А. Столыпина вспоминала: «Государь предложил папа переселиться в Зимний дворец, где гораздо легче было организовать охрану. Аде и Наташе были отведены громадные светлые комнаты, и между ними была устроена операционная. Наташина комната была спальной Екатерины Великой.
Э.П. Гау. Вторая запасная половина. Малый кабинет. 1869 г.
Скоро обоих наших раненых перевезли во дворец, и Наташина комната наполнилась цветами, подарками, конфетами, а немного спустя, и гостями. Как ни казалась мне жизнь на Аптекарском мало свободной, но что это было по сравнению с Зимним дворцом. Всюду были часовые, и мы положительно чувствовали себя как в тюрьме.
Когда мы еще жили на Аптекарском, вздумали мы с Марусей поехать посмотреть Зимний дворец. У нас спросили письменное разрешение, какового у нас не было, и хотя мы сказали, кто мы и приехали на казенных лошадях с министерским кучером и выездным лакеем, нас не впустили. Часто потом, живя в этой почти что крепости, вспоминали мы этот случай…»
Э.П. Гау. Вторая запасная половина. Спальня. 1874 г.
Сестер пускали бегать в сады: один внизу большой, а другой во втором этаже, где росла целая аллея довольно больших лип. Но дети с первого же дня возненавидели эти сады и прозвали их: «Gross Sibirien» и «Klein Sibirien».
«Папá, для которого жизнь без моциона была бы равносильна при его работе лишению здоровья, гулял по крыше дворца, где были устроены удобные ходы, или по залам. Кабинет, уборная папá, спальная моих родителей, всё это было устроено не по их выбору, а по соображениям и распоряжениям охраны. Мой отец беспрекословно всему подчинялся – кажется, в это время он мало и замечал, что творится вне его работы и семьи. Слишком велико было усилие воли, требуемое на то, чтобы, переживая то, что он переживал, исполнять всю гигантскую работу, лежащую на его плечах.
Часто, когда мои родители гуляли после обеда по залам дворца, ходили и мы туда же. Грустный и жуткий вид являли эти залы, освещенные каждая одной лишь дежурной лампочкой. В этом полумраке казались они еще громаднее, чем днем, еще таинственнее говорили их стены о днях блеска, пышности и величия. Днях, когда никакое посягательство на самодержавие не колебало трона русских царей.
П.А. Столыпин со своей семьей. 1907 г.
Строгой и стройной анфиладой тянулись зала за залой, гостиная за гостиной. Гордо и уверенно глядели со стен портреты императоров, и таинственно блестела в полумраке позолота рам, мебели и люстр. А в тронном зале покрытый чехлом трон навевал тяжелые думы.
Странно – сильна и крепка была еще монархия, на недосягаемой высоте, окруженный ореолом вековой славы возглавлял Россию ее император; революция притихла, припала к земле, примолкла… а вместе с тем какое-то инстинктивное чувство сжимало грудь в этом огромном дворце, никогда больше не оживавшем, не видящем теперь ни нарядных балов, ни приемов, будто забытом всей царской семьей. Одни дежурные лакеи лениво шаркали по пустым залам и оживлялись лишь, когда начнешь их расспрашивать про былые дни величия и славы.
Из моей спальни был прямо вход в Эрмитаж, и после дежурства у Наташи, особенно тяжелого, когда она бредила, было огромным наслаждением выйти из нашего окруженного часовыми помещения и отдохнуть душой среди творений великих мастеров»[57].
РГИА. Ф. 472. Оп. 40 (194/2682). Д. 79. Л. 10. О Свите генерал-майора Д.Ф. Трепова. 1905.
Бок М.П. Воспоминания о моем отце П.А. Столыпине. Нью-Йорк. 1953. С. 191–192. Электронная версия.
РГИА. 468. Оп. 35. Д. 492. Л. 4. Высочайшие повеления, описи, чертежи и рисунки из дел бывших Строительных комиссий с 1817 по 1820 г.
РГИА. 468. Оп. 35. Д. 492. Л. 6. Высочайшие повеления, описи, чертежи и рисунки из дел бывших Строительных комиссий с 1817 по 1820 г.
Глинка В.М., Денисов Ю.М., Иогансен М.В. и др. Эрмитаж. История строительства и архитектура зданий / Под ред. Б.Б. Пиотровского. Л., 1989. С. 153.
Глинка В.М., Денисов Ю.М., Иогансен М.В. и др. Эрмитаж. История строительства и архитектура зданий // Под ред. Б.Б. Пиотровского. Л., 1989. С. 272.
Южный фасад Зимнего дворца
Половина императрицы Марии Федоровны
Идя вдоль фасадов Зимнего дворца, проследуем от Миллионной улицы мимо фасада, обращенного к Дворцовой площади. Если посмотреть на второй этаж дворца, то залы, окна которых расположены справа и слева от главных ворот, и составляли половину императрицы Марии Федоровны. Покои вдоль фасада, окнами на Дворцовую площадь, Марии Федоровне отвел еще Павел I в 1797 г. Эту «территорию» Мария Федоровна занимала вплоть до своей кончины в 1828 г. Анфиладу покоев замыкала Бриллиантовая комната (№ 283), традиционно находившаяся рядом со спальней императрицы.
Умная, честолюбивая и волевая супруга Павла I в марте 1801 г. пыталась даже перехватить рычаги власти после трагической гибели супруга. Затем в период своего вдовства она сумела сформировать структуру, получившую впоследствии именование «Ведомства императрицы Марии Федоровны», занимавшуюся призрением, образованием, оказанием медицинской помощи представителям различных сословий. За тридцать лет через покои императрицы прошло множество людей, составивших славу России.
Ее сын, император Николай I, вспоминая свои детские годы, писал: «Одно из последних событий этой эпохи, воспоминание о котором будет для меня всегда драгоценным, это удивительное обстоятельство, при котором я познакомился со знаменитым Суворовым. Я находился в Зимнем дворце, в библиотеке моей матери, где увидел оригинальную фигуру, покрытую орденами, которых я не знал; эта личность меня поразила. Я его осыпал множеством вопросов по этому поводу; он стал передо мной на колени и имел терпение мне все показать и объяснить. Я видел его потом несколько раз во дворе дворца на парадах, следующим за моим отцом, который шел во главе Конной гвардии».
Покои императрицы Марии Федоровны сохраняли свой облик вплоть до 1827 г. Буквально за год до смерти вдовствующей императрицы на ее половине прошел масштабный ремонт. В этих работах, развернувшихся в 1827–1828 гг., принимали участие К.И. Росси и О.Р. Монферран. Причем начал их К.И. Росси, а затем руководство ими передали О.Р. Монферрану «по случаю, болезни» первого. Именно тогда на половине императрицы появилась ныне знаменитая Парадная, или Октябрьская, лестница[58].
Николай I, который только обживал Зимний дворец, регулярно посещал «строительную площадку» на половине своей матушки. Как водится, рабочих император «жаловал», а архитекторов и подрядчиков «строил». Например, 8 августа 1827 г. по устному повелению царя министр Императорского двора князь П.М. Волконский «препроводил 500 руб., высочайше пожалованных каменщикам на кашу»[59].
К. Кроноветтер. Императрица Мария Федоровна. 1828 г.
С другой стороны, «Государь Император, проходя переделываемые комнаты», изволить обратить внимание на «кривизну <…> в поставленных печах, а посему <…> арх. Монферрану» объявил «высочайшее примечание и рекомендовал почасту осматривать производимые работы личным вниманием и отвращать подобные неустройства». Более того, император прямо пригрозил архитекторам «строгой ответственностью, могущей повлечь вред их службе»[60].
Когда ремонтные работы на половине Марии Федоровны подошли к концу, пришло время оформлять дворцовые интерьеры. Для этого требовались предметы определенного уровня и ценового диапазона. Видимо, тогда их в запасе не имелось, а выписывать из-за границы было очень долго. Поэтому для решения «интерьерной проблемы», с санкции Николая Павловича прибегли, к закупкам «на вторичном рынке», у «физических лиц». Например, в феврале 1828 г. у графини М.Д. Нессельроде за 2500 руб. купили мозаичный столик. В марте 1828 г. у вдовы шталмейстера княгини Гагариной за 1000 руб. купили бронзовую люстру. И таких примеров в архивном деле достаточно много[61].
Архитектор К.И. Росси
Архитектор О. Монферран
Все работы на половине императрицы закончили в марте 1828 г. По итогам работ состоялись награждения: Мария Федоровна пожаловала 8 бриллиантовых перстней чиновникам, «находившимся у работ». О.Р. Монферран получил драгоценный подарок лично от министра Императорского двора, а архитектор Ф. Руска – орден Святого Владимира IV степени.
В марте 1828 г. покои императрицы Марии Федоровны закончили, а в ноябре этого же года она умерла, фактически не пожив в своих новых комнатах. Тогда Николай I принял решение об их консервации.
Поскольку в это время во дворце прошла серия больших ремонтов, затронувших разные помещения, архитектор В.П. Стасов в специальной записке (апрель 1828 г.) на имя министра Императорского двора кн. П.М. Волконского оговорил «стандартные» условия ухода за интерьерами в отремонтированных комнатах Зимнего дворца: «Для сохранения убранства в отдельных комнатах Его Императорского Величества в Зимнем дворце имею честь представить Вашему Сиятельству следующее…» Далее архитектор рекомендовал при отъезде 52 императорского семейства из Зимнего дворца снимать «все ковры с паркетов и лестниц… выколачивать их ежемесячно два раза в сухую погоду»; «паркеты же натирать не менее одного раза в неделю, ибо без сего подвергаются скорой порче, чернеют и теряют цвет». Стасов рекомендовал снимать «с окон подушки, обтянутые ковриками и материями», и также выбивать два раза в месяц, а всю мебель хранить «под чехлами в комнатах, выколачивая раз в неделю…». Все шелковые «обои и занавесы» рекомендовалось «покрывать чехлами, как и все бронзы и время от времени обметывая пыль и выколачивая чехлы»[62].
Е. Крендовский. Тронный зал императрицы Марии Федоровны в Зимнем дворце. 1835 г.
Как это ни странно, но после смерти императрицы Марии Федоровны в 1828 г. ее комнаты запустели так быстро, что это вызвало понятные претензии к хозяйственникам со стороны министра Императорского двора князя П.М. Волконского. В собственноручно написанной министром записке (25 сентября 1829 г.) указывалось, что на половине Марии Федоровны «многие двери не отпираются и не запираются, чехлов нет ни на стенах, ни на мебелях…». Впрочем, все претензии к этому и свелись. При этом Волконский счел необходимым пригрозить дворцовым хозяйственникам: «…в противном случае я вынужден буду принимать строгие меры…». Вместе с тем у министра имелись и конструктивные предложения: «…ежегодно в течение Великого поста главный смотритель дворца со своими чиновниками осматривал каждую комнату дворца <…> и вел бы по комнатам реестр, какое где потребно исправление…»[63].
Архитектор В.П. Стасов
Дж. Доу. Портрет князя П.М. Волконского
Распоряжение министра Двора приняли к исполнению. При этом текущие ремонты делались не только на половинах императорской семьи, но и в квартирах фрейлин. Как следует из рапорта Президента Гоф-интендантской Конторы, за лето 1832 г. сделали ремонт в комнатах фрейлины Дубенской («печная, живописная, столярная и малярная работы»); коменданта дворца Башуцкого («живописная и половая работы»); камер-фрау Клюгель («живописная и малярная работы») и лейб-медика Крейтона («живописная и малярная работы»)[64].
Именно по этой лестнице в ночь с 25 на 26 октября 1917 г. в Зимний дворец проникли большевики.
РГИА. Ф. 475. Оп. 2. Д. 187. Л. 303. Выписки из дел разных фондов о Зимнем дворце и Эрмитаже, сделанные по распоряжению начальника Петроградского Дворцового управления для издания «Истории Зимнего дворца». 1903. Ч. 2.
РГИА. Ф. 475. Оп. 2. Д. 187. Л. 303. Выписки из дел разных фондов о Зимнем дворце и Эрмитаже, сделанные по распоряжению начальника Петроградского Дворцового управления для издания «Истории Зимнего дворца». 1903. Ч. 2.
РГИА. Ф. 475. Оп. 2. Д. 187. Л. 309. Выписки из дел разных фондов о Зимнем дворце и Эрмитаже, сделанные по распоряжению начальника Петроградского Дворцового управления для издания «Истории Зимнего дворца». 1903. Ч. 2.
РГИА. Ф. 472. Оп. 1. Д. 235. Л. 1. О сохранении убранства в отдельных комнатах Его Императорского Величества в Зимнем дворце. 1827.
РГИА. Ф. 472. Оп. 1. Д. 723. Л. 1. О беспорядках, замеченных в комнатах Зимнего дворца, и о правилах при назначении исправлений в комнатах дворцовых зданий. 1829–1830.
РГИА. Ф. 472. Оп. 1. Д. 723. Л. 3. О беспорядках, замеченных в комнатах Зимнего дворца, и о правилах при назначении исправлений в комнатах дворцовых зданий. 1829–1830.
Первая Запасная половина Зимнего дворца
После смерти Марии Федоровны на месте ее покоев сформировалась Первая запасная половина, состоявшая из двух параллельных анфилад, проходивших в средней части южного фасада Зимнего дворца. Это была самая большая из дворцовых половин, простиравшаяся по второму этажу от Белого до Александровского зала. Первая анфилада выходила окнами на Дворцовую площадь – в ней располагались парадные залы. Вторая анфилада, окнами на Большой двор, простиралась от надворной части югозападного ризалита до Малого Фельдмаршальского зала, через который можно было выйти к покоям императорской семьи.
Великая княгиня Мария Николаевна и Максимилиан Лейхтенбергский
Хотя анфилада сразу же проектировалась и отделывалась как «запасная», но после «введения в строй» Зимнего дворца в 1839 г. там сразу же поселились временные жильцы. Это были молодые супруги – старшая дочь Николая I, великая княгиня Мария Николаевна, и ее муж, герцог Лейхтенбергский. Они прожили на этой половине почти пять лет: с июля 1839 г. и до завершения строительства Мариинского дворца в 1844 г.[65] В последующие годы там также проживали «запасные» жильцы.
Судя по «Плану Второй запасной половины», там были устроены следующие помещения (от юго-западного ризалита, названия помещений приведены по плану): Уборная принца; Большой кабинет; Малая гостиная; Большая гостиная; Гостиная принца, перед Кабинетом принца; Кабинет принца; Уборная; Камердинерская; Гардероб и далее шел Александровский зал[66].
Э.П. Гау. Первая запасная половина. Большой салон великой княгини Марии Николаевны и герцога М. Лейхтенбергского. 1866 г.
Э.П. Гау. Первая запасная половина. Желтый салон великой княгини Марии Николаевны. 1866 г.
Э.П. Гау. Первая запасная половина. Гостиная герцога М. Лейхтенбергского. 1868 г.
Э.П. Гау. Первая запасная половина. Малый кабинет великой княгини Марии Николаевны. 1867 г.
Э.П. Гау. Первая запасная половина. Спальня великой княгини Марии Николаевны. 1867 г.
Э.П. Гау. Первая запасная половина. Туалетная великой княгини Марии Николаевны. 1867 г.
