автордың кітабын онлайн тегін оқу Анатомия призраков
Andrew Taylor
THE ANATOMY OF GHOSTS
Copyright © 2011 Lydmouth Ltd.
All rights reserved
Перевод с английского Александры Килановой
Оформление обложки Ильи Кучмы
Карта выполнена Юлией Каташинской
Тейлор Э.
Анатомия призраков : роман / Эндрю Тейлор ; пер. с англ. А. Килановой. — СПб. : Азбука, Азбука-Аттикус, 2024. — (The Big Book).
ISBN 978-5-389-26097-9
Кембридж, конец XVIII века. Отчаянно пытаясь спасти репутацию своего сына Фрэнка, студента, который тронулся рассудком, увидев призрак умершей женщины в университетском саду, патронесса колледжа нанимает для частного расследования Джона Холдсворта, автора популярной книги о привидениях. Оказавшись в стенах Кембриджа, Холдсворт обнаруживает, что потусторонние силы не так уж виноваты в помешательстве Фрэнка, хотя дело тут и впрямь нечисто. Как выяснилось, тот был участником элитного тайного общества с особыми ритуалами...
© А. С. Киланова, перевод, 2013
© Издание на русском языке, оформление. ООО «Издательская Группа „Азбука-Аттикус“», 2024
Издательство Азбука®
Памяти Дона
Поразительно, но за пять тысяч лет, прошедших после Сотворения мира, так и не удалось решить, можно ли считать доказанным хотя бы один случай явления духа человека после смерти. Все факты свидетельствуют против этого, но вера говорит нам: «Да».
Д-р Джонсон, 31 марта 1778 года
Джеймс Босуэлл. Жизнь Сэмюэла Джонсона
ГЛАВА 1
Поздним вечером 16 февраля 1786 года Тайная вечеря близилась к концу. Новый апостол принес клятвы, расписался в книге членов и под аккомпанемент гиканья, аплодисментов и свиста проглотил содержимое священного бокала, дара покойного Мортона Фростуика. Настало время тостов, предшествовавших грандиозной кульминации церемонии.
— Пьем до дна, джентльмены, — приказал Иисус, сидевший во главе стола. — Всем встать! Здоровье его королевского величества!
Апостолы, шаркая, встали; многие не без труда. Четыре стула упали, и кто-то уронил бутылку со стола.
Иисус поднял бокал:
— За короля, благослови его Боже!
— За короля, благослови его Боже! — промычал хор голосов, поскольку апостолы гордились патриотизмом и преданностью трону.
Все осушили бокалы.
— Благослови его Боже! — повторил святой Матфей в дальнем конце стола и завершил страстную проповедь икотой.
Иисус и апостолы сели, и гул беседы возобновился. Длинная комната с высокими потолками была залита светом свечей. Над столом висела изменчивая пелена дыма. Под мраморной каминной доской пылал яркий огонь. Занавеси были задернуты. Зеркала между окнами отражали языки пламени, сверкание серебра и хрусталя и блеск пуговиц. Все апостолы носили одинаковую ливрею — ярко-зеленые сюртуки, отороченные буланым шелком и украшенные выпуклыми позолоченными пуговицами спереди и на обшлагах.
— Долго мне еще ждать? — спросил юноша по правую руку от Иисуса.
— Терпение, Фрэнк. Всему свое время.
Иисус возвысил голос:
— Наполните бокалы, джентльмены!
Он налил вино в бокал соседа и свой, наблюдая, как остальные мужчины повинуются ему, подобно овцам.
— Еще один тост, — пробормотал он на ухо Фрэнку. — Потом — церемония. А после — жертвоприношение.
— Умоляю, ответьте. — Фрэнк положил локоть на стол и повернулся к Иисусу. — Миссис Уичкот знает, что меня сегодня канонизируют?
— А почему вы спрашиваете?
Лицо Фрэнка густо покраснело.
— Я... просто интересуюсь. Подумал, может быть, она знает, ведь мне предстоит провести здесь всю ночь.
— Она не знает, — ответил Иисус. — Она ничего не знает. И вы не должны ей ничего говорить. Это не женское дело.
— Да, конечно. Напрасно я спросил. — Локоть Фрэнка соскользнул, и он упал бы со стула, не поддержи его Иисус. — Тысяча извинений. Ну и везунчик же вы, знаете ли! Она просто прелесть... черт побери, только не обижайтесь, Филип, мне не следовало этого говорить.
— Я не слушал. — Иисус встал, не обращая внимания на желание Фрэнка продолжить приносить извинения. — Джентльмены, настало время для очередного тоста. Всем встать! Будь проклята великая блудница вавилонская, его низейшество папа римский Пий Шестой, да гниет он вечно в аду со своими присными папистами!
Апостолы осушили бокалы и разразились аплодисментами. Тост был традиционным и уходил корнями к самым истокам клуба Святого Духа. Сам Иисус враждебности к папистам не питал. По правде говоря, его собственная мать была воспитана в лоне Римско-католической церкви, хотя и отказалась от родного вероисповедания, обвенчавшись, и приняла вероисповедание мужа, как и подобает доброй жене.
Иисус подождал, пока хлопки и возгласы стихнут.
— Садитесь, джентльмены.
Стулья заскребли по полированным половицам. Святой Иаков опустился на самый краешек стула и неизбежно растянулся на полу. Святой Иоанн метнулся за ширму в дальнем конце комнаты, где, судя по звукам, его вывернуло наизнанку. Святой Фома отвернулся от общества, расстегнул штаны и помочился в один из передвижных стульчаков, удобно расположенный по соседству.
В дверь за спиной Иисуса осторожно постучали. Услышал только Иисус. Он встал и приоткрыл дверь на несколько дюймов. На пороге стоял мальчик-слуга со свечой в руке и широко распахнутыми от страха глазами.
— Что еще? — рявкнул Иисус.
— Если ваша честь не против, леди внизу была бы вам крайне признательна за возможность перемолвиться с нею словечком.
Иисус захлопнул дверь перед носом мальчишки. Улыбаясь, он профланировал обратно к столу, положил руку на спинку стула святого Петра, сидевшего слева от него, наклонился и зашептал на ухо:
— Я скоро вернусь... надо проверить, все ли готово. Если начнут проявлять нетерпение, велите им пить за здоровье любовниц.
— Уже пора? — спросил Фрэнк. — Пора?
— Почти, — ответил Иисус. — Не сомневайтесь, это стоит ожидания.
Он выпрямился. Святой Андрей задал Фрэнку вопрос о достоинствах водяных спаниелей в качестве подружейных собак, благодаря чему успешно завладел его вниманием, хотя и не надолго. Иисус вышел из комнаты, затворив за собой дверь красного дерева. Воздух сразу стал намного прохладнее. Он стоял на квадратной лестничной площадке, освещенной двумя свечами, горевшими на полочке рядом с незанавешенным оконцем. На мгновение Иисус приблизил голову к запотевшему стеклу и протер на нем кружок. Было слишком темно, чтобы многое разглядеть, но в дальнем конце сада мерцала лампа над боковой дверью Ламборн-хауса.
Он поспешно спустился. Павильон стоял в глубине сада. Его планировка была крайне проста: гостиная наверху занимала весь второй этаж; лестница в конце гостиной соединяла ее с прихожей на первом этаже, откуда выходили две двери. Одна вела наружу, в сад, другая — в узкий коридор, тянувшийся вдоль всего здания, из которого можно было проникнуть на крытую террасу у реки и в несколько маленьких комнат. Мальчик-слуга, носивший нелепое имя Огастес, сидел на скамейке в прихожей. Он немедленно вскочил и поклонился. Иисус кивнул, и мальчик открыл дверь в коридор. Иисус прошел мимо него, не удостоив ни словом, и захлопнул дверь перед его носом.
Свечи парами горели на полочках вдоль стен — шары света в сумраке. Иисус постучал во вторую по счету дверь, и она отворилась изнутри.
Миссис Фиар втащила его в комнату, встала на цыпочки и пробормотала ему на ухо:
— Маленькая неженка нас подвела.
Небольшая комнатка была выкрашена в белый цвет и напоминала тюремную камеру. Но в ней было довольно уютно, поскольку в камине рдел уголь, занавеси задернуты, а ставни закрыты. Комната была обставлена просто: узкая кровать с белым пологом, стол и два стула. На столе бутылка вина, бутылка фруктового ликера, два бокала и миска с орехами. На камине горела свеча, единственный источник света, не считая огня.
— Подвела? — переспросил Иисус.
— Сами посмотрите. — На миссис Фиар было монашеское одеяние с черным платом, который обрамлял и затенял ее лицо. — Поднесите свет.
Иисус взял свечу и подошел к кровати. Полог был подвязан. Девушка лежала на спине, ее светлые волосы разметались по подушке. Запястья и лодыжки привязаны белыми шнурами к четырем столбикам кровати. Белая ночная рубашка со свободным воротом. Наверное, при жизни она была красива, подумал Иисус, — из тех красавиц, что того и гляди разлетятся на мириады осколков, если сдавить их покрепче.
Он наклонился ниже. Она была совсем молоденькой... лет тринадцати или четырнадцати. Кожа от природы очень бледная, но щеки горели алым, почти пурпурным. Глаза открыты, а губы широко разошлись.
Он поднес свечу ближе. На губах виднелась пена, а в уголке рта — струйка рвоты. Глаза девушки вылезли из орбит.
— Черт побери...
— Такое расточительство, — сказала миссис Фиар. — К тому же я уверена, что она и вправду была девицей.
— Маленькая сучка. Уж не везет так не везет. Что случилось?
Женщина пожала плечами:
— Я подготовила ее для него. Пошла в дом, чтобы принести еще свечей, но перед этим она попросила положить ей в рот орешек-другой. А когда я вернулась... сами видите. Она еще теплая.
Иисус выпрямился, но взгляд его задержался на лице девушки.
— Похоже, ее кто-то задушил. — Он быстро огляделся по сторонам.
— Я заперла за собой дверь, — спокойно ответила миссис Фиар. — Она подавилась орехом, вот и все. Мальчик не выходил из прихожей и никого не видел. Ему можно доверять?
— Он всего лишь ребенок. Он ничего не слышал?
— Стены толстые.
Со свечой в руке Иисус принялся расхаживать по комнате. Миссис Фиар ждала, сложив руки и опустив глаза.
Он указал на потолок, на гостиную наверху:
— Я не могу себе позволить разочаровать Фрэнка Олдершоу. Только не его.
— Полагаю, в таком виде девица его не устроит?
— Что? Мертвая? — Он уставился на миссис Фиар.
— Я же сказала, она еще теплая.
— Ну конечно не устроит.
— А он заметит?
— Господь всемогущий, мэм, да... наверняка заметит. Он не настолько далеко зашел. К тому же для них все веселье — в борьбе. Поверьте, именно этим они потом хвастают навеселе. Этим, да еще кровью на простыне.
— А вы уверены, что тут никак не изловчиться?
Иисус покачал головой:
— Борьбу изобразить невозможно. Да еще с таким-то лицом. Уверяю вас, ничего не выйдет.
Миссис Фиар потеребила кайму своей накидки.
— И что, вы скажете ему подождать?
— Ему неймется, мэм. Он не привык, чтобы ему прекословили. Его пыл не остудить барнуэлловской шлюхой, даже подвернись она нам в такой час. Когда вы отыщете замену?
— Через месяц, быть может. И все равно мне придется нелегко. Это не скоро забудут.
— Он стоит больше всех остальных, вместе взятых. Но я не могу ему сказать, что она умерла. Придется объявить, что она испугалась предстоящего и растворилась в ночи.
— Есть еще одно затруднение, — заметила миссис Фиар. — Что нам делать с... этим?
Иисус обернулся и снова посмотрел на белое тело на белой кровати.
Внезапно время помчалось вскачь. События принялись наступать друг другу на пятки в беспорядочной спешке. Снаружи раздались громкий голос и шаги. Ручка двери повернулась. Иисус рванулся к двери, чтобы удержать ее закрытой, но путь ему преградила кровать и мертвая девушка. Миссис Фиар с поразительной скоростью повернулась к источнику звука, но ее юбка зацепилась за угол стола, и дверь уже распахнулась, прежде чем она успела освободиться.
Фрэнк Олдершоу покачивался на пороге. Лицо его было красным, жилет — расстегнут.
— А, вот вы где, Филип, — произнес он. — Я весь горю, ей-богу, не могу больше ждать.
Он заметил миссис Фиар, и ее неожиданное присутствие заставило его запнуться. Но он был слишком пьян, чтобы вовремя остановиться, и договорил умирающим шепотом:
— Ну и где же вы спрятали мою сладкую невинную крошку?
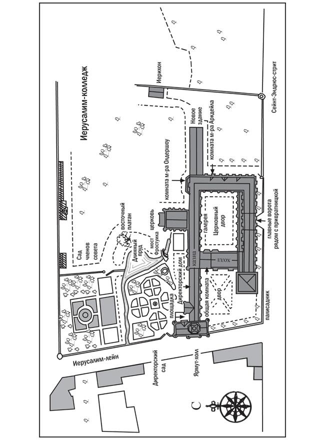
Тело было найдено в Иерусалим-колледже утром в пятницу, 17 февраля. Солнце еще только вставало. Сады колледжа были погружены в серый полумрак, который позволял различать общие очертания предметов, но скрывал подробности.
Мужчину, обнаружившего тело, звали Джон Флойд. Но все — порой даже собственная жена — именовали его Том Говнарь. Он был таким же бурым, как его прозвание, искатель ненужных безделушек, выброшенных воспоминаний и извергнутых секретов.
Колледж занимал восемь или девять акров земли. С трех сторон его окружала высокая кирпичная стена на средневековом фундаменте из бутового и тесаного камня, с четвертой — основные здания. Стены были увенчаны рядами шипов. Длинный пруд позади часовни изгибался к юго-востоку. Его питал ручей, который монахи много лет назад пропустили под стенами, задолго до того, как возникла сама мысль о Иерусалим-колледже. На дальней стороне пруда были разбиты Сад членов совета и Директорский сад. Бо́льшая часть города располагалась на некотором отдалении от беспорядочного нагромождения зданий колледжа.
Тишину нарушал лишь топот деревянных паттенов [1] Тома, надетых поверх башмаков, да перестук обитых железом колес его тачки по мощенной плитами дорожке. Он посещал четыре колледжа: Иисуса, Сидни Сассекс, Иерусалима и Эммануила. Предпочитал трудиться зимой, поскольку ему платили за объем, а не время, а летом запах вынуждал его наносить визиты чаще. Том работал на отставного хлеботорговца, которого студенты называли торговцем дерьмом. Его хозяин извлекал скромный доход из продажи ученого навоза земледельцам и садоводам.
Этим утром Том успел так замерзнуть, что почти не чувствовал рук. Он только что опустошил уборную директора, что всегда было не самым приятным делом, и покатил тачку по мощеной дорожке вдоль задворок Директорского дома, оказавшегося на удивление продуктивным. Дорожка вела к калитке, которую главный привратник, мистер Мепал, только что отпер для Тома, а затем пересекала Длинный пруд по замысловатому деревянному мостику. Колеса тачки грохотали по деревянным планкам, как приглушенный гром. Том повернул налево к маленькой кабинке для служительниц-уборщиц, которая скромно приткнулась на дальней стороне садов колледжа.
Тропинка бежала рядом с прудом в тени огромного дерева. В сгустившемся мраке под ветвями Том поскользнулся на замерзшей луже. Он упал, растянувшись на камнях во весь рост. Тачка перевернулась на покрытую инеем траву и вывалила на берег по меньшей мере половину своего вонючего груза. Лопата, которая балансировала на верху кучи, соскользнула в воду.
Задыхаясь от холода, Том выправил тележку. Ему придется по возможности убрать грязь и надеяться на чудо — что дождь смоет остальное, прежде чем кто-либо заметит. Но лопата утонула в пруду, а без нее он ничего не мог поделать. Несомненно, вода у берега не слишком глубокая? Он снял свое коричневое пальто, закатал рукава рубашки выше тощих заостренных локтей и уже собирался погрузить руку в воду, когда заметил большой темный предмет, который плавал среди осколков тонкого льда в ярде или двух от берега.
Сначала Том решил, что в пруд упала простыня или рубашка, поскольку восточный ветер разгулялся в последние дни и его порывы часто были свирепыми. В следующее мгновение ему в голову пришла более интересная мысль, а именно что плавающий предмет — плащ или мантия, сброшенная гулякой во время какой-нибудь пьяной выходки прошлым вечером. Он не раз выуживал шапочки и мантии из выгребных ям и либо возвращал их владельцам, либо продавал торговцу подержанной университетской формой.
Том Говнарь сунул правую руку в ледяную воду. Захныкал, когда холод обжег его. К счастью, пальцы сомкнулись на черенке лопаты. Все это время мысли были отчасти заняты риском столкнуться с мстительной злобой Мепала, если тот обнаружит, что случилось; риском, который рос с каждой минутой промедления.
Небо постепенно бледнело, но проклятое дерево загораживало свет. Том выпрямился и уставился на предмет в воде. Если это плащ или мантия, в нем таится возможность неплохо заработать.
Он взял лопату в другую руку, низко наклонился над прудом и протянул руку к предмету, который лежал сразу под колеблющейся поверхностью. Вода перехлестнула через край паттена и просочилась в потрескавшийся башмак под ним. Том попытался подцепить тень лопатой, но она ускользнула. Он наклонился чуть дальше. Паттен поехал по илу.
Том Говнарь с визгом шлепнулся навзничь. Холод ударил его, точно ломом. Он открыл рот, чтобы заорать, и наглотался прудовой воды. Его ноги трепыхались в поисках дна. Водоросли обвили лодыжки. Он не мог дышать. Он молотил руками во все стороны. Ему позарез нужно было удержаться на плаву, за что-нибудь уцепиться. Когда он снова начал тонуть, пальцы правой руки сомкнулись на пучке гнилых веточек, внутри которых еще прощупывалась жесткая сердцевина. В тот же миг ноги погрузились в ил, который принял его в объятия, затягивая все глубже и глубже.
Он не сознавал, что вопит. К этому моменту Том Говнарь уже ни о чем не думал и почти ничего не чувствовал. Но задолго до того, как обнаружил, что именно держит, он понял: в том, что обвилось вокруг его пальцев, нет ни капли жизни. Он знал, что коснулся мертвечины.
1. Паттены — кожаные или деревянные сандалии, надевавшиеся поверх обычной обуви для ходьбы по грязи и снегу. — Здесь и далее примеч. перев.
ГЛАВА 2
Другой город, другая водная гладь.
Лучше всего дом на Темзе запомнился Джону Холдсворту светом. Бледный и мерцающий, он заполнял выходящие на реку комнаты с утра и до вечера. Дом был пятой стихией, повисшей где-то между воздухом, водой и неярким огнем.
Джорджи считал, что это вовсе не свет, а призрачная вода, и порой ему мерещились тени, которые колебались и мерцали на стенах. Однажды он поднял весь дом дикими криками, утверждая, что утонувший матрос лихтера [2] с близлежащей Козьей пристани явился, чтобы утащить его на дно реки. Позже Холдсворт решил, что утопленник был провозвестником будущего, своего рода прелюдией, ведь утопление пронизывало водянистой нитью всю эту печальную историю.
В ноябре 1785-го Джорджи поскользнулся на замерзшей луже, когда играл у Козьей пристани. Пытаясь встать, он споткнулся о канат, привязанный к швартовой тумбе. Мария, его мать, все видела; видела, как мальчик свалился с пристани. Только что он был здесь, бойкий верещащий малыш. И вот он исчез.
Был прилив, и он упал в воду, ударившись головой о борт угольной баржи. Возможно, его убил именно удар по голове. Но погода в тот день стояла суровая. Тяжело нагруженная баржа покачивалась и вздымалась у края пристани, и прошло не менее десяти минут, прежде чем ребенка достали из воды. Так что сложно было сказать, отчего он умер. Его тело размололо между пристанью и баржей. Оно было ужасно изуродовано. Но вполне возможно, что Джорджи утонул до этого. Узнать точно невозможно.
Холдсворт предпочитал думать, что сын умер мгновенно, что само падение убило его, возможно одним из ударов по голове. Он до самого конца не знал о случившемся, пока за ним не пришли в магазин на Лиденхолл-стрит. Он испытывал чувство вины и недостойную благодарность за то, что, по крайней мере, был избавлен от зрелища смертельного падения сына.
После этого все пошло наперекосяк. А разве могло быть иначе? Мария замкнулась в своем горе. Она отказалась ставить надгробие, утверждая, что это неправильно, ведь Джорджи не может быть совсем мертв. Бо́льшую часть времени она молилась в доме или рядом с невысоким холмиком на кладбище. Все свои деньги она отдала женщине, которая якобы могла видеть призраков. Женщина сказала, что видела Джорджи, говорила с ним; сказала, что он счастлив и передает маме, как любит ее. Она сказала, что Джорджи ныне играет с ягнятами и другими детьми на широком зеленом, залитом солнцем лугу и воздух полнится музыкой божественного хора.
Одно за другим Мария продала свои кольца, бо́льшую часть платьев и лучшие предметы меблировки. Деньги она отдавала все той же женщине. Та в ответ повторяла вновь и вновь, что Джорджи все время думает о своей маме и посылает ей поцелуи и нежные слова и что скоро они воссоединятся и Господь никогда больше не позволит им разлучиться.
Порой Холдсворт не знал, скорбит ли он по Джорджи или же злится на Марию. Два чувства сплавились в одно. Он был вправе запретить супруге встречаться с той женщиной и побить ее в случае неповиновения. Но ему не хватило духу. Он уже достаточно страдал от чувства вины, поскольку не смог спасти сына. Мария сказала, что Джорджи передает папе свою любовь и обещает, что скоро они будут на небесах вместе с ангелами. Тот обругал жену, и больше она ему ничего не рассказывала.
Холдсворт излил свою злобу, сочинив небольшую книжицу, в которой рассмотрел истории о привидениях, старинные и современные, почерпнутые у модных и классических авторов. Все лучше, чем бить Марию. Он начал с истории о призраке Джорджи — разумеется, не называя имен, — и описал, как мать поверила в посмертную жизнь сына, поскольку нуждалась в этой вере, и как безнравственная женщина жестоко воспользовалась ее наивностью и горем. Лейтмотивом книги было то, что истории о мертвых, посещающих живых, нельзя принимать за чистую монету. Некоторые из них, писал он, всего лишь ребяческие предрассудки, в которые склонны верить исключительно дети и необразованные женщины. Другие же — добросовестные заблуждения и недоразумения, которые становится все легче объяснять, по мере того как естественные науки все глубже проникают в истинное устройство Вселенной Господа нашего. Он признал, что некоторые истории о привидениях обладают полезным назидательным или религиозным воздействием на умы детей, дикарей или серой массы необразованных простых людей; и в данном отношении они имеют ограниченную ценность в качестве притч. Но их не следует рассматривать как свидетельство Божественного или даже демонического вмешательства. Он заключил, что не встретил ни одной истории о привидениях, которую можно было бы рассматривать как свидетельство научного феномена, заслуживающего серьезного внимания образованных мужчин.
Он назвал книгу «Анатомия призраков» и напечатал ее в собственной небольшой типографии на Мэйд-лейн в Суррей-Сайде. Затем дал рекламу в газетах и отвез тираж в магазин на Лиденхолл-стрит. Книга вызвала некоторый ажиотаж. Анонимный обозреватель из «Джентлменз мэгэзин» обвинил автора в том, что он без пяти минут атеист. Два священника-диссидента объявили сочинение нечестивым. Приходский священник церкви Святой Этельбурги в Бишопсгейте прочел исключительно враждебную проповедь, выдержки из которой были напечатаны в «Дейли юниверсал реджистер» и затем обсуждались в частных гостиных и общественных местах по всей стране. В результате книга хорошо продавалась, что было весьма кстати, поскольку после смерти Джорджи мало что приносило доход.
Магазин торговал старыми и новыми книгами, брошюрами, письменными принадлежностями и рядом патентованных лекарств. К несчастью, за два месяца до смерти Джорджи Холдсворт взял две крупные ссуды: одну — чтобы расширить помещение, другую — чтобы приобрести библиотеку частного коллекционера, наследники которого не усматривали в чтении пользы. После смерти сына он редко заходил в магазин. Беспечный помощник сложил новоприобретенную коллекцию в подвал, где сырая зима уничтожила две трети книг. Тем временем управляющий типографией заболел и уволился; Холдсворт передал предприятие его заместителю, но тот оказался негодяем и пьяницей и выжал из дела все соки. Однажды ночью небрежность заместителя оказалась даже более вредоносной, чем его криминальные наклонности: он отправился домой, не потушив свечу, и к утру типография сгорела дотла, включая все ее содержимое. В огне Холдсворт также потерял все книги, которые перенес с Лиденхолл-стрит, в том числе почти все нераспроданные экземпляры «Анатомии призраков».
Марии, казалось, не было дела до этих несчастий. Не считая визитов в часовню, она не выходила из дома на Бэнксайде у Козьей пристани. Бо́льшую часть дня Мария проводила либо на коленях, либо запершись с женщиной, которая умела говорить с призраками и передавала утешительные послания от Джорджи.
В марте Холдсворту наконец удалось пробиться сквозь ее сосредоточенность, хотя он предпочел бы сделать это другим способом. Срок аренды дома истекал в День середины лета [3], и он был вынужден признаться жене, что они не смогут продлить ее даже на квартал. Он сказал, что еще не обанкротился, но опасно близок к этому. Им придется съехать из дома у Козьей пристани.
— Я не могу отсюда уехать, — сказала Мария.
— Мне очень жаль, но у нас нет выбора.
— Но, сэр, я не могу покинуть Джорджи.
— Дорогая, он больше не живет в этом доме.
Она яростно затрясла головой:
— Нет, живет. Его земное присутствие сохранилось в месте, где он был рожден, где он жил. Его душа смотрит на нас с небес. Если мы съедем отсюда, он не сможет нас найти.
— Умоляю, не надо расстраиваться. Мы заберем его с собой, в наших сердцах.
— Нет, мистер Холдсворт.
Мария сложила руки на коленях. Она была маленькой спокойной женщиной, очень опрятной и самодостаточной.
— Я должна остаться со своим сыном.
Холдсворт взял ее холодные руки, безучастно лежавшие на коленях. Она даже не взглянула на него. Ему было все равно, что типография погибла, что остатки магазина на Лиденхолл-стрит в течение недели пойдут с молотка и что вырученных денег, возможно, не хватит даже на покрытие долгов. Но ему было не все равно, что его жена стала возлюбленной незнакомкой.
— Мария, у нас впереди еще несколько недель, чтобы свыкнуться с этой мыслью. Мы все обговорим, решим, когда и как вернемся сюда, если ты этого хочешь. В конце концов, мы можем ходить мимо дома, когда пожелаем, хотя и не заходя внутрь. Постепенно мы вполне свыкнемся с этой мыслью.
— Джорджи передает папе свою самую горячую любовь. — Мария лепетала, как ребенок. — Он говорит, что мама и папа не должны покидать его обожаемый дом.
Холдсворт ударил жену, и она скорчилась в углу гостиной. Он сломал стул и высунул кулак в окно, которое выходило на реку.
Он никогда раньше не бил Марию и никогда больше не ударит. После стоял в гостиной, и кровь бежала по руке — он ободрал костяшки пальцев о зубы жены. Он плакал, впервые с тех пор, как был ребенком. Мария глядела на него с пола; ее глаза были полны боли и удивления. Она коснулась головы и уставилась на кровь на своих пальцах. На ее губах тоже кровь, которая запачкала голые доски пола. Кто бы мог подумать, что один удар причинит столько вреда?
Холдсворт поднял жену, принялся целовать и обнимать ее и говорить, что, конечно же, скоро они воссоединятся на небесах, все трое. Но было уже слишком поздно.
Той ночью они легли спать рано. К своему облегчению, Холдсворт крепко уснул. Сон был последним прибежищем, которое у него оставалось, и, кувырнувшись в него, он жадно распахнул ему объятия. Утром он проснулся от громкого стука во входную дверь. Мария больше не лежала рядом с ним на кровати, где Джорджи был зачат и рожден. Она утонула у Козьей пристани.
Поразительно, как быстро может рухнуть жизнь, если убрать ее опоры. В миг того резкого пробуждения Холдсворту показалось, что он потерял всяческую материальность. Он по-прежнему перемещался в реальном трехмерном мире — мире, существующем во времени и населенном людьми из плоти и крови, но сам более не состоял из упомянутых веществ. Словно тело претерпело химическую метаморфозу, которая изменила его состав. Он стал аморфным, как туман над рекой.
В отличие от Джорджи, тело Марии осталось нетронутым, не считая разбитой губы и ранки, немногим серьезнее царапины, на левом виске — цвета тернослива, размером с пенни. Мария была полностью одета.
На суде Холдсворт и два его соседа показали, что Мария часто выходила подышать рано утром и имела обыкновение прогуливаться по Бэнксайду, время от времени задерживаясь у Козьей пристани, где в прошлом ноябре в результате несчастного случая погиб ее сын. Большое значение было придано факту, что утро выдалось туманным. Два лодочника, которые в означенное время находились поблизости, заявили, что ничего не видели уже в паре ярдов от собственного носа, не говоря уже о куполе собора Святого Павла за рекой. К тому же сама пристань пребывала в прискорбном состоянии — ветхая, сплошь покрытая зеленой тиной и оттого скользкая. Коронер, человек гуманный, не раздумывая вынес вердикт: смерть вследствие несчастного случая в отсутствие свидетельств противоположного.
Через несколько дней Холдсворт наблюдал, как его жену опускают в кладбищенскую землю. Ее положили в одну могилу с сыном. Холдсворт отводил глаза, чтобы случайно не увидеть маленького гробика Джорджи.
На похоронах Нед Фармер стоял рядом с Холдсвортом, а миссис Фармер вместе с немногочисленными родственниками и друзьями — у них за спиной. В юности Холдсворт и Фармер вместе учились. Нед был крупным, неуклюжим, добродушным мальчишкой, а теперь стал крупным, неуклюжим, добродушным мужчиной. Единственным дальновидным решением в его жизни стал брак с дочерью богатого печатника из Бристоля, хотя и это решение принял не он, а упомянутая леди. Теперь ее отец умер, и его единственная наследница решила, что настала пора перебраться в Лондон и развернуть дело здесь, ведь именно в столице можно сколотить состояние на издании и продаже книг. Она уговорила Неда предложить выкупить остатки дела, которое Холдсворт созидал годами. Предложение было не слишком щедрым, но зато верным, в то время как план пустить все с молотка содержал в себе немалую долю риска. Более того, Нед сказал, что аренду дома на Бэнксайде они тоже переведут на себя.
— Бетси прямо влюбилась в него, из-за реки и удобства, — пояснил он. — А над магазином она жить не желает. Впрочем, прости меня, Джон, наверное, я затронул мучительную тему.
— Меня мучает не река, — ответил Холдсворт. — И не дом.
— Да-да, конечно. Но скажи-ка мне вот что... где ты собираешься жить?
— Я еще не решил.
— Тогда, если не против, оставайся с нами, пока не встанешь на ноги.
— Ты очень добр. Но что, если миссис Фармер...
— Пф! Бетси сделает, как я попрошу, — ответил школьный товарищ. Оптимизм оставался еще одной чертой, которая сохранилась у Неда нетронутой с детства. — Считай, это дело решенное.
Остаться в доме у реки, жить с Фармерами — не самая веселая перспектива. Зато удобная, и, кроме того, так можно отложить принятие решения.
Холдсворт знал, что долго это не продлится. В былые времена Мария часто говорила, что он спит мертвецким сном. Но в свою первую ночь в доме на Бэнксайде в роли гостя Фармеров он не спал — ему снились мертвецы.
Приснилось, что на похоронах Марии он заметил крошечный гробик Джорджи в глубине разверстой могилы. Крышка откинута, а дерево расщеплено, как будто кто-то пытался выбраться наружу. Священник говорил без остановки. Из гроба поднялся черный прилив. Он накатывал волнами, прибывал и отступал под звуки молитвы священника, а откатывался только для того, чтобы нахлынуть еще дальше.
Холдсворт проснулся, но прилив продолжил подниматься, карабкаясь по его ногам, словно патока. Он взбирался все выше и выше, пропитав его ночную рубашку. В груди стучал кузнечный молот. Холдсворт не мог дышать, и боль была такой невыносимой, что он не мог даже кричать.
Скоро черный прилив достигнет его рта. Затем ноздрей. И тогда он утонет.
2. Лихтер — грузовое несамоходное морское судно.
3. День середины лета — 24 июня, Рождество Иоанна Предтечи.
