автордың кітабын онлайн тегін оқу Москва Стрешневых
Андрей Потапенко
Москва Стрешневых
Шрифты предоставлены компанией «ПараТайп»
© Андрей Потапенко, 2022
Книга повествует о московских владениях рода Стрешневых. Особое место занимает своего рода путеводитель по заброшенному дворцу в Покровском-Стрешневе, каким он был накануне реставрации. Уделено место сохранившимся и несохранившимся владениям на Большой Никитской, Большой Дмитровке, Малой Молчановке, Мясницкой улицам. Наконец, возвращаясь вновь в Покровское-Стрешнево, подробно описывается история её приселка — Иванькова, и храма Покрова Пресвятой Богородицы, который дал имя всему имению.
ISBN 978-5-0056-8653-4
Создано в интеллектуальной издательской системе Ridero
Оглавление
ПРЕДИСЛОВИЕ
Десять лет, что я работал над темой усадьбы Покровское-Стрешнево, принесли столь значительный объём информации, ранее совершенно неизвестной, что его хватает не на одну книгу.
Уже в изданную в 2019 г. работу («Покровское-Стрешнево: история, люди, события») вошла только, так сказать, историческая база повествования. Остальное по прихоти издателей вот уже третий год существует исключительно в электронном виде. Это и «Последняя подмосковная», значительную часть которой занимают архивные материалы по усадьбе второй половины XIX и начала XX века — о грандиозной реконструкции усадьбы при Е.Ф.Шаховской-Глебовой-Стрешневой, строительстве новых корпусов, ограды, проектах ещё одного храма, богадельни, а также об устройстве в мировую войну госпиталя для раненых воинов, и подробности бытования в послереволюционное десятилетие музея усадебного быта (вопреки традиционным представлениям, открытого не в 1925, а ещё в 1919 году и работавшего весьма плодотворно). Это и обширная хрестоматия исторических материалов «Стрешнево и Стрешневы», состоящая из трёх больших блоков — это мемуарные свидетельства очевидцев, включая работы самой Е.Ф.Шаховской, С.А.Толстой, А.Ф.Кошко, В.Б.Шкловского и др., выдержки из путеводителей по окрестностям Москвы конца XIX — первой половины XX веков, содержащие статьи об усадьбе и об организованном в ней музее, а также большой блок материалов по первому советскому киноужастику «Медвежья свадьба», которые наглядно эволюцию темы — от повести П. Мериме «Локис» через созданную на её основе пьесу А.В.Луначарского «Медвежья свадьба» к её киновоплощению и отзывам о фильме прессы 1920-х годов.
И это ещё не всё. За рамками всех этих работ остались ещё несколько важных глав. Во-первых, это путеводитель по разорённому дворцу (по состоянию на 2020 год) — глава, которую издатели хотели бы видеть в изданной книге, но по соображениям объёма автор предпочёл включить в неё другие материалы по усадьбе). Затем очерки о других московских владениях Стрешневых — прежде всего на Большой Никитской улице, которое подверглось варварской реконструкции под нужды «Геликон-оперы» Д. Бертмана, а также на Большой Дмитровке, Мясницкой и Большой Молчановке. Ещё две главы посвящены истории приселка Покровского-Стрешнева — Иванькова, включая неизвестные проектные материалы по строительству гидропарка в конце 1930-х годов, а также о храме Покрова Пресвятой богородицы, давшему название всей местности, с привлечением материалов из архивов реставраторов 1980-1990-х годов.
Все эти темы составили ещё одну работу — «Москва Стрешневых» — которая и предлагается вниманию читателей.
ГЛАВА 1. ИНФЕРНАЛЬНЫЙ ЗАМОК[1]
Они провели ночь, сгрудившись вместе на полу огромного пещерного зала, в углу, где было меньше сквозняков. Спереди тянуло холодом. Вокруг царила безграничная, пустая темнота; все были подавлены огромностью высеченных в скале чертогов и бесконечностью разветвляющихся лестниц и переходов Мории. Самые невероятные рассказы, которые доносила до хоббитов смутная молва, меркли перед истинной Морией, страшной и дивной.
— Здесь, должно быть, работала прорва народу, — шепнул Сэм. — Если бы меня убедили, что гномы рыли землю быстро, как барсуки, и ухлопали на это лет так пятьсот, — тогда я поверил бы. Но это же не земля, это твёрдый камень!
И главное, зачем им эта затея в голову втемяшилась? Не надо только мне рассказывать, что он тут жили, в этих тёмных норищах!
— Это не норы, — строго поправил Гимли. — Это великое королевство, или город, называй, как хочешь. Это Гномьи Копи! Не думай, что тут всегда было темно. Мория блистала светом и роскошью. Наши песни хранят память об этом.
Дж. Р. Р. Толкин, «Властелин колец».
Нынче во дворце везде следы начатых и брошенных еще в 1990-е годы работ, причем брошенных буквально на полуслове, как переобивка мебели у гоголевского Манилова. Реставрация была прервана сразу после восстановления частей, утраченных из-за пожара. Уже были воссозданы декоративные детали потолков и плафоны — но до стен уже очередь не дошла: остались следы забелки трещин; вставленные оконные рамы и дверные короба с незакрашенным контуром штукатурки; запачканные побелкой, мутные стекла… Во всех помещениях второго этажа заново наложены полы, а в центральном Белом зале уцелели только лаги. Отштукатурены и частично покрашены стены, в Голубой гостиной восстановлено внешнее оформление каминов, а буквально за стеной, в Белом зале, на протяжении какого-нибудь полугода декоративная лепнина каминов была сбита вандалами. В одних помещениях восстановлено оформление потолков в стиле XIX века — а в других потолки абсолютно заурядные, аэрофлотовские… С отреставрированного было плафона над лестницей уже полностью отшелушилась краска, и то, что когда-то он был жёлто-голубым, напоминают только старые фотографии. Вчерне отремонтированные стены вновь покрываются трещинами. Самые заметные из них — в стенах бывшей библиотеки, сквозь них как раз видны следы пожара — опалённая древесина. В бывшей столовой из-за прохудившейся кровли с каждым дождем протекают потолки и обсыпается штукатурка.
За парадной лестницей, в северной части здания, несколько «каменных мешков», так и не дождавшись реставрации, хранят на своих стенах явные следы того самого пожара, бушевавшего выше. Их своды в копоти, штукатурка на стенах сбита до голой кирпичной кладки, паркет вздулся буграми и ходить там, честно говоря, небезопасно. Особенно заметны следы пожара в полукруглом первом ярусе флигеля с восьмигранной башней (не забудем, что оно — единственное сохранившееся от пожара помещение этого флигеля и самой башни, ведь пожар бушевал точно над ним и за его стенами, там, где сейчас проходит пожарная лестница со второго этажа).
Такой инфернальный облик — запущенность интерьеров, помноженная на мрачность архитектурного облика самого дворца, привел к тому, что еще совсем недавно здесь было полным-полно экстремалов, находящих адреналин на «графских развалинах». Проходили фотосъемки, в том числе и сомнительного плана, на какое-то время дворец стал полигоном для ролевых игр вроде лазертага, а фактически — одним из тусовочных мест полумаргинальных кругов. Благодаря им, убранство всё больше утрачивалось и разрушалось, не говоря уже о том, что они оставляли за собой кучи мусора, а стены дворца покрыли многочисленные граффити, тексты странных стихов, которые иначе как наркоманскими признать сложно, вроде такого (по иронии судьбы, на стене портретной!):
Прибой уходит в самоволку.
Смотреть на звёзды.
Он одинок на пляже сонном
В молчании гнёзда.
Висят скелетами на соснах
Все птицы где-то в чьих-то снах.
По кромке моря слышен плач.
Прибоя крик и сонный кач
Колонн из хвои шелестящих
Пока не срубит их палач.
Совсем недавно там оставили свои следы и «почитатели» высокой поэзии, в частности, Сэмюэля Кольриджа. Но ей-богу, он достоин лучшей памяти, чем в виде граффити!
Со временем появились цитаты как, скажем, из Бродского (знаменитое «Не совершай ошибку, не выходи из комнаты»), так и явно из «творчества» самих праздношатающихся по его залам. Самая популярная среди них, судя по всему — многозначительное «Продай музу». И ещё, тесно связанная с предыдущей: «Не важно, сколько стоишь ты. Важно, сколько стоит твоя муза». Без комментариев…
Особенно досталось комнатам по центру третьего этажа. Центральное окно главного фасада, расписанное красками в одно сплошное граффити, превратилось, по сути, в витраж, а стены противоположной комнаты, откуда есть выход на верхнюю площадку большого балкона, стала напоминать картинную галерею. Тем самым дворец очень в самом деле напоминает толкиновскую Морию — бывшее Подгорное царство гномов, некогда блиставшее роскошью внешнего облика и трудами мастеров, но осквернённое орками.
В таком состоянии дворец находится вот уже почти тридцать лет, всё более изнашиваясь и теряя характерные детали убранства. Так, разрушены и исчезли балюстрада балкона главного фасада, лепнина вокруг каминов в Белом зале с масками сатиров, оконные рамы в глухих оконных проемах столовой, остается всё меньше целых стекол, да и с самих оконных рам всё больше облезает краска. Внутри дворец всё больше отсыревает, во всех помещениях отчётливый запах мокрой штукатурки. От пустых стен гулко отдается каждый звук, то и дело по залам перекатываются голоса незваных посетителей, вместе с заброшенностью придавая этому месту мрачноватый оттенок. А лица атлантов на главной лестнице в здешней гулкой тишине, кажется, ехидно ухмыляются в ответ, будто знают какую-то великую тайну, что-то роковое, произошедшее в этих стенах, отчего дворец так и норовит укрыться за деревьями от любопытного взгляда.
Громада дворца поражает каждого, кто попадает сюда, уже с первого взгляда. В таком дворце просто не может не быть привидений, подземелий и своих собственных тайн и преданий… Не случайно еще в 1925 году здесь снимали мистический фильм о графе-оборотне. Впрочем, замок свято хранит свои тайны, не хуже военных, коих в этих стенах во времена «Аэрофлота» не могло не быть — пока что еще ни одной леденящей душу истории встретить не удавалось. Точно так же, как не удавалось встретить ни одного настоящего призрака. Если не считать готоподобных девушек или более чем земных фотомоделей.
И всё-таки, вероятно, в этом есть своя логика судьбы, потому что средневековому замку пристало быть заброшенным, обитаемым лишь призраками и тенями прошлого…
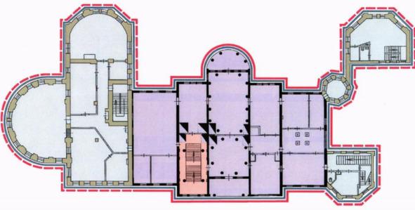
Современная планировка дворца (с. 13—14)
Сиреневое поле — объём дворца 1800-х гг.
Голубые поля — пристройки 1880-1890-х гг.
Но всё равно попробуем договориться с охраной и осмотреть усадьбу изнутри.
Первое, что предстает взору — почти полукилометровая кирпичная стена, вытянувшаяся вдоль шоссе. Эта стена вкупе с архитектурным решением самого дома издавна привлекала к себе внимание многих и многих, что отражалось и на страницах путеводителей по окрестностям Москвы 1920-х годов, и даже раньше — ещё в дореволюционных работах, заставляя видеть в ней то ли крепостную, то ли монастырскую ограду с диковинным замком позади.
Примерно посередине стена отступает чуть вглубь, образуя подковообразную площадку. Завораживают взгляд декоративные башенки по углам, напоминающие Царскую башню Московского Кремля. По центру, обрамляя подъезд к большим воротам, до сих пор сохранились два ряда тумб, защищающих края подъездной дороги и ворота от повреждения бортами карет, телег и прочего транспорта. А когда-то ряды тумб соединялись цепями. Судя по старым фотографиям, ещё сто лет назад они были чуть ли не вдвое выше — так нарос культурный слой, в том числе и после строительства эстакады. В стене, помимо больших центральных ворот, пробиты по бокам ворота поменьше — к храму Покрова Пресвятой Богородицы (справа), и ещё одни ворота, симметричные им, но давно закрытые, глядят прямо в парк.
с декоративной башенкой и декором. Фото автора
Створки ворот поражают кованым узором с лепестками. Любопытно, что все они — разные по внешнему виду. Главные (бо’льшие по размеру) и правые, церковные были заменены во время реставрации в 1990-е годы. А вот парковые, симметричные церковным, судя по всему, остались такими, какими вышли из мастерской и были установлены при заказчице — княгине Шаховской-Глебовой-Стрешневой. Церковные же, по версии, разработанной совместно местными краеведами и автором этих строк, были перемещены на наружную часть ограды и стали открываться навстречу, а не внутрь, как остальные, вероятно, ещё в 1890-е годы, с пристройкой приделов Николая Чудотворца и Петра и Павла. По всей видимости, именно тогда вместимость храма значительно выросла и створки ворот стали мешать проведению крестных ходов. Поэтому створки перенесли на внешнюю часть стены, а для укрепления ограды небольшая часть арки с внутренней стороны от ворот была заложена.
без изменений). Фото автора
небольшая закладка проёма по обеим сторонам. Фото автора
Центральные ворота врезаны в трёхъярусную конструкцию. Особенно впечатляет её декор. И здесь, и на стенах пристроек к главному дому, поражает, как разнообразно и щедро были использованы приёмы обработки кирпича, как разнообразны мотивы и приёмы декора, с какой фантазией вытесаны те или иные детали — всевозможные колонки, сухарики, ниши, глухие проёмы, наличники… По бокам от ворот два симметричных дверных проёма «рифмуются» с глубокими нишами во втором ярусе; арку ворот обрамляют вырезанные в кирпиче балясины и колонки, а в третьем ярусе — цепочка глухих арочных проёмов, пары которых также разделены балясинами, уже иного рисунка. По верху проходит ряд «ласточкиных хвостов», хорошо знакомых по кремлёвской стене. С внутренней стороны стены заметны две пары кирпичных надстроек-консолей, в сердцевине которых — металлические рельсы. На них, вероятно, и были установлены когда-то шатры, заметные на старой фотографии по бокам. Между ними, над аркой ворот — стилизованный рисунок кремлёвской башни, также выложенный из кирпича.
Фото автора
с наружной стороны. Фото автора
Может быть, при известной доле фантазии, можно углядеть в этой конструкции некое подобие триумфальной арки. Например, Е. Дмитриева и О. Купцова в книге «Жизнь усадебного мифа. Утраченный и обретенный рай» так и говорят о подъездных усадебных аллеях: «Будучи ключевым моментом „подъезда к усадьбе“, она уже архитектурно подготавливает въезжающего к восприятию усадебного мира. Тем самым въездная аллея приобретает дополнительную функцию: быть местом памяти и памятников. Отсюда, например, строительство на въездных аллеях триумфальных арок /…/ В Яропольце (имении Гончаровых) на въездной аллее сооружаются монументальные готические башни, предвещающие находящиеся здесь многочисленные постройки в этом же стиле»[2].
Строго говоря, подъездной аллеи в традиционном понимании этого слова в стрешневской усадьбе сейчас нет. Вместо неё — небольшая площадка с газоном перед фасадом. Но если учесть, что здесь на небольшом пятачке сосредоточены все необходимые составляющие — колоссальная арка, открывающая для въезжающего и входящего территорию и мир усадьбы, а за ней в перспективе новый главный фасад усадебного дома, на лужайке перед которым установлен памятный обелиск, то, пожалуй, большой натяжки в таком уподоблении не будет. В конце концов, даже живший здесь в 1923 году Виктор Шкловский отмечал в «Третьей фабрике», что эти ворота — «больше тех, через которые въезжают в Россию».
Сквозь ажурную решётку с растительным орнаментом виден южный фасад, тоже из красного кирпича. Выстроенный размашисто, в три высоких этажа, он создаёт ощущение громоздкой тяжести. Но одно из основных достоинств фасадной части — его симметричность и ступенчатость, которые и скрадывают это ощущение. На обширной плоскости выделяется объём, который напоминает то ли эркер, то ли церковную апсиду, эффектно выгибаясь навстречу и, в тон воротам, щедро украшен всевозможными декоративными деталями, вытесанными в кирпиче. Когда-то они были выделены белым цветом, отчего создавалось ощущение, будто на кирпичную основу наброшено ажурное покрывало, которое и скрадывало тяжеловесность стен. На первом этаже по центру обращают на себя внимание входные двери, обрамлённые эффектной дугой, на втором — пара арочных окон, ряды которых продолжаются по дуге в обе стороны.
Впрочем, это уже заслуга реставраторов, воссоздавших облик этой части здания в первоначальном виде. В советские времена многолетний владелец усадьбы — «Аэрофлот» — не остановился перед тем, чтобы растесать пару стрельчатых окон по центру в один прямоугольный конторский проём, что видно на фотографиях уже 1930-х гг. Ещё две пары окон, уже стрельчатых, были уничтожены и заменены такими же скучными рамами на третьем этаже со стороны главного фасада — на торцевой стене, обращённой к воротам (восстановлены в историческом виде после пожара) и с противоположной стороны, над старой частью дома (там окно оставлено прежним). Такому же варварскому искажению подверглись и другие стены этого корпуса. По особенностям кладки (несоответствию нынешних оконных проёмов и аркообразных кирпичных сводов-«бровок» над первоначальными окнами) видны заново пробитые грубые оконные проёмы по первому этажу слева, где сохранилась отделка кухни и пищеблока, и с лицевой стороны, и с тыла, со стороны садового фасада.
Кстати, если встать лицом к балкону к приглядеться к боковым стенам корпусов, обрамляющих его наподобие флигелей, то можно увидеть, что их двухэтажные объёмы и стены, соединяющие их со старой частью дома, оформлены симметрично, несмотря на то, что кирпичный объём слева прерывается островерхой башней — заслуга К. Терского, строившего свой, левый, корпус по аналогии с правым, резановским. Становится заметно, что оконные проёмы в правом корпусе опять-таки не сочетаются с особенностями кирпичной кладки. Своё «постороннее» происхождение выдают узкие прямоугольные окна в правой стене, частично оформляющие бетонную лестницу внутри здания.
Возвращаясь к воротам, легко заметить, что заниженная, эркерная часть этого фасада продолжается вверх эффектной надстройкой, завершающейся декоративной башенкой (утраченная башенка была воссоздана в самом конце 1980-х годов, буквально накануне пожара и чудом уцелела, когда соседний чердак был уничтожен огнём). Всё вместе создаёт ощущение движения ввысь, а ступенчатость объёмов придаёт всему этому облик зиккурата — типа архитектурного сооружения, которому присуща именно ступенчатая композиция. Достаточно вспомнить… Мавзолей Ленина или несостоявшийся Дворец советов (кстати, металлические конструкции из его фундаментов, выполненные из специально созданной для этого марки стали, особо прочной, были использованы в 1943 году при строительстве соседнего трамвайного моста). И по контрасту с взмывающей в небо изящной, несмотря на кирпичную основу, башенкой смотрится массивным находящийся на втором плане громадный чердак с двумя большими деревянными башенками — слуховыми окнами, хорошо видными с шоссе.
Сходство с храмом усиливается уже упомянутой нами надстройкой над фасадом, в нише которой, стилизованной под аналогичную нишу для колоколов на колокольне, в самом деле ранее висел колокол. Когда-то, при Евгении Шаховской, в эркере под ним располагался усадебный театр, а удары колокола созывали дачников на действо. Перед фасадом растёт уже знакомая сосна, ствол которой на высоте разделяется на три ветви причудливой формы (впрочем, одна из них, застилавшая фасад, в марте 2016 года обломилась), создавая вместе с кирпичной кладкой на ее фоне почти что скандинавский пейзаж. А точно по оси фасада, на лужайке перед парадными дверьми, стоит старый обелиск. В его вершине ещё недавно был виден металлический стержень, который заставлял думать о том, что раньше на этом стержне была укреплена какая-то деталь. И действительно, когда-то он венчался золочёной фигурой собаки, талисманом рода, как мы помним, присутствовавшим еще на родовом гербе Стрешневых, и утраченным после революции.
Такой представительный вид превращает торец здания вместе с лужайкой перед ним в третий фасад.
и рогатой сосной. Фото автора
Вообще, уже с первого взгляда отсюда на дворец сразу же бросается в глаза его демонстративная декоративность, вызывая явное ощущение театрального задника из спектакля на модные в конце XIX века «древнерусские» темы. Это отмечают практически все исследователи. Более того, по всей видимости, Шаховская, заказывая А.И.Резанову и К.В.Терскому перестройку дворца, намеревалась создать здесь, с торца здания, новый фасад, превратив тем самым дворец в один сплошной архитектурный парадокс.
На первый взгляд уже один этот корпус производит впечатление завершённости, самоцельности. Но не тут-то было… Помню, когда мне первый раз удалось увидеть дворец с непривычного ракурса — не из-за ворот, а с территории приусадебного храма, я был просто поражён, как с изменением точки обзора, с каждым новым шагом раскрывается в повороте длиннейшая, массивная стена дворца, упирающаяся в парк, как за массивным кирпичным корпусом проступила старая, беленая, часть дворца, а за ним еще одна кирпичная вышка — башня-восьмигранник… Оказывалось, что часть, обращённая к воротам, на самом деле только торцевая часть дворца. Это производило прямо-таки ошеломляющее впечатление. Тем более что дворец был совершенно поглощён порослью молодых деревьев и фасад буквально вырастал из них.
Вблизи театральный корпус выглядит еще более впечатляюще. Действительно, по части украшения фасада мастерство архитекторов неоспоримо. Вероятно, более прогадали они с композицией объемов и сочетанием новых пристроек со старым дворцом. Всё вместе никак не сходится воедино, и как бы кто ни пытался совместить одно с другим, всё равно это походит на простое, хаотичное нагромождение объемов, за которыми старый дворец просто теряется, что спереди, что сзади, напоминая иной раз даже коромысло, на которое навешаны два тяжёлых ведра. Несоразмерность пропорций бросается в глаза. Если дворец большей частью скорее всё-таки двухэтажный, а невысокий третий этаж-мансарда надстроен только по центру, то громоздкая пристройка с юга, да еще с двумя эркерами, расположенными под прямым углом друг к другу, занимает большей частью три полноценных этажа, и просто подавляет старую часть дворца, нависая над ней. Тяжеловесность пристройки, которая со стороны ворот сглаживается энергично выгнувшимся полукружием фасада и симметричностью ступенчатой композиции деталей, со стороны парка трехэтажной плоскостью буквально давит на старый дворец. Впрочем, по проекту Резанова гладкая, без малейших ухищрений стена двух нижних этажей должна была стать просто «задником» для нарядных галерей, которые бы и украшали фасад, если бы были достроены.
Отчасти это — и результат незавершённой реставрации. Сейчас недостаёт ещё одного декоративного приёма. На фотографиях советского времени видно, что, как мы уже гвоорили, детали декора тогда были выделены белой краской, что как бы набрасывало на кирпичный объем ажурную «шаль», делая его не столь тяжеловесным, а более нарядным. После пожара, испортившего копотью вид кирпичных стен, они были заново выкрашены, но реставраторы не успели довести дело до конца — по первому этажу заметен голый, некрашенный кирпич. А о белом декоре не стоит и говорить…
Обычно «посетители» усадьбы, стремясь попасть непосредственно к нарядному садовому фасаду с полукруглым балконом, сразу туда и направляются, огибая дворец слева и ошибочно считая его главным фасадом. Но мы будем соблюдать справедливость и обойдем дом с противоположной стороны.
Нарядный фасад с балконом и лестницами, который обычно представляется парадным, на самом деле обращён в обратную сторону, где когда-то был закрытый от посторонних глаз регулярный парк со скульптурами. А настоящий главный фасад, обращённый к прудам, гораздо более скромный на вид, да ещё и не совсем удачно воссозданный после пожара, наоборот, сейчас кажется «задним», тем более что упирается в стену разросшегося парка. Хотя именно он обращён в сторону центра Москвы и именно к нему подходит от прудов старая подъездная аллея.
Отметим заранее и постараемся помнить об этом при осмотре усадьбы и далее, что, несмотря на такое внешне эффектное начало, несмотря на так ревниво и даже фанатично хранимую память о Стрешневых, об их историческом равенстве с правившим Домом Романовых, несмотря на все аналогии, проводимые княгиней Шаховской-Глебовой-Стрешневой, стремившейся превратить усадьбу в некое подобие Кремля, всё-таки романовского размаха здесь нет. Здешние владельцы так и не смогли преодолеть изначальную захудалость своего рода. И прав был К.В.Сивков, говоря, что «знакомство с Покровским-Стрешневом и его владельцами даёт представление о быте, привычках и художественных вкусах, так сказать, массового дворянства XVIII — XIX вв.».
Эта «захудалость» сказывалась и в портретной галерее, над которой работали не проставленные мастера, а местные таланты, вроде Я. Лигоцкого, создававшие копии знаменитых полотен и иной раз заметно ухудшавшие оригиналы, и в других деталях обстановки — например, мебельных гарнитурах, собиравшихся на протяжении многих и многих десятилетий и отразивших в своём облике вкусы и манеру исполнения разных эпох. Хотя при этом, как отмечали исследователи, даже среди заурядных работ вдруг оказывались очень интересные экземпляры, выбивавшиеся из окружения ремесленного исполнения какими-то оригинальными решениями, буквально озарениями таланта. А иной раз попадались и работы настоящих мастеров, о чём мы будем говорить более подробно. Тем не менее обстановка в усадебном доме носила именно такой характер, какой был обозначен К.В.Сивковым. И при создании в 1919 году в усадьбе музейной экспозиции в доме была воссоздана обстановка, которая отражала именно бытовой, повседневный уклад жизни массового, «среднестатистического» дворянства. Именно поэтому при внешне эффектных архитектурных решениях разновременных частей дома то и дело наталкиваешься на откровенные черты заурядности.
Площадка, вымощенная плиткой, начинавшаяся ещё от ворот, на этом месте обрывается (ещё одно свидетельство прерванных работ — точно так же как и со стороны садового фасада плитка не закрывает полностью даже площадку между корпусами-флигелями) и дальше начинается тропинка. Проходя по ней, мы подходим к центру фасада, долженствующему быть главным. Если бы не запустение, его можно было бы даже назвать приятным.
Старая часть дома, выстроенная в первые годы XIX века — около 1803—1805 годов — выполнена в классическом стиле, в два этажа с мансардой, и смотрится довольно скромно, без поражающего воображение размаха. Украшена она тоже весьма сдержанно. Только центральная часть вдвигается вглубь, образуя над входом лоджию с парами: колонна коринфского ордера и повторяющая её пилястра. Из чисто декоративных деталей — рустованные грани центральной части фасада, да пара маскаронов, изображающих женские лица, по бокам (такая же пара — с противоположной стороны дома). И только. А под балконом-лоджией уже с трудом угадываются двери, которые на самом-то деле были парадными.
Над входом — небольшой, но эффектный балкончик-лоджия, на котором любили фотографироваться модели в старинных или свадебных платьях. Когда-то здесь была балюстрада, но она утрачена, «благодаря» нерадивым лазателям.
Такой невзрачный облик вход получил при восстановлении дворца после пожара, уже в 1990-х годах. До того он был более представительным, свод арки был выше и доходил до самого балкона. Впрочем, и в таком виде он был более позднего происхождения, и появился при княгине Шаховской, когда она вносила коррективы во внешний вид прабабкиного дома. А во второй половине 1930-х годов тамбур был застеклён. Реставраторы вернули входу первоначальный, на 1800-е годы, облик, добавив к нему поздний же тамбур. Жаль только, что при его обустройстве не были воссозданы предполагавшиеся проектом реставрации пары утраченных в своё время небольших колонок, красиво обрамлявших вход. Сейчас вместо них банальное застекление. Без них вход, за два с лишним века заметно ушедший в землю, в самом деле выглядит сиротливо.
Кроме того, также впоследствии был утрачен изначальный классический колорит стен — жёлтый с белым декором, воссозданный реставраторами, из-за чего дворец смотрелся намного ярче и праздничнее.
А в противоположную сторону, к прудам, уходит почти заросшая аллея. Навстречу, в её створе, от прудов открывается чрезвычайно живописный вид на главный дом. Когда-то по ней шла подъездная дорога к усадьбе, просёлок от Всехсвятского. Не зря же отсюда делали фотоснимки усадьбы во все времена, начиная еще со времен Евгении Фёдоровны Шаховской. Ещё лучше он смотрится от железной дороги, из-за пруда, примерно так же, как выглядел в начале прошлого века, когда к княгине приезжали по новооткрытой «железке» высокосановитые гос
- Басты
- История
- Андрей Потапенко
- Москва Стрешневых
- Тегін фрагмент
