Частное расследование аварии на СШГЭС. Происшедшей 17-го августа 2009 г
Қосымшада ыңғайлырақҚосымшаны жүктеуге арналған QRRuStore · Samsung Galaxy Store
Huawei AppGallery · Xiaomi GetApps

автордың кітабын онлайн тегін оқу  Частное расследование аварии на СШГЭС. Происшедшей 17-го августа 2009 г

Борис Колесников

Частное расследование аварии на СШГЭС

Происшедшей 17-го августа 2009 г.






12+

Оглавление

  1. Частное расследование аварии на СШГЭС
  2. 1. Объект расследования- гидроагрегат №2 (ГА-2) Саяно-Шушенской ГЭС
  3. 5. КАТАСТРОФА
  4. 6. Расследование технических причин аварии ГА-2
  5. 7. Результаты расследования технических причин аварии ГА-2
  6. 8. СУДИЛИЩА
  7. 9. Ходатайство о проведении повторной экспертизы аварии ГА-2
  8. 10. Не исследованные технические причины аварии ГА-2 при работе гидрогенератора в режиме синхронного электродвигателя
  9. 11. Кассационная жалоба в Президиум Верховного Суда РФ
  10. 12. О необходимости проведения специального расследования причин аварии ГА-2
  11. ЗАКЛЮЧЕНИЕ

«Из всех средств массовой информации

для нас важнейшим является Интернет»

Народная мудрость

1. Объект расследования- гидроагрегат №2 (ГА-2) Саяно-Шушенской ГЭС

1.1. Основные параметры гидростанции

Таблица 1

• Год начала строительства- 1963.

• Годы ввода первого (со сменным рабочим колесом) и последнего гидроагрегатов- 1978/1985.

• Год официальной приёмки в эксплуатацию- 2000.

Рис. 1. Саяно-Шушенская ГЭС [1]


Рис. 2. Саяно-Шушенская ГЭС

1.1.1. Трёхмерный ролик по урокам аварии 17 августа 2009 года на Саяно-Шушенской ГЭС [2]


1.2. Основные параметры гидроагрегатов


1.2.1. Характеристики гидротурбины

Таблица 2

Особенностями конструкции гидротурбины являются:

• выполнение рабочего колеса цельносварным на заводе, с доставкой на строительную площадку водным путем;

• применение железобетонной конструкции спиральной камеры;

• направляющий аппарат с индивидуальным гидравлическим сервоприводом каждой лопатки;

• направляющий подшипник с обрезиненными сегментами на водяной смазке.

• масса турбины (без статора и спиральной камеры) — 656 т [3]


«В период освоения Саяно-Шушенской ГЭС произошло 64 нарушения работы гидротурбин и повреждения их узлов, в результате которых простой агрегатов составил 17614 час., недовыработка электроэнергии составила 6120 млн. кВт·ч. В подтверждение недостаточной изученности и продуманности конструкторских решений следует отметить, что непредвиденные остановки турбин происходили и тогда, когда они работали только на расчётных напорах» [4].


1.2.2. Характеристики гидрогенератора

Таблица 3

Особенностями конструкции гидрогенератора являются:

• выполнение внутрипроводникового водяного охлаждения обмотки статора и форсированного воздушного охлаждения обмотки ротора;

• двухрядный подпятник с эластичными металлопластмассовыми сегментами, размещенный в цельносварной масляной ванне диаметром 6 м; рассчитан на восприятие нагрузки 36000 кН;

• подшипник генератора — баббитовый, с самоустанавливающимися сегментами;

• общая масса генератора — 1 860 т

1.2.3. Характерные зоны работы ГА-2 [5]


Рис. 3. Характерные зоны работы гидроагрегатов Саяно-Шушенской ГЭС

Особенностями режима работы гидроагрегата в зоне 2 являются:

• повышенная вибрация и увеличение шума в машзале;

• возрастание гула и грохота в отсасывающей трубе;

• снижение к. п. д.


— Весовые характеристики базовых узлов и деталей ГА-2 [6]

Таблица 4

* Вес верхней крестовины принят ориентировочно

** Вес обода ротора определён также ориентировочно из расчёта ~ 60% от веса ротора.

«Полётный» вес ротора гидроагрегата (1687 — 550 +150) = 1287т


2. Аварийное разрушение ГА2 и его составных частей


Общая картина аварийного разрушения ГА2 и его составных частей показаны на рис. 4 и 5.

Рис. 4. Аварийное разрушение гидроагрегата №2
1-рабочее колесо турбины; 2- крышка турбины; 3- ванна подпятника; 4- спицы ротора генератора; 5- обод ротора генератора


Рис. 5. Схема аварийного разрушения составных частей гидроагрегата №2 [7]

Для выявления технических причин аварийного разрушения ГА2 рассмотрим последовательно, шаг за шагом, особенности конструкции и характера разрушений его базовых узлов и деталей.


3. Разрушение гидротурбины


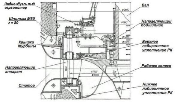
Общий вид гидротурбины в разрезе показан на рис. 6.

Рис.6. Радиально осевая гидротурбина СШГЭС

3.1. Разрушение направляющего подшипника и облицовки вала гидротурбины


Общий вид направляющего подшипника гидротурбины с обрезиненными сегментами показан на рис. 7 [4].

Рис. 7. Направляющий подшипник гидротурбины
(с самоустанавливающими сегментами)
1- корпус из двух частей; 2- ванна из 4-х частей; 3- верхнее воротниковое уплотнение; 4- нижнее воротниковое уплотнение; 5- сегменты; 6- сухарь; 7- клин; 8- плита опорная; 9- шланговое уплотнение

Как следует из рассмотрения таб. 5, направляющий подшипник турбины воспринимает радиальные силы, вызванные механическими, гидравлическими и электрическими процессами, которые возникают и изменяются в зависимости от изменения режимов работы гидроагрегата.

Таблица 5
Радиальные силы, воздействующие на направляющий подшипник гидротурбины СШГЭС

Как показали натурные испытания направляющих подшипников на нескольких турбинах, рис. 8, суммарные радиальные усилия, возникающие при одновременном воздействии на вал турбины механических, гидравлических и электрических сил, достигают значительных величин — свыше 100 тонн. [4]

Рис. 8. Зависимости максимальных усилий, действующих на турбинные подшипники, от открытия направляющего аппарата на разных ГА
1 –ГА-1, Нбр=136 м; 2 — ГА-2, Нбр=140 м (до балансировки); 3 — ГА-2, Нбр=136 м (после балансировки); 4 — ГА-3, Нбр=138 м; 5 — ГА-3, Нбр=194 м; 6 — ГА-5, Нбр=138 м;7 — ГА-8, Нбр=192 м

Насколько разрушительны эти силы наглядно показано на рис. 9.

Рис. 9. Разрушение нержавеющей облицовки вала гидротурбины
всл
...