автордың кітабын онлайн тегін оқу История Древней Греции
Хаммонд
История Древней Греции
Посвящается моим родителям
Введение
География греческого полуострова и островов
1. Общая характеристика
Климат Средиземноморского региона умеренный, ему не свойственны ни зимние холода Европы, ни летняя жара Африки. Его умеренный характер объясняется влиянием моря, благодаря которому зимой в Средиземноморье господствуют несильные западные ветры, несущие влагу с Атлантики, а летом – сухие и прохладные северо-восточные ветры, в древности называвшиеся этесийскими. Классический средиземноморский климат наблюдается в тех областях, где влияние моря ощущается сильнее всего – на островах, полуостровах и узких прибрежных низинах. Но чем дальше от моря, тем больше климат утрачивает умеренный средиземноморский характер и становится похож на континентальные климаты Европы и Африки. Следовательно, область средиземноморского климата не определяется широтой. Например, в Греции климат такого материкового полуострова, как Аттика, больше похож на климат Халкидики и Арголиды, чем соседней материковой Беотии. Так же и в пределах всего Средиземноморского региона прибрежные низины Испании, Франции, Италии и Греции имеют больше общего с аналогичными побережьями Малой Азии, Сирии, Палестины, Киренаики и Туниса, чем с соседними внутренними областями.
Область средиземноморского климата задавала направление, а также ограничивала распространение микенской культуры, а позже – финикийских и греческих колоний – приморскими районами Средиземного моря, препятствуя их проникновению во внутренние территории Македонии и Сирии, так как все эти приморские районы благоприятны для одного и того же образа жизни. Летняя засуха, наступающая после зимних дождей и солнца, обеспечивает длительный период вегетации, необходимый для созревания оливок, винограда и инжира, и способствует разведению зерновых. Преобладание солнечных дней в сочетании с мягкой зимой и теплым сухим летом стимулирует энергию населения и благоприятствует жизни на открытом воздухе. Люди, привыкшие к таким условиям на низинах Крита, Греции и Финикии, а затем вынужденные искать новые земли, естественно, обращали свои взоры на страны, благословенные средиземноморским климатом.
Рис. 1. Северо-западная Греция
Рис. 2. Северо-восточная Греция
Большую часть территории материковой Греции занимают горные кряжи. Самые высокие из них, протянувшиеся на юг вплоть до Аркадского горного плато на Пелопоннесе, находятся в зоне континентального климата. Эти кряжи, обычно покрытые лесами и кустарниками или же выветрившиеся до голых известняковых и мраморных утесов, мало заселены, но, тем не менее, играют важную роль в экономике Греции. Прежде всего на низинах, в отличие от гор, долгим засушливым летом невозможно пасти скот. Огромные стада овец ежегодно в апреле и мае перегоняют с низин в горы и осенью возвращают обратно. В горах разводят также крупный рогатый скот, коз и свиней. Таким образом, в горных областях занимаются производством мяса и молочных продуктов, которые в сочетании с зерновыми, оливками, фруктами, бобовыми и овощами с низин образуют сбалансированное питание. Кроме того, в горах добывают дерево для топлива и для строительства, в том числе сосну, кедр и кипарис, идущие на кораблестроение, и дуб, служащий источником сырья для производства краски, дубильного экстракта и желудей на корм свиньям. Жители гор, обитающие в редких деревушках и поселениях, сохраняют физическую выносливость и крепость духа, которых их сородичи с низин лишаются вследствие расслабляющего климата и уровня жизни.
Основная часть населения сосредоточена на низинах, в крупных селах и городах и занимается сельским хозяйством, рыболовством и торговлей. Плодородные равнины многочисленны, но невелики по размерам, и общая доля обрабатываемых земель в Греции ныне составляет лишь 18 процентов ее площади, а в древности была еще меньше. Соответственно, земель, пригодных для обработки, всегда было недостаточно, так как выращиваемые на них зерновые являются важнейшим продуктом питания. В отличие от горных областей греческие низины весьма плодородны, густонаселенны, пользуются всеми выгодами умеренного климата и обеспечивают легкий доступ к морю. Цивилизация на низинах развивалась гораздо активнее, чем в горах. Но всякий раз, когда равнинное население обнаруживало склонность к упадку, горцы Аркадии, Ахеи, Этолии и северной Греции брали над ними верх благодаря большей энергичности и жизнестойкости.
В течение всей истории Греции равнинные жители испытывали давление со стороны горцев. В горных областях постоянно скапливалось избыточное население, которое искало себе заработок и средства к существованию на низинах. Время от времени более бедные северные племена, привлеченные теплым климатом и сельскохозяйственным потенциалом равнин, устремлялись на юг. Но низины, имея небольшую площадь, сами страдали от перенаселения; их избыточное население, привыкшее к средиземноморскому климату и образу жизни, отправлялось за моря, в страны с аналогичными условиями. Этот цикл не раз повторялся, хотя и не шел непрерывно, в исторические времена – не только в древности, но и в нашу эпоху.
Эгейское море – наиболее благоприятная область Средиземноморья в смысле климата и расположения. Умеренно жаркое лето длится здесь дольше, зима мягче, море богато рыбой, из которой важнейшее промысловое значение имеет тунец. Эгейское море со всех сторон окружено сушей, кроме юга, где цепочка островов отделяет его от собственно Средиземного моря. Его воды особенно благоприятны для мореплавания в летние месяцы с их регулярными утренними и вечерними бризами у побережья и постоянными северо-восточными этесийскими ветрами в открытом море. Среди множества островов земля практически никогда не исчезает из виду. Днем всегда отличная видимость, по ночам ярко светят звезды, а бесчисленные островки и бухточки обеспечивают защиту во время бурь. Приливы здесь слабые, течения почти отсутствуют, а небольшое судно можно спокойно оставить у берега на отмели. Таким образом, Эгейское море летом является естественной колыбелью для примитивного мореплавания. Но греки, тем не менее, опасались коварства моря, так как в окруженных сушей водоемах без предупреждения налетали шквалы, а подветренные берега зачастую оказывались крутыми и скалистыми. Зимой с ее частыми штормами плавание становится крайне опасным. Даже современный каик, оборудованный навигационными приборами и способный идти против умеренного ветра, зимой редко выходит в море.
Ионическое море, омывающее западное побережье Греции, в какойто мере схоже с Эгейским морем. На побережье обеспечивают укрытие Коринфский, Амбракийский и Орикский заливы (ныне залив Влёра), а вдоль берега тянется цепочка островов с многочисленными гаванями. Здесь в летние месяцы прибрежные бризы также благоприятствуют мореплаванию вплоть до Адриатического моря. Но вход в это море, расположенный между островом Керкира, Орикским заливом и «итальянским каблуком», считается опасным из-за северо-восточных этесийских ветров, которые гонят высокую волну по узкой и длинной Адриатике. Однако древние мореплаватели считали прямой путь от Коринфского залива к Сицилии или Италии еще более опасным. К югу море лишено островов и открыто как для штилей, так и штормов. Корабли в те времена почти никогда не ходили этими водами в Африку. Они предпочитали следовать вдоль цепочки островов к Азии, а оттуда вдоль побережья Сирии и Палестины к Египту.
Сразу же за изобретением мореплавания контакты между средиземноморскими странами начали осуществляться в основном по морю.
Рис. 3. Юго-западная Греция
Рис. 4. Юго-восточная Греция
Путь по суше в большинстве случаев оказывался слишком кружным и тяжелым. По Ионическому и Эгейскому морям пролегали основные маршруты с востока на запад и с севера на юг в Восточном Средиземноморье, так как благодаря многочисленным островам и изрезанной береговой линии в условиях примитивного мореплавания они были безопаснее, чем открытые просторы южной части Средиземного моря. Эгейский регион в различные периоды истории видел расцвет различных центров, которые своим возвышением были обязаны главным образом не естественным преимуществам, а географии торговых путей. Когда богатейшим государством Средиземноморья был Египет, возвысились Кипр, Крит и южная Арголида. Когда сфера торговли расширилась на все Западное Средиземноморье и Черное море, торговым мостом между западом и востоком стал Истмийский перешеек, а важнейшими центрами обмена – прилегающие государства: Эгина, Коринф и Афины. В эллинистическую и римскую эпохи, когда использовались ресурсы восточных стран, на первое место вышли Александрия, Кипр и Родос. Во времена турецкого владычества ведущую роль играли жители островов в центре Эгейского моря. Таким образом, вплоть до развития пароходства, Эгейское море являлось важнейшей узловой точкой торговли между Европой, Азией и Египтом.
Главные сухопутные коммуникации Европы проходят в стороне от Греции. Даже при перевозке товаров из Северной и Центральной Европы на юг через Средиземное море в качестве отправных точек всегда выбирают более удобные Марсель и Венецию либо Черное и Мраморное моря. На Балканском полуострове главный путь из Центральной Европы, проходящий по долинам рек Моравы и Аксия (Вардара), приводит к Эгейскому морю в Македонии на берегу залива Термаикос, не заходя на Греческий полуостров. Лучший сухопутный маршрут с восточного берега Адриатического моря к Пропонтиде (Мраморному морю), пересекая Балканский хребет около Лихнидского (Охридского) озера, ведет в Македонию и следует вдоль побережья Фракии к Византию. Таким образом контроль за сухопутными коммуникациями на Балканах, а также за важнейшим выходом Балканских стран к морю находится в руках Македонии. Преимуществами ее положения воспользовались великие македонские цари и римляне периода республики. Итак, Македония находится в центре коммуникаций Греции с материком. Однако греческим государствам никогда не удавалось полностью покорить Македонию, и в итоге они так и не стали военной силой, способной доминировать на Балканском полуострове. Вместо этого они в поисках богатств и власти обратили свои взоры за море.
На самом Греческом полуострове главным препятствием для сухопутных сообщений является южный отрог главного Балканского хребта. Один кряж образует водораздел между Македонией и Албанией, а широкая полоса параллельных горных кряжей, идущих на юг от Пинда к Орейе на западе и к Парнасу и Геликону на востоке, отделяет восточную Грецию от западной. Эта область имеет собственную речную систему. К югу от Коринфского залива хребет продолжается высокими вершинами Аркадских гор (Эриманф и Киллена) и оканчивается тремя кряжами: это Эгалей, Тайгет и Парнон. Пересечение этого горного пояса крайне затрудительно. Перевалы редки и высоки. Путнику, движущемуся с восточного побережья на западное, нужно преодолеть не один, а несколько водоразделов. Соответственно, сухопутные маршруты с востока на запад важны лишь для местной торговли и как стратегические пути. Переправлять товары гораздо легче по морю.
Сухопутные коммуникации между северной и южной Грецией стягиваются к бутылочному горлышку Истма, проход по которому еще сильнее сужен из-за массива Геранья. Покинув долину Эврота на Пелопоннесе, путешественник должен перебраться через гору Парнон на Аргосскую равнину, по невысокому перевалу у Немеи выйти к Коринфу и далее к Истму. Оттуда на север ведут два главных пути. Один следует по западной части Греции, где горные гряды тянутся параллельно побережью, через невысокий перевал из Эниад к Орику. Путешественник следует по длинной низине (включающей озера Акарнании) к Лимнее и Амфилохийскому Аргосу, а затем по узкому кряжу, поднимающемуся над Амбракийским заливом, в Амбракию и Эпир; далее он пересекает несколько вытянутых параллельно побережью долин через Додону и Атинтанию и спускается в долину Аоя (Вьосы) в сторону Аполлонии или поворачивает на запад к Орикскому заливу. Другой путь на север начинается от Истма и проходит по восточной стороне полуострова, где второстепенные кряжи идут не параллельно, а под прямыми углами к основному хребту. Эти кряжи делят восточную Грецию на множество номов, определяя направление рек, текущих на восток, к Эгейскому морю, и являются препятствием для путешественника, движущегося на север от Истма к Македонии.
Из этих двух путей восточный более труден. Но он гораздо важнее западного, поскольку соединяет стратегически важные Истм и Македонию. Ни тот ни другой путь не годится для перевозки товаров. Почва здесь в основном каменистая, а холмы скалистые, что затрудняет передвижение лошадей, которых в древние времена не подковывали. Вьючными животными служили пони и мулы, а для пахоты чаще применяли быков, чем лошадей. Даже в наше время колесный транспорт мало используется, за исключением шоссе и низин. В древности дорожная сеть была развита в отдельных областях, таких, как Арголида, Аттика и Македония, а главная дорога проходила по Истму. В остальных же местах товары доставлялись в основном на вьючных животных, и любую торговлю на дальние расстояния было проще и дешевле осуществлять морем.
Описанные нами особенности Греции верны почти для всех номов материковой Греции и многих островов. Можно сказать, что каждый ном представляет собой поперечный разрез Греции, включая нагорье, низину и побережье. Например, в Лаконии, Аттике и Акарнании имеются плодородные равнины и оливковые рощи в низинах, так же как и летние пастбища и заросшие лесом горы. То же справедливо и для таких островов, как, например, Кефалления, Крит и Родос. В каждом номе и на многих островах зачастую есть несколько небольших равнин, каждая окружена собственными нагорьями и низинами. Каждый ном или остров, и даже более мелкие области в их границах, самодостаточны в смысле производства продуктов первой необходимости. Эта особенность благоприятствовала возникновению многочисленных государств, которые в основном могли сами обеспечивать себя важнейшими товарами.
Сами номы резко различаются по характеру и ландшафтам, отчасти под влиянием климатических факторов. Влажные западные ветры приносят дожди в основном на западный склон главного водораздела, который образует центральный хребет полуострова, и благодаря этому в Амбракии выпадает 1082 мм ежегодных осадков, в Пагасах – 549 мм, в Патрах – 673 мм, в Афинах – 406 мм, в Элиде – 858 мм, а в Тиринфе – 508 мм. Поэтому в западной Греции более густые леса, лучшие пастбища и не такое яркое солнце, как в восточной Греции. Кроме того, на греческих низинах становится все жарче по мере продвижения на юг; температуры достигают максимума на обращенных к югу равнинах Мессении, Крита и Кипра. Наконец, благодаря влиянию моря на островах и в полуостровных районах материка более умеренный климат, чем в других номах Греции.
Геологическое строение Греции также не отличается единообразием. Главный водораздел материка состоит отчасти из известняков и отчасти из вулканических пород, особенно темно-зеленого змеевика, который спорадически встречается и на некоторых островах Эгейского моря, например на Эгине, Милосе, Фере и Нисиросе. Второстепенные хребты западной Греции известняковые; эта формация полукругом продолжается по внешним островам Эгейского моря от Крита к Родосу и далее к прилегающему побережью Малой Азии. Второстепенные хребты восточной Греции состоят частично из известняков и частично из кристаллических пород, в том числе мрамора и различных минералов; продолжаясь, эти хребты образуют острова центральной части Эгейского моря и противоположный берег Малой Азии. Между этими хребтами и аллювиальными равнинами пролегают пласты флиша (общее наименование песчаников, мергелей, сланцев и конгломератов). Эти пласты, холмистые и покрытые плодородным детритом (обломочным материалом), в восточной Греции шире, чем в западной, и благодаря им на некоторых островах Эгейского моря есть места, пригодные для земледелия. Влияние этих факторов будет проиллюстрировано в нижеследующем обзоре областей Греции.
2. Номы и острова
Внутренние области Эпира орошаются реками Аой (Вьоса) и Арахт, которые зарождаются в центральном массиве хребта Пинд у горы Лакмон. Здесь преобладает континентальный климат, население отличается здоровьем. Благодаря горам и обильным дождям много лесов и пастбищ, но обрабатываемые земли редки; в древности эта страна славилась скотом, овцами, лошадями и козами. В центре страны плато Додона. Здесь главный путь из Амбракии к Орику пересекается с дорогой на восток через гору Лакмон в Фессалию. С запада от хребта Пинд находятся четыре высоких известняковых кряжа параллельно береговой линии, отрезая внутренние области от Ионического моря. Непосредственно к морю выходят лишь плодородные равнины Бутрота и в низовьях реки Ахерон, а также небольшая равнина по реке Тиамис. Эти равнины благодаря средиземноморскому климату дают большие урожаи оливок и зерновых, которые пользуются спросом во внутренних областях, и поэтому население равнин почти не ведет морской торговли. Самая богатая область Эпира прилегает к северному побережью Амбракийского залива. Для нее характерны высокая влажность и мягкие зимы, и потому здесь обильны посевы зерновых, оливковые рощи, фруктовые сады и пастбища, а также богатые рыбой лагуны. Это естественный рынок сбыта для продукции центрального Эпира, и торговый оборот портов здесь самый большой на всем западном побережье.
К восточному берегу Амбракийского залива выходит небольшая прибрежная равнина и покрытые густым лесом холмы Амфилохии, сложенные из песчаника. Они дают древесину и служат убежищем диким свиньям. Стратегическое значение Амфилохии заключается в контроле над путями из Эпира на юг. Акарнания, расположенная на полуострове, где средиземноморский климат сочетается с обильными дождями, богата пастбищами и плодородными равнинами вокруг Страта и Эниад. Известняковые кряжи своим строением напоминают хребты Эпира и тянутся на юг к Коринфскому заливу. Акарняне не занимаются мореплаванием. Как и эпироты, они зачастую отстают в культурном и политическом развитии.
Границы Верхней Македонии образованы высокими горными хребтами. Ее обширные плато, сложенные флишем, отделяются друг от друга менее высокими кряжами и имеют сток либо в озера, либо в реки Аксий, Лидий и Альякмон, которые пробиваются сквозь кольцо гор, окружающих плодородную равнину Нижней Македонии, и впадают в залив Термаикос. Климат Македонии континентальный, ему свойственны суровые северные ветры зимой и сильная жара летом. И климатом, и ландшафтами Македония более схожа с Балканскими странами, чем с Греческим полуостровом. Благодаря обилию леса, скота, лошадей, овец, зерновых и виноградников ее население, закаленное крестьянским трудом, более велико, чем в любой другой области Греции. Торговые пути из глубины страны сходятся на прибрежной равнине. Лучшие гавани на побережье залива Термаикос расположены на полуостровах Халкидики, имеющих средиземноморский климат; их продукция – оливки, фрукты и лес, пригодный для кораблестроения.
Доступ в Фессалию, отделенную от Македонии высоким пиком Олимпа и более низким Камбунийским кряжем, осуществляется с севера либо через Темпейскую долину, затененную платановыми рощами, либо по перевалам к западу от Олимпа. Широкие равнины Фессалии окружены кольцом гор; самые низкие из них отделяют равнины от моря, и вследствие этого реки текут на север, впадая в Пеней, орошающий Темпейскую долину. Климат равнин континентальный, так как массивы Осса и Пелион препятствуют влиянию моря, но зимы здесь не так суровы, как в Македонии. Богатые почвы равнин способствуют обильным урожаям зерновых и большому поголовью породистых лошадей, скота и овец, которые пасутся летом в основном в предгорьях и на альпийских склонах северо-западной Фессалии. Равнины делятся предгорьями на четыре области с центрами в Ларисе, Трике, Арне и Фивах. Кристаллические хребты Магнесии богаты лесом, пастбищами, оливками, фруктами и орехами. Плодородные прибрежные равнины Фтиотиды имеют средиземноморский климат и соответствующее хозяйство; они выходят к закрытому со всех сторон Пагасскому заливу и Эвбейскому проливу. Хотя в горах растет лес, пригодный для кораблестроения, фессалийцы классического периода были сельским народом, не занимавшимся вывозом своей продукции.
Кратчайший путь на юг проходит по высокому перевалу через гору Отрис. Более долгий путь, начинаясь от Гала, проходит по побережью. Оба они выходят на аллювиальную равнину Малиды, плодородную и отличающуюся мягким климатом. Протяженная долина реки Сперхей тянется через холмистые Энианию и Этею, где преобладают пастбища. От истоков Сперхея начинается трудный путь на запад в Амфилохию, пересекающий горный пояс.
Проход в центральную Грецию преграждают хребты Эта и Кнемис. Самый легкий путь проходит по побережью через узкие «ворота» Фермопил и продолжается через Локриду, узкую холмистую полосу с плодородными равнинами в Тронии и Опусе, выходящими к Эвбейскому проливу. Внутренний путь ведет к высокому отрогу Эты и выходит на небольшое плато Дориды, где лежат истоки Кефисса. От этого голого, сурового плато на юг ведут два пути: один через Амфиссу к Коринфскому заливу, а второй по долине Кефисса в Фокиду. Ландшафт Фокиды определяется горным массивом Парнас, поднимающимся над узкой долиной Амфиссы на западе и протяженной плодородной долиной Кефисса на востоке. Его более высокие склоны поросли хвойными лесами и пригодны для летних пастбищ, но предгорья пустынные или покрыты колючим кустарником. Южная сторона Парнаса отвесными утесами возвышается над тянущимся с запада на восток ущельем, по которому проходит путь из Левадии к Коринфскому заливу. На северной стороне ущелья у подножия утесов находятся священные Дельфы, контролирующие западный участок пути, который здесь спускается через обширные оливковые рощи Крисы к Итее. Между ущельем и заливом простирается область изрезанных, труднодоступных известняковых гор. Самая богатая часть Фокиды – обильно орошаемая долина Кефисса с плодородными землями и хорошими пастбищами; ее города расположены на самых крайних отрогах Парнаса.
В Беотию, со всех сторон, кроме юго-востока, окруженную горами, можно попасть по узкой долине Кефисса. Ее обширные и плодородные равнины, как и в Фессалии, летом выжжены солнцем, зимой же обильно увлажняются. Две основные равнины отделены друг от друга невысоким кряжем – отрогом горы Геликон. На этом кряже построены Фивы. На богатой северной равнине с центром в Орхомене лежит озеро Копаис, в которое впадает Кефисс. Дно озера известняковое, изрыто туннелями; когда они прочищаются, озеро мелеет. Южную равнину с плодородной почвой пересекает река Асоп, которая протекает по Аттике и впадает в море около Оропа. В древности Беотия славилась зерном, лошадьми, скотом и овцами. Ее население не занималось мореходством, хотя эта страна выходит к Эвбейскому проливу и Коринфскому заливу.
За хребтами Киферон и Парнес начинается полуостров Аттика с типичным средиземноморским климатом. Его иссушенная каменистая земля лучше всего подходит для разведения оливок; меньшее значение имеют виноградники и инжир. Центральную равнину вокруг Афин ограничивают три отдельные горы: Парнес с хвойными лесами и отдельными летними пастбищами на известняковых вершинах, Пентелик, испещренный мраморными карьерами, и Гиметт, на голых западных склонах которого встречается тимьян и другие медоносные травы. С центральной равнины легко попасть на небольшие равнины Элевсина, Марафона и Месогеи; на первой выращивают пшеницу, на остальных – ячмень. Нижние склоны гор и холмистые побережья поросли вечнозелеными лесами, в которых преобладает низкорослая средиземноморская сосна, служащая источником смолы. Малопригодная для земледелия и скотоводства, Аттика обладает серебряными рудниками в Лаврионе и естественными гаванями, выходящими в Саронический залив и к Кикладским островам. Прибрежная дорога из Элевсина ведет в Мегариду. На небольшой прибрежной равнине ниже Мегары (построенной на голом известняковом выступе) выращивают зерновые и овощи. Внутренняя равнина Мегариды богата виноградом и оливками, а в ее холмистых областях находятся скудные пастбища и леса. Мегарида важна в стратегическом отношении: по ее территории проходит основная дорога из Беотии на Пелопоннес, в Саронический и Коринфский заливы выходят гавани, пригодные для небольших судов.
Вышеописанные номы имеют естественные границы. Между западными и восточными номами тянется горный кряж, центральный массив которого образован горой Лакмон. К северу от этой точки высокие горы сложены преимущественно из змеевика, богаты источниками и покрытые почвой. Их склоны одеты в девственные буковые, хвойные, дубовые и каштановые леса, в которых встречаются медведи и многочисленные волки, а выше начинаются обширные альпийские пастбища, где летом пасутся неисчислимые овечьи стада из Эпира, Македонии и Фессалии. К югу от горы Лакмон проходит широкий пояс известняков, представляющий собой лабиринт высоких хребтов. Через него к Коринфскому заливу пробиваются по глубоким ущельям реки Ахелой, Эвин и Дафн. В этой дикой, лесистой стране источником существования для жителей редких деревень служат яровые культуры (в основном кукуруза), скот, орехи и овощи; на нагорьях расположены летние пастбища для овец с низин, простирающихся на восток и запад. Закаленные горцы являются резервом населения, временами выплескивающимся на равнины. Земли этих племен, образовавшихся в древние времена, известны под названиями Атамания, Долопия, Эвритания, Аперантия и Агрея. К югу горный пояс ограничен Коринфским заливом, на берегу которого лежат номы Этолия и Озолийская Локрида. Их внутренние области с континентальным климатом используются под пастбища, а на низинах, выходящих к морю, климат средиземноморский и хозяйство соответствующее. Наиболее плодородные земли лежат к западу от Термона в Этолии и к югу от Амфиссы в Локриде. Но оба нома настолько изрезаны горными хребтами, что путь с запада на восток крайне затруднителен.
Центральный горный район Пелопоннеса, Аркадия, орошается рекой Алфей, которая течет на запад к морю. В этой высокогорной, удаленной от моря области климат континентальный; посевов зерновых мало, вместо них разводят скот, овец, лошадей, ослов и свиней. Наиболее плодородные земли находятся в долинах Тегеи, Мантинеи, Фенея и Стимфала, где расположены также богатые пастбища. Северные склоны гор Эриманф и Киллены, круто спускающиеся к Коринфскому заливу, образуют область Ахея. Здесь в изобилии разводят виноградники, оливки и фрукты, но узкие долины почти лишены плодородных земель. Выше в горах находятся дубовые и хвойные леса, а на протяженном побережье, к западу от узкого входа в Коринфский залив, лежит удобная гавань в Патрах. К юго-западу от Аркадии проходят три параллельных хребта, заканчивающиеся мысами Акрит, Тенарон и Малея. Центральный хребет, Тайгет, и горы Аркадии делят Пелопоннес надвое. На западе полуострова и на южном побережье Коринфского залива осадков выпадает почти вдвое больше, чем на востоке; следовательно, на западе лучше пастбища и более обширные леса, а берег залива особенно подходит для разведения винограда.
Мессения, в которой южный климат сочетается с обильными осадками, весьма богата виноградниками, оливками, инжиром и пастбищами, а аллювиальные равнины западного побережья и долины Памиса заняты под зерновые. Но сухопутное сообщение с соседними областями затруднено, а использование южных портов осложняется частыми штормами у мысов, окаймляющих Мессенский залив. На западном берегу Мессении находится Пилос с хорошо укрытой бухтой и песчаными пляжами, являющийся поэтому важным портом на морских путях вокруг Пелопоннеса. Дальше к северу лишь в Элиде есть выходящая к морю обширная равнина, известная как Келийская Элида. На этой болотистой низине находятся обширные пастбища для скота, лошадей и овец, а также выращивается зерно. В предгорьях широко распространены виноградники, а вершина горы Эриманф одета в дубовые и хвойные леса. Между Элидой и Мессенией находятся Писатида, орошаемая нижним Алфеем, неподалеку от которой расположена священная Олимпия, и Трифилия, горная, за исключением узкой прибрежной равнины. Эти западные районы Пелопоннеса изобилуют вечнозелеными зарослями маквиса (в которые входят лавр, мирт, земляничное дерево, падуб и можжевельник), что придает этим областям более свежий и приятный облик, чем где-либо в Греции. Сухопутное сообщение на восток плохое. Самый короткий путь через горный пояс от Мессенийской равнины взбирается на гору Тайгет и дальше идет к Спарте; его можно преодолеть за день, но для вьючных животных он труден. Менее тяжелые, но более длинные пути ведут из Мессении и Элиды на плато Мегаполиды, а оттуда на юг к Спарте или через Тегею в Аргос.
На востоке Пелопоннеса Коринфия занимает устье Истмийского перешейка и южные подступы к нему. Поэтому она господствует не только над сухопутной дорогой на Пелопоннес, но и над кратчайшим волоком для грузов и кораблей из Коринфского в Саронический залив, который в древности осуществлялся с помощью катков. На плодородной равнине западной Коринфии выращивают пшеницу, ячмень и прежде всего виноград, но большая часть ее территории – известняки, покрытые редколесьем. Доступ к обоим заливам посредством портов в Лехее и Кенхрах и контроль над Истмом предоставляет Коринфии уникальные возможности для сухопутной и морской торговли. Между Коринфией и Ахеей находится маленький ном Сикиония с плодородным побережьем и лесистыми нагорьями; на юге она граничит с небольшим горным номом Флиасия.
Полуостров Арголида напоминает Аттику очертаниями и климатом. Гора Арахней разделяет ее на две резко различающиеся части. Регионы Эпидаврия, Трезения и Гермионида, где выращивают овощи, оливки и фрукты, более охотно торгуют с Эгиной и Аттикой, чем с Аргосом. Плодородная равнина Арголиды и ее гористые области более самодостаточны. На равнине выращивают озимые зерновые, оливки, виноград, в предгорьях инжир, а на болотистых землях вокруг Лерны и Тиринфа – летние овощи и кукурузу; здесь также имеются пастбища для лошадей и скота. Гавани Навплия и Асина выходят в Критское море. Прибрежный путь на юг проходит через горные регионы Тиреатида и Кинурия в Селласию, где он соединяется с дорогой из Тегеи и далее спускается на центральную равнину Лаконии, «пустой Лакедемон», лежащую между мрачными утесами Тайгета и голыми отрогами Парнона. В течение засушливого лета эта равнина, орошаемая источниками Тайгета и окаймленная оливковыми рощами, плодородна и заманчива, как оазис. Широкий известняковый кряж отделяет ее от болотистого устья Эврота, где находятся пастбища для лошадей, но нет подходящих гаваней. Юго-западная часть Лаконии славится превосходными оливками; южные склоны Парнона бесплодные, за исключением прибрежных районов, где к морю выходят рощи средиземноморской сосны, а на клочках плодородной земли выращивают зерновые и инжир. Штормистые мысы Тенарон и Малея затрудняют вход в Лаконийский залив, а гавани восточной Лаконии удалены от внутренней равнины, поэтому Лакония, как и Мессения, – в первую очередь сельскохозяйственная страна.
Ионические острова представляют собой вершины подводного известнякового хребта, идущего параллельно западному побережью Греции. Сильные дожди сочетаются здесь с умеренным средиземноморским климатом. Имея лучшие гавани, чем на побережье материка, острова удобны для судоходства и служат посредниками в торговле с материком. Керкира, господствующая над входом в греческие воды, получает больше всего осадков, и здесь самая высокая плотность сельского населения в Греции. На жирных почвах острова произрастают оливки, виноград и фрукты, избыток которых экспортируется, на лесистых нагорьях расположены летние овечьи пастбища. Густонаселенный остров зависит от ввоза зерна и зимнего фуража для скота. Керкирская гавань, открывающаяся на восток, господствует над проливом и привлекает торговлю из Эпира. Паксос и Антипаксос, безводные, но с многочисленными оливковыми рощами, служат промежуточными пунктами на пути к Левкасу, отделенному от Акарнании узким проливом, который постепенно заиливается и малопригоден для судоходства. В непогоду этим проливом пользуются, чтобы не огибать белые утесы мыса Левкат. Левкас обеспечивает себя зерном и вывозит оливки, вино, рыбу и соль.
Итака, состоящая из двух гор, соединенных перешейком, почти лишена обрабатываемых земель и пастбищ, но вывозит оливки. Население острова в основном занято мореходством: гавань на восточном берегу и внутреннее положение среди островов позволяют Итаке контролировать вход в Коринфский залив. Кефалления, лежащая восточнее Итаки, – в основном сельскохозяйственный остров; здесь выращивают виноград, зерновые, оливки и фрукты, разводят овец, коз и свиней. Главные экспортные продукты – вино и виноград. От лесов «кефалленской сосны» и рощ маквиса, которые когда-то покрывали высокие горы острова, в наши дни мало что осталось. Более южный каменистый остров Закинф хорошо увлажняется. Его порты выходят к Элиде, с которой остров схож своими ландшафтами и продукцией, а именно пшеницей, вином, овцами и козами. Когда-то обширные леса здесь тоже практически уничтожены.
Из островов Эгейского моря выделяются Эгина и Эвбея, своим расположением удобные для торговли с близлежащим материком. Эгина лежит посередине Саронического залива и господствует над подходами к нему; небольшая укромная гавань острова обращена на запад. Основная продукция острова – свиньи, оливки, а также зерно. В отличие от Эгины скалистый Саламин, расположенный напротив портов Мегариды и Аттики, малозаселен и зависит от материка. На Эвбее, покрытой сосновыми и каштановыми лесами и имеющей обширные пастбища, выращивают зерновые (в основном пшеницу), виноград и оливки. Самая богатая часть острова, Лелантинская равнина, выходит к узкому проливу Эврипос, по которому осуществляется каботажное судоходство, чтобы избежать скалистого восточного побережья сильно вытянутого острова. В южной части Эвбеи имеются месторождения мрамора, свинца и цинка.
К северу от Эвбеи полуостров Магнесия продолжается группой островов Северные Спорады, представляющих собой известняковые массивы, почти лишенные плодородных земель. Население выращивает оливки, имеет давние мореходные традиции. Скиатос, Пепаретос и Скирос обладают превосходными гаванями. Между ними и проливом Геллеспонт (ныне – Дарданеллы) лежат острова Лемнос, Имброс и Тенедос. Лемнос и Имброс состоят в основном из плодородных песчаниковых флишей; на первом производят зерно и вино, второй поставляет дерево и скот. Тенедос экспортирует вино; выращиваются также зерновые. В этой группе островов самая лучшая гавань на Лемносе. Тасос и Самофракия находятся у побережья Фракии. Тасос – богатый остров с умеренным климатом и значительными осадками; его продукция – вино, фрукты, оливки, овцы, мед и древесина, имеются серебряные рудники. Благодаря его положению и естественным гаваням развита торговля с Фракией. Самофракия с ее гранитным пиком и бесплодными берегами покрыта густыми лесами; с острова вывозят древесину, сыр и фрукты.
Киклады, заканчивающиеся на юго-востоке островами Анафи и Аморгос, представляют собой продолжение хребтов Эвбеи и Аттики и являются остановочными пунктами на кратчайшем пути из Греции на Самос и в Малую Азию. Группа островов от Андроса до Наксоса богата мрамором, более южные острова, как и южная Эгина, отчасти вулканические. В древности на Сифносе добывали золото и серебро. Все Киклады гористые и похожи на Аттику климатом и хозяйством: производятся оливки и вино, зерна не хватает. Наксос и Милос, имеющие крупные пастбища, вывозят сыр. В центре этой группы лежат Делос и Сирос, которые в различные времена служили обменными рынками. Более южные Милос и Фера – важные остановки на прямом маршруте от Пелопоннеса в юго-восточную часть Эгейского бассейна. Внешние Эгейские острова образуют продолжение западногреческого известнякового пояса, идущего полукругом к карийскому побережью Малой Азии.
Кифера и Антикифера лежат между Лаконией и Критом, крупнейшим из греческих островов. Вдоль всего Крита проходит высокий хребет, который в древности покрывали леса из кипарисов, кедра, сосны и дуба. Лучшие порты острова находятся на северном берегу, поэтому можно сказать, что Крит выходит на Эгейский архипелаг, а не в открытые просторы Средиземного моря. Благодаря разнообразию ландшафтов и продукции остров живет на самообеспечении, и даже в наши дни его торговый баланс положительный: вывозятся виноград, вино, оливки, фрукты, орехи, шкуры и древесина. Наиболее плодородные земли находятся на жаркой равнине Гортина и Феста; к северу от этой равнины седловина в хребте выводит к порту Ираклион и к пологим холмам, на которых расположен Кносс. Сухопутное сообщение с высокогорными плато, где производят сыр и зерно, а также с западной равниной в Сидонии и восточной равниной в Ситии затруднено. К востоку от Крита на пути к Родосу лежат Касос и Карпатос. На этих островах благоприятный климат: долгое жаркое лето умеряется западными ветрами. Основное занятие жителей засушливого Касоса – рыболовство, в то время как Карпатос экспортирует оливки, вино и фрукты, но ввозит зерно. На Родосе в значительном количестве выращивают зерновые, вывозят оливки, вино, фрукты, овощи и мед. Гора Атабирис, заметный ориентир для моряков, в прошлом была покрыта кипарисовыми и хвойными лесами, использовавшимися для кораблестроения. Гавани острова, расположенные на его восточном берегу, не только контролируют вход в Эгейское море, но и являются точкой пересечения морских путей из материковой Греции и с островов, из Финикии и с юго-востока, и из Геллеспонта вдоль побережья Малой Азии.
Последний путь проходит мимо островов, окаймляющих побережье Малой Азии. Самые богатые из них – Лесбос и Хиос; продукция первого – оливки, вино, инжир и древесина, второго – вино, инжир и смола мастикового дерева; на обоих в значительном количестве выращивают зерновые, а горы изобилуют лесами и пастбищами. Самос поставляет вино, оливки и фрукты, Икария – скот и мед, а население мелких островов, сгруппированных вокруг Коса, живет главным образом за счет моря. Юго-восточнее за пределами Эгейского моря лежит Кипр. Его небольшие гавани являются важными пунктами на прибрежном пути из Египта в Эгейский бассейн и господствуют над побережьями Киликии и Финикии. Промежуточное положение Кипра отражается в смешанном происхождении его населения, которое является потомками греков и жителей соседних азиатских стран. Природные богатства острова всегда привлекали поселенцев. Остров, богатый медью и древесиной, пригодной для кораблестроения (в первую очередь это кедр, кипарис и сосна), в значительном количестве экспортирует зерно, а в древности славился фруктами и инжиром. Равнина, простирающаяся в глубь острова от Саламина, как и Фестская равнина на Крите, в летние месяцы подвержена иссушающей жаре и своим климатом больше напоминает побережье Ливии.
3. Изменения с древних времен
Современному путешественнику Греция представляется довольно пустынной и бесплодной страной. В древности она была намного более лесистой. Лесные покровы и рукотворные террасы на горных склонах задерживали осадки. Микенские народы потребляли много мяса, да и в более поздние времена дичь изобиловала даже на Пелопоннесе. Когда ее стало мало, в северной Греции по-прежнему разводили крупные стада скота и породистых лошадей. Повсеместно была распространена культура выращивания оливок и виноградарства. Начиная с V в. до н. э.[1], когда на равнинах начало интенсивно развиваться сельское хозяйство, орошение, вероятно, осуществлялось более умело, чем сегодня, и, например, население Беотии тогда было многочисленнее. Резкий упадок производительности начался в позднеримскую эпоху и усугубился в период турецкого владычества, когда производилась бесконтрольная вырубка лесов, козы обгладывали молодые деревья, а в сельском хозяйстве господствовали примитивные методы. Ускоренными темпами шла эрозия. Сильнее всего от нее пострадала западная Греция, открытая влажным ветрам, так как почва там смывалась дождями, оставлявшими лишь голый известняк. Например, большая часть западного Эпира и западной Мегариды, когдато процветавших, сейчас почти незаселена. Аналогичные последствия заметны и в восточной Греции, например в южной Эвбее и на горе Гиметт.
Ускоренная эрозия местами также изменяла береговую линию. Дельты за счет приносимого реками материала отвоевывали пространство заливов Термаикос и Малийского, а благодаря сходившей с гор почве расширилась береговая полоса в Фермопилах и Пегах. Прежде судоходные реки ныне загромождены валунами, поэтому до Пеллы в Македонии и до Амбракии в Эпире уже нельзя добраться на судне. Расширение суши во многих местах более чем компенсировало подъем уровня моря (а возможно, опускание суши) примерно на полтора метра с V в. Но сильнее всего на процветание Греции повлияло открытие Нового Света и морских путей на Дальний Восток, а также изобретение парохода, после чего Средиземное море перестало быть центром мировой торговли, и даже в его пределах важнейшие морские пути из Александрии к Гибралтарскому проливу проходят южнее Греческого полуострова.
Укрепленный акрополь в Димини (Фессалия). Поздненеолитический период
Книга первая
Раннегреческие цивилизации и великие переселения
(ок. 6000—850 гг.)
Источники
Своими знаниями о доисторическом периоде, простирающемся от истоков минойской и микенской цивилизаций до конца эпохи великих переселений, мы в большой степени обязаны археологическим открытиям, которые облекли в материальную форму мифы и легенды, дошедшие до нас благодаря устной греческой традиции. Основной источник археологических данных – раскопки мест, на которых благодаря столетиям людской жизнедеятельности нарос большой культурный слой: строительные обломки, остатки посуды, орудий и т. д. Этот слой разделяется на отдельные уровни (страты); предметы, найденные в одном уровне, считаются принадлежащими к одному времени. Таким образом, из раскопа с четко различающимися уровнями извлекают группы предметов из отдельных эпох, которые, подобно бусинам, нанизанным на нить, образуют хронологическую последовательность и дают возможность реконструировать историю данного места. Если, скажем, в пятом уровне над девственной почвой широкий слой золы, а в шестом – оружие, фундаменты домов и посуда нового стиля, можно заключить, что в этот момент времени поселение претерпело катастрофические перемены. Соответственно нумеруются и поселения на данном месте, например Троя I, Троя II и т. д.
Когда в нескольких стратифицированных раскопах обнаруживают аналогичные предметы, то делают вывод, что данные поселения принадлежали одной цивилизации. Например, при раскопках Филакопи на Милосе была обнаружена последовательность ряда культур, а предметы, характерные для этих культур, были найдены и в других местах на Кикладах. Это дало основания создать концепцию кикладской цивилизации. Известны и другие региональные цивилизации: минойская (на Крите), элладская (в материковой Греции), фессалийская, македонская и т. д. Историю региональной цивилизации можно по тому же принципу, что и историю конкретного места, разделить на периоды и подпериоды, например 1-й раннеминойский или 3-й позднеэлладский. Когда предметы, характерные для одной региональной цивилизации, обнаруживают в стратифицированном раскопе другой региональной цивилизации, делается вывод о существовавших между ними контактах и проводится хронологическая корреляция, скажем, что 3-й позднеминойский и 3-й позднеэлладский периоды начались в одно и то же время. Таким образом выстраивается синхронистическая таблица региональных цивилизаций. В некоторых местах она зияет пробелами, в других сомнительна отчасти изза того, что между данными цивилизациями по какой-то причине контакты прекратились, отчасти из-за того, что не раскопано достаточное количество стратифицированных мест. Даже в самом лучшем случае археологические отметки на шкале времени не являются точными, так как археология в основном занимается лишь «мусором»; так, орудие или украшение, найденные в одном уровне с разбитым горшком, «современны друг другу» лишь в том смысле, что оказались в земле в одно и то же время, а не были одновременно сделаны.
Переходя от региональных цивилизаций к более широким понятиям, мы приходим к традиционному делению на неолит (новокаменный), бронзовый и железный века. Они названы так по материалу, из которого в основном производились орудия, – камню, бронзе (или меди) и железу. Но эти века не имеют четких хронологических рамок и всеобщего характера. Например, бронзовые орудия появились в разных регионах в разное время, а некоторые отсталые народы и по сей день пользуются каменными орудиями. Даже в пределах одной Греции бронзовый век начался не одновременно во всех областях. Кроме того, существует некоторый простор для интерпретаций, когда региональная цивилизация переходит от использования камня к использованию бронзы, как в случае Фессалии. Тем не менее разделение на неолит, бронзовый и железный века очень удобно для сопоставления региональных цивилизаций, и мы в дальнейшем будем его придерживаться.
Чтобы связать всю структуру археологических находок с нашей хронологией, используют письменные источники Египта, Вавилона и Малой Азии, содержащие списки царей с указанием годов правления, которые можно перевести в нашу систему летоисчисления. Так, известно, что Аменхотеп III правил в Египте в 1412–1376 гг. Печати и скарабеи его супруги, царицы Ти, найдены на Крите среди посуды 2-го позднеминойского периода и в Микенах среди посуды 3-го позднеэлладского периода. Следовательно (принимая во внимание и другие факты), переход от 2-го позднеминойского к 3-му позднеминойскому и от 2-го позднеэлладского к 3-му позднеэлладскому периодам относится приблизительно к 1400 г. Подобные предметы ближневосточного происхождения и, соответственно, эгейские предметы, найденные в странах Ближнего Востока, являются связующими звеньями в хронологической структуре. Их наличие на Крите в минойский период позволяет осуществить достаточно надежную хронологическую привязку, но из-за того, что они редко встречаются на материке, особенно на севере, хронология древнейших периодов этих областей остается неясной. Когда они отсутствуют, например в ранний железный век, мы получаем группу нечетко привязанных друг к другу региональных цивилизаций без какого-либо указания на их место на хронологической шкале. В подобных ситуациях иногда прибегают к стилистическим критериям в предположении, что развитие стилей тоже поддается датировке. Но это неизбежно увеличивает вероятность ошибки. Она может быть уменьшена лишь благодаря новейшим методам. Один из них, радиоуглеродный, основанный на измерении доли радиоактивного изотопа углерода C14 в дереве при известной скорости уменьшения этой доли, позволяет провести абсолютную датировку, но, однако же, не со стопроцентной точностью. Такая точность никогда не будет достигнута. Выше приведена сводная таблица хронологии Греции по современным представлениям. Все даты в ней более или менее условны и отнюдь не являются общепризнанными.
Таблица[2]
Изучение языков дает обильную пищу для этнологии. Филологи установили, что Грецию до появления индоевропейских грекоязычных племен населяли неиндоевропейские народы. Археологи и филологи в целом приходят к выводу, что центры расселения, откуда две эти группы народов направились в Эгейский бассейн, вероятно, находились в южной России и Верхней Армении. В данной книге, которая освещает главным образом историю Греческого полуострова, первые именуются народами нордического, а вторые – средиземноморского типа.
Детальные реконструкции передвижения этих народов в доисторический период в большой степени основаны на интерпретации археологических находок. Такая интерпретация крайне рискованна. Например, затруднительно определить, обязано ли торговым связям или переселениям народов широкое появление предметов, характерных для одной региональной цивилизации, на территории другой цивилизации. В историческое время эллинизация Македонии произошла благодаря торговле, а эллинизация азиатских стран – вследствие завоеваний; но, если полагаться исключительно на данные археологии, такое различие будет трудно определить. Однако имеются критерии, указывающие на смену населения области или данного места: новые погребальные обряды, новый тип планировки домов, следы пожарищ, выше которых появляются новые орудия и оружие, иной физический облик жителей. Четко придерживаясь подобных критериев, историки в целом соглашаются, что на Крите не наблюдалось крупномасштабного притока населения в период с 2700-го по 1330 г. и что в восточной части материковой Греции не было крупномасштабных вторжений в период с 1700-го по 1150 г. Но малозначительные передвижения и даже крупномасштабное мирное проникновение новых народов трудно вычислить археологическими методами, особенно если пришельцы обладают отсталой культурой и быстро ассимилируются цивилизацией хозяев региона.
Имеет значение также учет климатических факторов. Первобытные народы не склонны к переселению из одной климатической зоны в другую, потому что тогда разрушается их экономика. Если им все же приходится переселяться, они с большей вероятностью осядут по дороге, в области переходного климата. При массовых миграциях или колонизациях мигранты или колонисты стараются найти страну, климатом похожую на их родину. Иллюстрацией служит миграция из материковой Греции на западное побережье Малой Азии. Эолийцы выбрали северный сектор побережья, дорийцы – южный, а ионийцы – центральный; на их выбор, очевидно, повлияли климат и ландшафты тех областей, из которых они прибыли. Так же и минойцы, микенцы, финикийцы и греки колонизировали лишь прибрежную полосу Средиземноморья. Поэтому предположение, что средиземноморские народы могли селиться в областях с холодным климатом, таких, как внутренняя Македония и Сербия, опровергается аргументами географии и историческим опытом.
Устные предания народов Греции уходят корнями в далекое прошлое, но на этом основании ими не следует пренебрегать. Их содержание отчасти дошло до нас благодаря сочинениям авторов раннего классического периода, особенно Гомера, Гесиода, Геродота и Фукидида. Иногда устные предания четко подтверждаются археологическими находками. Теперь нам известно, что объекты и события, описанные Гомером, действительно были по крайней мере за триста лет до Гомера. Предания о происхождении греческих народов и других племен вполне соответствуют археологическим находкам и выводам, сделанным филологами на основе изучения диалектов, названий и т. д. Следовательно, мнение о том, что устные предания в целом содержат указания на реальные исторические факты, хорошо обосновано.
Очевидно, что реконструкции доисторического периода всегда были и будут спорными по своему характеру и приблизительными в деталях. Тем не менее границы установленных фактов становятся все точнее, а приближения – все уже. Любая реконструкция всегда была и будет не только преждевременной, поскольку нас всегда ожидают новые находки, но и личной, так как она основана на личной оценке разнообразных возможностей. Автор данного труда, в частности, больше, чем многие его коллеги, доверяет преданиям, которые донесли до нас ранние греческие авторы. Вероятно, это предостережение необходимо сделать, потому что наш рассказ не обойдется без нередких оценок и поправок, продиктованных осторожностью.
Изображение князя или царя-жреца на фреске в Кноссе. Ок. 1400 г.
2-й позднеминойский период входит в состав 1-го позднеминойского; он наблюдался только в Кноссе и соответствует последним 50 годам 1-го ПМ периода.
Здесь и далее все даты, кроме особо оговоренных, относятся к периоду до новой эры. (Примеч. пер.)
Глава 1
Заселение островов Эгейского моря и минойская цивилизация
1. Зарождение минойской цивилизации
Самое раннее неолитическое поселение на Эгейских островах, обнаруженное в Кноссе на Крите, радиоуглеродным методом датируется приблизительно 6100 г. Переселенцы принесли с собой давнюю традицию гончарного дела и после недолгого периода лагерной жизни стали строить дома из обожженного кирпича. Эти дома имели фундаменты из камня и кирпича, стены из обожженного кирпича и плоские крыши из хвороста, обмазанного глиной; пищу готовили на костровых ямах и в сводчатых печах, зерно мололи каменными жерновами или в ступках. Первые жители Кносса использовали обсидиан, вероятно вывозившийся с Милоса; эта стекловидная вулканическая порода, расщепляющаяся, как и кремень, на слои с острыми кромками, была важным материалом для орудий. Делали они также антропоморфные фигурки из глины и камня. Где находились истоки этой ранней цивилизации, неясно, но, видимо, она не была родственна цивилизациям материковой Греции и, следовательно, происходила не из Малой Азии. После довольно долгого времени использование обожженного кирпича прекратилось, возможно, потому, что климат стал менее влажным, и стал применяться необожженный кирпич. Начали строить более крупные дома, обычно с двумя комнатами и внешним мощеным двором; в последних слоях 1-го ранненеолитического периода, который закончился около 5100 г., находят большое количество фигурок, а также наконечники булав. В следующий период, 2-й ранненеолитический, поселение преобразовалось в город с регулярной планировкой, что видно из ориентации стен, которые оставались на одном месте в течение среднеи поздненеолитического периодов. К концу этого периода цивилизация достигла высокого уровня развития, о чем свидетельствуют крупные здания со множеством комнат, мощеными дворами и большими очагами, не имеющие аналогов на материке или в других местах Крита, где найдено лишь несколько поздних и мелких поселений. Киклады также были незаселены до конца этого периода, и даже тогда лишь на некоторых из них появились небольшие группы людей. Уникальность неолитического Кносса помогает понять своеобразную природу поздней минойской цивилизации, которая явилась результатом смешения иммигрантов из Малой Азии, до начала бронзового века нигде не создавших ничего подобного, и умелого и опытного неолитического населения Кносса.
Ранний бронзовый век (3000–2000) начался с волн иммиграции, в ходе которых были заселены Киклады, а также восточный и центральный Крит. Судя по образцам посуды пришельцев, они были родом из Малой Азии, а на Крите перемешались с более ранними обитателями острова. Судя по найденным в раскопах скелетам, это были коренастые люди с узкими лицами и удлиненными черепами; средний рост мужчин примерно 157 см, женщин – 148 см. Новоприбывшие предпочитали селиться у моря, преимущественно в восточном Крите, где климат теплее, и довольно быстро забыли принесенную с собой культуру внутридомовых очагов. Их большие дома, как и в неолитический период, состояли из множества комнат, а мертвых они хоронили в двухкомнатных гробницах: внутреннее помещение открывалось во внешнее. Дома и гробницы практически неизменного типа характерны для всей этой цивилизации, которая существовала с 3000-го по 1400 г. без каких-либо заметных перерывов, за исключением, может быть, района Феста. Эта цивилизация называется минойской по имени знаменитого Миноса, царя Крита, о котором рассказывают греческие предания, и поэтому жителей Крита раннего бронзового века можно назвать первыми минойцами.
Позже на Фестской равнине появились новые пришельцы. Они хоронили мертвых в круглых постройках, достигавших в диаметре 12 м и, вероятно, имевших тростниковые крыши. В каждой такой постройке найдено по нескольку сотен скелетов, наверное, они служили семейными или родовыми склепами. Так как они напоминают появившиеся гораздо позже ливийские мапалии, вполне возможно, что их строители были выходцами из Африки. В любом случае их культура не повлияла на минойскую цивилизацию.
Во второй период раннебронзового века получили широкое распространение сделанные из меди кинжалы треугольной формы, пилы, туалетные принадлежности и ритуальные двойные топоры, характерные для минойской религии. В это время впервые появляются следы разведения оливок, ввозились длиннорогие быки. В украшениях и печатях, сделанных из золота, слоновой кости, фаянса и стеатита, и изящных каменных вазах просматривается влияние Египта, усилившееся в 3-й период раннебронзового века.
Тем временем на Кикладах поселенцы раннебронзового века создали отдельную, но родственную минойской культуру. Их поселения состояли из жилищ, более примитивных, чем минойские дома; мертвых хоронили в связанном виде в земле, а на Сиросе – в маленьких склепах. Из камня и мрамора с большим искусством делали вазы и фигурки (в основном женские). Обсидиан с Милоса вывозился во все уголки Эгейского бассейна. Кикладцы практиковали мореплавание; их корабли послужили прообразом для маленьких свинцовых моделей и изображений на достаточно своеобразной посуде. Вероятно, ничто не нарушало мирной жизни на островах в течение всего периода минойской цивилизации, если не считать критской экспансии. Благодаря медным рудникам, которые начали разрабатывать уже в 2300 г., и своей позиции посредника между Эгейским бассейном и Востоком довольно рано большое значение приобрел Кипр. В кипрских поселениях раннебронзового века в значительном количестве встречаются цилиндрические печати, которыми вавилонские купцы помечали свои товары.
В период между 2000-м до 1600 гг. минойская цивилизация подошла к вершинам развития. Этот подъем начался в 2000–1750 гг., когда центр власти переместился с восточного Крита в центр острова, особенно на его северный берег. Около 1800 г. была основана колония на Кифере, следовательно, торговля развивалась в западном и северном направлениях. В тот же самый период впервые появились следующие новшества, позже ставшие характерными для минойской цивилизации: дворцы, дорожная сеть со сторожевыми постами между Кноссом и Фестской равниной, святилища на горных вершинах и в пещерах, плавка бронзы (сплав меди с оловом), мечи-рапиры с центральным ребром, набедренные повязки и тугие пояса в качестве мужской одежды и пиктографическое письмо. Кносс и Фест достигли наивысшего уровня культуры в 1900–1700 гг. Эта культура, характерная лишь для этих городов, указывает на их совместное господство над островом. Ремесленники Кносса и Феста брали пример с Египта, в котором тогда царствовала XII династия; но в их натуралистической трактовке египетских мотивов на фресках и посуде и в эволюции пиктографического письма проявляется независимость и оригинальность. Около 1700-го и 1600 гг. произошли два мощных землетрясения. После каждого из них на северном побережье острова, в сфере влияния Кносса, появлялось много новых поселений.
В период между двумя землетрясениями дворцы в Кноссе, Фесте и Маллии подверглись расширению и перестройке. Совершенствовалось оружие. Мечи-рапиры удлинились до 90 см и получили хвостовик, а концы бронзовой оплетки, чтобы она не разматывалась, стали заклепывать и окольцовывать. От пиктографического письма отказались в пользу линейного, которым широко пользовались на острове. Это письмо, известное как «линейное письмо А», вероятно, было слоговым; его знаки писались чернилами на глиняных черепках и, очевидно, на коже, папирусе, пальмовых листьях, коре, а также выдавливались на глиняных табличках и печатях. Примерно каждый третий знак этого письма явно развился из пиктограмм, но происхождение остальных неизвестно. Некоторые пиктограммы и знаки линейного письма А показаны на рис. 8. Знаки писались слева направо, из них расшифрованы лишь те, что обозначали числа. Они свидетельствуют, что минойцы пользовались десятичной системой: единица изображалась вертикальной чертой, десять – точкой, а позже горизонтальной чертой, сто – кружком, тысяча – кружком с четырьмя короткими выступающими черточками, а дробь – знаком «L». Глиняный диск из Феста, относящийся к этому же периоду, представляет собой еще один нерасшифрованный тип письма, не связанный с минойской письменностью. Судя по характеру знаков, этим письмом пользовался народ воинов и мореплавателей, так как некоторые из них изображают корабль, азиатский лук, шлем с плюмажем и круглый щит. Возможно, эта письменность происходит с Эгейских островов или с побережья Малой Азии. Язык минойского линейного письма и фестского диска не греческий, но, вероятнее всего, принадлежал доэллинским средиземноморским племенам[3].
В 1700–1600 гг. Крит вел обширную торговлю с Библом и Угаритом на побережье Сирии, а также с Кикладами. Милос служил обменным рынком, через который минойские товары попадали в материковую Грецию и другие районы Эгейского бассейна, а сам Крит стал культурным центром эгейского мира.
Были предприняты попытки определить язык или языки линейного письма А исходя из предположения, что знаки линейного письма B, аналогичные знакам линейного письма А, имели такое же звучание; но нам неизвестно звучание всех знаков линейного письма B, да и предположение это слишком шаткое, чтобы делать какие-либо серьезные выводы.
2. Минойская цивилизация
Вершина расцвета Крита приходится на 1600–1400 гг. В Закро (юговосточный Крит) был построен великолепный дворец, разрушенный около 1450 г., вероятно, в связи с извержением на Фере. Два типичных города этого периода раскопаны в Гурнии и Псире. Первый – рыночный город, расположенный на невысоком холме, – имел мощеные улицы, которые шли горизонтальными террасами вокруг холма и были связаны друг с другом лестницами. В дома, поднимающиеся ярусами по склонам холма, с улицы вели ступени. По ним попадали в комнаты главного этажа, а ниже находился подвал. На вершине холма стоял особняк повелителя, выходивший в открытый двор и построенный из отесанного камня, в то время как другие дома сооружены из небольших камней, скрепленных глиной. Псира, приморский городок на маленьком острове, поднимается ярусами домов по склонам, обращенным к небольшой гавани; все дома построены из камня, а полы в них вымощены сланцем. Должно быть, оба города выглядели столь же живописно, как современные поселения Эгейских островов. Прекрасное представление об обыкновенном доме дает изображение на фаянсовой плитке раннего периода (рис. 5, а): окна в основном лишь на верхнем этаже (этажах), крыша плоская, а выступ наверху – вероятно, верхний ярус центрального светового колодца. Камни, зачастую клавшиеся на глину, скреплены деревянными балками. В богатых домах вход через световой колодец вел в главную гостиную на первом этаже, где также находились склеп с колоннами, ванная, уборная, прихожая и внутренние лестницы, которые вели в подвал с кладовыми и на второй и третий этаж, где размещались личные покои и спальни (рис. 5, 6). Для канализации использовались глиняные трубы, скрепленные узкими манжетами и глиной.
а) Критский дом 2-го среднеминойского периода. С фаянсовой плитки (фасад)
б) Богатый дом в Кноссе. Ок. 1600 г.
в) Храмовая гробница в Кноссе. Ок. 1600 г.
г) Дом в Тсангли (Фессалия). Средненеолитический период
д) Дом мегаронского типа в Димини (Фессалия). Средненеолитический период
Рис. 5 (а-д)
е) Большой дом в Лерне (Арголида). Раннебронзовый период
ж) Дом мегаронского типа в Эвтресисе (Беотия). Начало среднебронзового периода
з) Тронный зал, вестибюль и крыльцо в центре дворца Пилоса. Ок. 1200 г.
Рис. 5 (е-з)
Мужчины обычно носили набедренную повязку, узкий пояс, а иногда короткую юбку, женщины – юбку, узкий пояс и порой корсаж с глубоким вырезом, обнажающим грудь. Мужчины брили бороды. Представители обоих полов были гибкими и худощавыми, отращивали длинные волосы и вместе присутствовали на спортивных состязаниях и публичных церемониях. На фресках мы видим акробатов: мужчины и женщины, одетые в одинаковые набедренные повязки и пояса, кувыркаются на спинах бегущих длиннорогих быков. О мирной и веселой жизни на открытом воздухе свидетельствуют сценки, изображающие боксеров в перчатках, пирующих сборщиков урожая, танцующих девушек, пьющих юношей и зрителей обоих полов, следящих за состязаниями и танцами. В великолепных изображениях цветов, деревьев, животных и рыб, выполненных нежными красками разнообразных оттенков, проявляется жизнерадостное отношение минойцев к окружающей их природе. Это самая распространенная тема живописи; военные сцены и даже изображения людей встречаются сравнительно редко.
То, что минойцы были очень религиозным народом, подтверждается частотой изображения культовых предметов – двойных топоров, двойных рогов для освящения и трехногих алтарей-столиков для жертвоприношений. Сами эти предметы были найдены в многочисленных святилищах, расположенных как внутри домов, так и под открытым небом. Главной фигурой минойского культа была женщина-богиня. Известно несколько изящных статуэток, изображающих ее в человеческом облике, не нагую, а в минойском платье. Главный ее атрибут – змеи, но также и деревья, птицы и животные, причем в первую очередь бык и голубка. Ее прислужницами обычно выступают жрицы и звероголовые люди, возможно представляющие зверей, связанных с культом богини, на какой-то церемонии. Акцент делается на природе и красоте, а не на вычурности и гротеске. Мужское божество обычно изображается в виде юноши. Кроме этой главной богини и юного бога, встречаются изображения других богинь и богов, последние часто держат копье или щит, но во многих случаях трудно определить, кто именно изображен – бог, жрец или верующий.
Любая попытка реконструировать внутренний смысл и значение минойской религии неизбежно опирается на более поздние аналогии и предположения, возможно уводящие нас от истины. Даже теории о том, что главная богиня этого культа является богиней-матерью, повелительницей животных и богиней деторождения и что бог-юноша – ее сын и возлюбленный, основаны в основном на хорошо известных малоазиатских культах исторического периода. С большей или меньшей уверенностью можно сказать лишь, что минойская религия была антропоморфной по своей концепции и связывала физическую красоту окружающего мира скорее с женским, а не с мужским началом, а также, что минойские верующие, изображенные с воздетыми руками или ладонями, прижатыми к вискам, испытывали скорее благоговение и восторг, а не страх перед сверхъестественным. Нет никаких серьезных доказательств и в поддержку мнения, что минойцы поклонялись умершим; напротив, простота общих погребений, при которых труп связывали и запихивали в большой сосуд или в глиняный гроб, говорит об обратном. Видимо, лишь более зажиточных людей хоронили в высеченных в скале склепах, простых шахтных могилах или в гробницах, устроенных рядом с подножием шахты.
В годы расцвета минойской цивилизации на острове главенствовал Кносс. О его процветании выразительнее всего свидетельствует громадный Кносский дворец с величественными входами и залами, широкими лестницами и обширными кладовыми, изысканными росписями и превосходной кладкой. О значении религиозного культа свидетельствует святилище с колоннами на центральном дворе. Расположенная к югу от дворца изящная храмовая гробница (рис. 5, б), где из склепа с колоннами можно попасть в погребальную камеру, дает основания предположить, что в каком-то виде практиковался и культ умерших правителей Кносса. Согласно более поздней греческой традиции, правителя Кносса звали Минос, он был сыном Зевса и Европы, раз в девять лет советовался с Зевсом, а его супругой была Пасифая, дочь Солнца. Вполне вероятно, что правящие царь и царица Кносса брали себе такие имена в качестве династических титулов и обожествлялись, подобно современным им египетским фараонам. Возможно, на так называемом барельефе царь-жрец (с. 31) изображен Минос, царствовавший в XV в. О богатстве Кносса можно судить по широкому использованию минойскими ремесленниками драгоценных металлов и камней и по сокровищам из хранилищ дворца. Эти сокровища инвентаризированы на глиняных табличках по разновидностям и по стоимости. В хранилищах найдены и медные слитки, которые часто встречаются на острове. Эти слитки, без сомнения, были важны для торговли и, возможно, служили для обмена; однако никаких мелких денег не найдено. Процветание Кносса нельзя приписать исключительно эксплуатации природных ресурсов острова. Скорее всего, его источником являлась заморская торговля.
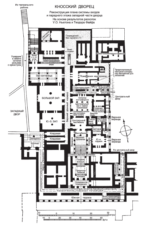
Рис. 6. Реконструкция плана парадных залов дворца. Ок. 1550–1400 гг.
В период 1600–1400 гг. Крит поддерживал очень тесные связи с Египтом. На фреске в могиле Сеннемут в египетских Фивах изображены послы, несущие золотые и серебряные сосуды минойской работы. На фреске в гробнице Рехмир показан прием чужеземных послов с дарами, и некоторые из них, судя по их платью и подношениям, возможно минойцы. Надпись на фреске гласит: «Мирное прибытие великих людей Кефтиу и островов посреди моря». Где находилась страна Кефтиу, неизвестно. Возможно, это был Крит, так как он главенствовал среди морских островов и, конечно, имел дипломатические отношения с Египтом. Кроме того, критские художники на свой лад перерабатывали мотивы, обычные для египетского искусства, такие, как обезьяны и кошки на фресках и папирус на глиняных сосудах. На фреске в Кноссе изображены чернокожие солдаты, возможно наемники из Ливии или Египта. Главный торговый путь в Египет шел из Комо около Феста в дельту Нила, либо прямо, либо через Ливию, где вдоль берега проходит восточное течение. В самом Египте найдено мало произведений критского искусства этого периода, в частности, только несколько предметов минойской или микенской посуды. Поэтому считается, что основными статьями критского экспорта в Египет были шкуры, мясо, фрукты, лес и металлы, а не масло и вино, которое перевозили в кувшинах. Возможно, торговый путь шел через Кипр, так как кипрское линейное письмо на табличке приблизительно 1500 г., найденной в Энкоми на Кипре, вероятно, восходит к минойскому линейному письму. В этот период минойское влияние на Угарит и Библ в Сирии было гораздо слабее, чем в 1700–1600 гг.
В Эгейском бассейне минойская торговля расширялась в 1600–1400 гг. В Ялисе на Родосе, который господствует над входом в Эгейское море, около 1600 г. была основана и процветала примерно до 1425 г. минойская колония. Минойское поселение существовало в Милете на побережье Малой Азии, а другое, вероятно, на Калимносе. Колония на Кифере просуществовала примерно до 1450 г. Таким образом, Крит контролировал морские пути, которые вели из Эгейского моря на юг. Киклады, особенно Милос и Фера, находились под сильным влиянием минойской цивилизации. В Филакопи на Милосе местные мастера освоили минойскую фресковую живопись. Минойское искусство имело большое влияние в восточных и южных областях материковой Греции, что хорошо видно по многим дошедшим до нас фрескам в Тиринфе, Микенах и Фивах. Минойские ремесленники, вероятно, селились на материке, а часто встречающееся название Миноя позволяет предположить, что в разных пунктах побережья существовали минойские торговые фактории. На западе минойские моряки добирались, возможно, до Липарских островов, где найдена минойская посуда XVI в., а может быть, до Мальты и Искьи.
3. Кносс в 1450–1400 гг
В момент наивысшего процветания Крита в Кноссе возникла отдельная культура (известная как 2-я позднеминойская). Время ее существования ограничено примерно 1450–1400 гг. Она ограничивалась пределами Кносса, не затронув остальную часть Крита. Характерной чертой этого культурного анклава были более тесные контакты с центрами микенской культуры в материковой Греции. Теперь Кносс ввозил или имитировал микенские вазы дворцового и эфирейского стилей и микенский алебастр (сосуды приземистых очертаний). В списках оружия, в том числе и боевых колесниц, и в кносских фресках прослеживается милитаристский дух, а под Кноссом были обнаружены шахтное погребение и так называемые «воинские гробницы», в которых нашли тяжелые наконечники копий и бронзовый шлем. Но все же более существенным было использование нового линейного письма в Кносском дворце и в некоторых дворцовых центрах на материке. Предположение, что этот культурный анклав контролировали микенцы, подтверждается расшифровкой нового линейного письма. Теперь нам известно, что язык этого линейного письма, ранее называвшегося линейным письмом B, греческий, в то время как язык линейного письма А явно не греческий; его можно назвать минойским, хотя минойский язык до сих пор не расшифрован. Переход от минойского линейного письма к микенскому линейному письму (как мы теперь можем называть линейное письмо А и линейное письмо B) доказывает, что правители Кносса в 1450–1400 гг. говорили по-гречески.
Микенское линейное письмо позаимствовало две трети своих слоговых знаков из минойского линейного письма, остальные же знаки, передающие лингвистические особенности языка, были изобретены заново. Вероятно, оно возникло в Кноссе, где долго использовалось минойское линейное письмо, а не на материке, который, видимо, до сей поры жил без письменности. Микенцы изменили систему обозначения чисел и, наверно, мер и весов, используя новые символы, один из которых, возможно, изображает боевую колесницу. Микенское письмо, как и предшествовавшее ему в Кноссе минойское, применялось главным образом для описи содержимого дворцовых хранилищ, в том числе воинского арсенала, и для записи дани, выплачивавшейся остальными критскими поселениями, которые, очевидно, подчинялись микенским правителям Кносса. Письмена наносили на сырые глиняные таблички (которые служили ярлыками в хранилище); из этих табличек уцелели лишь те, которые оказались обожжены во время сильного пожара. Необожженные глиняные таблички и другие недолговечные материалы, такие, как кожа, папирус и кора, давным-давно бесследно исчезли; но примечательно, что на других уцелевших предметах, таких, как посуда, надгробия, металлическая утварь и так далее, письмена почти не встречаются. Насколько позволяют судить имеющиеся свидетельства, похоже, что микенское письмо использовалось в первую очередь, а возможно, исключительно для записи сведений о собственности и ее передаче из рук в руки в пределах правящего класса и что писцы были опытными слугами государства или богачей. На материке это письмо было в употреблении, по крайней мере, до 1200 г., и все 200 его знаков никак не менялись, из чего можно сделать вывод, что письменность была консервативным искусством, выполнявшим узкоспециальные функции.
Микенское линейное письмо еще не расшифровано до конца, поскольку неизвестно значение некоторых слоговых знаков. Поэтому прочтение и перевод табличек до сих пор весьма сомнительны, что отчасти происходит также из-за неточной передачи этим письмом греческого языка. Слоговые знаки соответствуют отдельным слогам; одни и те же знаки используются для согласных л и р, одни – для п, ф и б, одни – для к, х и г, а некоторые согласные в конце слогов опускаются, в то время как долгота гласных, таких, как эпсилон и эта, не учитывается, дифтонги обозначаются лишь первым гласным, а иногда (в ау, эу и оу) вторым гласным. Приходится полагаться на контекст, так как слоговые знаки для «ка-ко» могут обозначать либо «плохой», либо «бронзу», а «Керкира» пишется так же, как «Крокилея». Идеограммы (знаки для предметов) и символы для чисел несколько сужают поле интерпретаций, но о многом остается только догадываться. Важнейшим результатом расшифровки линейного письма стало доказательство, что его язык – греческий, а диалект может быть родственен классическому аркадо-киприотскому или эолийскому или и тому и другому. Табличики из Кносса дошли до нас благодаря сильному пожару, случившемуся около 1400 г., и можно предположить, что это письмо употреблялось к тому времени уже около пятидесяти лет. Таблички, вероятно, содержат некоторые греческие личные наименования, в том числе Кносс как «ко-но-со», а также ряд названий критских местностей, откуда во дворец присылали дань. Ничего похожего на имя Минос или каких-либо узнаваемых названий заморских городов, указывавших бы на существование Эгейской империи, не обнаружено, но точно известно, что на правителя Кносса трудилось много рабынь, а дань он получал со всего острова.
Возможно, смена правителей Кносса произошла благодаря династическому браку, а не вследствие войны или завоевания. В любом случае она не повлияла на культуру остального Крита, где минойское письмо употреблялось до 1400 г., а посуда и письмо микенского стиля не получили распространения. Но греческие правители Кносса, конечно, контролировали Крит силой оружия и обладали военно-морским господством в южной части Эгейского моря. Они не следовали примеру греческих правителей микенского мира и не строили массивных укреплений, без сомнения полагаясь, подобно воинам классической Спарты, не на стены, а на свое оружие, и Крит под их властью наслаждался миром. Еще один микенский анклав возник около 1450 г. на Родосе и существовал там одновременно с минойским поселением примерно до 1425 г., когда последнее пришло в упадок. Возможно, что микенцы на Родосе не зависели от микенцев в Кноссе и открыли новый торговый и пиратский путь, который покончил с монополией Крита на контроль над южной частью Эгейского моря.
Своим процветанием в 1600–1400 гг. Крит обязан не одному только таланту своих правителей, моряков и ремесленников. Он пользовался также выгодами своего положения в сложной системе высокоцивилизованных государств, окружавших Восточное Средиземноморье, и ресурсами внутренних стран Европы, Азии и Африки. Из этих государств самым богатым был Египет; в это время, как и позже, в эллинистический и римский периоды, он привлекал к себе морскую торговлю всего Средиземноморского региона. Морские пути, ведущие из Эгейского бассейна в Египет, пролегали сквозь кольцо зависимых от минойцев островов, которые простирались от Киферы до Родоса. И пока минойцы владычествовали над морем, процветание Крита было обеспечено.
В один весенний день в конце XV в. неукрепленный Кносский дворец был разграблен и сожжен до основания. В то же самое время, а может быть, несколько раньше, такая же участь постигла все важнейшие города Крита. Тогда же минойские колонисты, вероятно, покинули Ялис на Родосе. Эта катастрофа покончила с господством Крита, но и после этого Крит оставался процветающим и важным островом. Западная часть Крита развивалась более основательно, чем в предыдущий период, а гениальные достижения в искусстве, религии и общественной жизни не пропали бесследно. Но с превосходством Крита было покончено, и дух минойской цивилизации исчез навсегда. Причина этой катастрофы неизвестна. Некоторые говорят о восстании островитян против греческих властителей Кносса, но разрушению подвергся не только Кносс, а масштабы бедствия слишком велики, чтобы можно было приписывать их гражданской войне между оседлыми народами. Другие считают, что виной всему было вторжение микенцев с материка. Однако катастрофа не сопровождалась признаками немедленной микенской колонизации Крита; да и устная греческая традиция не помнит такого вторжения. Более вероятно, что уничтожение Кносса и других критских городов, как позже разграбление Трои, Микен и Египетской дельты, произошло в ходе крупного морского набега, предпринятого соединенными пиратскими силами Восточного Средиземноморья с целью сокрушить морское превосходство Крита, ограбить остров и уплыть с добычей. Если так, то это была первая катастрофа, возвестившая постепенный упадок великой средиземноморской цивилизации бронзового века.
Глава 2
Материковая Греция и микенская цивилизация
1. Заселение материковой Греции
Самые ранние останки, найденные на материке и принадлежащие палеолитическому человеку, датируются по крайней мере мустьерским периодом и встречаются в основном в Фессалии, Эпире и Македонии.
Непрерывное же заселение началось гораздо позже, с неолитического народа Фессалии, который пользовался каменными орудиями, но не знал глиняной посуды; эти люди селились деревнями, строя маленькие хижины с утопленным полом, занимались земледелием, скотоводством, рыболовством и охотой. Орудия они делали из обсидиана, который доставлялся с острова Милос. Их сменили (причем в Сескло, возможно, без перерыва) народы, знающие глиняное ремесло, которые примерно в 6000–5500 гг. заселили всю восточную часть материка, доступную от моря. Самое раннее, по данным радиоуглеродного анализа (ок. 6200 г.), поселение известно в Неа-Никомедии, к северу от реки Альякмон на прибрежной равнине Македонии. Его обитатели жили в одноили двухкомнатных домах, сложенных из кирпича на деревянном основании и имевших внутренние подпорки; эти дома размещались вокруг главного здания площадью около 20 кв. м, в котором найдены глиняные стеатопигические женские фигурки, топоры из глины и змеевика, кремневые лезвия и глиняные сосуды тыквообразной формы. Женские фигурки, найденные и в других местах, изображают богиню-мать. Эти люди занимались тем же, что и их не знавшие керамики предшественники. Некоторые из них были высокими долихоцефалами (с вытянутыми черепами), судя по захоронениям в общих ямах, в которые вместе с покойниками не клали ничего, кроме мяса для детей. Они преуспели в обработке камня, особенно диабаза с северного Пинда, делая из него прекрасные долота, топоры, молотки, сосуды и статуэтки (например лягушек). Их глиняная посуда, сперва простая, вскоре стала многообразной, иногда красиво раскрашенной; из глины делали и другие предметы, например печати. Эта ранненеолитическая цивилизация – оседлая, мирная, развивающаяся и знакомая с морскими коммуникациями – существовала около тысячи лет. Она произошла от более древних цивилизаций западной Анатолии и поддерживала с ними контакты. К концу этого периода в северной Фессалии и западной Греции на Левкасе появляется агрессивная культура, которой была известна барботиновая[4] керамика с отпечатками ногтей на глине; эти люди пришли, вероятно, из Македонии и Югославии. Так в северной Греции начались многочисленные контакты между жителями Центральных Балкан и Анатолии.
В средненеолитический период, границы которого простираются за пределы 5-го тысячелетия, агрессивный элемент в северной Фессалии исчез, и в Фессалии, на востоке центральной Греции и в восточном Пелопоннесе один за другим появляются новые народы, пришедшие из разных частей Турции, северной Сирии и Месопотамии. Судя по применению обсидиана, они пользовались морскими коммуникациями. Их дома обычно были прямоугольные, построенные из кирпича на каменных фундаментах, часто имели внутренние подпорки, как дом в Тсангли (рис. 5, г), а примерно с 4500 г. появились строения мегаронского типа, длинные и узкие, с наружным крыльцом (рис. 5, д), прототип которых обнаружен на равнине Конья в Турции. Для разных регионов был характерен свой стиль керамики, а в условиях мира поддерживался высокий уровень земледелия и скотоводства. В поздненеолитический период, занимающий 4-е тысячелетие, наблюдается распространение матовой и полихромной керамики, сходной материалом и узорами с убаидской посудой Киликии и северной Сирии; эта керамика найдена в прибрежных поселениях в Астаке на Левкасе и в окрестностях залива Орик в северном Эпире; тамошние жители, вероятно, пришли из Коринфии и торговали с южной Италией. Под конец этого периода появляются самые ранние поселения на Эгине, Кеосе и некоторых островах Киклад. Крайней точкой распространения такой керамики является Сервия в излучине реки Альякмон, а в Македонии и Фракии жил народ другой культуры, который, судя по его глазированной керамике с резными спиралевидными узорами, имел родственные связи с жителями Центральных Балкан. Родством этих народов можно объяснить появление в северо-восточной Фессалии своеобразной культуры, которая известна по небольшому акрополю в Димини, имеющему кольцеобразные стены и постройки мегаронского типа (см. рис. на с. 26), а также по резным или рисованным спиралевидным украшениям на посуде. В то же время найденные в Димини мраморные статуэтки, видимо, были ввезены с Киклад. Вполне вероятно, что культура Димини возникла из слияния элементов, в конечном счете происходивших из Анатолии и Европы. Таким образом, для длительного неолитического периода, продолжавшегося три-четыре тысячи лет, характерно почти исключительно восточное влияние. Эти мирные земледельцы были знакомы с мореплаванием и искусством, а в их религиозных представлениях, судя по стеатопигическим женским фигуркам, главную роль играла богиня-мать, что, возможно, указывает на наличие матриархата, или, по крайней мере, на общество, не знавшее жесткого патриархата. Но в этих широких рамках существовало большое разнообразие культур, а население Греции к концу неолитического периода представляло собой смешение рас. Вне зоны средиземноморского климата, например в Македонии и северном Эпире, возникли более грубые культуры, некоторыми своими чертами и климатом в местах обитания аналогичные культурам Югославии.
Раннебронзовый век захватывает в основном 3-е тысячелетие. Во время первых двух из трех его периодов (известных как РЭ – 1-й, 2-й и 3-й раннеэлладские), границы которых радиоуглеродным анализом определяются приблизительно как 2800–2500, 2500–2200 и 2200–1900 гг. с региональными отклонениями, несколько волн мигрантов из Турции, особенно из северо-западной Малой Азии, поселились на островах и в восточной части Греческого полуострова к югу от горы Отрис. Типичное раннее поселение 1-го РЭ раскопано в Эвтресисе в Беотии, где найдены медные орудия и оружие, красная полированная керамика и посуда новых типов, например соусницы. Дома в этой деревне были крупнее, чем во 2-м РЭ; в трехкомнатных домах имелись ямы-хранилища (bothroi) и трубообразная впадина в полу, которая, возможно, как-то связана с верой в хтонические божества. В 3-м РЭ соусницы исчезают, но появляются новые типы посуды и новые стили узоров; заканчивается этот период разрушением поселения людьми, которые пришли, вероятно, не с севера, а с запада. Типичное пелопоннесское поселение в Лерне вступило в раннебронзовый век во 2-й РЭ, когда новые поселенцы превратили высокий холм в укрепленный акрополь и застроили его крупными домами. Среди их керамики найдены соусницы, и, кроме того, они делали красивые глиняные печати. К концу 2-го РЭ дворец на акрополе – дом с изразцами (рис. 5, е) – погиб в огне, и в 3-м РЭ вокруг холма возник совершенно новый город со множеством апсидальных домов. Сам же холм был срыт до невысокого круглого возвышения – святилища, имевшего около 19 м в диаметре и окаймленного кольцом камней. Эти обитатели Лерны обладали некоторыми чертами, которые впервые получили повсеместное распространение в среднебронзовый период. Одновременно в Фессалии неолитическая культура Димини продолжила существование и в РЭ период, очевидно, благодаря тому, что ее носители были более воинственными и стойкими, чем их южные соседи. Македония тоже оставалась в неолитической фазе развития, за исключением того, что от торговых поселений, например от Критсаны в Халкидике, – деревушки домов в двадцать, защищенной валом со стороны моря, – по прибрежному пути к Трое в глубь страны проникли кое-какие южные влияния. Собственная культура центральной Македонии была отсталая, однако ее отличали такие характерные черты, как раздвоенные рукоятки и просверленные боевые топоры; кроме того, лошади появились там около 2200 г., раньше, чем в Трое и Сирии. В последнюю фазу бронзового века грубая разновидность характерной македонской керамики распространяется во внутреннем Эпире, куда ее, вероятно, занесли пастушеские семьи. Тем временем народы полуостровной Греции бронзового века, занимавшиеся морской торговлей, поселились на Кефаллении, Итаке и Левкасе, а их влияние распространялось на Додону в южном Эпире. Отмечалось также ответное воздействие из юго-восточной Италии, где существовала развитая неолитическая цивилизация в Мольфетте (Апулия); тамошний народ мореплавателей основал недолговечные поселения в Афионе на северо-западном побережье Керкиры и в АйосСотире на Левкасе.
Таким образом, в финальной фазе раннебронзового века последовательные волны переселенцев с востока заняли Греческий полуостров к югу от горы Отрис, а их морские занятия привели к возникновению поселений на северо-западе и в таких местах, как Критсана, где они соприкасались с соседними народами, пришедшими не с востока. В средней и позднебронзовый века волна переселений поменяла направление и покатилась из северных районов в полуостровную Грецию. Именно этот поток привел на полуостров первых носителей греческого языка, принадлежавшего к индоевропейской группе, в то время как жители Греции времен неолита и раннебронзового века говорили на неиндоевропейских языках. Следы последних сохранились в географических названиях с неиндоевропейскими окончаниями – ssos и – ttos, – inthos или – indos и с окончанием множественного числа – enai, например Parnassos (Парнас), Hymettos (Гиметт), Cnossos (Кносс), Corinth (Коринф), Tiryns (Тиринф), Athenai (Афины) и Mycenai (Микены), а также в названиях средиземноморской флоры и фауны, например, kissos (плющ), byssos (хлопок), melissa, olynthos (дикий инжир), terebinthos (терпентинное дерево). Топонимы с такими окончаниями наиболее часто встречаются в западной и южной Малой Азии, Эгейских островах и на востоке полуостровной Греции, реже всего в Македонии и Эпире. Вполне вероятно, что такое распределение соответствует границам расселения народов. Например, в Эпире такие названия встречаются в районе залива Орик и рек Полиант и Келидн, где селились неолитические народы, и в южном Эпире (Асс, Assos) и гора Перрант (Perranthes), куда проникали народы раннебронзового века. Наоборот, плотность индоевропейских топонимов самая высокая в северной Греции (например, реки Эас или Аой, Ахерон, Ахелой, Инах, Афас, Апсос, Аксий, Альякмон), снижаясь на востоке полуостровной Греции и на Эгейских островах. Не исключено, что это распределение названий существовало уже в последнюю фазу раннебронзового века.
Где бы ни находилась родина индоевропейской группы языков, имеющиеся на сегодня доказательства позволяют утверждать, что в 2500–2000 гг. происходило крупномасштабное переселение индоевропейских народов из Черноморского региона[5]. Они находились на патриархальной ступени развития, на что указывают многочисленные слова для обозначения степеней родства; объединялись они по родственным кланам, каждый со своим царем, советом и собранием свободных граждан, что характерно для хеттов, греков, македонян и римлян; они занимались и скотоводством, и земледелием, но не были знакомы с мореплаванием и поклонялись мужским небесным богам, а не женским божествам, таким, как мать-богиня или повелительница зверей. Племена, пришедшие из Украины, на войне пользовались боевыми топорами и лошадьми, своих вождей хоронили в курганах, а простых со-племенников – в ямах. Самые ранние следы пребывания этих народов вблизи от полуостровной Греции найдены в центральной Македонии: просверленные боевые топоры и лошадиные кости датированы началом 3-го РЭ (ок. 2200 г.). Мы уже отмечали, что носители культуры центральной Македонии начали проникать во внутренний Эпир в 3-м РЭ. Из-за девственных лесов, обильно разросшихся во влажном климате, и недостатка обрабатываемых земель внутренний Эпир был обжит позднее; он был привлекателен лишь для кочевых пастушеских племен.
Согласно Гесиоду, изложившему греческие народные предания в форме генеалогии, Девкалион и Пирра, правившие в Фессалии, родили Эллина и Туйю; от Эллина получили свое имя все грекоязычные народы. «А от Эллина, войнолюбивого царя, родились Дор, Ксут и Эол, любители лошадей; Туйя же родила двух сыновей, Магна и Македона, которые любили лошадей и расселились вокруг Пиерии и Олимпа». Олимп и Пиерия также служили домом греческим богам, особенно небесному богу Зевсу, а Зевс из Додоны стал важной фигурой в бронзовом веке, когда он вытеснил богиню-мать, которая превратилась в Афродиту, дочь Зевса и Дионы. Традиционные представления о греческих богах и их местообитании свидетельствуют, что далекие предки греков долгое время жили в Македонии и Эпире, где климат и в наши дни континентальный, а основное занятие – скотоводство. Судя по имеющимся свидетельствам, эти люди поселились там незадолго до окончания раннебронзового века. В последующем тысячелетии три ветви грекоязычных народов, четко различающиеся своими диалектами – ионийским, эолийским и западногреческим (он же дорийский и северо-западный греческий) – и считающиеся потомками Иона (сына Ксута), Эола и Дора, заявили свои притязания на Греческий полуостров. Возможно, разделение на эти диалекты произошло еще до начала переселения на юг из Македонии или северной Фессалии в последней фазе раннебронзового века.
Среднебронзовый век (1900–1600) в восточной части Греции южнее Малиды начался с жестокого разрушения многих поселений и запустения других. Сменившая их культура отличается некоторыми новыми типами домов, небольшими гробницами и керамикой характерного стиля, которая называется минийской, так как впервые была найдена в Орхомене, городе минийцев. Новый тип домов хорошо представлен в Эвтресисе в Беотии, где деревня раннебронзового века, тесно застроенная квадратными домами с плоскими крышами, была сожжена и сменилась более свободной застройкой, в которой присутствовало много апсидальных и прямоугольных домов мегаронского типа (рис. 5, ж), причем апсидальные дома появились раньше. В них имелся круглый очаг и наполненные золой неглубокие ямы (bothroi), использовавшиеся для приготовления пищи. Более поздние прямоугольные дома имели круглый очаг и помост из утоптанной земли, который, вероятно, служил основанием для печи. Апсидальные дома, а также минийская керамика и каменные боевые топоры появлялись уже в Лерне в 3-й РЭ период, а от среднеэлладского периода там остались и лошадиные кости. Дома, такие же, как в Эвтресисе, были найдены в поселениях того же времени в Тиринфе и Кораку (около Лехея) в восточной Греции и в Термоне и Олимпии в западной Греции.
Основных стилей керамики среднебронзового века два: матовая керамика, возможно естественным путем произошедшая от аналогичного стиля раннебронзового века, и минийская керамика. Последняя являлась новшеством, так как изготовлялась на гончарном круге, а формой напоминала металлические вазы. Серая разновидность минийской керамики характерна для слоя, следующего за уровнем пожарищ, например в Эвтресисе. Часто она встречается и в первых слоях Трои VI, где ее появление совпало с прибытием новых поселенцев. Серая и желтая минийская керамика в течение среднебронзового века распространилась в большинстве областей полуостровной Греции. Использовалась она также в прибрежных поселениях Халкидики и в большом количестве в Трое VI. Керамика, возможно служившая прообразом минийского стиля, найдена в Македонии; там она восходит к последней фазе раннебронзового века.
Хотя некоторые новые элементы среднеэлладской культуры можно приписать грекоязычным переселенцам с севера, не следует забывать, что эти поселенцы, хоть и захватили власть, составляли абсолютное меньшинство, причем среди и без того смешанного населения. Следовательно, среднеэлладская культура создана усилиями не только греческих вождей, но и более древнего и более цивилизованного населения страны. В дальнейшем эта культура обогатилась благодаря заморской торговле. Быстро развивалась торговля с Кикладами; острова служили центрами обмена между восточной частью материка и Критом. Особенно обширной была торговля с Троей; благодаря ей процветали береговые районы Фессалии и Македонии, в первую очередь Халкидика. О торговле с северо-западом свидетельствует в основном находка оружия среднеминойского и среднеэлладского типов в Племмирионе около Сиракуз, в юго-восточной Италии, в долинах Мати и Деволи в Албании, в местности Вайзе у Орикского залива и на Ионических островах. Пока в центральной и южной Греции развивалась цивилизация, Македония и внутренняя Фессалия отставали, а Эпир, Акарнанию, Этолию и, возможно, Керкиру населяли пастушеские народы, во время своего расселения на западе и юге сохранившие македонскую культуру в самой грубой форме, для которой характерны раздвоенные рукоятки. Перемещаясь, народы распространяли свои местные обычаи, причем особенно для нас интересны некоторые погребальные обряды.
Мы уже упоминали святилище в Лерне в виде низкого кургана, имевшего 19 м в диаметре и окаймленного камнями, появившееся в начале 3-го РЭ после жестокого разрушения поселения пришельцами. Единственный более ранний случай такой практики известен по «царским могилам» 2-го РЭ на Левкасе, которые расположены в небольших курганах от 2,7 до 9,6 м в диаметре, насыпанных поверх каменных помостов. Но в среднебронзовый век аналогичные курганы появляются во многих местах Греции. Семейные могилы на Левкасе находятся в круглых курганах; один из них достигает 12,1 м в диаметре, окружен каменной стеной и содержит одиннадцать выложенных камнем прямоугольных гробниц и две погребальные ямы. В курганах, как и в «царских могилах», найдены керамика, украшения и оружие для умерших. Курганы среднеэлладской эпохи были раскопаны в Мальти и других местах в западной Мессении и Ахее, но мертвых в них обычно хоронили в сосудах (пифосах), а погребальных даров не было найдено. В восточной части Греции раскопаны два больших кургана СЭ; тот, что в Элатее (Фокида), содержал ценные подношения, а тот, что в Афидне (Аттика), – нет. Датировка и расположение этих курганов указывают на северо-западные области и свидетельствуют о морских связях вдоль западного побережья, и действительно, недавно в северном Эпире и Албании было обнаружено много таких курганов. Отчеты об их раскопках остались практически незамеченными. Больше всего курганов находится в долине реки Мати, где в наше время (1952–1960) было раскопано 35 курганов; они имеют от 12 до 30 м в диаметре, в высоту достигают 3 м, иногда окружены кольцом камней. В погребениях встречается много предметов; использовались и предание земле, и кремация. Большая часть предметов принадлежит раннежелезному веку, но попадается и оружие СЭ типа. Далее к югу на реке Деволи под Эльбасаном находятся 25 курганов до 5 м высотой и до 45 м в диаметре. Центральные погребения в этих курганах содержат много оружия и даров СЭ эпохи, а в других частях курганов найдены оружие и керамика ПЭ эпохи. В Вайзе у Орикского залива были раскопаны 4 кургана 18–20 м в диаметре и 2,3 м в высоту, и в одном из них на каменной пирамиде, где проводилась кремация, обнаружены оружие СЭ и СМ типов и СЭ керамика. В долине верхнего Дрина во внутреннем Эпире курганы раскопаны в Какави, Бодриште и Водине. Один из курганов в последнем месте имеет 17 м в диаметре и более 3 м в высоту; в нем рядом с центральными погребениями, связанными с каменной пирамидой, найдены оружие СЭ и СМ эпох и СЭ керамика. Кроме центральной пирамиды, обнаружено кольцо камней у периферии кургана и галечный купол чуть ниже нынешней вершины кургана (см. рис. на с. 52). Другие погребения принадлежат к ПЭ периоду.
Курган в Водине в северном Эпире
Очевидно, что люди, воздвигшие курганы в Левкасе, Ахее и Мессении, прибыли туда по морю из окрестностей Албании и северного Эпира; возможно, родственный народ, пришедший по суше, занял Элатею, где найден курган, в котором покойника похоронили с оружием. Курган 3-го РЭ в Лерне и курган в Афидне (Аттика), вероятно, были сооружены для похорон вождей того же происхождения. О том, что в этих курганах содержались могилы членов царской семьи, а не простых людей, говорят не только дары и освящение земли, но и описание кургана Патрокла в поэме Гомера.
Б а р б о т и н – разновидность керамического рельефа. (Примеч. пер.)
Аналогичное переселение происходило в 400–350 гг.
2. Подъем микенской цивилизации
Название микенская происходит от Микен, так как Шлиман, пионер археологии, именно там впервые открыл эту цивилизацию; но оно является вполне корректным, поскольку Микены служили источником и центром многих нововведений. В то время как эта цивилизация родилась из слияния многих идей и навыков, имевшихся как у коренных народов, так и у грекоязычных пришельцев, нет сомнения, что правителями являлись именно последние, обладая исключительным мастерством не только в военном деле, но и в управлении государством. Начиная с открытий Шлимана, могилы первых правителей Микен с их экстравагантной, почти варварской роскошью (описанные ниже) привлекают большое внимание. Один и тот же метод погребения использовался в двух могильных кругах – более ранний, B, находился вне поздней цитадели, а более поздний, A, внутри нее. Земля поверх могильного круга B была срыта в более поздние времена, и археолог предположил, что каждая из 24 могил внутри круга, имевшего 27,5 м в диаметре, первоначально была скрыта под небольшим курганом, но гораздо более вероятно, что их все закрывал один большой курган. Круг отмечался периболом из необработанных камней шириной приблизительно 2 м, таким же, какой найден в Водине во внутреннем Эпире (см. рис. на с. 52). Могильный круг А, также имеющий в диаметре около 27 м, около 1300 г. был перестроен, приобретя нынешнюю монументальную форму, но, вероятно, первоначально он напоминал могильный круг B. Самые ранние захоронения в обоих кругах относятся к концу СЭ эпохи, а другие осуществлялись в 1600–1500 гг. Некоторые захоронения представляют собой прямоугольные гробницы, высеченные в скале, другие – шахтные могилы, в настоящее время имеющие глубину от 1 до 5 м и иногда отмеченные у поверхности каменными стелами. Прямоугольные гробницы были обычны для курганов 2-го РЭ и СЭ периодов на Левкасе и ПЭ периода во внутреннем Эпире, а шахтные могилы, очевидно, первоначально делали в кургане высотой от 3 до 5 м, а затем помечали деревянной или каменной стелой. В Лерне из двух шахтных могил СЭ периода одна уходит в курган, а вторая точно таким же образом вне его. Над купольными гробницами в Микенах, сооруженными после 1500 г., иногда делали насыпь, ограниченную круглой стеной 20–25 м в диаметре, но и эта концепция купола над могилой уже присутствует в эпирском кургане в Водине с его каменным куполом (см. рис. на с. 52). Не менее любопытно содержимое шахтных гробниц. Они намного богаче, чем могилы, найденные в Албании и северном Эпире – отдаленных, отсталых районах, но поразительно напоминают их набором оружия СМ и СЭ периодов, например в Вайзе и Водине также были найдены мечи, кинжалы, наконечники стрел и дротиков. Итак, насколько позволяют судить известные факты, правители Микен и, вероятно, также Лерны и Элатеи в конечном счете были родом из центральной Албании – района, который, как мы видели, в РЭ и СЭ периоды населяли индоевропейские, вероятно грекоязычные народы.
Некоторые из шахтных могил более раннего круга B невелики по размеру и содержат единственный скелет. Другие уходят почти на 3 м в мягкий скальный конгломерат, а могилы на дне шахт имеют кровлю из дерева, тростника и глины, а в одном случае даже из каменных плит. В погребения клали ножи, кинжалы, наконечники копий, мечи (некоторые с золотыми рукоятками и головками из слоновой кости), украшения из золота, серебра и электрона, серебряные кувшины и бронзовые и глиняные вазы, а в семейной могиле с четырьмя скелетами была найдена посмертная маска из электрона. Металлические предметы изготовлены с поразительным мастерством, намного превосходя в этом отношении какие-либо материковые находки более ранних эпох. Над некоторыми могилами установлены каменные стелы, водруженные вертикально на прямоугольные каменные основания, и на них вырезаны сцены войны и охоты. На одной из них, также использовавшейся как основание, изображены «воин, замахивающийся широким мечом на поверженного противника, и два льва, стоящие явно на задних лапах». Шахтные могилы и их содержимое ни в малейшей степени не похожи на какие-либо критские находки того же периода, а скелеты имеют рост от 167 до 180 см – их обладатели были намного более рослыми людьми, чем минойцы.
Могильный круг А, очевидно, предназначался для новой династии, пришедшей к власти около 1600 г. Ее члены похоронены в шести глубоких шахтных гробницах. Самая ранняя из этой группы могила сделана сразу вслед за последними захоронениями могильного круга B, может быть, даже предшествовала им, а последние, возможно, датируются примерно 1500 г. Могилы отмечены скульптурными стелами, на которых встречаются изображения запряженных лошадьми колесниц. Тела захоронены в связанном виде. В могилы мужчинам клали золотые маски и нагрудные пластины, мечи, кинжалы, золотые и серебряные чаши, золотые кольца с печатями, металлические, каменные и глиняные сосуды, а женщинам – золотые диадемы, туалетные коробочки, диски и украшения; двое детей запеленуты в листы золота. В изящном стиле и превосходном исполнении этих изделий чувствуется влияние, а может быть, и рука минойских ремесленников. Но колесницы, преобладание сцен охоты и войны, усы на золотых масках, пристрастие к янтарю в украшениях и шлемы с кабаньими клыками выдают материковое происхождение этих правителей, как и их предшественников, потому что все вышеперечисленное не встречается в критских раскопах аналогичного периода. Янтарь добывался на Балтийском море, а древнейший из известных шлемов с кабаньими клыками найден в поселении среднебронзового века в Эвтресисе (рис. 10, 6). Микенские цари второй династии также, вероятно, были потомками народов бронзового века, которые вторглись в Коринфию и Арголиду и захватили власть в Микенах и Лерне. Их резиденция представляла собой укрепленный дворец, образовывавший Микенскую цитадель, а в состав их царства, вероятно, входили Коринфия и Арголида. Их богатство, по-видимому, возникло в результате контроля над торговыми путями. В порту Кораку неподалеку от Лехея в Коринфском заливе сходились морские пути с севера и запада, а порты Тиринф и Асина теперь торговали напрямую с Критом. Микенцы контролировали также сухопутную дорогу из Пелопоннеса в центральную Грецию. Аналогичные династии были основаны в Фивах, Гуласе и Орхомене; они также подверглись влиянию минойского искусства, и на фреске в Фивах мы видим женщин в минойской одежде. Их держава включала в себя Беотию и Лелантинскую равнину на Эвбее, а своим богатством они были обязаны торговым путям, на суше проходившим через Беотию, а по морю через пролив Эврипос и далее на северо-восток.
За второй династией шахтных гробниц в Микенах следует первый период династии купольных гробниц (ок. 1500–1400 гг.). Вход в такую гробницу вел либо через брешь, либо по коридору, отгороженному стенами, но без потолка (дромоса), который оканчивался у массивного проема в стене толоса (купола). Гробница внутри толоса была в плане круглой, а купол имел коническую форму; его выкапывали в склоне холма, облицовывали камнем, после чего делали сверху насыпь, ограниченную круглой стеной. Блоки, образующие купол, были искусно сбалансированы и опирались друг на друга, чтобы выдержать вес земли и камня. В течение XV в. в Микенах были сооружены две группы толосов, отличающиеся техникой строительства. Прототип купольной гробницы и дромоса, обнаруженный около Пилоса в Мессении, восходит к концу среднебронзового века; он построен в одном из немногих районов, где практиковались захоронения в курганах.
В течение этого периода микенская культура распространилась очень широко. Многочисленные купольные гробницы найдены повсюду в Арголиде и Коринфии; западнее – в Мессении, Трифилии и на Ионических островах; южнее – в Лаконии; севернее – в Аттике, Беотии, Эвбее и Фессалии. В значительной степени материк обязан своим благосостоянием Криту, который в то время контролировал все торговые пути Эгейского бассейна. О богатствах материковых царей можно судить по великолепным чашам из Вафио в Лаконии и по так называемому дворцовому стилю керамики с ее смелыми и пышными узорами. Гробницы их подданных, которые в Микенах, например, жили ниже цитадели, также отражают возраставшее процветание той эпохи. В этих могилах, вырубленных в скале и имевших доступ через открытые дромосы, последовательно хоронили членов одной семьи вместе с их ценным имуществом.
Греческая династия воцарилась около 1450 г. и в Кноссе, откуда правила Критом. Вероятно, микенское линейное письмо было изобретено именно минойскими чиновниками для передачи греческого языка[6]. Это письмо вскоре стало применяться и в материковых дворцах для тех же ограниченных целей – учета собственности и ее перехода из рук в руки. Цари Микен и Фив, очевидно, правили обширными владениями, взимая с подчиненных налоги и организовав эффективную бюрократическую службу. Обстановка их гробниц свидетельствует, что они также вели заморскую торговлю и в 1450–1400 гг. начали соперничать с Кноссом и минойским Критом в этой сфере. Около 1450 г. греческое поселение было основано на Родосе и, вероятно, еще одно на Косе около 1425 г.; продавцы микенских товаров селились в Милете одновременно с минойцами, а в Египте начиная с той эпохи находят больше микенских, чем минойских предметов. На западе микенская керамика найдена в Липаре вместе с минойской керамикой того же периода. Таким образом, материковые государства вышли из младенческого возраста и заняли независимое место в системе процветающих держав.
Процветание Крита и материковой Греции в XV в. в большой степени обязано общему оживлению торговли, которым отмечен зрелый период цивилизаций бронзового века на Ближнем Востоке. В этой торговле теперь очень важную роль играл металл – в слитках или в виде оружия, инструментов и украшений. Египет был особенно богат нубийским золотом, которое он экспортировал, например, в Вавилонию, в то время как серебро ввозилось в основном из Малой Азии. Медь добывалась на Синайском полуострове, а также поставлялась с Кипра и из Сирии. Центры цивилизации более восточной Месопотамии получали медь с Аравийского полуострова, из Закавказья и Малой Азии. Крит с древнейших времен играл важную роль в развитии медного оружия. Изобретенные там в начале бронзового века треугольные кинжалы поставлялись в Испанию, Италию и долину Дуная; в обмен на остров ввозилась медь из копей Испании, Эльбы, Этрурии, Венгрии и Трансильвании. Так развивалась торговля металлами и оружием между Европой, Африкой и Азией, и на ней наживались минойский Крит и Троя, накапливая богатства в золоте, серебре и меди.
Изобретение и использование бронзы – сплава меди и олова – возможно, произошло сперва в Сирии или Малой Азии. Ее широкое распространение усилило значение Европы, ведь богатейшие месторождения олова находились в Корнуолле, Испании, Этрурии и Венгрии. Самое первое бронзовое оружие попадало в Европу из Восточного Средиземноморья тремя основными маршрутами: через Трою в бассейн Нижнего Дуная, через Грецию и Адриатику в Италию и Центральную Европу и через Испанию в Северо-Западную Европу. Например, узкие бронзовые мечи, которые начали производить на Крите около 2000 г., вывозили через Грецию и Италию в центр Дунайского бассейна. Через несколько веков это оружие в Венгрии трансформировалось в широкий рубящий меч, который постепенно распространился в Италии и впервые появился в Греции вскоре после 1375 г. Хотя темп торговли был невелик, область, которую она охватывала, распространялась от богатых янтарем берегов Балтийского моря до низин Месопотамии. Богатейшими центрами обмена являлись Египет, Сирия и Малая Азия. Более того, в XV в. Египет находился на вершине политической власти, завладев Палестиной и Сирией и вступив в союз с Вавилонией и государством Митанни в северо-восточной Сирии; Кипр признал его господство, а Хеттское царство в центре Малой Азии с почтением относилось к его оружию. В этом столетии Египет стал центром цивилизованного мира. Его флот и армии контролировали торговые пути, уходившие в Абиссинию и Африку, в Красное море и Индийский океан, в Южное Средиземноморье и внутреннюю Палестину и Сирию.
Крит и материковая Греция в XV в. были обязаны своим процветанием не минеральным богатствам. Возможно, в Кирре около Дельф добывалось олово, но медные месторождения Крита и серебряные рудники Аттики, вероятно, еще не разрабатывались. Минойцы и микенцы были скорее посредниками и покровителями торговли, которая осуществлялась по Средиземному морю с Египтом и Ближним Востоком, а их местные ремесленники преуспели в производстве оружия и украшений. Кроме того, они экспортировали в Египет шкуры, лес, вино, оливковое масло и пурпурную краску в обмен на благородные металлы, лен, папирус и канаты. В это время, когда Египет и Сирия были главными центрами обмена, Крит занимал особенно выгодное положение на торговых путях в Средиземном море. Он и его владения господствовали над входом в южную часть Эгейского моря и над путями из Сирии, Кипра и Родоса на запад, пока Микены, возмужав, не бросили ему вызов около 1450 г. Затем около 1400 г. морское превосходство Кносса внезапно было уничтожено. Дворцы и сокровища Крита были разграблены, его политическое устройство разрушено. Катастрофа не затронула источники, из которых Крит черпал свое благосостояние, но она позволила другим силам узурпировать ключевую позицию, которую Крит занимал в течение столетий.
Автора книги не убеждают последние данные Л.Р. Палмера, которые он приводит в своем труде «О кносских табличках» (1963).
3. Микенский мир в 1400–1200 гг
Державы материковой Греции были вполне готовы унаследовать лидирующую позицию Кносса в южной части Эгейского бассейна. Ускорив развитие благодаря двухвековым контактам с минойской цивилизацией, они создали изящный микенский стиль керамики, в котором материковая традиция абстрактных узоров и технического мастерства сочеталась с минойским вкусом к украшениям и форме. Эта керамика в значительных количествах экспортировалась и до разграбления Кносса, но после него микенский экспорт резко возрос, через промежуточные пункты на Милосе, Фере и Родосе непрерывным потоком направляясь на Ближний Восток. Благодаря новым греческим поселениям Родос усилился и стал важным центром обмена. Греческие поселения возникли также на южном и восточном берегах Кипра, а впоследствии и в других частях острова. Следы микенского присутствия найдены в Тарсусе, Казанли и Мерсине в Киликии и в карийском Ясе. Греческих купцов принимал Угарит, а их товары через долину Оронт попадили в города на Сирийском плато; недавно микенские предметы были найдены в Посейдионе в Сирии. Микенская керамика также уходила из Аскалона в южную Палестину, а в меньших количествах из Хайфы в северную Палестину. Значительных масштабов достигал ее ввоз в Тельэль-Амарну, которая около 1374–1362 гг. стала столицей Египта вместо Фив, и – в меньшей степени – в Гуроб ближе к Нильской дельте. В течение всего XIV в. микенская керамика отличалась единообразием, и ей не были свойственны местные особенности. Родос и Кипр процветали как главные центры обмена, а также, вероятно, как производители керамики. В конце столетия значительное число выходцев с материка осело на Крите. Они строили дома мегаронского типа и хоронили мертвых в склепах с дромосами. Вероятно, им подчинялось минойское население острова, который в значительной степени продолжал богатеть, пользуясь преимуществами своего положения для торговли с Египтом.
В северной части Эгейского бассейна греческие державы продолжали развивать уже установленные торговые связи с богатым городом Троей. В конце XIV в. Троя VI погибла при землетрясении, но сменившая ее Троя VII А была столь же богата и открыта для торговли с материковой Грецией. Эта торговля, вероятно, осуществлялась по прибрежному пути через Фессалию, Македонию и Фракию, ускорив широкое распространение микенской культуры в Фессалии и Нижней Македонии. На Кикладах (не считая Милоса и Феры) и на Северных Спорадах микенская керамика найдена в небольшом количестве, причем в основном на Делосе; видимо, обитатели этих островов и прибрежные народы западной Малой Азии (за исключением Милета) находились за пределами основной сферы микенской торговли и культуры.
Хотя минойская и микенская керамика попадала в Липару и Искью, а на Крит с Липарских островов ввозили камень липарит, первые признаки заселения Запада относятся к XIV в. В Акраганте и Сиракузах на Сицилии найдены микенская керамика этого периода и купольные гробницы, а в Ории и Таренте в южной Италии – в значительных количествах микенская керамика. Очевидно, в обоих районах жили греческие поселенцы, которые пришли по торговым путям, ведущим в Липару и Искью, и обосновались на выгодных позициях точно так же, как и их наследники шестьсот лет спустя.
Расширение микенского мира и его укрепляющие контакты с Египтом, Сирией, Троей, Италией и Сицилией способствовали процветанию народов материковой Греции. В 1600–1400 гг. культурный процесс, достигший наивысшей стадии лишь в местах нахождения дворцов, очень медленно шел на зависимых территориях; но после 1400 г. начался быстрый рост однородной микенской культуры, распространившейся на всю материковую Грецию, кроме Эпира и внутренней Македонии, на Ионические острова, за исключением Керкиры, и некоторые из Эгейских островов. Этот процесс пошел вспять около 1300 г., когда торговля Греции с Египтом резко сократилась. Кипр стал независимым центром, вывозившим собственные товары в Сирию и Палестину; были построены фортификационные сооружения для защиты медных цехов в его столице Энкоми. Однородность культуры также стала нарушаться, например, на Кипре возник собственный стиль микенской керамики. Таким образом, материковая Греция потеряла многие рынки на Востоке, возможно, и финикийский Библ, который с XV в. перестал ввозить греческую керамику и, вероятно, стал соперником греков в торговле. Троя после 1300 г. также сократила ввоз микенской керамики, а на Западе примерно в тоже время прервались контакты с Сицилией, Липарой и Искьей (но сохранялись с греческими поселениями в южной Италии). Постепенно процветание материковой Греции клонилось к закату вследствие ухудшения условий для заморской торговли, а относительный мир, который наверняка сопровождал пору полного расцвета микенской цивилизации, сменился беспокойным веком, в течение которого были построены еще более мощные укрепления для защиты властителей дворцов.
Дворцы были характернейшей чертой греческой культуры в течение всего микенского периода, и микенский дворец был из них самым прекрасным. Вскоре после 1350 г. цитадель была расширена и окружена массивными «циклопическими» стенами, сложенными из огромных глыб известняка и конгломерата, толщиной до 6 м. Подступы к главным воротам прикрывал мощный бастион. Сами ворота состояли из входа шириной 2,7 м, образованного четырьмя громадными монолитами. Фронтон над воротами был украшен геральдической и религиозной эмблемой Микен – две львицы, положившие передние лапы на пьедестал священной колонны. Небольшие задние ворота, снабженные двойными дверями, вели внутрь ограды с северной стороны. Внутри цитадели широкий пандус вел от Львиных ворот к царскому дворцу.
а) Микенская цитадель A. Львиные ворота; B. Доисторическое кладбище за стенами; C. Зернохранилище; D. Могильный круг A.; E. Пандус; F. Дом вазы с воином; G. Дом с пандусом; H. Южный дом; J. Эллинистические помещения; K. Дом Цунтаса; L. Дворец; M. Фундаменты храмов; N. Дом с колоннами; O. Первоначальная северо-восточная стена; P. Потайной выход; Q. Сток; R. Эллинистический резервуар; S. Потайной резервуар; T. Задняя решетка; U. Микенская террасная стена
б) Купольная гробница «Сокровища Атрея», построенная в Микенах ок. 1330 г.
Рис. 7
Главной особенностью дворца был открытый и просторный двор (рис. 7, а). На восточной стороне двора через вход с колоннами, вымощенный гипсовыми блоками, можно было попасть в вестибюль, а оттуда в парадный зал – мегарон, в котором крашеный оштукатуренный пол окаймлялся рядом гипсовых блоков. В центре мегарона четыре деревянные колонны, обитые с внутренней стороны бронзой, окружали приподнятый круглый очаг (ср. рис. 5, з). Стены зала украшали фрески, на которых изображались колесницы в бою, лошади с конюхами и женщины, гуляющие вне дворца. С западной стороны двора дверь вела в переднюю, отделявшую тронный зал от внушительной лестницы, которая вела ко входу для высокопоставленных посетителей. Жилые помещения дворца находились с северной стороны от двора и имели верхний этаж; вероятно, туда попадали из вестибюля мегарона. В жилых помещениях параллельно северной и южной стенам двора шли два длинных коридора. В северной, самой высокой части дворца находилось святилище с круглыми алтарями из раскрашенной штукатурки; рядом с ними была найдена скульптурная группа из двух богинь и ребенка, сделанная из слоновой кости. Плоская глиняная крыша дворца, укрепленная тростником и стропилами, держалась на горизонтальных балках. С крыши открывался вид на широкую равнину до самого Арголидского залива, а в другую сторону – на горы Аркадии и Лаконии.
Ниже цитадели лежали обширные открытые кварталы города, где жили богатые купцы, находились царские купольные гробницы и начинались дороги, которые по циклопическим насыпям, снабженным водоводами, вели к крепостям на Аргосской равнине и на север к Коринфу. Из купольных гробниц самая прекрасная, «Сокровищница Атрея» (рис. 7 б), имеет купол высотой в 12 м и восхищает благородством своих пропорций. Она построена около 1330 г. как место упокоения царя, для которого была укреплена цитадель и украшены двор, мегарон и тронный зал. Последняя из великих купольных гробниц появилась около 1300 г. В течение XIII в. была перестроена парадная лестница, кольцо циклопических стен расширено на северо-восток, сооружен ход к подземному резервуару, наполнявшемуся из источника за стеной города. В том же веке были закончены массивные укрепления в Тиринфе, а в толще стен устроены галереи-хранилища.
Вне Арголиды самые сильные центры микенской культуры находились в Беотии, где мощная крепость в Гуласе контролировала плодородную аллювиальную равнину вокруг озера Копаис, осушенную микенцами. На кряже, разделяющем главные равнины Беотии, стояла цитадель Фив – Кадмея, а правителей Орхомена хоронили в величественной купольной гробнице, известной как «Сокровищница Миния». Аттика не имела такого значения. Циклопические укрепления Афинского Акрополя были доведены до совершенства в 1250–1200 гг., а к воде в то время вела подземная тридцатиметровая лестница ниже уровня земли. Другие важные центры Микенского царства отмечены прекрасными купольными гробницами и цитаделями процветающих городов, которые были раскопаны в Иолке в Фессалии, Ласе и Амиклах в Лаконии, Пилосе и Перистерии в Мессении, Каковатосе в Трифилии и Термоне в Этолии; имелись также микенские центры на островах Эгина, Кефалления и Левкас.
Укрепления микенских дворцов и преобладание сцен войны и охоты свидетельствуют о воинственном духе греков той эпохи. После гибели Кносса Микены и другие важные города обеспечили себе процветание силой оружия. Да и микенская экспансия за моря не обходилась без насильственных методов, так как в эти тревожные времена меч был хранителем торговли.
Греческие торговцы и поселенцы столкнулись с грозными соперниками в лице сикелов на западе, островитян Киклад, прибрежных народов Малой Азии и финикийцев сирийского побережья. Греческие военные корабли, так же как и корабли минойского Крита, строились с продольной килевой балкой, необходимой при таранной тактике; морские бои нашли отражение в минойском и микенском искусстве. Ранее оружием жителям материка, так же как и критянам, служили мечи-рапиры, колющие копья и щиты с ременными петлями, которые вешали на плечи, оставляя свободными обе руки. Эти неуклюжие щиты использовали при рукопашных единоборствах, но, возможно, в основном они предназначались для защиты от метательных снарядов – копий, стрел и пращей. Жители материка обычно носили традиционный шлем с кабаньими клыками конической формы (рис. 10, б); на Крите и на материке найдены единичные бронзовые шлемы, плотно прилегающие к голове. К концу XIV в. в Эгейском регионе появился рубящий меч, происходивший из Центральной Европы. Это смертоносное оружие привело к возникновению небольших круглых щитов, которые держали в руке, и шлемов с продольными рогами, предназначенными для отражения ударов сверху вниз (рис. 10). Такое вооружение использовалось по всему Ближнему Востоку в течение XIII в.
На войне также широко применяли колесницы. Хотя лошадь с давних времен служила в материковой Греции вьючным животным, на войне она не использовалась до появления колесницы, возможно заимствованной в XVI в. с Ближнего Востока. В Египте и Сирии практиковались массированные атаки колесниц; но мы не знаем, применяли ли греки подобную тактику с самого начала или использовали колесницу как подвижную платформу для метательного оружия.
Греки микенского периода были лишь одним из нескольких могущественных народов Восточного Средиземноморья, и они, разумеется, имели торговые и военные контакты с соседями. Хетты и египтяне, которые вели летописи дипломатических и военных событий, упоминают греков, частенько приезжавших в Трою и контролировавших южную часть Эгейского бассейна. Греки более поздней эпохи в своих преданиях называют своих предков микенского периода ахейцами, данайцами и аргивянами, и поэтому можно надеяться встретить такие наименования в хеттских и египетских летописях.
В XIV в., когда Хеттское царство в Малой Азии контролировало торговый путь по северной Сирии, ведущий из Месопотамии к Средиземному морю, в правление Мурсила II (ок. 1350–1320 гг.) практиковалось поклонение богам хеттов и стран Аххиява и Лазпа. В письме, относящемся к этому или следующему правлению, «брат» хеттского царя (то есть столь же могущественный царь) по имени Тавакавалас, царь Аявалаша и «брат» царя Аххиявы просит о помощи против захватчиков. В более позднем письме (ок. 1300 г.) идет речь о царях Аххиявы, Египта, Вавилонии и Ассирии. Слово «Аххиява» (или в более ранней форме – «Аххайива») явно является транскрипцией греческого слова «Ахея», точно так же как «Аявалаш» (слово с хеттским окончанием) – перевод слова «ахейский». Очевидно, в первом письме упоминаются два ахейских царя: один был царем всей Ахеи, как и во втором письме, и его статус был сопоставим со статусом царей Египта и прочих, а другой – какой-то местный ахейский царек в Малой Азии. Первый, очевидно, правил материковой Грецией. Ключ к личности последнего, возможно, найдется у Геродота, который упоминает, что жителей Памфилии или Киликии когда-то звали гипахейцами. Лазпа – без сомнения, остров Лесбос, а Таройса (в другом хеттском документе) – Троя.
В письменных памятниках Египта XIV и XIII вв. приводятся названия многих эгейских народов. Они участвовали в войнах либо как египетские наемники, либо как союзники Хеттской империи. Среди них встречаются такие названия, как шардана, лука (или лукки), пидаса, муса, каликиша, дарденуи и илиунна. Последние два следует идентифицировать как дарданцы и илионцы, так именуются обитатели Трои в поэмах Гомера. Из этих записей очевидно, что Троя выступала на стороне Хеттской империи в войнах XIII в. с Египтом.
Следующее письменное упоминание об эгейских народах относится к концу XIII в., когда обстановка изменилась к худшему. По-видимому, в материковой Греции тогда велась масштабная война. Экспорт керамики с материка в Сирию, Палестину и Египет прекратился вскоре после 1230 г., и примерно в это же время насильственными методами были основаны новые микенские поселения в Энкоми на Кипре и в Тарсусе в Киликии. Зафиксированы великие набеги на Ближний Восток. В хеттских записях упоминаются неоднократные нападения на Карию после 1250 г. и разграбление Кипра около 1225 г. «Аттарисьясом, человеком из Аххиявы», которого, возможно, следует отождествить с Атреем, царем Микен и отцом Агамемнона, взявшего Трою около 1200 г. В 1221 г. вторжение в Египетскую дельту из Ливии было отражено фараоном, чья победная речь содержит следующие фразы: «Они снова прошли по полям Египта к великой реке; там они остановились на долгие дни и месяцы… Они проводили время в сражениях и походах по всей земле за прокормом для своих животов. Они пришли в египетскую землю, чтобы насытить свои рты». Эти северяне именуются шакалша, акайваша, турша, лука и шардана. Окончание – ша представляет собой египетский суффикс, и поэтому захватчиков можно идентифицировать как сагалассян (из Сагаласса на палестинском побережье), ахейцев, турсенцев, ликийцев и сардинцев.
В первом десятилетии XII в. на западных и восточных подступах к дельте развернулось крупномасштабное вторжение с моря и с суши. В 1194 г. египтяне отбили нападение из Ливии. В нем участвовали пелесет или пулесат (палестинцы), текел, деньен (данайцы), шерден (сардинцы), вешеш и шекелеш (сагалассяне). В 1192 г. египетские лучники и наемники (в том числе турша и шерден) повернули вспять захватчиков с востока. Эта группа, по суше передвигаясь вместе с семьями в тяжелых двухколесных повозках, а по морю – с многочисленным флотом, уже нападала на Аласу (Кипр) и сирийское побережье. По словам египетской хроники, «народы, пришедшие со своих островов посреди моря, наступали на Египет, полагаясь сердцами на силу оружия». «Главную помощь им оказывали пелесет, текел, шекелеш, деньен и вешеш». В 1187 г. было отражено еще одно нападение из Ливии на дельту. Но сухопутные и морские набеги продолжались до тех пор, пока в конце века Египетское царство не оказалось отрезано от Средиземного моря.
Еще одним процветающем центром в Эгейском регионе была Троя. Великий город Троя VI (ок. 1900–1300 гг.) был основан людьми, вероятно родственными грекоязычным народам центральной Греции; они строили мегаронские дома несколько измененного типа, укрепили цитадель и привезли в Азию лошадь. После землетрясения, разрушившего город, он был перестроен аналогично микенским твердыням: царь и его окружение теперь жили за массивной оборонительной стеной.
Троя VI накопила множество богатств в последнюю фазу существования, а торговые и, вероятно, личные связи между Троей и микенской Грецией были очень тесными. Троада располагает хорошими сельскохозяйственными угодьями, а в Пропонтиде была развита ловля тунца; но Троя VI и Троя VII А обязаны своими богатствами в первую очередь контролю за путями между Азией и Европой. Город лежал у входа в Геллеспонт (Дарданеллы), затруднительный для плавания примитивных кораблей. Они не могли пройти по проливу из-за преобладающих в летние месяцы сильных северных ветров и против течения скоростью 2,5 узла. Чтобы попасть в Пропонтиду, примитивные корабли приходилось тянуть канатами, а их груз, возможно, переносить по суше. В то время как европейский берег не годился для этой цели, низменный азиатский берег с прибрежными отмелями, где течение ощущалось не так сильно, лучше подходил для буксировки и переноски грузов. Однако единственным препятствием для транспортировки груза вдоль азиатского побережья был известняковый утес, а к юго-западу от этого утеса лежала Троя. Таким образом, город мог контролировать проход кораблей через Геллеспонт. Удобнее всего переправу из Азии в Европу по Пропонтиде было осуществлять в той точке, откуда сухопутные дороги вели в долину Дуная и на запад, так как вход в Черное море по Босфору был для торговых кораблей бронзового века крайне труден изза течения скоростью 4 узла и северных ветров в летние месяцы. Судя по силе и богатстве Трои VII, она контролировала и Геллеспонт, и Пропонтиду. Торговые пути, расходившиеся из этой точки по морю и по суше, вели в бассейн Нижнего Дуная, в центральную Грецию по фракийскому побережью, в южную часть Эгейского бассейна и на Кипр вдоль азиатского побережья и в Хеттскую империю в центральной Малой Азии, с которой ассирийские купцы наладили оживленную торговлю.
При раскопках выяснилось, что Троя VI^ и поселение в Терми на Лесбосе были разрушены около 1200 г.; примерно тогда же та же участь постигла Мерсин и Тарсус в южных районах Малой Азии, а Хеттская империя была полностью уничтожена варварами, которых, вероятно, можно отождествить с фригийцами. Следующая Троя (VII B) влачила жалкое существование; в ее слоях сперва попадается немного микенской керамики, а затем идет керамика дунайского типа, что говорит об оккупации Трои пришельцами из Европы. Таким образом, процветание Трои оборвалось не менее внезапно, чем существование Хеттской империи.
Таблички с микенским линейным письмом, найденные среди сгоревших руин Микен и Пилоса, вероятно, относятся к десятилетиям непосредственно перед гибелью Трои. Хотя более чем половина пока что расшифрованных слов является личными именами, среди них нет имен ни одного гомеровского героя. Даже в Пилосе не найдено никаких следов Нелея или Нестора.
Рис. 8. Некоторые знаки минойского пиктографического письма (П), минойского письма (А) и микенского письма (Б), иллюстрирующие центральную роль минойского письма в развитии письменности. Моавский и халкидийский алфавиты (М и Х) произошли от финикийского алфавита
На тамошних табличках часто встречаются слоги, читающиеся как «пу-ро» и, вероятно, обозначающие «Пилос». Но это тоже довольно загадочно, ведь на табличках из Кносса сочетание «ко-но-со» попадается достаточно редко. Появление слова «Пилос» станет более понятно, если оно относится к остаткам поселения в Перистерии, а не в Ано-Энглианос, которое археологи идентифицировали как дворец Нестора. Таблички сообщают о запасах оружия, податях и дани, выплачиваемой подданными общества феодального типа, о множестве рабынь и специализированных занятиях царских слуг. Совершались жертвоприношения богам Зевсу, Гере, Посейдону, Гермесу и Афине Потнии. Тягловые волы носили клички наподобие Черный; известно о посылке 30 гребцов в экспедицию, возможно в Плеврон в Этолии. Все это вполне соответствует общественным условиям, которые описаны в поэмах Гомера, посвященных Троянской войне и возвращению героев. Находка в Тарсусе черепков местной керамики с надписями, вероятно сделанными микенским линейным письмом, заставляет нас вспомнить о Ликии, куда, по словам Гомера, было отправлено послание на табличке. Однако эти таблички – лишь описи складов в Пилосе и Микенах, фиксировавшие поступление и убыль припасов, и они не могут соперничать с египетскими и хеттскими документами в освещении международных событий, таких, как Троянская война или переселения народов[7].
Аналогичные надписи микенским линейным письмом были найдены в Липаре.
