автордың кітабын онлайн тегін оқу Строительство дома быстро и дешево
Евгений Симонов
Строительство дома быстро и дешево
От автора
Тили-тили-тили-бом!
Был у кошки новый дом.
Ставенки резные,
Окна расписные.
А кругом – широкий двор,
С четырех сторон забор.
Сказку Маршака «Кошкин дом» в детстве читали все, и многие прониклись мечтой о собственном доме. И в самом деле, у какой-то кошки – и окна расписные, и просторный двор, и никаких соседей с пианино за панельной стенкой. И так хочется воплотить мечту в жизнь – построить собственный дом, в крайнем случае – дачу, местечко, отдаленное от городского шума и суеты.
Кроме того, у дома есть огромное преимущество перед любой квартирой, пусть даже элитной. Дело в том, что квартиру невозможно растянуть ни на миллиметр. Но ведь жизнь не стоит на месте: дети рождаются требуется дополнительная площадь; вырастают – площади нужно еще больше. С течением времени квартиры может попросту не хватить на все семейство. А к любому дому можно сделать пристройку. Или можно построить рядом еще один дом. И в конце концов из скромного трехкомнатного коттеджа выйдет «помещичья» усадьба – настоящее родовое гнездо.
Возникает вопрос: с какой стороны браться за строительство? Сказать: «Я хочу иметь свой дом!» – очень просто. Сделать – гораздо сложнее.
Как выбрать участок под застройку? Какие документы необходимо оформить, чтобы все было абсолютно официально и законно? Какие строительные материалы подойдут лучше всего? Какой фундамент предпочесть? Как сделать гидроизоляцию и теплоизоляцию? Как организовать водоснабжение и энергоснабжение? Какую систему отопления выбрать? Сооружать ли мансарду? Как сориентироваться в массе различных технологий строительства?..
Если вы впервые сталкиваетесь с индивидуальным строительством, то все эти вопросы и многие другие представляются темным лесом, в котором легко заблудиться. Данная книга представляет собой путеводную нить, которая покажет вам путь от стадии выбора участка к готовому зданию. К вашему собственному дому. Вы построите его быстро, дешево и качественно.
Глава 1
Выбор участка для застройки
Только в сказках строительство начинается с возведения стен. В реальной жизни сперва необходимо решить организационные вопросы, то есть определить:
♠ где строить – выбрать земельный участок;
♠ что именно строить – составить проект дома.
Итак, в первую очередь требуется наличие земельного участка. От его характеристик во многом зависит и проект будущего дома, в том числе архитектурные особенности, ведь здание крайне желательно вписать в окружающий ландшафт. Технологии строительства тоже следует выбирать с учетом специфики участка. И не забывайте, что на данном земельном участке должно быть разрешено строительство.
Прежде всего при выборе участка необходимо отыскать компромисс между стоимостью и месторасположением земли. Естественно, чем престижнее местность, тем дороже земля. Но вовсе не обязательно приобретать участок по соседству с особняками звезд и депутатов. Если постараться, можно найти такой, который совместит два, на первый взгляд, взаимоисключающих качества: относительно невысокую стоимость и удобное расположение.
Поэтому, если у вас нет принципиальных требований к местности (к примеру, ваши родители родом из подмосковной деревушки и вы желаете построить дом непременно на «родине предков»), то необходимо ответить на несколько вопросов, которые помогут сделать окончательный выбор.
♠ Где именно должен располагаться дом: в черте города, пригороде или достаточно далеко от города. Если вы живете в мегаполисе, то значение имеет даже направление от города: придется ли вам проезжать через весь город, чтобы выехать на трассу, ведущую к дому, или трасса располагается недалеко от вашей квартиры?
♠ Хотите ли вы иметь дом в коттеджном поселке или деревне либо предпочитаете уединение полное (буквально посреди леса) или относительное (поблизости от населенного пункта, но не в нем самом).
ПРИМЕЧАНИЕ
Выбирая месторасположение, следует учитывать наличие подъездных путей (дом посреди леса – это прекрасно, но как доставить строительные материалы?) и коммуникаций (как вы планируете обеспечить здание электричеством?).
♠ Размеры участка. Определяясь с этим пунктом, нужно сразу прикидывать размеры дома и хозяйственных построек, иначе в результате может оказаться, что строения занимают всю территорию участка. Кстати, в подобных случаях ликвидность недвижимости не просто невысока, но стремится к нулю. Обычно принято соблюдать такую пропорцию: отношение суммарной площади дома и других построек к общей площади земельного участка – 1 : 10. Если же свободной земли останется больше, еще лучше.
Наиболее сложным является строительство в черте города или пригороде, поскольку для этого требуется множество согласовательных и разрешительных документов, которые не так легко (и весьма дорого) получить. Самый простой вариант – строительство дома, удаленного от крупных населенных пунктов. В этом случае также понадобятся различные согласования и разрешения, но получить их будет гораздо проще и, соответственно, дешевле.
Какие-то согласовательные и разрешительные нюансы можно без труда обойти. Так, в некоторых районах Ленинградской области запрещено возводить дома, если площадь застройки (по фундаменту) превышает 25% площади участка. Однако об общей площади дома речи не идет, и вопрос можно решить увеличением этажности: построить двухэтажный дом вместо одноэтажного, обустроить жилую мансарду и т. д.
Гораздо хуже, если строительство разрешено только при определенной площади участка, а облюбованному вами кусочку земли не хватает, скажем, пары квадратных метров. Растянуть участок никак нельзя. Однако можно купить полоску земли у соседей, если участок уж очень понравился.
ВНИМАНИЕ
Прежде чем решиться на приобретение земельного участка, необходимо уточнить все местные нюансы получения согласований и разрешений. Ведь может выйти так, что из-за различных запретов на конкретном участке нельзя будет построить дом, о котором вы мечтаете.
На стоимость земли влияет не только ее месторасположение, но и живописность. Так, земельный участок, находящийся поблизости от водоема и леса, будет стоить дороже, чем тот, рядом с которым проходит автомобильная дорога, а до ближайшего озерца при этом километров пять. Если же участок располагается неподалеку от железнодорожного полотна, он может стоить совсем дешево. Но прежде чем соблазняться подобной ценой, подумайте, понравится ли вам такое соседство, не будут ли раздражать постоянные шум, грязь и пыль от железной дороги. Напомню также, что внешняя привлекательность участка, наличие поблизости водоема и леса влияют и на ликвидность собственности.
Кроме того, необходимо оценить почву на участке, ведь при всей живописности окружающей природы может оказаться, что в данном месте требуется возведение особо сложного и дорогого фундамента, что существенно увеличит стоимость строительства.
Первичный и вторичный рынок
Все знают, что такое первичный рынок квартир, – в подобных случаях речь идет о покупке новой квартиры у застройщика. Но когда дело касается земельного участка, словосочетание «первичный рынок» многих смущает. А оно всего лишь означает приобретение участка, который является собственностью местной администрации. Другими словами, земельный участок не находится в частном владении, его предоставляет администрация муниципального образования.
Замечу, что приобрести земельный участок на первичном рынке сложнее, чем на вторичном, поскольку от потенциального покупателя требуется не только выбрать участок, но и составить официальное ходатайство в местную администрацию, где должны быть описаны:
♠ ориентировочный размер участка;
♠ месторасположение участка;
♠ цель приобретения участка – желаете ли вы просто построить на нем жилой дом или собираетесь вести фермерское хозяйство и т. д. ;
♠ правовой статус участка на момент покупки (наследство, собственность, аренда и т. д.).
Местная администрация, рассмотрев ваше ходатайство, вынесет решение – положительное либо отрицательное. Отказать в предоставлении участка могут по разным причинам, например: на данной территории нет свободных участков (тот, что вы облюбовали, в действительности не является свободным); использование данных земель в целях, указанных в ходатайстве, запрещено (скажем, вы хотите построить жилой дом, а данные земли предназначены исключительно для фермеров-животноводов).
Но, даже получив положительное решение, успокаиваться рано – следует продолжить оформление, то есть:
♠ зарегистрировать права на земельный участок в филиалах областной регистрационной палаты (обычно далеко ходить не надо: филиалы располагаются в том же здании, что и местная администрация);
♠ получить постановление главы местной администрации;
♠ подписать договор купли-продажи;
♠ оформить другие первоначальные правоустанавливающие документы;
♠ получить свидетельство права собственности на землю;
♠ произвести межевание участка (этим занимается Федеральная кадастровая служба).
Приобрести участок на вторичном рынке, с одной стороны, проще, поскольку не возникает проблем с целевым использованием земли, а с другой – сложнее. Дело в том, что риелторские компании в основном занимаются довольно большими участками – площадью от 1 гектара – или предлагают не землю, а готовые загородные дома. Существуют, конечно, частные продавцы, но тут высока вероятность мошенничества.
ВНИМАНИЕ
Не следует оставлять залог за участок до того, как решение о покупке принято окончательно, а все документы и сам участок проверены и оценены приглашенным вами специалистом.
Приведу наглядный пример. Вам предлагают приобрести участок в живописном месте и по весьма привлекательной цене. Продавец объясняет низкую стоимость земли тем, что ему срочно нужны деньги (свадьба дочери, предстоящая операция кого-либо из близких, оплата обучения детей и т. д.). Объяснения обычно выглядят очень убедительно, да и продавец кажется человеком приличным во всех отношениях. Вы осматриваете участок, при этом все устраивается таким образом, что пригласить специалиста вы просто не успеваете. С землей и документами на первый взгляд все в полном порядке. Однако вы, как человек осторожный, настаиваете на том, чтобы участок осмотрел специалист. Продавец охотно соглашается, но упоминает, что есть и другие покупатели, а ведь время не ждет. В результате вы договариваетесь о залоге. При этом сумма совсем невелика по сравнению со стоимостью участка – от 200 до 500 долларов. Вы вручаете продавцу залог, не забыв выяснить его паспортные данные, и даже берете у него расписку, а затем возвращаетесь вместе со специалистом. И вот тут выясняется, что строительство на данном участке затруднительно: слишком высоко залегают грунтовые воды, грунт пучинистый и т п. То есть в итоге строительство обойдется слишком дорого. Естественно, такой участок вам не нужен, и вы отказываетесь от покупки. Но поскольку отказ ваш, а не продавца, залог остается у него.
Очень немногие из тех, кто попался на эту удочку, подозревают, что стали жертвами мошенничества. А ведь участок зачастую даже не принадлежит «продавцу», и документы предъявляются поддельные. Но участок специально выбирается так, чтобы потенциальный покупатель, уже оставивший залог, сам отказался от покупки.
ВНИМАНИЕ
Если продавец по какой-либо причине отказывается представить документы, касающиеся предыдущих сделок, настаивает на внесении залога, а также просит, чтобы решение о приобретении участка было принято немедленно, – это является достаточным основанием для сомнений в его честности.
Чтобы не стать жертвой мошенничества, лучше обратиться к профессиональным риелторам, которые занимаются небольшими участками под застройку. Да, их услуги стоят денег, но зато вам будет предложен не один участок, а несколько подходящих, что существенно облегчит поиски. Кроме того, риелтору можно передоверить оформление сделки (подобная услуга обходится в 300–500 долларов) и не бегать самому по инстанциям с документами.
При общении с риелторами следует учитывать, что их работа – продавать. Разумеется, они склонны приукрашать описания предлагаемых земельных участков. Вам расскажут об очаровательном озере, которое располагается неподалеку от участка, а на самом деле это небольшой пруд с затхлой водой. Вы узнаете о необычайно целебном воздухе соснового леса, примыкающего к участку, но этот лес вполне может оказаться чахлой порослью. А все мыслимые блага цивилизации, якобы доступные владельцу участка, в результате сведутся к крохотному деревенскому магазинчику, в котором даже хлеб купить затруднительно. Не обижайтесь на риелторов. Такая у них работа. Как говорится: на то и щука в море, чтобы карась не дремал. Если вам понравилось описание, съездите и посмотрите на участок. Поговорите с людьми, которые живут неподалеку: соседи обычно знают все, в том числе кто, когда и за какую сумму эту землю покупал и продавал и почему в таком чудном местечке до сих пор не построен дом.
Помните, что ваше представление об идеальном участке для застройки и представление риелтора о том, что вам нужно, могут кардинально различаться.
Договариваясь о купле-продаже, не соглашайтесь на первую предложенную цену. Как правило, она завышена – именно с расчетом на последующий торг. Так что торговаться нужно – в 99% случаев скидка вам обеспечена, и порой весьма существенная (до 30–35% от первоначальной цены).
Кроме того, как бы хорош ни был участок, предложенный вам данным риелтором, оцените несколько разных вариантов – другой участок может оказаться еще лучше. Если вам сообщают, что за каким-то участком уже выстроилась очередь и земля может уйти в другие руки, – ничего страшного. Ваш участок от вас никуда не денется. А подобное заявление риелтора в большинстве случаев является всего лишь рекламным ходом, который должен ускорить совершение сделки. Практически всегда можно попросить продавца «придержать» понравившийся участок до тех пор, пока не будет принято окончательное решение.
Не стоит забывать и о том, что на вторичном рынке можно приобрести не землю, а дом. Порой на весьма неплохих участках стоят самые настоящие развалюхи. Подобные строения оцениваются недорого, а вопрос с разрешением на строительство решается довольно быстро, ведь на участке уже есть дом. А в некоторых случаях можно даже без разрешения обойтись и просто модернизировать имеющиеся постройки. Иногда старый дом сносят, а на его месте возводят новый – и это называют ремонтом.
Межевание земельного участка
Еще недавно объектом любых операций: продажи, обмена, дарения, наследования и т. д. – мог стать лишь земельный участок, который прошел процедуру межевания.
ПРИМЕЧАНИЕ
Межевание – геодезический способ определения границ земельного участка.
Однако Федеральный закон от 23 ноября 2007 г. № 268-ФЗ «О внесении изменений в отдельные законодательные акты Российской Федерации по вопросу оформления в упрощенном порядке прав наследников, а также иных граждан на земельные участки» сделал процедуру межевания необязательной. Тем не менее в пользу межевания есть ряд аргументов, которые следует принять во внимание, приобретая земельный участок.
Зачастую земельные участки, предлагаемые на продажу, достаточно долго никак не используются, и лишь немногие из соседей могут удержаться от соблазна изменить границы «ничейной» земли. «Откусывается» кусочек с одной стороны, с другой… В результате участок не только принимает причудливую геометрическую форму, но и существенно уменьшается. Если же участок прошел процедуру межевания, то по поводу незаконных действий соседей можно не беспокоиться: имеются официально закрепленные границы, и достаточно всего лишь установить ограждение (забор) в соответствии с этими границами (кадастровым планом).
Впрочем, покушаться на границы могут не только соседи. Районные архитекторы, которые должны отвечать за соблюдение генерального плана застройки, редко утруждают себя строгим контролем. В результате то, что указано на генеральном плане, может оказаться лишь красивой теорией, а фактические застройки благополучно «наезжают» на чужую землю. Если же произведено межевание участка, то есть установлен его легальный статус, не приходится корректировать генеральный план за свой счет.
Когда на земельном участке планируется построить коттедж, то межевание становится необходимостью, ведь оно обеспечивает защиту будущей собственности. Кроме того, межевание повышает ликвидность недвижимости, что тоже немаловажно.
Приобрести участок с расчетом впоследствии пройти процедуру межевания самостоятельно – не слишком удачное решение. Межевание занимает довольно много времени (к примеру, в Московской области – от шести месяцев до года), да и собственнику земли придется побегать: представить геодезистам копию генерального плана и акты согласования границ с соседями (а ведь их нужно еще согласовать!); опубликовать в газете объявление о проведении собрания; подать заявление о постановке на учет в Роснедвижимость и т. д.
Впрочем, дело даже не во временных и финансовых затратах (кстати, в той же Московской области межевание обходится в 10–20 тыс руб.). Могут возникнуть сложности другого рода. Представьте, что вы приобрели участок, границы которого нарушили соседи. Вряд ли они охотно подпишут акт согласования границ. Другой вариант: сосед сам был бы не прочь приобрести эту землю, но его не устроила цена; он ожидал, что участок не будет продан и его можно будет купить дешевле, а тут вы разрушили все его планы. Такой сосед тоже вполне может отказаться подписать акт согласования границ, без которого межевание невозможно.
Думая о строительстве собственного дома, нельзя забывать о вопросах наследования и о возможном разделе собственности. И в этом случае межевание значительно облегчит жизнь.
Таким образом, если вы планируете превратить свою землю в дорогостоящую и ликвидную собственность, желательно приобрести участок, который уже прошел процедуру межевания.
На что обратить внимание
Вам понравился участок, и вы готовы его купить. Но прежде, чем выложить за него деньги, уточните, не находится ли данная земля на территории водоохранных зон и санитарно-защитных полос, не относится ли она к сельскохозяйственным угодьям. В противном случае может оказаться, что, став счастливым обладателем участка, вы не сможете построить на нем дом.
Помните, что существует ряд факторов, которые влияют не только на цену земли, но и на последующую стоимость строительства.
Тип грунта и уровень залегания грунтовых вод
От того, какой на участке грунт, зависит вид фундамента, а иногда – и внешний вид дома. Ведь не при каждом типе грунта удастся устроить подвал, гараж в цокольном этаже, погреб и т. д. Наиболее проблемными считаются торфяные и глинистые грунты.
Торфяной грунт – это фактически осушенное болото. Как следствие, он насыщен влагой, а грунтовые воды залегают в нем очень высоко. Проблемы могут возникнуть уже при строительстве, а о сроках безремонтной эксплуатации дома и говорить не приходится.
Что касается глинистого грунта, то осенние дожди или весеннее таяние снега приводит к его размыванию. Кроме того, глинистый грунт может промерзать на глубину до 1,5 м и сильно вспучиваться, что также отрицательно сказывается на строении.
Разумеется, грамотный архитектор практически на любом грунте способен построить даже дворец. Однако все упирается в финансовые возможности. Чем более проблемный грунт на участке, тем дороже сооружение фундамента и, следовательно, строительство в целом. К примеру, возведение двухэтажного кирпичного коттеджа на торфяном грунте обойдется в три-четыре раза дороже, чем если бы такой же коттедж построили на хрящеватом (смесь песка и глины с большим количеством щебня и мелкого камня) или песчаном грунте. К тому же в первом случае сложно гарантировать, что фундамент прослужит долго.
Если уровень залегания грунтовых вод высок, то в период паводков участок (а вместе с ним погреб, подземный гараж, подвал) может быть затоплен.
ПРИМЕЧАНИЕ
На участке, расположенном в низине, подземный гараж, погреб и подвал будут затапливаться каждую весну, даже если зимой было относительно мало снега. А если к тому же грунт глинистый, то для затопления окажется достаточно сильного дождя или нескольких дождливых дней.
Данный вопрос можно решить при помощи устройства основательной гидроизоляции и дренажной системы, однако это предполагает внушительные финансовые затраты.
Проверить уровень залегания грунтовых вод можно в течение часа, вооружившись обычной лопатой. Для этого в разных местах участка нужно выкопать несколько скважин глубиной 0,6–0,7 м. Если через час в них соберется вода, то грунтовые воды залегают высоко. Но даже если углубления остались сухими, следует уточнить у местных жителей, не затапливается ли участок во время весенних паводков и осенних дождей. Ведь при некоторых типах грунтов даже небольшой уклон земли может способствовать затоплению.
Наличие воды и коммуникаций
Стоимость земли и последующего строительства во многом зависит от того, есть ли на участке коллективное водоснабжение или индивидуальный источник воды (колодец, скважина), централизованное газоснабжение, электроснабжение, канализация, телефонная линия.
Водоснабжению нужно уделить особое внимание. Порой даже на участке, расположенном в населенном пункте с централизованным водопроводом, требуется сооружение индивидуального источника воды. Так бывает, если местная система водоснабжения не справляется с нагрузкой, – особенно летом, когда много воды уходит на полив огородов. В некоторых населенных пунктах случаются длительные перебои с водой, и местные жители вынуждены пользоваться колодцами или другими индивидуальными источниками воды.
Однако устройство собственной скважины может стоить весьма дорого. Так, чтобы достичь водоносного горизонта порой требуется вырыть скважину глубиной 60–80 м.
Есть еще один нюанс, который может воспрепятствовать устройству индивидуального источника водоснабжения, даже если водоносный горизонт залегает неглубоко: в некоторых районах вода непригодна для бытового использования, поскольку в ней содержатся бактериологические и (или) химические примеси. Чтобы узнать, каково качество воды, желательно получить заключение санэпидемстанции. Впрочем, если неподалеку от выбранного вами участка имеются скважины, то высока вероятность, что подземные воды на нем будут аналогичного качества, поэтому достаточно опросить соседей.
Канализационная система также может стать причиной головной боли, если изначально упустить этот момент из виду. Оптимальный вариант – наличие на участке коммунальных канализационных сетей. От вас потребуется лишь получить разрешение на сброс определенного объема стоков и при строительстве подключиться к централизованной системе. Однако и здесь могут возникнуть сложности, например, если участок расположен ниже уровня централизованной канализационной системы. Любая авария на центральной линии – и из вашего туалета хлынут сточные воды всего поселка. Кроме того, вам потребуется установить насосы, чтобы стоки могли попасть в централизованную систему: снизу вверх самотеком ничего не пойдет. А это предполагает совсем другие расходы, чем в случаях, когда канализация расположена ниже уровня участка.
Если централизованной канализационной системы нет, то придется организовывать локальную.
Электроснабжение
Электричество необходимо не только для того, чтобы освещать дом, – оно понадобится уже на стадии строительства, ведь иначе не удастся воспользоваться дрелью, электропилой и др. Конечно, вы можете мечтать о доме, расположенном вдали от цивилизации, однако в таком случае готовьтесь не только к примитивной жизни при свечах, но и к достаточно примитивной постройке, ведь большинство современных инструментов невозможно использовать без электричества. Правда, существует альтернативный вариант: приобретение собственной подстанции. Но это потребует дополнительных (и весьма внушительных) расходов.
Если даже вы увидели заветные столбы совсем рядом с участком, не спешите радоваться. Сначала уточните, сколько энергии местная администрация выделяет на каждый дом. Учтите, что согласно существующим нормам одному дому положено не более 9,6 кВт. А в случае, если поселковая подстанция, к которой вы собираетесь подключаться, работает на пределе мощности, может оказаться, что вам достанется всего лишь 6, а то и 3 кВт.
ПРИМЕЧАНИЕ
Электрический чайник потребляет 1 кВт электроэнергии.
Следует знать, что коттедж общей площадью 200–300 м2, а это совсем немного, потребляет около 20–30 кВт. И то лишь в случае, когда электроэнергия не используется для отопления.
Таким образом, идеальные ситуации, когда можно без проблем получить требуемую мощность, встречаются редко.
Обязательно уточните, кто владелец ближайшей подстанции. Может выясниться, что она принадлежит не муниципальным или районным сетям, а вашему соседу. У этой ситуации есть свои плюсы (с соседом проще договориться) и минусы (владелец подстанции имеет право диктовать условия по использованию его собственности, а также может в любой момент отрезать вас от источника электроэнергии).
Вам будет гораздо спокойнее жить, если подстанция является собственностью районных или муниципальных сетей. В этом случае ничто не помешает вам получать оговоренное в документах количество электроэнергии.
Рассматривая возможность получения необходимого количества электроэнергии, обратите внимание на альтернативные источники энергии (солнечные батареи, ветряки и т. д.). Если вы желаете добиться полной автономии в области электроснабжения, примите в расчет такие малозначащие на первый взгляд нюансы, как затененность участка соседними домами и деревьями, доминирующее направление ветра, его сила и т. д.
Прочие факторы
Как говорилось ранее, живописная природа, наличие водоема и леса повышают ликвидность будущей собственности, однако лишь в том случае, если в районе благоприятная экологическая обстановка.
Если вы не желаете отказываться от общения с друзьями и родственниками, оставшимися в городе, то понадобится телефон. Кстати, возможность телефонизации также влияет на стоимость собственности и ее ликвидность.
Узнайте, осуществляется ли централизованный вывоз мусора, доставляется ли почта.
Немаловажным фактором является и доступность медицинских учреждений, таких как поликлиника, больница и аптека, магазинов, почты. Да, можно закупать продукты на неделю вперед в городе, но тогда о свежем хлебе можно забыть.
Если поблизости от участка имеются пляжи и (или) спортивные площадки, это повышает ликвидность недвижимости.
Обязательно обратите внимание на наличие дороги (а желательно – нескольких), по которой можно добраться до участка. При этом нужно выяснить степень загруженности трассы и количество полос для движения: регулярно проводить в автомобильных пробках несколько часов – удовольствие ниже среднего. Кроме того, необходимо узнать – осуществляется ли муниципальное обслуживание дорог. В противном случае не исключен вариант, что зимой вам придется либо самостоятельно расчищать дорогу лопатой, либо за собственные деньги нанимать снегоуборочную технику.
Уточните, ходит ли неподалеку от вашего дома общественный транспорт, даже если у вас имеется не один собственный автомобиль. Порой автомобили выходят из строя, а бывают просто «нелетные» дни (ливни, снегопады, гололед и т. д.), когда благоразумный водитель предпочитает оставить машину в гараже и воспользоваться услугами общественного транспорта.
Поинтересуйтесь уклоном участка, иначе вы рискуете не получить дом своей мечты, а архитектору придется изрядно поломать голову, пытаясь реализовать ваши пожелания в существующих условиях. Если уклон невелик, возможна практически любая планировка дома, но, если он составляет 10–15%, надо будет подумать, что делать с первым этажом. Если же уклон превышает 15%, то на участке удастся возвести лишь жилой дом особого типа – террасный и т п. Кроме того, потребуются дополнительные затраты на подготовку территории и создание проекта дома.
Если участок представляет собой склон, обращенный на север, то от его приобретения лучше отказаться, ведь в доме будет постоянно не хватать естественного освещения, что повлечет не только дополнительные затраты на искусственное освещение дома, но и некоторую мрачность, которую не всегда удается компенсировать даже самым «солнечным» дизайном.
Не слишком хорош и следующий вариант: на участке имеются ровная площадка для постройки жилого дома и отдельные площадки для хозяйственных построек, но в остальном рельеф представляет собой набор возвышенностей и впадин, или же ровные площадки находятся в низине, а остальная территория устремляется вверх. На обустройство такого участка: разбивку клумб, сада, парников, теплиц, сооружение площадок для отдыха, пикника, занятий спортом и др – потребуется довольно много денег. Кроме того, подвальные помещения будут постоянно затапливаться весной или во время сильных дождей либо всю территорию придется регулярно очищать от снега.
Если вы предъявляете жесткие требования к архитектуре коттеджа, не забудьте уточнить, не предусмотрено ли в данном районе типовое проектирование домов, оград и др. С подобным можно столкнуться при строительстве в городском частном секторе. И даже если собственный проект дома реализовать удастся, то почти наверняка придется довольствоваться типовой оградой, обычно изготовленной из штакетника. То же относится и к планировке участка: не везде вам разрешат устроить бассейн и т. п.
Обязательно составьте список всех своих требований, опишите идеальный участок и, рассматривая предложения, следите, чтобы они максимально приближались к вашему идеалу. Лучше чуть дороже заплатить за участок, чем впоследствии тратить гораздо большие суммы при строительстве и эксплуатации дома.
Глава 2
Планировка участка и дома
Если вам кажется, будто, окинув взглядом участок, можно немедленно определить, где будет дом, где цветник, а где хозяйственные постройки, то вы заблуждаетесь. Планировка земельного участка и будущего коттеджа зависит не только от ваших пожеланий, но и от различных нормативов, установленных всевозможными распоряжениями, постановлениями, ГОСТами и СНиПами. Так, на небольших участках необходимо выдерживать минимальное расстояние от строящегося дома до соседского, и неважно, что их разделяет забор: месторасположение дома будет диктоваться мерами противопожарной безопасности.
Если вы не являетесь профессиональным архитектором, то составить план участка будет весьма сложной задачей, потому что вам придется самостоятельно разбираться в санитарных, противопожарных и архитектурно-строительных требованиях. А их немало. Причем любая ошибка скажется на вашем кошельке. Поэтому лучше не испытывать судьбу, а доверить проектирование профессионалам. К тому же сейчас свои услуги предлагает множество не только специализированных компаний, но и независимых архитекторов.
ВНИМАНИЕ
Экономия на стадии проектирования может привести к тому, что готовую постройку невозможно будет ввести в эксплуатацию: проверяющие организации отыщут все допущенные нарушения норм и правил. Исправление же ошибок всегда выливается в существенные расходы, превышающие стоимость проекта, выполненного профессионалами.
При строительстве загородного дома имеет смысл обратиться к районному архитектору. Он не только обладает требуемой квалификацией, но и отлично разбирается в особенностях местности.
Не торопитесь покупать готовый проект дома. Как бы он ни был хорош и на первый взгляд универсален, любой проект нуждается в привязке к конкретным условиям. Нужно учитывать местные климатические условия и тип грунта: от этого будет зависеть и толщина стен, и глубина заложения фундамента, а также его тип. Чтобы прояснить все перечисленные моменты, понадобятся данные инженерно-геологических изысканий.
Индивидуальный проект обойдется дороже, чем готовый с привязкой к местности, но зато позволит учесть все ваши пожелания. К примеру, в готовых проектах недорогого коттеджа относительно небольшой площади (до 300 м2) редко предусматриваются такие помещения, как гардеробная, библиотека или музыкальная комната. И если вы не хотите приспосабливать спальню под библиотеку или домашний кинозал, то лучше несколько переплатить, но зато получить именно то, что вам требуется.
Заказывая разработку индивидуального проекта дома, составляйте максимально точное техническое задание. Помимо него, вы должны будете представить разработчикам:
♠ кадастровый план участка;
♠ топографический план участка в масштабе 1 : 500 с указанием мест прокладки подземных коммуникаций;
♠ заключение геологической экспертизы о составе грунта.
Обычно создание индивидуального проекта дома занимает от одного до трех месяцев.
Помните: как бы хорош ни был специалист, к которому вы обратились, только от вас зависит, каким будет дом. То есть именно вы должны ответить на ряд вопросов.
♠ Какова будет общая площадь дома?
♠ Сколько комнат в нем запланировано?
♠ Какова площадь каждой комнаты?
♠ Сколько должно быть ванных, душевых, туалетов?
♠ Где должна располагаться кухня?
♠ Каким оборудованием будет оснащен дом?
♠ Из каких материалов он будет построен?
♠ Какие в нем будут окна?
♠ Планируется ли сооружение погреба, подвала?
♠ Будет ли в доме мансарда; если да, то жилая или нет?
♠ Как планируется отапливать дом?
Вопросов множество, ведь нужно учесть всё, в том числе стоимость строительства и последующей эксплуатации здания. Мало сказать: «Я хочу, чтобы в доме было семь комнат, из них одна гостиная, одна игровая, две детские, одна спальня для хозяев и две для гостей». Требуется точно описать конфигурацию комнат и даже указать, в какую сторону должны выходить окна (к примеру, вы вовсе не желаете, чтобы утреннее солнце заглядывало в вашу спальню) и сколько их должно быть. А ведь дом – структура сложная, состоящая не только из жилых комнат. Необходимо тщательно продумать план каждого хозяйственного помещения, иначе впоследствии может обнаружиться, что вы забыли о проходе в дом через гараж или, установив твердотельный котел, не предусмотрели места для хранения топлива. В подобных случаях глупо жаловаться на архитектора: он лишь выполнил ваши пожелания. Если в доме чего-то не хватает, значит, вы забыли внести соответствующий пункт в техническое задание.
Когда и как планировать участок
Приступая к строительству собственного дома, многие забывают об участке. Точнее, помнят, но заняться его планировкой собираются в отдаленном будущем: «Сначала построим дом, а ландшафтный дизайн подождет». Такое рассуждение, логичное на первый взгляд, в корне неверно. В результате оказывается, что великолепное плодовое дерево, отлично прижившееся и уже дающее плоды, нужно пересаживать в другое место, потому что оно мешает постройке гаража. Или выясняется, что дом затеняет идеальное место для клумбы. Или вы построили баню там, где лучше было бы разместить площадку для пикников, а теперь ее приходится устраивать у забора вдоль улицы и жарить шашлык на глазах у всего поселка.
Чтобы подобных казусов не возникало, стоит заняться планированием участка заранее. Ведь на нем разместится не только жилой дом, но и различные хозяйственные постройки (начиная от гаража и заканчивая сарайчиком для сельхозинвентаря), баня, парники, бассейн, декоративные водоемы, сад, клумбы и др. В конечном итоге все элементы должны составить гармоничный ансамбль, чего невозможно добиться без точного плана.
Конечно, если вы приобрели участок площадью 1 гектар, то можете не беспокоиться: места хватит для воплощения любых ваших фантазий. Но если участок относительно невелик (20–30 соток), то нужно как следует постараться, чтобы на нем поместилось все, о чем мечтаете вы и члены вашей семьи, и чтобы он при этом не выглядел нагромождением различных элементов, а был красивым и удобным для жизни.
Процесс планирования земельного участка принято разделять на три стадии:
♠ разделение всей территории на фрагменты;
♠ определение местоположения дома;
♠ определение местоположения других построек и сооружений: хозяйственных построек, гаража, бани, парников и теплиц, сада и огорода, бассейна, декоративных водоемов и т. п.
На первой стадии следует определить размеры, форму и местоположение участка. Оптимально, если удастся свести к минимуму протяженность участка вдоль улицы. В таком случае затраты на устройство дорог и пешеходных дорожек, сетей водоснабжения, канализации, электроснабжения и т. д. будут снижены.
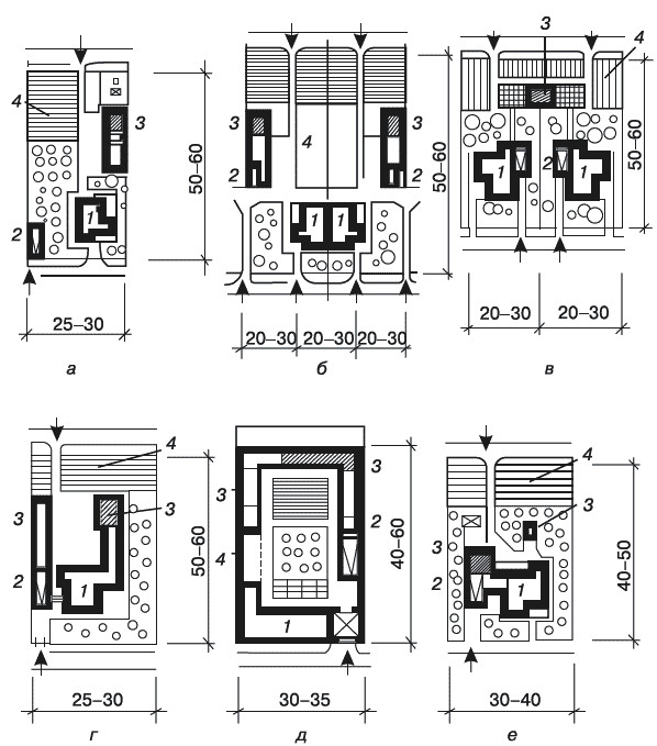
Варианты планировки земельных участков представлены на рис. 2.1.
Рис. 2.1Рациональная планировка земельных участков для индивидуальных жилых домов (размеры указаны в метрах): а – хозсооружения сблокированы в разных зданиях; б – все хозсооружения сблокированы в одном здании; в – гараж сблокирован с домом, хозсооружения отделены; г – хозсооружения образуют двор; д – хозсооружения образуют периметр; е – единое комплексное здание: 1 – дом; 2 – гараж; 3 – хозсооружения; 4 – сад, огород
Как видите, возможно использование двух способов:
♠ дома располагаются отдельно от хозяйственных построек (см. рис. 2.1, а — в);
♠ хозяйственные постройки примыкают к жилым домам (см. рис. 2.1, г – е).
Первый способ можно применять в любых климатических условиях независимо от типа жилого дома. Второй способ в основном используется либо в суровых климатических условиях (варианты д и е), либо в жарком климате (варианты г и д).
С точки зрения планирования участка особенно важно определиться с этажностью дома. Часто, если участок невелик, а семья большая, приходится идти по пути увеличения количества этажей. Так, дом общей площадью 250–300 м2 может иметь четыре этажа. В результате получается этакая Эйфелева башня, устремляющаяся к облакам. Замечу, что собственный многоэтажный дом – не лучший выход из положения. Во-первых, он обходится дороже, чем одно-двухэтажное строение. Во-вторых, лестницы отнимают немало драгоценного места. В-третьих, не всем легко подниматься по лестницам, и если в семье есть пожилые люди, то им нужно отводить комнаты на первом этаже. Но если дом узкий и высокий, то комнат может попросту не хватить: обычно на первом этаже размещаются кухня, санузел, кладовки, прихожая, и в лучшем случае остается место лишь для одной комнаты. Установка лифта стоит дорого. Кроме того, такой дом неудобно убирать. Либо придется носить по многочисленным лестницам пылесос, ведро с водой и т. д. , либо на каждом этаже держать по пылесосу. Так что лучше сразу приобрести участок попросторнее.
Еще один не самый удачный вариант – совмещение дома и хозяйственных построек. Конечно, на плане такое здание выглядит довольно привлекательно. Оно компактно, занимает на участке минимум места, из дома обычно запланированы проходы в гаражи, мастерские, кладовые. Однако есть и минусы. Постройка подобного комплекса обходится дороже, чем размещение хозяйственных построек отдельно от дома. Кроме того, при раздельном строительстве есть возможность производить работы поэтапно. То есть сегодня вы строите дом, завтра – гараж, послезавтра – сарай, затем – баню и др.
Не так давно было модно совмещать под одной крышей все, что только можно. Особенно это касалось гаражей, бассейнов, бань и саун. В частности, вместо того, чтобы построить отдельное здание для бассейна, его размещали в цокольном этаже. Мотивация проста: так получается дешевле, да и место экономится. Однако практика показала, что дешевизной тут и не пахнет. Ведь в бассейне или бане всегда повышенная влажность. А следовательно, для этих помещений требуется усиленная гидро– и пароизоляция. Ну а ремонт обходится раза в три дороже, чем в случаях, когда бассейн, баня или сауна располагаются отдельно.
Что касается гаража, то удобно, когда из него можно попасть прямо в дом. Особенно это хорошо дождливыми осенними или морозными зимними днями. Но есть один нюанс. Запахи автомобильного топлива, масел, различной автокосметики, выхлопных газов неизбежно просачиваются в жилые комнаты. Кроме того, в холодное время года нежелательно держать автомобиль в непосредственной близости от отапливаемых помещений. Наконец, гараж относится к числу помещений повышенной пожарной опасности и требует соответствующих мер предосторожности.
Однако если нет возможности расположить гараж отдельно от дома, то приходится прибегать к совмещению (рис. 2.2–2.4). При этом важно помнить об устройстве хорошей вентиляции.
Рис. 2.2. Гараж, примыкающий к дому
Рис. 2.3. Гараж, расположенный непосредственно под жилыми помещениями
Рис. 2.4. Гараж, стоящий отдельно от дома
Сторонники компактного строительства обычно заявляют, что главный плюс «совмещенного» дома – снижение затрат на отопление: мол, гораздо дешевле отапливать всего один дом вместо нескольких построек. Но практика показывает, что затраты на отопление в обоих случаях различаются незначительно.
В любом случае выбор остается за вами.
На второй стадии нужно определить местоположение жилого дома. Он может размещаться:
♠ на переднем плане – по границе участка, которую называют красной линией, или на расстоянии 1–5 м от нее (см рис 2.1, а и д);
♠ в средней части участка, при этом отступ от красной линии составляет 5–15 м (см. рис. 2.1, б и в);
♠ в дальней части участка.
Если площадь участка достаточно велика, то предпочтительнее третий вариант, поскольку он обеспечивает максимальное уединение и экологическую защиту.
Отмечу, что месторасположение дома не всегда диктуется соображениями экологии. Так, если небольшой участок характеризуется значительным уклоном от улицы, а гараж расположен в цокольном этаже жилого дома, то здание приходится размещать в середине участка или даже на заднем плане, чтобы можно было соорудить не слишком крутую лестницу, а автомобиль не «нырял» в гараж с улицы. Если есть необходимость экономить площадь, можно устроить вход в дом через тамбур (рис. 2.5).
ВНИМАНИЕ
Вне зависимости от того, какое место выбрано для дома, необходимо правильно ориентировать жилые помещения по сторонам света, чтобы соблюсти требования к уровню инсоляции (естественного освещения) и естественной вентиляции.
Рис. 2.5. Вход в дом непосредственно с улицы через тамбур
На третьей стадии планируется размещение на участке других построек: гаража, бани, хозяйственных сооружений и т. д. , а также сада и огорода. Если вы любите цветы, стоит заранее продумать, где лучше всего разбить клумбы того или иного типа. В противном случае вы можете обнаружить, что на идеально подходящем для альпийской горки месте уже начали обустраивать площадку для пикников или декоративный пруд.
Чаще всего сад располагается на переднем и среднем плане участка, а огород – на среднем и заднем. Но это не безусловное правило: можно на переднем плане разбить клумбы, на среднем – огород-цветник, а на заднем – сад. Все зависит от ваших представлений о красоте.
ПРИМЕЧАНИЕ
Не рекомендуется располагать поблизости от улицы площадки для игр и отдыха, особенно если движение транспорта достаточно интенсивное. Как бы ни был высок забор, отгораживающий участок от внешнего мира, разместив площадку для барбекю вдоль улицы, вы будете во время обеда наслаждаться не чистым воздухом, а выхлопными газами, а вместо умиротворяющей тишины слушать уличный шум.
Если участок невелик, то плодовые деревья и кустарники желательно размещать по его периметру, чтобы в центре осталось как можно больше свободного места. Так будет создаваться иллюзия простора, к тому же деревья укроют участок от посторонних взглядов.
Еще раз остановимся на размещении гаража. В зависимости от размеров участка и личных пожеланий вы можете выбрать гараж:
