автордың кітабын онлайн тегін оқу Баня, сауна: все о строительстве, оборудовании, материалах
Евгений Витальевич Симонов
Баня, сауна: все о строительстве, оборудовании, материалах
Введение
Купаться любят все или почти все. В советские времена домашняя зона, связанная с личной гигиеной, подпадала под всеобщую уравниловку, впрочем, как и все остальное в жилом строительстве. В ванной можно было лишь быстро помыться. Водным же гурманам предлагалось идти в городскую баню: в душ или в парилку. В качестве совсем уж экзотического удовольствия можно было поехать в деревню к родителям и там воспользоваться настоящей баней – не отличающейся изысканным интерьером, зато превосходной с точки зрения добротного и «легкого» пара.
Сегодня, когда жизнь в многоэтажных «сотах» стала признаком дурного тона и каждый мало-мальски состоятельный человек стремится иметь собственный дом, баня обладает таким же приоритетом частной застройки, как зимний сад или барбекю.
За прошедшие десятилетия сфера услуг развилась настолько, что, казалось бы, в собственной бане либо сауне нужды, по большому счету, нет. Ведь посетить ее можно за деньги. Прогресс в индустрии удовольствий не стоит на месте: сегодня в хорошей общественной бане есть не только моечное отделение и раздевалки, но и бассейны, а также непременно комнаты отдыха. Но то же самое можно сказать и о частной бане или сауне, которая все чаще начинает выступать местом для общения, а то и вовсе помещением для «пижамных вечеринок».
Согласитесь, любимое удовольствие всегда приятнее получать среди собственных декораций, устроенных сообразно личным пристрастиям. Кроме того, желание иметь свою баню можно сравнить с предпочтением собственного домашнего кинотеатра самому престижному кинозалу.
Современная жизнь непомерно быстра. А вот необходимость попасть из пункта А в пункт Б, наоборот, отнимает массу времени, заставляя простаивать в пробках и тратить драгоценные минуты на заказ банного сеанса по телефону. К тому же сейчас без утреннего и вечернего душа не мыслит себя ни один человек, не говоря уже о том, что растет количество людей, предпочитающих для снятия стресса париться в баньке не один раз в неделю, а два-три.
Но и до общественной бани эконом-класса, и до роскошной сауны нужно добираться. Иное дело, когда она находится во дворе собственного дома. Кроме того, в вашей бане вы не встретите чужих людей. А это, согласитесь, вопрос не только комфорта, но и подлинного наслаждения.
Пребывание в парилке благоприятно сказывается на измотанном спешкой организме: оно дает ему своеобразную остановку внутренних биологических часов. Под воздействием пара исчезает тревожное желание спешить, адсорбируются второстепенные мысли и потребности, улучшается настроение. Выходя из парной, вы всегда чувствуете, что тело становится гибче, а мышцы – эластичнее.
Вам самим решать, баню какой конструкции вы захотите увидеть на своем участке. Исходить стоит из ее технических параметров, к которым прежде всего относятся температуры и уровень влажности в парилке. Возможно, это будет сухо-воздушная баня. Здесь выделяют русскую баню и финскую баню-сауну (такую же конструкцию вы можете наблюдать в любой городской бане с печью-каменкой). Температура воздуха в них составляет от 60 °C до 120 °C, а влажность варьируется от 5 до 25 %.
Возможно, вам по душе сырая баня, стартовая температура в которой 50 °C, а максимальная – 70 °C. Влажность воздуха составляет от 80 до 100 %.
Есть и третий вариант устройства – водяной. Это японские бани (более подробно об их устройстве будет рассказано в первой главе).
А возможно, вы еще только мечтаете о собственном доме, но категорически не хотите ездить в общественную баню. Что же делать? Не устраивать же сауну в ванной комнате! А почему бы и нет?! Современные квартиры в новых домах предоставляют такие возможности. Как правило, в них уже нет крохотных санузлов, где с трудом помещается стиральная машина. Наоборот, теперь туда можно поставить даже джакузи. Так почему бы не утеплить двери, потолок и стены, не обшить их вагонкой, не установить ТЭН для подогрева воздуха и не разместить прямо на ванне дощатый полок? Понадобится еще некоторое количество жароупорного кирпича – и подставка с камнями готова!
Практика показывает, что у большинства индивидуальных застройщиков есть опыт перепланировки и перестройки своей городской квартиры, в том числе и негативный, связанный с наймом бригад строителей, электриков, декораторов, которые навязывают самые дорогие материалы, затягивают сроки выполнения работ и вынуждают нас что-то доделывать самостоятельно после того, как формально все уже завершено.
Многие приходят к выводу, что, умея держать в руках молоток и используя хорошую электродрель, можно самим и систему электропроводки в доме модернизировать, и детскую превратить в сказочный дворец из гипсокартона и лепнины. И уж тем более сильна в нас генетическая память деревянного домостроения.
Дом, участок – это продолжение нас самих, воплощение нашего образа жизни, то, что мы по наследству передадим детям. А уж им, поверьте, будет куда как приятнее париться в баньке, сложенной руками отца. Кроме того, приступая к постройке дома, первым делом имеет смысл возвести именно баню. Во-первых, это отапливаемое сооружение, следовательно, там можно подолгу ночевать, как если бы вы поселились на даче или во времянке. Во-вторых, еще не имея холла с каминным залом, вы уже обретете место, где вам будет просто уютно. В-третьих, если вы впервые приступаете к строительству, на бане можно просто потренироваться. Ведь сложенную с ошибками банную печь проще разобрать и сложить заново, чем печь или камин в самом доме.
В данной книге вы прочтете о том, как самостоятельно спроектировать и построить баню, начиная от выбора места, закладки фундамента и заканчивая сооружением печи. Вы узнаете о недостатках и преимуществах различных материалов, а также о маленьких секретах профессиональных мастеров.
Глава 1
Немного истории
О том, что быть чистым более приятно, чем грязным, догадался еще первобытный человек. Впрочем, до наступления первых вселенских похолоданий эта проблема решалась у него просто: окунулся в чистый родник, и дело с концом. А вот мысль о том, что акт омовения в некотором роде сопряжен со стыдливостью и, следовательно, с необходимостью особого помещения по половому (или просто семейному) признаку, пришла лишь тогда, когда люди осознали себя не просто физически мощными и на многое способными двуногими, но еще и потомками Адама и Евы.
У разных народов стремление к повседневной чистоте тела вырабатывалось при различных обстоятельствах эволюции, к тому же с учетом их религиозности и культуры. Скажем, представители монгольских народностей кое-где и по сей день считают, что, совершая акт омовения, человек смывает с себя удачу.
Чистота по-римски
О том, что водные процедуры не только избавляют нас от неприятного органического запаха, но и являются физиологическим наслаждением, а также дают возможность релаксации, первыми догадались древние греки и римляне. Знаменитые термы – римские бани – культивировались римскими воинами не только из– за того, что являлись местом веселых пиров и оргий. Это результат доверия медикам, убедившим современников в том, что регулярное посещение бани способствует усилению окислительных процессов в человеческом организме, повышает обмен веществ, способствует интенсивному потоотделению, без которого невозможна нормальная работа почек, улучшает кровообращение, нормализует кровяное давление и стимулирует работу сердца.
Первые термы появились задолго до нашей эры и через некоторое время стали так популярны, что богатые римляне проводили в них большую часть времени. Наравне с амфитеатрами они были чем-то вроде культурных центров. Римские же легионеры, завоевывая все новые страны Европы и Азии, распространяли в них и культ бань и омовений.
Как были устроены римские бани? Внешне они выглядели как несколько смежных больших помещений. Часть их была предназначена для переодевания и послебанного отдыха, отдельно располагался бассейн для первичного омовения, а также помещение для качественной помывки с варьированием теплой и горячей воды. Только хорошенько вымывшись, древние римляне направлялись в парилку. Отдельно располагались сухая парная и влажная баня. Нужная температура нагнеталась с помощью печей, которые топились, как ни странно, нефтью.
На основе римских терм со временем появились так называемые турецкие бани (рис. 1.1).
Рис. 1.1.Турецкая баня
Особенности национальных парилок
Ранее уже было сказано, что в разных странах бани имеют свои особенности, хотя и выполняют одни и те же задачи: от простого омовения до места общения.
В Европе сегодня наиболее популярны римско-ирландские бани.Речь идет о бане, работающей исключительно по воздушному принципу. Температура в них поддерживается умеренная – 50–60 °C. Горячий воздух поступает как бы извне: он движется по специальным трубам, проходящим под полом и внутри стен.
Попав в баню, парильщик сначала направляется в подготовительное помещение, затем – в отсек для предварительного разогрева, а уже только потом – в парилку. Пол в ней дырчатый: потоки горячего воздуха поступают через специальные отверстия. Можете представить, как, перемещаясь из одного отсека в другой, парильщик потеет! Чем же такая баня отличается от римской? Тем, что в ней предусмотрена специальная труба, выводящая наружу отработанный воздух, иначе воздушная среда в парной не была бы столь здоровой и полезной.
Тот, кто бывал в Грузии, знает, что в этой стране традиционно практикуютсясерные бани. Выглядят они так: специальные бассейны наполняются водой горячих серных источников. Одновременно рекомендуется интенсивный массаж. Отчасти именно благодаря таким баням большинство грузин доживают до весьма преклонного возраста.
Япония является родинойводяных бань. В деревянной купели устраивается ванна. Ее наполняют горячей водой, температура которой обычно достигает 45 °C. Надев смоченную холодной водой шапочку, в эту ванну следует погрузиться по грудь. Японцы уверяют, что посещать такую баню нужно не менее трех раз в неделю.
Еще один вид японской бани —сухая опилочная баня. Она функционирует на основе кедровых опилок, смешанных с лекарственными травами и нагретых до 60 °C. Предназначение опилок – впитывать пот и «напомповывать» тело крайне целебными ароматическими веществами.
Можно попариться вовсе в экзотической бане – мешке с березовыми листьями либо цветочным сеном (пар плюс эффект ароматерапии).
Восточные народы также практикуютпесочные бани. С помощью разогретого на солнце и отлично вбирающего пот песка эффективно лечатся артриты, ревматизм, нефриты и в особенности женские гинекологические заболевания. Такие бани следует совмещать с морскими купаниями. Древний же врач Авиценна рекомендовал проводить песочные бани, одновременно интенсивно поедая арбуз.
Традиции арабских стран Ближнего Востока, Средней Азии и Юго– Восточной Европы, а также культура римских терм породили бани, которые и поныне пользуются успехом. Это знаменитые турецкие бани.
В восточных банях полы, от которых шел пар, подогревались до 50–60 °C. Каменные своды печей или котлы с кипящей водой служили дополнительными источниками пара. Полы нагревались до такой степени, что по ним можно было ходить только в обуви – деревянных сандалиях.
В плане турецкие бани напоминали ладонь. Раздевалкой, где посетитель подготавливался к принятию водных процедур, служил вход в баню – «сгиб кисти». Здесь уже было довольно жарко: до 34 °C. Сама «ладонь» – большой зал с бассейном и каменными лежаками, которые подогревались. Посетитель, распарившийся после посещения всех пяти ниш с различной температурой («фаланги пальцев»), ложился на камень и потел. Банщики умело делали глубокий массаж всего тела. Наслаждение было незабываемым! В турецкой бане, кроме всего, выщипывали лишние волосы, брили, удаляли мозоли.
Что скрывается за понятием «финская баня»
Большинство русских парильщиков на вопрос, какую баню они предпочитают, чаше всего отвечают не «русскую», а «финскую». Причем на практике оказывается, что далеко не все хорошо знают, в чем же состоят между ними различия. Почему-то принято считать, что русская баня – это там, где «мокро», а финская – там, где «сухо».
Основания для путаницы действительно есть. И в «русском», и в «финском» случае пар получается в результате поливания водой раскаленных камней. В сауне, как и в бане, предусмотрено пользование вениками. И в том и в другом случае особой потехой для парильщиков становится «окунание» в ледяную воду либо сугроб. Более того, и русская баня, и финская сауна на заре цивилизации изначально представляли собой бревенчатую избу, которая топилась «по-черному». А что до определения, то слово «сауна» в переводе на русский язык означает «баня».
В основе принципа действия финской бани – целебный жар, температура которого в некоторых случаях доходит до 140 °C, причем переносится весьма легко благодаря тому, что воздух очень сухой.
Как работает сауна? И почему ее несложно установить даже в ванной комнате?
Сауна — это почти герметично замкнутое помещение, которое обогревается специальной печкой с камнями и сооружено для создания в помещении сухой и очень жаркой бани (рис. 1.2).
В прогретой сауне воздух изначально сухой, поэтому у парильщика сразу начинает разогреваться тело. Потом, когда на камни выливают ковш-другой воды, увеличивается количество пара. Однако вскоре воздух опять становится сухим. Вот и получается, что сауна – единственная представительница «помывочных заведений», где присутствует попеременно сухой и влажный воздух. Таким образом, она объединяет в себе черты римских сухих и русских влажных бань.
Как правило, в современной финской сауне используетсяэлектрическая печь-каменка, а не большая русская банная печь. К преимуществам первой можно отнести высокий верхний предел температуры, а также контрастность ее изменения: от допустимого максимума и до возможного минимума. Кроме того, влажность воздуха в сауне всегда остается в норме, что крайне благотворно сказывается на теплообмене всего организма и интенсивности кровообращения. Пребывание в финской бане положительно влияет на функционирование вегетативной, сердечно-сосудистой и центральной нервной системы.
Таким образом, основное отличие финской сауны от бани заключается в следующем: охват человеческого тела теплым воздухом в ней намного больше. Но с медицинской точки зрения она имеет и существенный недостаток: обильный горячий воздух пересушивает верхние дыхательные пути, в результате чего после ее посещения нередко появляется першение в горле, а также излишняя сухость кожи и слизистых оболочек.
Рис. 1.2. Интерьер сауны: а – вид сверху; б – вид сбоку
Специфика русской бани
Какой же русский не любит попариться в бане? Уважение, которое на Руси испытывали к пару, отмечали и заезжие иностранцы. Для них эта страна во многом с самой баней и ассоциировалась, наряду с квасом и лаптями. Бани испокон веку имели для русского человека огромное значение. Их строили не только зажиточные, но и почти все бедные люди. Те же, кто по какой-то причине на своем дворе ее не соорудили, каждую неделю посещали общественные. Баня считалась едва ли не лекарством от всех болезней. Гостей на Руси встречали не только накрытым столом, но и истопленной баней.
В далеком прошлом наши предки парились не где-нибудь, а в русских печах. После того как испекли хлеб, под в печи подметали и выгребали золу. Человек влезал туда на подстеленную солому, постепенно привыкая к высокой температуре. Затем на свод печи брызгали горячую воду, которая мгновенно испарялась, и таким образом получалась парилка.
Особенные любители попариться даже порой закрывали заслонку, чтобы усилить эффект, и нахлестывали себя веником: березовым, дубовым, иногда можжевеловым. В некоторых селах российской глубинки подобная банная процедура сохранилась до настоящего времени.
Бани появились в Сибири с первыми русскими людьми: казаками, землепроходцами. Эти сооружения более приспособлены к местным холодам, так как их строили меньшими по размеру, нежели в средней полосе, и более тщательно утепляли в них стены, подгоняя бревно к бревну с помощью специально вырубленного паза, в который укладывали мох (рис. 1.3). Двери в них низкие и толстые, из хорошо пригнанных досок. Это позволяло пользоваться баней в самые суровые сибирские морозы. Во всем остальном (имеется в виду процесс получения пара и горячей воды) они не отличаются от обычных.
Рис. 1.3. Вот так выглядит традиционная русская баня
Что же касается неповторимого запаха русской бани, то издревле на Руси варили специальный квас с мятой, настои трав, на полках раскладывались пахнущее сено, мята, полынь, ветки хвои и т. д. В каждом роду были свои передающиеся от отца к сыну секреты. Кроме того, аромат был не только приятным, но и полезным, ведь давно замечено, что после такой бани дышится легко и приятно, а тело становится легким.
Издревле считалось, что баня очищает человека как телесно, так и духовно. С ней связаны многие русские обычаи: молодожены после первой брачной ночи обязательно ее посещали; после долгой дороги было принято всласть попариться; при болезни парилка считалась прекрасным оздоравливающим средством. В баню ходили не реже одного раза в неделю, как правило, по субботам.
Кроме личных бань, популярностью стали пользоваться и общественные. Вскоре после основания Петербурга городские власти разрешили сооружать их всем желающим и при этом не взимали никаких налогов! В то же время в Москве строились лечебные бани, владельцам которых предлагалось «Цену брать без излишества, дабы на него жалоб не происходило… Запрещено держать горячие вина и всякий заповедный напиток».
В Москве известностью пользовались знаменитые Сандуновские и Ламакинские бани, которые посещала знать. В Санкт-Петербурге к началу 20 века насчитывалось более трех сотен бань.
Вот интересный факт. В 1718 году Петр Великий, будучи в Париже, велел построить для своих гренадеров баню в одном из домов на берегу Сены. После парилки гренадеры окунались в реку, чем вызывали изумление парижан. А на слова королевского гофмейстера, что, мол, солдаты перемрут от такого купания, Петр I заметил, что «не перемрут, а закалятся, ибо для них привычка – вторая натура».
Постепенно русские бани стали популярны во всем мире. После похода Наполеона в Россию, его разгрома и вступления русских войск в западно-европейские страны их начали культивировать во Франции, Германии, Швейцарии.
Любовь русских людей к бане не ослабевает со временем. Даже во время Великой Отечественной войны солдаты на передовой устраивали себе баню. Особенно популярны среди партизан были бани-землянки, которые легко строились из местных материалов. Кроме того, подобные помещения практически герметичны, что позволяло получить наибольший благоприятный паровой эффект. Такие бани-землянки можно до сих пор встретить в российских деревнях.
Главная особенность русской бани: ее температура намного ниже, чем в сауне. Не влажность, а именно соотношение влажности и температуры!
Максимальная воздушная планка русской бани – 55–65 °C.
Предтечей современной русской бани являетсябаня «по-черному», которая встречается и до настоящего времени в российской деревне, чаще всего в Сибири и на Урале, и служит людям так, как и сотни лет назад.
Она известна в России более двух тысяч лет. Бани «по-черному» представляли собой просторное помещение, в котором открытым огнем калились камни. Дым уходил через отверстие в крыше, окна и открытые двери. Сажа и копоть оставались на стенах, а иногда и на телах неосторожных «мойщиков». Оттого и произошло название этой бани.
В углу размещалась кадка для холодной воды, под окном – лавка, на которой люди мылись после того, как хорошенько попарятся. У противоположной стены располагался трехъярусный полок. На верхнем «этаже» выдержать жар могли лишь старики да закаленные мужчины, а также некоторые бабки. Среди них тоже были большие любительницы попариться. На втором «этаже» парились менее закаленные, на самом нижнем мылись дети и беременные женщины.
Каменная подковообразная печь размещалась в правом углу бани. Не связанные глиной камни укладывали одни на другие. Специально отыскивали гладкие булыжники без трещин и сколов, чтобы они смогли выдерживать перепады температур и не давали угарного газа. Внутрь печи устанавливали большой чугун для горячей воды. Раздевалки в бане не было, и около кадки с холодной водой ставили скамейку, куда складывали чистое белье, а верхнюю одежду вешали на деревянные шпильки, вбитые в стену.
Глава 2
Составляем проект бани
Читая последующие главы книги, вы убедитесь, что построить баню собственноручно на самом деле совсем несложно. Самый первый шаг – выбор наиболее подходящего для нее места. Ведь от этого будет зависеть нарисованный проект бани.
Выбираем место
Идеальное место для возведения бани – пригорок на берегу реки или озера. Если же поблизости от вашего дома его нет, все-таки выберите место повыше. Так удобнее сливать воду при отсутствии канализации и устраивать дренажную систему. Пруд же можно выкопать позже, это не такая дорогостоящая и трудоемкая работа. В крайнем случае сделайте баню на сваях, подобное тоже кое-где практикуется. Правда, не стоит забывать и о скромности: в баню– то ходят отнюдь не одетыми. Поэтому деревья, кусты и иные подобные естественные ограды помогут вам сохранить хотя бы иллюзию романтического одиночества (рис. 2.1).
Рис. 2.1.Для бани идеально подойдет уединенное место
Если на участке есть крутой склон, то баню можно выполнить в виде землянки с террасой на сваях или столбах.
Как же ориентировать баню, что называется, по сторонам света? Тут тоже играют роль чисто практические соображения. Окна располагайте с юга и запада: южная сторона, что ни говори, теплее, а лучи заходящего солнца в парной весьма приятны для глаза и хорошо снимают усталость, создают атмосферу спокойствия и уюта. Баня, а особенно вход в нее, должны быть хорошо видны из окна дома. Все время лично находиться у печи совсем неудобно, а контролировать процесс необходимо. Мало ли что может случиться!
Теперь рассчитаем рекомендуемые расстояния между сооружениями в соответствии с санитарно-бытовыми условиями, которые перед проектированием бани и других садовых построек надлежит внимательно изучить, чтобы избежать проблем с «ответственными лицами» и соседями, которым ваша баня или даже сам дом могут чем-то мешать.
Минимальные расстояния до границы соседнего садового участка по санитарно-бытовым условиям должны быть следующими:
♦ от садового дома – 3 м;
♦ от постройки для содержания мелкого скота и птицы – 4 м;
♦ от других построек, например бани, – 1 м;
♦ от стволов высокорослых деревьев – 4 м, среднерослых – 2 м;
♦ от кустарника – 1 м.
Минимальные расстояния между постройками:
♦ от садового дома и погреба до уборной – 12 м;
♦ от душа, бани и сауны до уборной – 8 м;
♦ от колодца до уборной и компостного устройства – 8 м;
♦ от постройки для содержания мелкого скота и птицы до душа, бани, сауны – 12 м;
♦ от погреба до компостного устройства и постройки для содержания мелкого скота и птицы – ум.
Эти нормативы должны соблюдаться как между постройками на одном участке, так и между сооружениями, расположенными на смежных участках.
Что нужно учитывать при создании проекта бани? Прежде всего, идеальное месторасположение бани – отдельно от других строений, на окраине участка, что диктуется пожарными соображениями. Как уже говорилось, ее желательно окружить растительностью, скрывающей сооружение от нескромных взглядов, и разместить рядом с водоемом, пусть даже искусственным (см. рис. 1 на цветной вклейке).
С другой стороны, баню можно пристроить и к жилому сооружению. Сделайте вход в нее непосредственно из дома или со стороны участка, спланируйте небольшую веранду. Если в доме есть канализация и водопровод, то таким образом можно сэкономить средства, да и подключить электропроводку будет не так сложно. Санитарные нормативы используются те же, только необходимо тщательно продумать пожарную безопасность, устройство вентиляции и гидроизоляции строений.
Иногда бани делают в цокольных этажах и подвалах дома. Как правило, в этом случае сталкиваются с дополнительными проблемами, с отводом сточных вод из моечного помещения.
Часто к бане пристраивают сооружения различного назначения, например летнюю кухню или теплицу. Выходящее из парной тепло будет их обогревать. Подобное практиковалось нашими предками уже много веков. Баню также часто используют как прачечную, фотолабораторию и для других хозяйственных нужд. Особенно удобно совмещать ее с тепличным хозяйством. В этом случае к теплице примыкает веранда или терраса, а наличие вьющихся или декоративных растений и цветов создает дополнительный уют и украшение.
Теперь о водоеме, который можно устроить прямо во дворе вашего дома. Небольшой бассейн располагают прямо перед входом в баню или рядом с ним. Выпускается множество видов таких сооружений, и вашей задачей будет всего лишь подготовить для него место. Бассейны бывают разборные, каркасные, монолитные и надувные. Даже если ваш участок совсем небольшой, место для водоема, на радость вашим детям, всегда можно найти.
Повторим, что от разного рода неприятностей, в том числе и от нежелательных «разборок» с соседями, вас застрахуют санитарные нормы и правила (СНиП), которые регламентируют возможное расстояние от вашей бани до соседнего садового участка, колодца или др. Этот документ нужно иметь всем застройщикам, поскольку санитарное согласование планируемых сооружений все равно делать придется, и лучше все учесть еще на этапе создания проекта.
Проектируем баню
Выбор проекта бани зависит прежде всего от предполагаемого числа членов семьи, одновременно посещающих баню, от планировки участка или помещения, приспосабливаемого под баню, и от финансовых возможностей. А вот русскую баню строить или сауну – это уже вопрос вкуса и пристрастий.
Дальше приходит время согласования проекта (естественно, уже на стадии его полной готовности). Но независимо от того, купили вы готовый проект в дизайнерском бюро или нарисовали свой, его нужно согласовать с местной пожарной инстанцией. В этом нет ничего пугающего. Согласование и утверждение проекта занимает, как показывает практика, не больше недели. На чертеже появится печать, и пожарных будет заботить, не является ли ваша баня «пороховой бочкой» ввиду неправильного размещения, например, печи-каменки либо по иной причине, или то, как расположены у вас входы-выходы (чтобы, если что-то случится, парщики смогли мгновенно эвакуироваться).
Это первый этап согласования. Второй, заключительный, будет иметь место, когда строительство завершится. Представитель пожарной службы придет к вам и посмотрит, отвечает ли устройство ваших локальных инженерных сетей требованиям противопожарной безопасности.
Вот и все. С той разницей, что, купив пустой участок и приступив к комплексному строительству, вам придется согласовывать с пожарными все подворье, а в случае, если вы уже обзавелись хозяйством, – только баню.
Итак, переходим к работе над проектом. Размеры, например, русской бревенчатой или каменной бани выбирают из расчета, что в ней одновременно будут париться несколько человек. Чаще всего она состоит из прихожей-тамбура, предбанника (раздевалки) и парной площадью 6–9 м2 для парения и мытья. Целесообразно устраивать баню с отдельным от парной моечным отделением, где можно стирать белье, а также купаться детям и людям, которым парилка противопоказана по состоянию здоровья.
Непосредственно у входа проектируют тамбур. Зимой он должен не давать холодному воздуху проникать в предбанник. Площадь предбанника – 4–6 м2, в нем необходимо сделать окно. Здесь же посетители бани располагаются для охлаждения и отдыха после парилки. Для этого устраивают скамью шириной 0,5 м и длиной 1,5–1,8 м. Дверь из предбанника не должна открываться в парилку, так как пар, попадая в более холодное помещение, увлажняет одежду. Следует сделать так, чтобы двери из парилки и из предбанника выходили в тамбур. Такое расположение позволит более рационально использовать площадь, и главное, все три помещения будут отапливаться одной печью.
Площадь парилки составляет чаще всего 7–9 м2. Ее лучше спроектировать квадратной. Чтобы тепло и пар не терялись, дверь в парильное отделение устраивают с высоким порогом и низкой коробкой, этакий своеобразный люк. Вдоль глухой стены располагают деревянные полки (в два-три яруса), их длина —160–200 см. Печь-каменку, отапливаемую дровами, обычно устанавливают в углу у двери. (Подробнее о печах для бани будет рассказано в одной из следующих глав.) У противоположной стены монтируются скамьи для мытья. Для такого типа бань оптимальным будет размер 2,5 х 4,5 м.
Давайте рассмотрим три примерных банных проекта. Сразу оговорим обязательные условия совмещения банной постройки со всем жилым массивом: качественное выполнение гидроизоляции, продуманная вентиляционная система, грамотное расположение канализации и, разумеется, соблюдение норм противопожарной безопасности. Важно не только устроить комфортабельную баню, но и пользоваться ею так, чтобы не уменьшить ненароком срок службы всего дома, не сделать его сырым. С этой целью, например, не усердствуйте, обильно поливая камни водой, и затем не допускайте их чрезмерного охлаждения. Если баня пристроена к жилому помещению, особенно важно, чтобы воздух в ней был сухим и горячим, а также чтобы по окончании парения баня хорошо высыхала.
Баня, совмещенная с жилым помещением (смежная с кухней). Печь и канализационная система в такой бане будут общими и для нее, и для кухни. Преимущество – раскаленные стены печи-каменки будут регулярно очищать воздух всего жилого пространства, одновременно делая его суше. Еще один плюс – дополнительная вентиляция, осуществляемая через поддувало, расположенное на уровне пола.
Такой вариант может быть вполне комфортным, если соблюдать все санитарно-технические требования, в первую очередь к устройству канализации, вентиляции и гидроизоляции (рис. 2.2). Удобнее всего пристраивать к дому не влажную баню, а сауну.
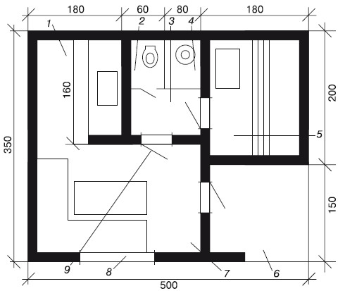
Рис. 2.2.План небольшой бани
Большая семейная баня. Бревенчатую баню, состоящую из предбанника-раздевалки, моечного отсека и парилки, можно оборудовать П-образной печью, рассчитанной на 6 ведер воды. Вода и камни нагреваются от топки, а моечный отсек – от выведенного в него дымохода.
Классическая схема планировки бани исходит из ее назначения. Если это отдельно стоящее одноэтажное здание, то обычное решение для нее – терраса, небольшой тамбур, в котором оставляют верхнюю одежду, предбанник, иногда совмещаемый с душевой, и парильня (рис. 2.3).
В хороших проектах предусматривается возможность обогрева всех этих помещений одной печью. Если места на участке мало, можно ограничиться совсем простой конструкцией, состоящей из предбанника и парной.
Подбираем материалы
Итак, вы завершили первый этап подготовительных работ – нарисовали проект бани. Далее предстоит
...