автордың кітабын онлайн тегін оқу Баня, сауна. Строим своими руками
Иван Никитко
Баня, сауна. Строим своими руками
Введение
Трудно найти человека, который не любил бы баню. Большинство из нас хоть раз в жизни, да «изменили» привычной городской ванной и отдали должное настоящей бане – с парной, веником, квасом и пивом. Тем более что городские жители, у которых раньше, в советское время, была лишь одна альтернатива – помыться в ванной или пойти в городскую баню, – теперь могут обзавестись своей законной банькой на правах собственника. Либо такой, какая была у их дедов, либо шикарной сауной, отделанной карельской березой, – это уж как средства позволят. В общем, собственная баня перестала быть объектом экзотического путешествия в российскую глубинку и превратилась в привычную часть повседневности.
О пользе бани написаны сотни тысяч страниц, так что углубляться в эту тему нет необходимости. Все знают, что пребывание в парилке буквально обновляет измотанный постоянной спешкой организм. Под воздействием пара уходит тревога, фильтруются и отсеиваются «черные» мысли, улучшается настроение. После парилки вы будто заново рождаетесь на свет.
После того как вы приобрели участок и решили начать строительство бани, предстоит определить, какой тип бани вам подходит больше всего. Собственно, я не стану вдаваться в подробные описания экзотических видов бань – римских, турецких либо японских. Привычные нам бани отличаются не столько конструкцией, сколько техническими параметрами, прежде всего температурой и уровнем влажности в парилке. Здесь выделяют русскую баню и финскую баню-сауну. В первой выше влажность, но ниже температура, во второй температура доходит до 120 °C при незначительной влажности.
Теперь о том, почему баню стоит сооружать своими руками, если у вас есть возможность и желание. У большинства городских жителей имеется опыт перепланировки и перестройки своей квартиры, по большей части с привлечением бригад строителей, электриков, декораторов из стран бывшего СССР. Они чаще всего навязывают самые дорогие материалы, затягивают сроки сдачи, а после того, как бригада получила расчет и испарилась, оказывается, что работа выполнена халтурно и приходится многое доделывать самостоятельно.
Побывав в такой ситуации, многие убеждаются в том, что, умея держать в руках молоток и используя хорошую электродрель, можно самим и электропроводку в доме обновить, и детскую сделать сказочным дворцом из гипсокартона и лепнины. Вот и закрадывается мысль: а почему бы не взяться и не построить своими руками что-то более существенное?
Наш дом – это часть нас самих, отражение нашего образа жизни, главное, что мы по наследству передадим детям. А разве им не будет приятнее париться в баньке, сложенной руками отца или деда? Есть еще один нюанс: приступая к постройке дома, первым делом имеет смысл возвести именно баню. Это отапливаемое сооружение, то есть там можно подолгу ночевать, как будто вы поселились на даче или во времянке.
Таким образом, еще не построив гостиную с камином, вы уже обретете место, где вам будет просто уютно. Кроме того, если вы впервые приступаете к строительству, на бане можно просто потренироваться. Ведь сложенную с огрехами маленькую каменку проще разобрать и сложить заново, чем массивную печь или камин в самом доме. И даже если вы остановитесь на варианте найма бригады строителей для постройки самого дома, вам будет гораздо легче контролировать качество их работы.
В этой книге вы найдете информацию о том, как самостоятельно построить баню, то есть спроектировать ее, правильно выбрать место, заложить фундамент, возвести стены, крышу и соорудить печи. Вы узнаете о недостатках и преимуществах различных строительных и отделочных материалов, а также о некоторых секретах профессиональных мастеров.
Глава 1
Проектируем баню
Читая последующие главы книги, вы убедитесь, что построить баню собственноручно, в общем-то, не так уж и сложно, особенно если вы обладаете некоторыми строительными навыками. Начнем с выбора подходящего для бани места.
Выбираем место
Возвышенный берег реки или озера – идеальное место для строительства бани. Конечно, далеко не всегда получается найти такой участок, и все-таки постарайтесь выбрать место повыше или построить баню на сваях – при отсутствии канализации будет гораздо легче сливать воду и устраивать дренажную систему.
ВНИМАНИЕ
Окна бани должны смотреть на юг и запад: южная сторона, что ни говори, теплее, а лучи заходящего солнца приятны для глаза, снимают усталость и создают атмосферу спокойствия и уюта.
Минимальные расстояния до границы соседнего садового участка по санитарно-бытовым условиям должны быть следующими:
• от садового дома – 3 м;
• от постройки для содержания мелкого скота и птицы – 4 м;
• от других построек, например бани, – 1 м;
• от стволов высокорослых деревьев – 4 м, среднерослых – 2 м;
• от кустарника – 1 м.
Минимальные расстояния между постройками:
• от садового дома и погреба до уборной – 12 м;
• от душа, бани и сауны до уборной – 8 м;
• от колодца до уборной и компостного устройства – 8 м;
• от постройки для содержания мелкого скота и птицы до душа, бани, сауны – 12 м;
• от погреба до компостного устройства и постройки для содержания мелкого скота и птицы – 7 м.
Эти нормативы должны соблюдаться как между постройками на одном участке, так и между сооружениями, расположенными на смежных участках. Иначе могут возникнуть неприятности с соседями и санитарной службой.
Баню можно пристроить и к дому. Вход в нее возможен как непосредственно из дома, так и со стороны участка. Если в доме есть канализация, водопровод и электропроводка, то таким образом можно сэкономить средства. В этом случае нужно тщательно продумать пожарную безопасность, устройство вентиляции и гидроизоляции.
Составляем проект
Выбор проекта бани зависит прежде всего от возможного количества людей, одновременно посещающих баню, от планировки места, приспосабливаемого под баню, и, конечно, от финансовых возможностей. А вот тип бани – это уже вопрос вкуса.
Независимо от того, купили вы готовый проект или нарисовали свой, его нужно согласовать с местной пожарной службой. А после окончания строительства представитель МЧС посетит готовый объект и посмотрит, отвечает ли устройство ваших локальных инженерных сетей требованиям противопожарной безопасности.
Переходим непосредственно к работе над проектом. Чаще всего баня состоит из прихожей-тамбура, предбанника, моечного отделения и парной (иногда их совмещают). Непосредственно у входа нужно спроектировать тамбур, который зимой не позволит холодному воздуху проникать в предбанник. Площадь последнего – 4–6 м2, в нем необходимо сделать окно. Здесь же посетители бани раздеваются, а также охлаждаются и отдыхают после парилки. Двери из парилки (моечного отделения) и предбанника должны выходить в тамбур, что позволит рационально использовать площадь, и главное, все три помещения будут отапливаться одной печью.
Площадь парилки чаще всего составляет 7–9 м2. Ее лучше спроектировать квадратной. Чтобы не выходил пар, дверь в парильное отделение делают с высоким порогом и низкой коробкой. Печь-каменку обычно устанавливают в углу у двери. (Подробнее о печах для бани будет рассказано в одной из следующих глав.) Для такого типа бань оптимальным будет размер 2,5 × 4,5 м.
Предлагаю вашему вниманию несколько проектов бань, одни из которых рассчитаны на небольшую семью, а другие подойдут для проведения банных вечеринок в компании друзей.
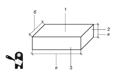
Одноэтажная деревянная баня (рис. 1.1, 1.2). Общая площадь – 25 м2. Материал рубленых стен – архангельская сосна (место произрастания – северные районы Архангельской области). Диаметр вершины бревна – 20–22 см. Крыша имеет деревянную стропильную конструкцию.
Рис. 1.1. Одноэтажная баня из дерева
Рис. 1.2. План одноэтажной деревянной бани
Деревянная баня – гостевой дом с мансардным этажом (рис. 1.3, 1.4). Общая площадь – 50 м2. Материал рубленых стен – архангельская сосна. Диаметр вершины бревна – 20–22 см. Крыша имеет деревянную стропильную конструкцию.
Рис. 1.3. Баня – гостевой дом
Рис. 1.4. План первого этажа
Одноэтажная деревянная баня с террасой (рис. 1.5, 1.6). Общая площадь – 25 м2. Материал рубленых стен – архангельская сосна. Диаметр вершины бревна – 20–22 см. Крыша имеет деревянную стропильную конструкцию.
Рис. 1.5. Деревянная баня с террасой
Рис. 1.6. План бани с террасой
Одноэтажная баня (рис. 1.7, 1.8), которую можно использовать как место для отдыха, так как возле нее спроектирована вместительная терраса. Сама баня относительно небольших размеров, поэтому отлично подойдет как экономичный вариант для семьи из трех-четырех человек.
Рис. 1.7. Баня с вместительной террасой
Рис. 1.8. План бани
Подбираем материалы
Итак, проект бани перед вами. Теперь предстоит составить смету, то есть подробный список всего, что вам придется приобрести.
Примерная смета строительства деревянной бани представлена в табл. 1.1–1.3. Цены приведены в российских рублях. Размер сооружения: 5,5 × 8,76 м по осям. Фундамент – ленточный железобетонный.
Таблица 1.1. Фундамент
Таблица 1.2. Сборка сруба
Таблица 1.3. Крыша
Итого:
✓ по материалу – 324 718,1 р.;
✓ работа – 252 715 р.;
✓ транспортные расходы – 25 000 р.
Общая стоимость: 602 433,1 р.
Несомненно, лучшая баня – срубленная из хорошо высушенных бревен и досок. Деревянные стены быстрее нагреваются и хорошо впитывают влагу. В такой бане легче поддерживать нужную температуру и влажность. На богатой лесами Руси бани всегда строили из дерева.
Но времена изменились, и сегодня для возведения бани используют не только дерево, но и камень, кирпич, пеноблок. Понадобятся цемент, глина, песок, шифер, древесно-стружечные и древесно-волокнистые плиты, минеральные и органические утеплители, стекла, асбестоцементные трубы, пароизолирующие пленки и листы, кровельное железо и некоторые другие материалы. Если вы ранее никогда не сталкивались со строительством довольно крупных сооружений, вам будет полезно заранее узнать о некоторых свойствах этих материалов.
Древесина
Самый нужный материал для строительства бани – это дерево, из которого можно построить, как и много веков назад, всю баню, от фундамента до крыши.
Опорные подушки, столбы для фундамента, первый венецстен и лаги для пола делают из дуба, высушенного на специальных подставках под навесом.
Бревна, доски и брусья из качественной смолистой сосны служат для укладки 3–4-го нижних венцов стен, пола и матицы потолка. Для этих конструкций, а также для постройки фундамента прекрасно подходит и лиственница.
Для верхних венцов, потолка и обшивки стен используются пиломатериалы из легкой белой ели и липы. Эти породы дерева хорошо поглощают влагу и звуки. Говорят, что такая древесина «дышит, как живой организм».
Полки и скамейки лучше всего делать из липовых досок и брусьев, создающих ощущение теплоты и мягкости.
На сегодняшний день несомненные лидеры в строительстве из дерева – профилированный брус и оцилиндрованное бревно (рис. 1.9, 1.10).
Рис. 1.9. Профилирование бруса (а) и оцилиндровка бревна (б)
Рис. 1.10. Оцилиндрованное бревно и профилированный брус разной толщины
Оцилиндровка бревна и профилирование бруса позволяют сделать рабочую поверхность древесины практически идеально чистой и гладкой. Стены из такого материала не нуждаются во внешней отделке досками либо вагонкой: подготовленная древесина сама по себе очень красивая. Кроме того, сооружение стен из оцилиндрованного бревна и профилированного бруса и их усадка требуют меньше времени, чем уходит для срубов из неподготовленной древесины.
Реже (из-за высокой стоимости) в строительстве бань применяется клееный брус (рис. 1.11).
Теплоизоляционные свойства 20-сантиметровой стены из этого материала, в очень малой степени подверженного воздействиям гнили и грибка, сопоставимы со свойствами метровой кирпичной стены.
Рис. 1.11. Клееный брус
Конечно, несмотря на все достоинства материалов, о которых было сказано выше, более дешевым остается необработанный лесоматериал, так называемые кругляши. Это тонкие жерди толщиной не более 7 см (замер без коры), некрупные столбы, то есть фрагменты древесины диаметром от 7 до 12,5 см, средние или крупные бревна, диаметр которых – от 12,5 до 24,5 см и более.
Вместо профилированного либо клееного бруса можно приобрести обычный. Правда, отделке бани придется уделить немного больше внимания (если, конечно, вы не хотите сохранить традиционный «русский стиль»). Ширина и толщина таких брусьев (они бывают двух-, трех– и четырехкантными), как правило, от 10 см. Максимальная толщина досок также 10 см. Помните, что их ширина непременно должна быть в два раза больше!
Помимо лесоматериалов, вам понадобятся пиломатериалы. К ним относятся, во-первых, пластины и четвертины, во-вторых, элементарные брусья, доски и бруски, шпалы и горбыли, а также струганый погонаж. Этот термин означает наличники – обработанные, иногда резные доски, которыми отделывают дверные и оконные блоки, плинтусы, поручни для перил, шпунтованные и фальцованные доски для настила полов.
У шпунтованных досок на одной кромке вырезан шпунт (выемка), на другой имеется гребень (выступ), входящий в шпунт следующей доски (рис. 1.12, а). У фальцованной доски на кромке вырезают выемки в противоположных углах, что обеспечивает перекрытие соседних досок путем ввода выступа одной доски в выемку другой (рис. 1.12, б). Эти материалы используются для устройства пола и потолка, а также внутренней отделки стен.
Рис. 1.12. Доска: а – шпунтованная; б – фальцованная
Камень, кирпич
Для кладки фундаментов и стен бани широко применяют бутовый камень – куски известняка неправильной формы. Используют также шлакобетонные и бетонные блоки, кирпич и гипсовые плиты для перегородок. Поскольку кирпич в любом случае будет применяться (хотя бы для кладки печи), поговорим о нем подробнее.
В среднем масса кирпичины составляет 1700 кг/м3, то есть штучно – от 3,3 до 3,8 кг. Продают его, как правило, кубометрами. В одном кубометре находится 480 кирпичей. Параметры средней кирпичины: 25 × 12 × 6,5 см (возможны варианты 25 × 12 × 8,8 см и 25 × 12 × 10,3 см). Пустоты внутри кирпича бывают круглые либо щелевые, а также сквозные или несквозные.
Главное, на что нужно обратить внимание, – хорошо ли выполнен обжиг. Непригоден для выполнения большинства строительных работ недосушенный (имеет алый оттенок и недостаточно прочен) либо пережженный кирпич, иначе говоря «железняк» буро-фиолетового оттенка. Беда такого кирпича заключается в его повышенной теплопроводности, то есть вы запросто можете обжечься, случайно дотронувшись до стены печи. Силикатный кирпич использовать нельзя, он пригоден только для кладки тех стен и перегородок, которые не будут подвергаться воздействию влаги.
Могут понадобиться и керамические пустотелые камни. Их параметры: 25 × 12 × 13,8 см (плоские небольшие), 25 × 13,8 × 13,8 см (полуквадратные), 25 × 25 × 13,8 см (крупные полуквадратные).
Для кладки печи, точнее, фрагментов стен и перегородок, которым предстоит выдерживать воздействие температуры от 1580 °C, нужен шамот (огнеупорный кирпич).
Растворы
При кладке фундаментов и стен, а также печи применяют строительные растворы, которые получают, разбавляя водой вяжущие материалы – глину, известь и цемент.
Для сухих частей строений, печей и дымоходов применяется глина. При затвердевании глиняное тесто дает большую усадку. Для ее уменьшения в тесто при замесе засыпают песок. Для придания связующим материалам пластичности глину добавляют и в цементные растворы.
Строительная известь получается в результате обжига известняков. Смоченная водой известь полностью гасится и образует пластичное тесто. Она довольно быстро твердеет, приобретая со временем водостойкость. Ее применяют для получения растворов и бетонов с невысокой прочностью.
Основной связующий материал при строительстве – портландцемент. После смешивания с водой он постепенно твердеет. Цемент схватывается не ранее чем через 45 минут после затворения, твердеет – не позднее чем через 10 часов. Если применять теплую воду, которая быстрее испаряется, то раствор затвердеет еще быстрее. Твердеющий на воздухе цемент дает усадку, в воде – слегка набухает. Чтобы избежать образования трещин, при твердении бетон на цементной основе нужно увлажнять.
Чтобы получить экономичный и качественный раствор, вяжущие материалы следует смешать с водой, всыпав туда песок и некоторые специальные добавки. Используют и смешанные растворы. В них, кроме цемента, входят известь, глина, гипс и т. д. В такие растворы тоже нужно обязательно добавлять песок.
При сооружении хозяйственно-бытовых строений типа бани или гаража раствор для кладки стен можно готовить из цемента марки 100, известкового или глиняного теста и песка, взятых в соотношении 1:0,5:5 по объему. При заливке фундамента глину добавлять нельзя из-за ее усадки.
Вяжущие материалы используют и для приготовления бетона, который служит в основном для заливки фундамента бани или производства различных блоков и плит.
Из следующих глав вы узнаете, какие работы надо проводить при укладке бетона, как рассчитать нужное количество и как повысить его теплоизоляционные свойства.
Кровельные материалы
Материалы для покрытия кровли делятся на жесткие и мягкие (легкие). В числе первых – черепица, которая бывает глиняной, цементно-песчаной, металлической, асбестоцементные листы (обычно их называют шифером), ондулин и листовая сталь (кровельное железо). К мягким относятся пергамин, толь и рубероид.
Черепица может быть натуральной и искусственной. К натуральной относятся керамическая и цементно-песчаная.
В основе первой – глина, кварцевый песок, глинисто-карбонатные мергели. Черепичные плитки либо прессуются в металлических формах, либо нарезаются из сформированной ленты и затем обжигаются.
Цементно-песчаная черепица получается в результате смешивания цемента, кварцевого песка, воды и красящих пигментов.
Черепица – тяжелый материал, поэтому при возведении такой крыши понадобится достаточно массивная стропильная конструкция. Однако при строительстве капитальной бани с бетонными, кирпичными и мощными деревянными стенами расходы на устройство стропил возрастут не более чем на 5 %. Для маленькой семейной бани лучше выбрать более легкие кровельные материалы.
Теперь поговорим об искусственных черепицах. Например, битумная черепица производится из стекловолокна, пропитанного асфальтовой массой. Такая черепица не гниет, но служит всего 25 лет. Выглядит она как полоски из трех-четырех черепичек (форма бывает разной: от прямоугольника до фигурки) площадью примерно 100 × 30 см. Это очень легкий материал, поэтому его рекомендуется приобретать тем, кто спроектировал в бане крышу с сильным уклоном.
Самый легкий из видов черепицы – металлическая черепица. Это алюминиевый (либо выполненный из оцинкованной стали) лист, имеющий профиль настоящей черепицы. На листах имеется минимальное количество стыков, поэтому работать с этим материалом нетрудно. Листы покрывают слоями разноцветного защитного пластика, который практически не выгорает на солнце.
Понятно, что использовать такой материал можно лишь для накрытия очень крутых крыш и никак нельзя – для накрытия плоских. Срок службы – 30–50 лет.
Из «старых» кровельных материалов наиболее часто употребляют шифер. Он обладает высокой прочностью, легкостью, огнестойкостью и малой теплопроводностью. Выпускают листы марки ВО (волнистые обыкновенного профиля) и УВ (волнистые унифицированного профиля). Длина их соответственно 120 и 175 см, толщина – 0,55 и 0,6 см. Ширина зависит от числа волн и составляет 44,8–67,8 см и 72,5–112,5 см соответственно. Вместе с листами шифера поставляют еще и асбестоцементные детали для коньков крыш. Листы и детали реализуют в штуках.
Среди застройщиков пользуется популярностью и ондулин, иными словами, еврошифер. Он дает весьма качественную звукоизоляцию (практически полностью «съедает» звук барабанящего по крыше дождя), кроме того, не выгорает на солнце.
Ондулин отличается от обычного шифера гибкостью, а также тем, что на каждой плоскости не 12 «волн», а 10. По своему составу ондулин – это битумный кровельный лист волнообразной формы. Его можно использовать в областях с любым климатом. Ондулин не только выдерживает мощную снеговую нагрузку зимой, но и способен противостоять ураганному ветру скоростью до 190 км/ч. Он экологически безопасен, так как состоит из безвредных материалов: битума, наполнителя, целлюлозных волокон и минеральных пигментов.
Еще одно достоинство ондулина – его гибкость. Это очень важно, если радиус кривизны вашей кровли – от 5 м. С листом ондулина легко работать, он хорошо сгибается как продольно, так и поперечно относительно волны. Укладывают этот материал на деревянную либо стальную обрешетку с использованием теплоизоляционных материалов.
Паро-, тепло– и гидроизоляционные материалы
Цель установки систем гидро-, паро– и теплоизоляции банного сооружения – обеспечить своего рода «эффект термоса». Для того чтобы баня простояла долго, стены и потолки влажных помещений должны иметь изнутри парогидроизоляционную защиту. Иначе их ждет быстрое разрушение.
Гидроизоляция. При сооружении фундамента для защиты его от снега и дождя устраивают гидроизоляцию с применением преимущественно толя и рубероида. Более подробно о гидроизоляции и материалах, используемых для нее, вы прочитаете в соответствующей главе.
Пароизоляция. Основная задача пароизоляции – поддержание требуемого режима работы теплоизоляции. Это значит, что пароизоляция должна помешать проникновению в теплоизоляционный материал влаги, снижающей его свойства, а в ряде случаев ведущей к разрушению. Кроме того, пароизоляция не дает влаге накапливаться в теплоизоляционном материале и облегчает выход паров наружу.
Самыми распространенными пароизоляционными материалами являются алюминиевая фольга, бумага на фольге, фольга со стекловолокном.
Можно применять в этих целях также полиэтиленовую и полипропиленовую пленку, пергамин, толь. Но последние при высокой температуре неприятно пахнут, поэтому использовать эти материалы, особенно в парилке, не следует. Пароизоляционные материалы, как правило, укладывают под внутреннюю деревянную обшивку поверх теплоизоляционных.
Теплоизоляция. Теперь рассмотрим, какие материалы специалисты предлагают использовать для теплоизоляции бани.
Древесные, торфяные и арболитовые теплоизоляционные материалы, а также картон и строительный войлок недолговечны и нестойки. Поэтому рекомендуется применять материалы, изготовленные на основе синтетических смол, например вспенивающийся полистирол (пенопласт), который не пропускает влагу, но хорошо ее поглощает, не гниет, может прослужить около 20 лет. Используют также и экструдированный пенополистирол. Его теплопроводность еще ниже, он прочный и полностью отталкивает влагу.
Оба материала выпускаются в виде плит, которые остается лишь смонтировать, подогнав их по площади поверхностей, нуждающихся в термоизоляции.
Популярны и фольгированные утеплители. Очевидно, что это самый современный и перспективный вариант паро-, гидро– и теплоизоляции. Именно фольга позволяет получить эффект отражающей изоляции. По сути, это все тот же пенопласт, но фольгированный. Утеплитель может быть покрыт фольгой с одной либо с двух сторон.
Отличный утеплитель – минеральная вата. Это, по сути, сбор теплоизолирующих волокон, для производства которых используются минералы. Данный материал рекомендуется применять в бане еще и потому, что его максимальная температура эксплуатации – до 1000 °C.
Минеральная вата – гидрофобная, то есть не впитывает влагу, так как та, попадая в нее, лишь заполняет воздушные поры. Сама же вата остается сухой, и ее теплозащитные свойства не уменьшаются.
Стекловолокно обладает всеми достоинствами минеральной ваты, но оно при своей дешевизне недолговечно, кроме того, аккумулирует влагу. Из стекловолокна выпускают различные мягкие маты и стекловатные плиты, которые покрываются крафт-бумагой, нетканым материалом и стекловойлоком с алюминиевой облицовкой. Маты применяют для утепления любых конструкций из дерева, металла, кирпича, бетона, а плиты – для стен, потолков и полов.
Если вы строите кирпичную баню, то для утепления воздушных прослоек, возникающих в процессе кладки (при качественном выполнении они не превысят 4 см), лучше применять пенопласт.
Для утепления кровли принято использовать подкровельную пленку, а пол чердака можно залить слоем глины или засыпать слоем керамзита. Подробнее о кровле мы поговорим в соответствующей главе.
Приобретаем необходимые инструменты
В зависимости от выбранного варианта строительства на разных его этапах потребуются различные инструменты.
Главный плотницкий инструмент – топор – необходим при рубке, тесании древесины, выборке пазов и гребней. Он должен быть насажен на прочную, удобную для работы ручку-топорище. Чем острее топор, тем легче им работать.
Пилы применяют при распиловке древесины. Они могут быть двуручными, одноручными (ножовки), лучковыми, для смешанной распиловки. Для ускорения работы лучше, конечно, обзавестись бензо– или электропилой.
Стамески и долота необходимы для долбления различных отверстий в древесине.
Бурава и сверла используют при работе с деревом или по металлу.
Струги необходимы для строгания древесины. Они по-разному называются, имеют неодинаковую форму железки и длину колодки.
Кроме того, применяют: шпунт – для выборки шпунтов; рейсмус – для проведения линий-рисок и т. д.
Кельмой укладывают и разравнивают раствор, заполняют швы и удаляют его излишки.
Молоток-кирочку применяют как в каменных, так и в печных работах для колки, тески и перерубки кирпича.
Молотком и кувалдой остроносой откалывают камни, придавая им нужную форму, или вбивают их немного в грунт и щели между ранее уложенными камнями.
Печной молоток – это стальной молоточек, закрепленный на деревянной ручке. Он состоит из квадратного обушка и носика в виде очень острой (для тески кирпича) лопатки-кирочки. Закрепленная на ручке так называемая мочальная кисть используется для затирки либо швабровки печной кладки, то есть для удаления шероховатостей и потеков глиняного раствора.
Прави́ло – это фугованная древесная линейка длиной 2 м и сечением 40 мм для проверки ровности печной кладки, а также для разбивки формы печей.
Отвес – это приспособление для выверения вертикальности поверхностей. Выглядит как подвешенный к крепкому узкому шнуру длиной 7–10 см грузик цилиндрической формы, острый снизу и полукруглый сверху.
Уровень тоже необходим, чтобы выверять горизонтальность либо вертикальность, имеет вид бруска (металлического или деревянного) со вставленными в него двумя стеклянными трубочками. Если он не очень длинный, в процессе проверки его накладывают на прави́ло.
Ватерпас – рейка-отвес, которая заменяет уровень. Это две отфугованные деревянные рейки длиной от 60 см до 1 м. Маленькая под прямым углом врезана в большую и скреплена с ней с помощью прямого шипа. Это приспособление нужно, чтобы по рейкам проводить линии для вбивания шпилек, указывающих правильное направление отвеса.
Угольник – строго деревянный, длиной 100–120 см, шириной 50–60 см. Это приспособление для выверки прямоугольности рядов кладки.
Деревянное весло понадобится при приготовлении растворов (рекомендуемая длина – 150 см).
Для замешивания растворов необходимы большие ящики с ручками для переноски. Рекомендуем выбрать ящик рабочим объемом 80 × 50 × 30 см.
Чтобы готовить раствор было легче, хорошо иметь одно сито с ячейками для просеивания песка и сухих вяжущих материалов, второе – для процеживания приготовленного раствора.
И, конечно же, вы не сможете обойтись без электрических инструментов: перфоратора, дрели, болгарки, степлера, шуруповерта и даже лобзика, если решите украсить вашу баню резными деталями.
При строительстве вам непременно понадобятся расходные материалы: гвозди, шурупы, саморезы, дюбеля и др. Их необходимо подбирать, исходя из того, в каком помещении они будут использоваться. К примеру, в парилке и моечном отделении, где большая влажность, лучше применять шурупы и гвозди с антикоррозийным покрытием.
Специальные приспособления для сооружения печи
Что еще, кроме проекта, материалов и инструментов, нужно для кладки печи? Для работы на высоте необходимы подмости, для воды – ведро, для хранения и приготовления раствора – ящики и т. д.
Сито необходимо для просеивания сухих материалов (подойдет с ячейками от 0,1 × 0,1 см до 0,15 × 0,15 см) и для процеживания раствора (с сечением 0,3 × 0,3 см).
Рамки для смачивания кирпича в воде и его подноски могут быть из деревянных брусков или из стальной проволоки. Размеры рамки – 50 × 25 см. Кирпич укладывают в рамку на ребро.
Наиболее удобная для кладки высота подмосток – 60–80 см над полом. Можно стоять на полу и выкладывать печь до этой высоты, затем требуются подмости. Они должны быть прочными, так как на них создается нагрузка не только от самого рабочего, но и от материала.
Для удобства работы стоит подумать и о специальной скамье с двумя полками размером 150 × 25 × 50 см. Ее устанавливают параллельно кладке, на расстоянии 50–60 см от нее. На верхнюю толстую и прочную полку ставят воду, ящик с раствором и кирпич; более легкая нижняя служит только для инструмента.
Направляющие стойки изготавливают из досок или брусков, устанавливают в углах печи строго по отвесу и прочно прикрепляют к полу и потолку планками так, чтобы стойки нельзя было сбить во время работы. Тогда не потребуется проверять точность кладки по вертикали. Если же на стойках разметить ряды кладки, нанеся пропилы в соответствующих местах, то можно отказаться и от горизонтальной проверки.
Глава 2
Устройство фундамента под баню
Современную баню, на каком бы грунте она ни стояла, устраивают на фундаменте. Далее будут подробно рассмотрены порядок закладки фундамента, характеристика почв и их влияние на его долголетие.
Как правило, сооружение фундамента состоит из ряда последовательных операций. Сначала нужно провести обследование грунта, потом вам предстоит вырыть котлован или траншею, соорудить опалубку, связать арматурный каркас и залить бетон. После того как он схватится, необходимо снять опалубку и ждать, пока фундамент отстоится. Затем нужно устроить отмостку, соорудить цоколь (если он предусмотрен вашим проектом) и уложить гидроизоляцию.
Начнем с изучения грунта.
Исследование грунта и выбор типа фундамента
Маловероятно, что земля под вашей баней будет намного отличаться от той, на которой стоит вся усадьба. Но так как зачастую баню на участке строят прежде всех остальных сооружений, то остановимся на общих характеристиках грунтов и их воздействии на конструкции. Это пригодится вам для дальнейших работ на участке.
Чтобы точно выяснить, на какой почве будет стоять баня (а впоследствии и дом), стоит взять пробы грунта, которые затем необходимо подвергнуть инженерно-геологическим исследованиям. Для этого вам надлежит связаться с организацией, которая выполняет такие работы. Чаще всего это любая из проектных организаций, имеющая специалистов по грунтам.
Выделяют шесть видов грунтов: скалистые, обломочные, песчаные, пылеватые, суглинистые и глинистые.
Скалистые грунты – самые надежные. Они весьма прочны, не проседают, не размываются и не вспучиваются зимой. Следующие по прочности – обломочные, или хрящеватые, грунты. Они содержат обломки камней и гравий, не размываются и не сжимаются. В этом случае фундамент нужно заглублять не более чем на 50 см.
Песчаные грунты проседают, то есть существенно уплотняются под нагрузкой. Песок не задерживает воду и зимой незначительно промерзает. Фундамент нужно закладывать на глубине от 40 до 70 см.
Необходимо опасаться пылеватых грунтов, или плывунов. Нет гарантии, что ваше сооружение не «поплывет» вместе с ними в самый неподходящий момент, поэтому перед началом строительства необходимо проконсультироваться с опытными специалистами.
В составе суглинистых грунтов от 3 до 30 % глины. Если в почве менее 10 % глины, она называется супесчаной, при повышенном содержании – суглинистой.
Глинистые грунты могут сжиматься, размываться и вспучиваться при промерзании. Это самый ненадежный вариант при строительстве. В глинистых грунтах фундамент закладывается на всю глубину промерзания.
Какой же тип фундамента подойдет больше всего? Это решение нужно принимать в зависимости от грунта, на котором расположен участок. Два самых распространенных вида фундамента, которые применяются при строительстве бани, – ленточный и столбчатый.
В нашем случае по всем параметрам самым целесообразным специалисты считают ленточный монолитный фундамент мелкого заглубления, оборудованный мощным металлическим арматурным каркасом, о закладке которого мы далее расскажем подробно.
Но, конечно, перед закладкой любого фундамента необходимо подготовить для него площадку.
Подготовка площадки
Строительная площадка должна быть ровной, за исключением обязательного наклона на восток, запад либо юг для оттока дождевой и талой воды.
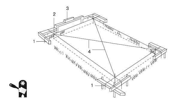
Прежде чем начертить на строительной площадке контур будущего фундамента, с почвы нужно удалить всю растительность. Затем следует тщательно выровнять поверхность (рис. 2.1).
Рис. 2.1. Разметка площадки под фундамент: 1 – обноска из досок; 2 – отвес; 3 – уровень; 4 – шнур
Ширина фундамента, как правило, рассчитывается с оглядкой на конструкцию будущих стен. Обязательная формула: ширина стен плюс 10 см.
Инструменты, нужные для разметки площадки: колышки длиной 50 см, шнур, рулетка, уровень, а также прямоугольный треугольник с катетами 30 и 60 см.
Определяем, с какого угла бани мы начнем. Вбиваем в этом месте первый колышек, а затем, надев на него треугольник, отмеряем по одной из его внешних сторон расстояние, соответствующее длине будущей продольной стены бани. По другой внешней стороне откладываем длину поперечной стены в осевых линиях.
Второй и третий колышки забиваем на пересечении осей, то есть на конечных точках длин стен.
Перемещаем треугольник в противоположный угол бани. Снова находим место пересечения осей и забиваем в этой точке четвертый колышек. Удостовериться, нет ли перекоса в замерах, можно, сопоставив диагонали в получившемся прямоугольнике.
Если все сделано правильно, разница в их длинах не превысит 2 см.
Следующий этап: берем столбики с предварительно прибитыми к ним досками и начинаем выполнять обноску на расстоянии 1–2 м от столбиков (доски крепим на высоте 1,5 м от земли так, чтобы их положение было строго параллельно положению банных стен). Прежде чем приступить к работе, еще раз удостоверьтесь с помощью уровня и рейки в том, что конструкция сооружена ровно.
Теперь вам предстоит нанести осевые размеры контура фундамента на верхнюю кромку обноски. Для этого сначала вобьем в зарубки гвозди так, чтобы строго над вбитыми в будущие углы колышками можно было ровно протянуть шнур.
Натянув оси и удостоверившись, что они проходят правильно, следует взять отвес и перенести осевые линии на площадку. Именно от них нужно откладывать во все стороны заданные расстояния, по которым пройдут линии, фиксирующие контуры внутренней и наружной стороны фундамента.
Начинаем копать. Помните, что строительство бани желательно завершить в один сезон, поэтому, как только котлован либо траншея вырыты, следует сразу же приступать к закладке фундамента.
Если вы копаете неглубокий котлован (до 1 м), его стены желательно делать строго вертикальными; если от 1 м, допустим некоторый уклон.
Чтобы грунт в процессе работы не сыпался, понадобятся щиты с распорками. Их следует установить между стенками котлована либо траншеи. Они извлекаются по окончании земляных работ.
Устройство ленточного фундамента
Если грунт на вашем участке неоднородный, то есть рельеф сам по себе неровный, а влажность почвы очевидна даже на ощупь, выбора нет: придется укладывать ленточный фундамент. О том, на какую глубину нужно это делать, вы узнаете, проведя исследования грунта (либо попросив об этом специалиста). В среднем она составляет 70–100 см.
Понятно, что первый этап приведения такого грунта в вид, позволяющий вашему участку стать строительной площадкой, – удаление растительного покрова. Поскольку грунтовые воды наверняка залегают близко к поверхности, слой дерна, скорее всего, достаточно велик. Его необходимо полностью удалить, а вместо него засыпать слой песка, смешанного с гравием, и как следует уплотнить.
Чем плохи глинистые и суглинистые грунты? Они, как никакие другие, сильно вспучиваются зимой. Если, заложив фундамент, вы не управились со строительными работами к исходу осени, то будущая баня, оставшаяся зимовать без завершенных стен, а также перекрытий и крыши, непременно разрушится или как минимум покосится. А если она уже готова, то из-за вспучивания грунта может «встать на цыпочки», поднявшись на 10 см! Результат предсказуем: трещины в стенах плюс перекос всего сруба.
Во избежание негативных последствий нужно заранее позаботиться о том, чтобы грунт как можно в меньшей степени вспучивался зимой и не оседал летом. Начиная строительство на глине либо на суглинке, сначала делаем «пробку» из песка толщиной 30 см. Если подземную часть фундамента в глинистом грунте вы можете устраивать без опалубки, то при возведении наземной части опалубка просто необходима.
Итак, первостепенное правило устройства фундамента в глинистом грунте: он должен закладываться ниже глубины промерзания почвы, то есть минимальная глубина должна составить 0,5 м.
Но это не единственная мера предосторожности! Вам все равно понадобится система защиты от вспучивания грунта, если не хотите, чтобы небольшая баня «выскочила» из земли вместе с промерзшей почвой. Чтобы этого не случилось, обязательно покройте фундамент солидолом и сделайте над траншеей, тянущейся по его периметру, небольшой вал из песка либо мелкого гравия.
Если вы приобрели либо получили в наследство участок, находящийся на торфянике или мелком песке, то вам придется, выкопав глубокую траншею, насыпать новый слой грунта, своего рода «пробку» из крупнозернистого песка, высотой не менее 30 см. Затем, чтобы она утрамбовалась, ее нужно обильно залить водой и дать песку спрессоваться.
Теперь перейдем непосредственно к возведению ленточного фундамента. Спектр материалов, пригодных для его закладки, широк: бут, бутобетон, сборный бетон, монолитный бетон. Напомню: ленточный фундамент подразумевает «тяжелую» баню, стены которой будут возводиться из камня либо кирпича. Ленточный фундамент выдержит и пенобетонные стены.
Чтобы самим не умалить его прочность, вы должны, посоветовавшись со специалистом, правильно установить характер грунта на участке. Исходя из этого следует выбирать цементный раствор, с помощью которого будет строиться фундамент.
Приведу рецептуры растворов в зависимости от вида грунта:
✓ для не слишком влажной почвы (грунтовые воды залегают глубже 3 м) подойдет смесь цемента марки 100, известкового теста (при отсутствии – глины) и песка в пропорции 1:0,5:5; для очень влажного грунта (грунтовые воды находятся на глубине 1–3 м) берут те же компоненты, но в ином соотношении – 1:0,3:3,5;
✓ если грунт совсем «мокрый» (грунтовые воды находятся на глубине 1 м), используют смесь цемента марки 150 и песка в пропорции 1:2,5.
Закладка ленточного фундамента начинается с засыпки в подготовленный котлован либо траншею слоев (в указанной очередности) гравия, а затем крупнозернистого песка. Толщина каждого – примерно 20 см. Трамбуем, поливаем слои водой. Повторяем последовательность, пока не достигнем уровня земли под ногами. После того как опалубка готова, а также заложена и связана воедино арматура, можно заливать жидкий цементный раствор (рис. 2.2, 2.3).
Рис. 2.2. Установка опалубки и арматуры
Рис. 2.3. Заливка фундамента с использованием желоба
Все, можно приступать к возведению цоколя из кирпича либо бутового камня (рис. 2.4). Не забудьте проложить под его конструкцией два слоя рубероида в целях преграды для проникновения влаги.
Существует и такой вариант: описанные выше слои из крупнозернистого песка и гравия засыпаем лишь до половины котлована либо траншеи. Выравниваем верхний край как можно тщательнее. Рядом поверх засыпки выкладываем кирпичи. Для них предварительно нужно поставить опалубку из досок, обложив (обив) их обрезками шифера. Пропитываем деревянные фрагменты опалубки антисептическим раствором и после высыхания покрываем их гудроном.
Рис. 2.4. Фундамент из природного камня: 1 – глиняная отмостка; 2 – гидроизоляция; 3 – камень
Поставив фрагменты опалубки вертикально, соединяем их с помощью деревянных связок.
Некоторые мастера предлагают (если, конечно, грунт достаточно плотный) устанавливать в котлован либо траншею плоскости с шифером «внахлест», ограничившись креплением между собой лишь верхних концов шиферных листов посредством съемных связок. В таком случае пустоты между шифером и стенками котлована засыпают песком, который затем тщательно трамбуют.
Наполняем опалубку до середины песком и гравием, трамбуем, заливаем поверх бетоном. Следите, чтобы толщина слоев бетона не превышала 15 см. О том, что бетон утрамбован в достаточной степени, свидетельствует появление на его поверхности цементного молока.
Выждите 3 часа. Укройте готовый фундамент любым пропускающим влагу материалом. Это могут быть мешковина, опилки, стружки. Обильно полейте фундамент через покрытие. Это придется сделать неоднократно, летом – каждые 3–4 часа в течение трех суток. Затем накрываем полиэтиленом бетон. Убедившись, что он схватился (об этом судят по степени его затвердения), снимаем опалубку.
Осталось наполнить глиной пазухи вокруг фундамента и утрамбовать ее. Выполняем отмостку. Далее делаем гидроизоляцию (простейший ее вариант, напомню, – два слоя толя либо рубероида).
Гидроизоляция фундамента и цоколя
Как защитить фундамент от воды? Задача довольно сложная, поэтому рассмотрим ее подробней.
Во-первых, почему гидроизоляция и ремонт конструкций, которые подвергаются воздействию подземных и надземных вод, необходимы не только во время строительства бани, но и в период ее дальнейшей эксплуатации? Потому что деревянные, бетонные, каменные и кирпичные здания, подвергающиеся воздействию агрессивных подземных вод, в конце концов теряют прочность и разрушаются.
От таких неприятностей постройку защищают с помощью специальных материалов.
Защитные материалы делятся на две группы:
✓ традиционные (рулонные и мастичные), изготовленные на основе полимерных смол, полимеров, битумных мастик и др.;
✓ материалы проникающего действия на основе минерального сырья.
Сегодня наибольшей популярностью пользуется вторая группа, принцип действия которой предусматривает проникновение химических веществ в пористую структуру материала защищаемой конструкции, после чего поры заполняются кристаллогидратами, и эксплуатационные характеристики бетона с течением времени только повышаются.
Поскольку для фундамента бани такой способ не столь уж необходим, напомню, что гидроизоляцию фундаментов выполняют и традиционными материалами. Например, укладывают цементный раствор слоем 2–3 см, выравнивают и сушат, после чего настилают рубероид. Поступают и так: из 1 части разогретой сосновой смолы и 1/2 части просеянной извести-пушонки готовят мастику, которую в горячем виде наносят тремя слоями на цемент. При этом толщина каждого слоя должна быть не менее 3 мм. Верхнюю часть фундамента покрывают горячей битумной мастикой и наклеивают на нее слой рубероида.
Напоминаю вам, что в защите от вредного воздействия дождевых и талых вод нуждается не только подземная часть фундамента, но и цоколь. Гидроизоляция цоколя призвана противостоять потокам воды во время дождя или таяния снега и предотвращать впитывание воды поверхностями фундамента.
Гидроизоляцию обычно выполняют и в горизонтальной, и в вертикальной плоскостях. Для этого под основание фундамента и в местах его сочленения со стенами укладывают рулонные водонепроницаемые материалы, например рубероид, а для защиты вертикальных поверхностей стенок можно несколько раз обмазать их битумом (рис. 2.5). Однако такой способ эффективен только в том случае, если строение стоит на сухом грунте, ведь срок службы битума невелик. Уже через 3–3,5 года он начинает покрываться трещинами, а исправить это, к сожалению, невозможно.
Рис. 2.5. Гидроизоляция ленточного фундамента битумом
Экономить на возведении фундамента не стоит. Нужно пользоваться современными материалами для обмазочной гидроизоляции, например жидким стеклом. В отличие от битума, данный материал более долговечен, и при устройстве фундамента на влажном грунте этот вариант предпочтительнее.
Устройство отмостки
Отмостку можно делать из бетона, асфальта, бетонных плит, булыжников (рис. 2.6). Наиболее прочными считаются бетонные отмостки, которые менее зависят от внешних условий.
От чего зависит ширина отмостки? От типа грунта и ширины выноса карнизных свесов кровли. Если грунт обычный, отмостку сооружают на 20 см шире карнизного свеса, а минимальная ее ширина – 60 см. Если же баня стоит на просадочных грунтах, ширину отмостки увеличивают. Иногда ее делают настолько широкой, что она выполняет функции дорожки вокруг бани.
Рис. 2.6. Схема отмостки без утепления: 1 – цоколь; 2 – бетонное покрытие; 3 – растительный слой; 4 – арматурная сетка; 5 – слой щебня; 6 – слой песка; 7 – грунт; 8 – фундамент
Итак, начинаем сооружать отмостку. Сперва удалим растительность вокруг бани и снимем дерн на глубину 15 см и выбранную вами ширину. По углам бани забиваем колышки, отмечаем на них высоту примыкания отмостки к фундаменту. Закрепляем на этом уровне шнур по всему периметру. Вторую линию колышков устанавливаем по наружному краю отмостки, отмечаем на них высоту наружного края бетонного покрытия. Чтобы отводить дождевую воду, делаем небольшой уклон, примерно 5 %. Теперь на подготовленное основание нужно насыпать песок слоем 10 см и утрамбовать его. После этого вдоль внешнего края отмостки сооружаем опалубку, которая должна удерживать бетон при его заливке. Затем на песок укладываем щебень, высота слоя которого – 15 см, а на него – арматурную сетку с нахлестом 10 см в местах стыков.
Чтобы избежать трещин там, где есть максимальное напряжение, прокладываем деформационные швы, которые отделяют заливку одной порции бетона от другой. Для этого используют уложенные на ребро обработанные антисептиком доски шириной 15–20 мм.
Раствор нужно заливать постепенно: затвердеет одна порция – берем следующую, и т. д. На несколько дней отмостку нужно укрыть полиэтиленовой пленкой, чтобы она не потрескалась от солнечных лучей. Через месяц, когда бетон затвердеет, опалубку можно убирать. Отмостка готова.
Не стоит забывать, что в бане есть еще один фундамент – фундамент для печи, или так называемый цоколь. Его также нужно отразить в проекте.
Печи массой не более 750 кг (имеются в виду легкие печи в металлическом кожухе) можно установить и на полу, если он достаточно прочен. Но для стационарных кирпичных печей фундамент необходим.
Расстояние от фундамента бани до фундамента печи должно быть не менее 5 см. Этот промежуток засыпают песком. Важно отметить, что кладку фундамента дома ни в коем случае нельзя связывать с кладкой фундамента печи, так как у них разная осадка. В главе о сооружении печей мы поговорим об этом подробнее.
Глава 3
Возведение стен
Исходя из ваших возможностей, можно возвести однослойные либо многослойные стены, выполнив их из брусьев либо бревен, из кирпича или бетона. Самое главное – материал должен быть однороден.
Стены из подготовленной и неподготовленной древесины
Испокон веков считалось, что лучший материал для бани – дерево. Здесь на первом месте однозначно стоят хвойные породы деревьев. Они быстро и без остатка впитывают пар, способны поддерживать в парильном помещении равномерные температуру и влажность. Кроме того, сосна и ель под воздействием повышенной температуры во влажном микроклимате выделяют очень мощные целебные вещества.
Дерево обладает большой теплоизоляционной способностью. Чтобы прогреть баню до максимально высокой температуры, достаточно полутора часов. При этом необязательна большая толщина стен. Если они выкладываются из деревянного бруса, максимальная толщина может быть ограничена 15 см, бревна – 25 см. Деревянные конструкции легкие, они практически не подвержены быстрому разрушению. Во многих русских деревнях и теперь функционируют бани, возведенные столетие назад.
Самые лучшие из деревянных материалов с точки зрения современного строительства – это клееный или профилированный брус и оцилиндрованное бревно. Возведенные из них стены служат дольше, нежели из обычного бруса. Конечно, чтобы внешний вид банной постройки был на должном уровне, стены нужно будет умело проконопатить, не позволив теплоизоляционному материалу, например мху или пакле, торчать снаружи.
Главное преимущество оцилиндрованного бревна и профилированного и клееного бруса состоит в том, что возводить из них сооружение так же просто, как собирать детский конструктор. В такой древесине все продумано и учтено. Вы просто заказываете сруб по собственному или уже готовому проекту, вам его привозят в разобранном виде, и вы можете собрать его собственными силами либо с помощью бригады той фирмы, которая вам этот сруб поставила (рис. 3.1). Но это, конечно, обойдется довольно дорого.
Рис. 3.1. Сруб из оцилиндрованного бревна
Иное дело – неподготовленная древесина. Поговорим о том, как правильно выбрать неподготовленные бревна и другие деревянные строительные материалы.
При выборе бревен желательно посоветоваться с плотником, а не только с продавцом, заинтересованным в том, чтобы вы купили у него товар. Ведь для установления «на глаз» сорта бревна нужен действительно хороший опыт. Вот несколько советов для начинающих строителей.
Бревно хорошее, если на срезе нет «нездоровых» голубоватых пятен, а его сердцевина занимает около трех четвертых диаметра. Сравните ее оттенок с цветом остальной поверхности: сердцевина должна быть темнее. На ощупь поверхность среза должна казаться твердой.
Проверить качество бревна можно с помощью топора. Если ударить обухом по торцу, не прикладывая особой силы, от качественного бревна топор сразу отскочит, слегка зазвенев, а древесина «загудит».
Намного легче удостовериться в качестве уже ошкуренного бревна. Если оно качественное, цвет его поверхности колеблется от светло-желтого до темно-желтого. Сучья должны сидеть плотно, без зазоров. В противном случае сердцевина бревна под зазорами обязательно окажется трухлявой.
Скажем несколько слов о срубе из осины. В ней содержатся антисептические вещества. Следовательно, увлажняясь, постройка не станет гнить. Но здесь есть нюанс: запах антисептических смол при нагреве воздуха будет присутствовать на протяжении всего процесса парения.
По тем же причинам – выделение в процессе нагрева смолы из волокон – сосна и лиственница категорически не подходят для устройства пола и потолка парилки, а также парилочных полок. А вот для сруба эта древесина подходит прекрасно. Есть, правда, один нюанс, касающийся лиственницы: она идеальна для настила первого ряда, который разрушается быстрее всего. Именно это дерево, оказавшись во влажной среде, становится лишь крепче. Однако, выложив из лиственницы первый ряд, имеет смысл остановиться. Дело в том, что в структуре этого дерева весьма высоко содержание живицы. Данное вещество обладает свойством давать своеобразный, очень резкий и приторный запах. Так что первый, максимум второй ряд сруба – предел для этого дерева.
Независимо от того, какую вы приобретете древесину, это должно быть дерево, выросшее в вашей местности с обычным для нее климатом. «Модное» дерево с юга, как правило, очень пористое, и уже через три года стены начнут гнить. А вот наше дерево, кстати, на юге чувствует себя превосходно.
Расскажем об основных правилах работы с неподготовленной древесиной. Для тески древесины важно правильно подобрать топор. Он должен быть средних размеров, с топорищем, длина которого равняется двум с половиной высотам самого топора. Под топорищем понимается промежуток от лезвия (жала) топора до его обуха.
Есть несколько вариантов тески бревна. Например, на один кант. Делается это так: бревно укладывается на две деревянные подкладки-чурки и крепится с помощью угловых скоб. Чтобы оно стало прочнее, в подкладках должны быть треугольные либо полукруглые выемки. Затем отвесом размечаем на торцах бревна вертикальные линии-риски. Поверх них с помощью топора наносим защепы. Закладываем в них шнур, придерживая его рукой (рис. 3.2).
Рис. 3.2. Теска плотничным топором: а – разметка торца бревна; б – надрубка; в – теска по надрубам; г – разметка торца бревна для тески на четыре канта; д, е – теска на четыре канта
Тесать можно как по ошкуренному, так и по неошкуренному бревну. Возможно, ошкуренное бревно почернело от времени, тогда шнур нужно натереть мелом. Если древесина ошкуренного бревна слишком светлая, возьмите цветной мел.
Итак, вы закрепили шнур. Теперь подходим к середине бревна, становимся у обратной стороны стеса и выпрямляем шнур строго вертикально. Вам нужны вертикальные линии на торцах. Их вы получите за счет того, что, опускаясь, шнур будет ударяться о бревно и осыпать на него краситель, отбивающий линию.
По ней и будет выполняться теска бревна на один кант. Ведем ее от вершины к комлю, тогда удастся избежать заусениц. Через каждые 25–30 см со стороны стеса делаем надрубы на глубину отеса: так намного легче работать, ведь сначала вы древесину скалываете, а затем отесываете.
Снимать первичную щепу следует до отбитой линии. Неповрежденными должны остаться 5 мм древесины.
Следующий этап – финальная зачистка до отбитой линии. Древесная вертикальная поверхность после тески должна быть идеально чистой.
Похожим образом выполняется теска бревна на два канта. Следите за тем, чтобы ширина стесываемых поверхностей была одинаковой, в противном случае вы получите «кривобокое» бревно. Кстати, чтобы аккуратно стесать изначально кривые бревна, положите их выпуклой стороной вверх.
Можно тесать бревно на четыре канта (равно как и прямоугольный деревянный брус). Для этого сначала нужно с помощью циркуля провести окружность на некомлевой стороне. Ее диаметр подбирается так, чтобы затем в него мог войти брус заданных параметров.
Затем такую же окружность проводим по комлю. Пропускаем через ее центр взаимно перпендикулярные линии, соединяя их концы прямыми линиями в пределах окружности (в результате должен получиться квадрат). Разметив нужное количество таких квадратов, намечаем через их вершины на обоих торцах линии-риски. По ним и следует тесать.
В процессе возведения стен вы будете выполнять шпунтовые ряды (то есть устанавливать в грунт ряд шпунтин, которые затем свяжете между собой сбоку в замок, изолировав от влаги). Для их устройства в бревнах заранее выбираются четверти. Осуществляется этот процесс так: устанавливаем бревно на подпорки, закрепляем и проводим окружности по обоим его торцам. Через их центры пропускаем взаимно перпендикулярные линии: горизонтальную и вертикальную. Они должны соответствовать диаметрам окружностей.
Делим каждый из диаметров на три равные части. Теперь параллельно им можно проводить соответствующие линии. У нас получилась четверть торца. Осталось отбить линии между сделанными рисками и выбрать ненужную древесину. Заключительный этап – чистовая зачистка внутренней полости четверти с помощью стамесок.
Чтобы соединяемые друг с другом бревна плотно прилегали одно к другому, вам понадобится устроить в них соединительные овальные пазы (рис. 3.3). Соединение выполняется за счет укладки верхнего бревна в овальный паз нижнего. Насколько широким вы решите его сделать, зависит от того, какая обычно температура будет сохраняться снаружи банного строения.
Рис. 3.3. Теска плотничным топором: а, б – теска «под скобу» по шаблону; в – выемка и зачистка паза; г – выборка четверти в толстой доске; д – выборка паза в толстой доске
Важно, чтобы по всей длине бревна паз имел одинаковый профиль. Для этого можно заранее сделать шаблоны, например, из фанеры.
Когда все готово, то есть вы выполнили отбивку линий, необходимо выбрать ненужную древесину, выверяя профиль паза с помощью лекала.
Соединять деревянные элементы можно различными способами (рис. 3.4). Например, осуществлять наращивание впритык. Для этого срежьте торцы бревен, которые нужно соединить, затем просверлите в их центрах отверстия и совместите фрагменты, используя штырь с тугой посадкой.
Рис. 3.4. Способы наращивания и соединения бревен и брусков: 1 – наращивание прямой накладкой; 2 – наращивание косой накладкой; 3 – сращивание прямым замком; 4 – натяжные клинья; 5 – соединение брусков сковороднем; 6 – соединение бревен сковороднем; 7 – соединение брусков полусковороднем
Второй способ – соединение прямым замком. Это возможно лишь в том случае, когда торцы фрагментов, которые нужно соединить, одинаковых размеров. Чтобы «вырубить» замок, нужно разделить высоту торца одного из бревен на пять одинаковых отрезков. Затем проводим четыре линии.
Отступаем от торца на два отрезка (длиной по полторы высоты бруска). По верху и по боковым сторонам бруска наносим две линии-риски: под первый и под второй пропилы. Далее от второй линии на торце по боковой стороне тянем линию до первой риски. Соответственно, от третьей линии на торце по боковой стороне тянем линию до второй риски. Следующий шаг: делаем пропил по первой и второй рискам до третьей линии. Теперь до второй линии торец нужно сколоть. Осталось удалить ненужную древесину между пропилами третьей линии.
Таким же образом нужно обработать второй брусок. Затем тщательно зачистим поверхности обеих половин замка так, чтобы их можно было плотно наложить друг на друга.
Третий способ соединения деревянных фрагментов – сращивание прямым замком с натяжным клином. Под этим подразумевается, что в середине каждой из половин замка будут предусмотрены места для специальных клиньев. Они вбиваются с обеих сторон.
Приступаем к возведению деревянных стен.
Фундамент у вас уже готов. Теперь на него поверх гидроизолирующего слоя нужно положить окладной (первый) венец (рис. 3.5). В процессе эксплуатации бани он всегда разрушается в первую очередь, а подновлять его, меняя сгнившие бревна, крайне непросто. Для того чтобы этого избежать, понадобится специальная подкладка, то есть обычная доска толщиной 5 см и шириной 3 см, пропитанная антисептическим раствором либо покрытая с трех сторон (кроме верхней или торцовой) битумной мастикой. Стелем на подкладку теплоизоляционный материал и уже поверх него устанавливаем окладной венец, предварительно стесав его нижние поверхности.
Вторые бревна окладного венца должны быть установлены так, чтобы возвышаться над первыми ровно на половину их диаметра. В результате у вас образуется свободное пространство между венцом и фундаментом. Закладываем его кирпичом либо камнем.
Рис. 3.5. Укладка первых венцов: 1 – второй венец; 2 – окладной венец; 3 – доска-подкладка; 4 – прибивной брусок для крепления слива; 5 – сливная доска или фартук; 6 – прокладка из пакли; 7 – слой толя
Теперь поверх окладного венца вам предстоит водрузить второй венец, а далее – третий. Снова напомню о том, что между пазами бревен теплоизоляционный материал должен быть уложен так, чтобы не осталось пустот.
Теперь устраиваем отток атмосферных вод. Выбираем во втором венце паз. В него и будет вставляться сливная доска (рекомендуем вам кровельную сталь). Ее ширина подбирается так, чтобы отстоять от цоколя как минимум на 5 см.
Особое внимание уделите венцу, на котором будут закладываться оконные проемы. Его подготовка заключается в следующем: под оконный проем вырубается специальный гребень. Можно ограничиться лишь стесыванием венцов, добившись их безукоризненной горизонтальности.
Заключительный этап подготовки венцов – на задуманной вами высоте между ними нужно врубить балки чердачного перекрытия (либо потолка, если у вас крыша без чердака).
Соединение бревен в окладном нижнем или верхнем венцах непременно выполняется косым натяжным зубом. Остальные венцы можно соединять впритык вертикальным гребнем (от 7 см в одном торце так, чтобы в другом торце паз тоже соответствовал по размеру).
Теперь непосредственно стены. Самый распространенный вид древесного материала для возведения бани – круглые бревна диаметром от 20 до 25 см. В процессе наращивания стен их следует укладывать венцами. Этим строительным термином обозначаются горизонтальные ряды.
Прежде чем приступить к укладке бревен, в нижней стороне каждого из них нужно вытесать паз. Он будет укладываться на круглую сторону предыдущего бревна. Между бревенчатыми фрагментами обязательно должен находиться слой пакли из льняных или конопляных очесов. Его рекомендуемая толщина – 1 см. Между самым нижним из венцев и ленточным фундаментом нужно поместить слой рубероида.
Чтобы при укладке ряды получались строго горизонтальными, комли бревен нужно направлять в противоположные стороны, стыкуя их по углам «в чашку» («в обло», с остатком) либо «в лапу» («в чистый угол», без остатка) (рис. 3.6, 3.7).
Все фрагменты бревен, оставшиеся торчать из поверхности выложенной стены, нужно обрезать по отвесу. Решив крепить их «в чашку», вы должны начать с вырубания в двух соседних бревнах четырех «чашек». Чтобы верхнее бревно плотно «легло» в нижнее, в последнем нужно выбрать продольный полукруглый паз. Затем, прежде чем вставить второе бревно, вкладываем в «чашку» слой пакли или джута толщиной 1 см. Концы пакли непременно должны свешиваться на обе стороны стены на 7–8 см, затем они убираются в пазы.
Рис. 3.6. Рубка «в чашку»: 1 – циркуль плотника; 2 – шип; 3 – гнездо; 4 – разметка для вырубки чаши; 5 – насечки для выборки продольного паза; 6 – готовый участок продольного овального паза
Рис. 3.7. Рубка «в лапу»
Далее в брусчатых либо бревенчатых стенах проделываются оконные и дверные проемы с последующей вставкой косяков. Когда это сделано, в косяках устраивают пазы, необходимые для их соединения со срубом, а также четверти для оконных и дверных переплетов. Верхние края проемов должны быть заделаны брусками такой же формы, что и косяк, только без паза. Поскольку потом стены осядут, поверх бруса обязательно оставляется зазор 5 см. Его следует заложить паклей.
Отдельно скажу о конопатных работах: без них немыслимо возведение деревянной постройки. В процессе сборки сруба, как уже было сказано, между бревнами укладывают утеплительный материал. Первый раз стены конопатят после устройства перекрытий, крыши и отделки оконных и дверных проемов. Повторяют процедуру уже после того, как стены полностью осели, но не ранее чем через год после их возведения. При этом обязательно проконопатить щели и зазоры в проемах и трещины в бревнах, образовавшиеся при усушке дерева.
Проконопатить сруб – значит заполнить зазоры между бревнами венцов и во врубках углов мхом, паклей, войлоком, пенькой. При этом волокна должны выступать из пазов на обе стороны сруба не менее чем на 5 см. Мох или паклю (для бани, конечно же, лучший материал все-таки мох) расстилают ровным слоем волокнами поперек паза и забивают их в щели с помощью конопаток. Это специальные деревянные лопаточки в виде заостренного клина с рукояткой и колотушкой, сделанной также из твердой древесины. Колотушкой забивают лопатку в паз, пока не почувствуется упругость мха. При этом его то и дело добавляют до полного заполнения шва между бревнами. Эту операцию выполняют как внутри сруба, так и снаружи.
Полезно знать, что конопатка каждой стены в отдельности приведет к тому, что строение перекосится. Поэтому сначала конопатят первый паз по всему периметру бани, затем второй и т. д.
После того как закончили работу с внешней стороны, переходят к внутренней.
Конечно, мох – это традиционный материал, но он не всегда доступен. Проще приобрести джут либо льноватин. Это современные материалы для утепления деревянной бани. Они не гниют, являются экологически чистыми, и их не ест моль.
Использование джута и в особенности льноватина дает возможность не прибегать к повторной конопатке (рис. 3.8).
Рис. 3.8. Утепление сруба
Важно проконопатить баню своевременно: материалы должны быть проложены между бревнами еще в процессе возведения сруба. Пазы и зазоры – после того как завершим возведение крыши.
Кирпичные стены
В кирпичных банях стены кладутся в четверть либо в полкирпича, затем выполняются утепление и система пароизоляции. У них есть свои сторонники и противники. Я рекомендую вам сооружать такую баню в случае, когда она будет пристраиваться к жилому либо хозяйственному сооружению. Дело в том, что из-за высокой теплопроводности кирпичные стены, особенно в сравнении с деревянными, действительно хуже сохраняют тепло, и спасти ситуацию может лишь продуманная и массивная теплоизоляция.
Сразу перечислю достоинства кирпичных стен. Они крайне прочные, им не страшен огонь, равно как гниение и подтачивание насекомыми. Самое главное, на такие стены можно уложить железобетонные перекрытия, что важно для оригиналов, которые намерены расположить над пристроенной к основному массиву баней летнюю комнату, бильярдную либо зимний сад.
Работая с кирпичом, банные стены можно сделать красивыми. Из него можно выложить различные конфигурации стен, в том числе разнообразить облик бани ажурными декоративными элементами.
Используя огнеупорный кирпич, можно не опасаться печи-каменки, кроме того, внутри такой стены несложно устроить вентиляционный канал либо дымоход. Однако есть и очень существенный с точки зрения банного строительства недостаток. Теплопроводность кирпича крайне низка. Такую баню сначала сложно разогреть, а затем охладить. Именно высокой теплоемкостью кирпича объясняется его ощутимая тепловая инерция.
Он не всегда хорош в качестве материала для возведения бани еще и потому, что, отсыревая, быстро разрушается, особенно зимой, когда на него увеличиваются температурные нагрузки (притом что кирпичные стены и без того нуждаются в капитальном ремонте каждые 25 лет).
Кирпич – тяжелый материал, следовательно, чтобы избежать скорой деформации стен, вам придется очень серьезно отнестись к устройству фундамента, делая его мощным. Необходимо также хорошо просчитать максимальную глубину промерзания грунта.
Кроме того, кирпичные стены бани должны быть как можно более толстыми. Например, в Подмосковье – не менее 52 см.
Следует помнить и о том, что к отделке кирпичных стен можно приступать не ранее чем спустя год по окончании строительства. За более короткий промежуток времени они не успеют осесть.
Скорее всего, для кладки стен банного сооружения вы приобретете самый распространенный кирпич – глиняный красный. Сразу оговорим, что вам могут предложить и желтый, выдав его за пригодный для оформления стен, но помните, что он сугубо облицовочный.
Еще одна градация кирпичей – по пустотелости. Полнотелый кирпич – это сплошной массив. Пустотелый – с круглыми либо прямоугольными сквозными дырочками. Именно благодаря им показатели последнего по теплоемкости выше, нежели у полнотелого. Кирпичи имеют два размера:
25 × 12 × 6,5 см и 25 × 12 × 8,8 см.
Дальше будут разбираться несколько видов кирпичной кладки, однако сначала нужно освоить терминологию каменного дела. Нижняя и верхняя постель – это широкие грани кирпича (рис. 3.9). Ложок – длинная боковая грань, тычок – короткая боковая грань. Соответственно, когда говорят о ложковом ряде, имеют в виду ряд кирпичей, выложенных вдоль стены длинной стороной, а когда о тычковом – выложенных поперек стены. Верста – наружный ряд кладки, забутка – внутренний (как правило, он выкладывается из бракованных кирпичей, битых и со сколами).
Рис. 3.9. Основные части кирпича: 1 – постель; 2 – тычок; 3 – ложок; а – в четверть кирпича; б – в полкирпича; в – в кирпич
Существует и такая разновидность кирпича, как керамический камень. Это большой пустотелый кирпич объемом 25 × 12 × 3,8 см.
Запомните: желательно в целях повышения прочности кладки предварительно увлажнить кирпич. Поскольку обычно строительство ведется в теплое время года, его достаточно полить из лейки либо положить на какое-то время в ведро с водой. Если вы возводите баню все-таки зимой, смачивать кирпич не нужно, иначе кладка будет очень долго сохнуть.
Теперь собственно о видах кладки. Правило для кладки любого вида: прочность стены зависит от того, насколько тщательно вы соблюдаете однорядную либо многорядную перевязку. Под однорядной кладкой подразумевается последовательное чередование ложковых рядов с тычковыми либо их комбинации (рис. 3.10). Скажу сразу, что это будет сложно для человека, выполняющего такие работы впервые. Кроме того, придется запастись большим количеством кирпичей-трехчетвертинок для выкладывания углов.
Иное дело многорядная перевязка (рис. 3.11). Ее смысл заключается в следующем: от трех до пяти ложковых рядов приходится на один тычковый, а сам по себе «рисунок» шва становится элементом декора. Если вы хотите усилить эффект декоративности, можно выполнить кладку лицевых поверхностей по трех-пятирядной системе, причем так, чтобы швы были сквозными и направлялись вертикально. Здесь пригодится и облицовочный желтый кирпич. Из него можно выполнить версту. (Еще один секрет мастерства: если делать ложковые и тычковые ряды из кирпичей разных цветов, получится симметричная кладка в полосочку.)
Какую бы кладку вы ни выполняли, есть общие правила. Прежде всего, ширина швов не должна превышать 1 см. Каждые два-три ряда кладки непременно проверяем ее горизонтальность. Если нужно что-то подправить, делаем это за счет утолщения либо заужения шва, постепенно распределяя раствор на нескольких рядах. Кроме того, важно, чтобы швы заполнялись полностью. Расшивать их, то есть придавать им выпуклую, вогнутую либо треугольную форму, нужно немедленно, пока раствор не высох. И в любом случае кладка всегда ведется от угла дома с первого тычкового ряда лицевой версты.
Рис. 3.10. Способы однорядной перевязки кирпичной кладки: 1 – ложковая; 2 – тычковая; 3 – цепная; 4 – крестовая; 5 – готическая; 6 – голландская
Рис. 3.11. Типы многорядной перевязки: 1 – трехрядная; 2 – четырехрядная; 3 – пятирядная
Выполняя порядовку кладки в полтора кирпича (с простенками, углами и четвертями проемов), обязательно используйте не полнотелый, а пустотелый кирпич, заложив по краям оконных и дверных проемов (с каждой стороны) по две деревянные пробки величиной с полкирпича и обернув их слоем рубероида. Это понадобится для последующей установки дверных и оконных коробок. Их перед установкой в проем также изолируют рубероидом.
Поверьте, вы ничего не потеряете в теплоизоляционных показателях. От тридцатиградусного мороза вас защитит либо кирпичная кладка с воздушным промежутком (толщина стены – примерно 56 см), либо кладка с внутренним утеплением (толщина – примерно 37 см), либо колодцевая кладка с засыпкой (толщина – от 52 до 58 см) (рис. 3.12–3.14). Для сравнения: толщина стены, выполненной сплошной кладкой из пустотелого кирпича, получится 51 см.
Рис. 3.12. Облегченная кирпичная кладка с воздушным промежутком
Рис. 3.13. Облегченная кирпичная кладка с плитным утеплителем
Рис. 3.14. Колодцевая кладка с засыпкой или заполнением легким бетоном
Кладка с воздушными пустотами предполагает наружный ряд толщиной в полкирпича, воздушные пустоты, основной кирпичный массив толщиной в один либо полтора кирпича. Особенность кладки состоит в том, что через каждые пять-шесть рядов необходимо перевязывать обе кладки тычковым рядом кирпичей по всей длине стены. Можно вместо кирпичных связей армировать кладку через каждые 50 см с помощью стальных прутьев диаметром 7 мм, согнув их концы для более качественного сцепления с раствором и следя при этом, чтобы концы прутков не доходили до наружных граней стены на 5 см.
Кладка с вкраплением утепляющих плит. В обычной сплошной кладке устраиваем маяки из раствора с зазором 2–4 см. К ним и будут крепиться утепляющие плиты. Можно в швах установить пробки и, прибив к ним деревянные рейки, «нашить» поверх утепляющие плиты из арболита, фибролита, минеральной ваты либо легкого бетона. В таком случае толщина кладки будет в полтора кирпича при использовании полнотелого и в один кирпич при применении пустотелого кирпича.
Колодцевая кладка с засыпкой подразумевает следующее: по всей длине стены через каждые три кирпича будем устраивать поперечную стенку, выкладывая наружные углы тычком. В качестве засыпки можно использовать мелкий шлак, керамзит либо другие легкие заполнители слоями по 10–15 см по мере прироста стены. Через каждые два-три слоя нужно поливать засыпку известковым раствором. Последний такой ряд армируется металлической сеткой. Однако верхние три-четыре ряда колодцевой кладки должны быть сплошными.
Еще один вариант – облегченная кирпичная кладка с горизонтальными диафрагмами. Она представляет собой две связанные тычковыми рядами (диафрагмами) стенки, выложенные в полкирпича. Между ними должен быть утеплитель. Диафрагмы выполняются с промежутками в четыре-пять рядов.
